Некоммерческое партнерство Альянс Печных Дел Мастера
 RSS  • FAQ  •  Поиск  •  Пользователи  •  Группы   •  Регистрация   •  Избранные темы   •  Профиль  •  Войти и проверить личные сообщения  •  Чат  •  Вход





 Помогите правильно спланировать фундамент печки! Следующая тема
Предыдущая тема
Начать новую темуОтветить на тему
Автор Сообщение
Konstantin



Зарегистрирован: Вс 24 Март 2013, 18:22
Сообщения: 5
Регион: Москва

СообщениеДобавлено: Вс 24 Март 2013, 18:36 Ответить с цитатойВернуться к началу

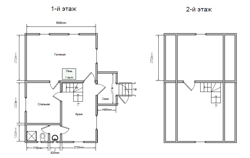
Здравствуйте, решил обратиться за советом к профессионалам. Планирую строить дом 6х9 с мансардой. При закладке фундамента помимо ленты думаю заложить фундамент 1200х1200 для отопительной печи. Печь разместить в гостиной, как на рисунке. На каком расстоянии от ленты фундамента и несущей стены, а также от срединной линии дома (конька) лучше расположить в данном случае фундамент печки? Главные критерии в данном случае - пожаробезопасность, гарантия правильных разделок, распушек, правильный выход трубы. Конкретную печку пока не выбрал, хочется заложить что-то универсальное.



дом.jpg
 Описание:
 Размер файла:  57.87 КБ
 Просмотров:  1495 раз(а)

дом.jpg


Посмотреть профильОтправить личное сообщение
Андрей_Алексеевич



Зарегистрирован: Пн 13 Декабрь 2010, 19:17
Сообщения: 5935
Регион: малая родина Павлова, Скобелева, Циолковского, Уткиных и др.

СообщениеДобавлено: Вс 24 Март 2013, 20:02 Ответить с цитатойВернуться к началу

Как-то лестница... не по месту...
Да и печь не будет обогревать ни спальню..., ни кухню....
А вот подобный не рассматривали:
ПРОСТОЙ 7х8
проект ПМЖ
http://www.invapolis.ru/pasport/derevyannie_zhilie_doma/prostoj_7h8/

_________________
Печник - милостью и промыслом Божиим.
Печное отопление частного дома и т.п., авторское сопровождение проектов, наставничество в т.ч. дистанционное, партнёрство в кладке печей.
89106130763 МТС
andrejka61@mail.ru
andrej.kuzmischev@yandex.ru


PL-11 1-й этаж 1-й вариант с камино-печью.JPG
 Описание:
 Размер файла:  51.47 КБ
 Просмотров:  1053 раз(а)

PL-11 1-й этаж 1-й вариант с камино-печью.JPG


Посмотреть профильОтправить личное сообщениеПозвонить автору
Konstantin



Зарегистрирован: Вс 24 Март 2013, 18:22
Сообщения: 5
Регион: Москва

СообщениеДобавлено: Вс 24 Март 2013, 20:19 Ответить с цитатойВернуться к началу

Спасибо за план, план хороший, особенно удобен с точки зрения отопления. Но для протопки всего дома потребуется и мощная печь. Я планировал что-нибудь легенькое, для сезонного проживания. Кухню и 2-й этаж отапливать пока не собираюсь, в холодное время приехать и достаточно быстро прогреть хотя бы одну комнату, при необходимости согреть спальную - просто открыть дверь.
Лестница возможно пойдет и по-другому, но располагаться скорее всего в том же помещении.
Посмотреть профильОтправить личное сообщение
Андрей_Алексеевич



Зарегистрирован: Пн 13 Декабрь 2010, 19:17
Сообщения: 5935
Регион: малая родина Павлова, Скобелева, Циолковского, Уткиных и др.

СообщениеДобавлено: Вс 24 Март 2013, 20:38 Ответить с цитатойВернуться к началу

Для ПМЖ 6х9 периметр камино-печи ПНП (преимущественно нижний прогрев) будет достаточен в 5,5 м...=126х150 см - это уже с учётом 3-рёх перегородок Confused
ВП варочная плита позволяет по приезду быстро "нагнать" первое тепло.
"чистая" чугунная духовка сразу за топкой ВП этому только поспособствует.
А регистр ГВС, подключенный к ТЕРМЕКСу - позволит надолго забыть про показания эл/счётчика.
5,5 м - это если сделаете лестничный марш закрывающимся.
А если нет, то периметр д.б. увеличен до 7,25 м=1,75х2,0 м

_________________
Печник - милостью и промыслом Божиим.
Печное отопление частного дома и т.п., авторское сопровождение проектов, наставничество в т.ч. дистанционное, партнёрство в кладке печей.
89106130763 МТС
andrejka61@mail.ru
andrej.kuzmischev@yandex.ru
Посмотреть профильОтправить личное сообщениеПозвонить автору
Павел_П



Зарегистрирован: Чт 6 Август 2009, 09:12
Сообщения: 423
Регион: Москва

СообщениеДобавлено: Пн 25 Март 2013, 16:07 Ответить с цитатойВернуться к началу

Андрей_Алексеевич писал(а):
Для ПМЖ 6х9 ...
А если нет, то периметр д.б. увеличен до 7,25 м=1,75х2,0 м


боюсь он не поймет....
фундамент закапывайте на глубину промерзания. если лента под дом мелкозаглубленная - связывать с ней печной Ф не надо. площадь возьмите с запасом. на "излишек" удобно половые лаги опирать.
а быстро нагреть кирпичной печью - распространенное заблуждение. это камин или буржуйки. как промежуточный вариант - каминопечь.
кирпичную же делают в частности для того, чтобы к утру в пять одеял не кутаться ))

_________________
щи да каша - пища наша
Посмотреть профильОтправить личное сообщениеОтправить e-mail
Konstantin



Зарегистрирован: Вс 24 Март 2013, 18:22
Сообщения: 5
Регион: Москва

СообщениеДобавлено: Пн 25 Март 2013, 18:05 Ответить с цитатойВернуться к началу

А все же сколько отступить от линии конька?
Посмотреть профильОтправить личное сообщение
Андрей_Алексеевич



Зарегистрирован: Пн 13 Декабрь 2010, 19:17
Сообщения: 5935
Регион: малая родина Павлова, Скобелева, Циолковского, Уткиных и др.

СообщениеДобавлено: Пн 25 Март 2013, 18:18 Ответить с цитатойВернуться к началу

Konstantin писал(а):
А все же сколько отступить от линии конька?


Современные кровельщики зашивают ТД, выведенную и в конёк Razz
Но если есть возможность, то, с учётом материала, расстояние от конька до ТД делайте не менее 30 см.
Повторюсь - 30 см - не "закон Мидян и Персов" Sad

_________________
Печник - милостью и промыслом Божиим.
Печное отопление частного дома и т.п., авторское сопровождение проектов, наставничество в т.ч. дистанционное, партнёрство в кладке печей.
89106130763 МТС
andrejka61@mail.ru
andrej.kuzmischev@yandex.ru
Посмотреть профильОтправить личное сообщениеПозвонить автору
Konstantin



Зарегистрирован: Вс 24 Март 2013, 18:22
Сообщения: 5
Регион: Москва

СообщениеДобавлено: Пн 25 Март 2013, 19:20 Ответить с цитатойВернуться к началу

Печь от стены отставить тоже где-то сантиметров на 30?
Посмотреть профильОтправить личное сообщение
Гребенчюк Андрей



Зарегистрирован: Чт 9 Сентябрь 2010, 17:23
Сообщения: 1211
Регион: Ленинградская область

СообщениеДобавлено: Пн 25 Март 2013, 19:25 Ответить с цитатойВернуться к началу

Konstantin писал(а):
Печь от стены отставить тоже где-то сантиметров на 30?

достаточно и 25 см
Посмотреть профильОтправить личное сообщение
Konstantin



Зарегистрирован: Вс 24 Март 2013, 18:22
Сообщения: 5
Регион: Москва

СообщениеДобавлено: Пн 25 Март 2013, 19:39 Ответить с цитатойВернуться к началу

Спасибо.
Посмотреть профильОтправить личное сообщение
banderas81



Зарегистрирован: Пн 28 Ноябрь 2011, 22:38
Сообщения: 106
Регион: Великий Новгород

СообщениеДобавлено: Чт 20 Февраль 2014, 16:40 Ответить с цитатойВернуться к началу

Добрый день.
Подскажите как фундамент сделать.
Под дом планирую незаглубленную ленту на песчаной подушке.
1.Связывать фундаменты печей с фундаментом дома-бани?
2.Делать так же не заглубленные?
3.Также очень волнует вопрос о дымоходах, если не связывать фундаменты
и дымоход делать общий то возможно нарушение целостности дымохода, в случае если фундаменты гульнут.
4.Если связать то не порвет ли ленту.



баня-Model 1.jpg
 Описание:
 Размер файла:  108.22 КБ
 Просмотров:  871 раз(а)

баня-Model 1.jpg


Посмотреть профильОтправить личное сообщение
Шура



Зарегистрирован: Чт 8 Январь 2009, 20:09
Сообщения: 4171
Регион: Москва - Тамбов

СообщениеДобавлено: Чт 20 Февраль 2014, 18:47 Ответить с цитатойВернуться к началу

banderas81 писал(а):
Добрый день.
Подскажите как фундамент сделать.
Под дом планирую незаглубленную ленту на песчаной подушке.
1.Связывать фундаменты печей с фундаментом дома-бани?
2.Делать так же не заглубленные?
3.Также очень волнует вопрос о дымоходах, если не связывать фундаменты
и дымоход делать общий то возможно нарушение целостности дымохода, в случае если фундаменты гульнут.
4.Если связать то не порвет ли ленту.
Это общестроительные вопросы...
Посмотреть профильОтправить личное сообщениеОтправить e-mail
Показать сообщения:      
Начать новую темуОтветить на тему


 Перейти:   



Следующая тема
Предыдущая тема
Вы не можете начинать темы
Вы не можете отвечать на сообщения
Вы не можете редактировать свои сообщения
Вы не можете удалять свои сообщения
Вы не можете голосовать в опросах
Вы не можете добавлять приложения в этом форуме
Вы можете скачивать файлы в этом форуме




Проект форум печников "Альянс. Печных Дел Мастера" © 2006-2025