 |
|
 |
| Автор |
Сообщение
|
Vad
Зарегистрирован: Вт 7 Декабрь 2021, 10:41
Сообщения: 2959
Регион: Беларусь
|
Добавлено:
Вт 28 Июнь 2022, 10:39
|
  |
В некоторых смыслах Вы правы, трудоёмкость ручной сборки традиционных теплоёмких кирпичных печей и топок - это, наверно, их самое больное место.
Однако.
Трудоёмкость даже самых первых отопительных ракет - уже была намного больше традиционных кирпичных ящиков. Хотя бы потому, что там использовались уже не только готовые кирпичи, но и саман ручной выделки, а это не баран начихал...
Кроме того, простота бывает обманчива не в ту сторону, и прежде всего в плане санитарной гигиены (травля газов через нештатные щели и слишком высокий разогрев наружных стенок).
И наконец, кажущаяся простота чего-то нового - это часто = забытый опыт. Тех же каркасных печей повышенного прогрева, если уж нужно быстро согреть дачку... никто их сегодня массово не строит и не умеет топить толком... кроме пары энтузиастов разве что...
И наконец - расчёт кирпичной кладки... только в этой теме сколько раз поминали Грума? а ведь он предложил кладку тонкостенного колпака с контрфорсами, которая была способна решать сразу 3 задачи одновременно: накапливать много тепла, разогреваться быстро и не перегреваться снаружи... а кому сегодня интересно это понять и повторить?
Да всем плевать, ложим как хочим, лишь бы грело...
***
И да, в сухом осадке: даже самая простая ракета полностью понятна и вполне перспективна в качестве кухонной плиты, но в качестве отопительной печи... ладно, скажу мягко: ещё допиливать и допиливать, и не факт, что выйдет допилить хотя бы до ГОСТа 47...
|
|
|
|
  |
 |
Vad
Зарегистрирован: Вт 7 Декабрь 2021, 10:41
Сообщения: 2959
Регион: Беларусь
|
Добавлено:
Вт 28 Июнь 2022, 11:08
|
  |
И ещё одно главное) - опять отдельным постом...
ГОСТ 47 - это нормы проектирования печей с колосниковыми топками.
А ВСЕ современные ракетные идеи и практики - это всего лишь нормы постройки исключительно ракетных топок (топливников, горелок - назовём как угодно, суть не поменяется!).
А вовсе не ракетных печей в целом!
Поэтому кажущаяся простота ракетных идей и узлов - это простота именно кажущаяся: топка и печь в целом по сложности проектирования несравнимы чуть более, чем полностью...
И отсюда проистекает, гм... удивительная ракетная пропаганда: дескать, ракетная топка - это главное, а система утилизации тепла и выдачи его в отапливаемое помещение - нечто третьестепенное, простое и понятное само собою... модульный конструктор! постройте, мол, правильную ракетную топку, а уж тепло снимайте и отдавайте как хотите...
Но в реале так не бывает и быть не может, поскольку любая топка в составе любой приличной отопительной печи требует очень тесной увязки с конвективной системой этой печи, с её теплоаккумуляцией и теплоотдачей, а иначе... одна лишь хорошая топка хорошую печь не делает и не сделает никогда!
|
|
|
|
  |
 |
Кольчугин

Зарегистрирован: Вс 1 Апрель 2018, 03:26
Сообщения: 2051
Регион: Новосибирск
|
Добавлено:
Вт 28 Июнь 2022, 11:31
|
  |
| Vad писал(а): |
| Кольчугин писал(а): |
Это прекрасно просматривается на графике сжигания (см.вложение)...
Выросла температура в зоне реакции (можно судить только косвенно, т.к. на графике Тух, СО и О2 с КПД) и альфа упала сама по себе...Никто ничего не крутил... Вместе с ней упали и СО...
И это график не с ракеты, а всего навсего с вихревой кухонной печи DSR (с коротеньким "лежачим" райзером)... Райзером не потому что стоит, а потому что теплоизолирован и с низкой теплоёмкостью... |
Раз Вы считаете, что эта печь вызывает некое отторжение у ретроградов вроде меня) - позвольте сперва выслушать Ваши доводы.
Растолкуйте мне, пожалуйста, эту печь хотя бы в самых главных чертах: сколько она сжигает дров в час и какой влажности, насколько нагреваются снаружи её стенки, до каких температур нагревается варочная плита, как осуществляется управление горением, где и как мерялись температуры и составы газов...
***
И забыл главное, виноват...)))
Давайте посчитаем как следует этот "лежачий" райзер: каков его объём, на какую удельную мощность он рассчитан, какой объём газов какой температуры он должен переваривать расчётно, переваривает ли он их на самом деле (вылезает ли из него пламя дальше по потоку) и т. п... ну то есть опять же: я не хочу возражать сходу, сперва я хочу уяснить хотя бы самые главные показатели предмета обсуждения. |
У Вас есть на руках ссылка именно на эту кухонную печь... Есть на 73 страницах и про количество дров, и про температуры, и про количество подогретой воды и жаренных яиц с колбасой...
Дерзайте...
|
|
|
|
   |
 |
Кольчугин

Зарегистрирован: Вс 1 Апрель 2018, 03:26
Сообщения: 2051
Регион: Новосибирск
|
Добавлено:
Вт 28 Июнь 2022, 11:38
|
  |
| Юрий Хошев писал(а): |
| alarin писал(а): |
| Юрий Хошев писал(а): |
| alarin писал(а): |
| Юрий Хошев писал(а): |
| alarin писал(а): |
| создать условия для адиабатического протекания процессов в печи" |
Берем, к примеру, абсолютно теплоизолированную негритянку.
Подаем воздух с альфа 3. Негритянка штатно горит. На выходе адиабата 800град. Как там все горит при адиабате 800? |
альфа 3 как то не из этой оперы. |
Хорошо. Давайте возьмем другое альфа. Например 0,5.
|
Альфа то к адиабатичности процессов прямого отношения не имеет. |
Хорошо. Альфу выбрасываем.
Берем "обычную" топку (печку). И адиабатическую горелку.
Туда и сюда загружаем одинаковое количество дров. На выходе температуры одинаковы 1000град к примеру.
Какова разница "условий" обычного и адиабатического "протекания процессов"?
Надо же объяснить печникам, в чем состоит их вековая дремучесть... |
А разница обычного и адиабатического процессов и будет как раз в температуре...
Если при обычном процессе будет 850-950*С, то при адиабатическом в районе 1300*С...
Как думаете при каком процессе легче и быстрее вскипятить 100 л воды в чане?
|
|
|
|
   |
 |
Vad
Зарегистрирован: Вт 7 Декабрь 2021, 10:41
Сообщения: 2959
Регион: Беларусь
|
Добавлено:
Вт 28 Июнь 2022, 11:58
|
  |
| Кольчугин писал(а): |
У Вас есть на руках ссылка именно на эту кухонную печь... Есть на 73 страницах и про количество дров, и про температуры, и про количество подогретой воды и жаренных яиц с колбасой...
Дерзайте... |
Сами не хотите дерзнуть?)
Что ж, ладно, тогда я сам, планировал в любом случае...)
|
|
|
|
  |
 |
demin_c

Зарегистрирован: Ср 8 Январь 2014, 12:06
Сообщения: 929
Регион: Омск
|
Добавлено:
Вт 28 Июнь 2022, 12:13
|
  |
| Vad писал(а): |
И ещё одно главное) - опять отдельным постом...
ГОСТ 47 - это нормы проектирования печей с колосниковыми топками.
А ВСЕ современные ракетные идеи и практики - это всего лишь нормы постройки исключительно ракетных топок (топливников, горелок - назовём как угодно, суть не поменяется!).
А вовсе не ракетных печей в целом!
Поэтому кажущаяся простота ракетных идей и узлов - это простота именно кажущаяся: топка и печь в целом по сложности проектирования несравнимы чуть более, чем полностью...
И отсюда проистекает, гм... удивительная ракетная пропаганда: дескать, ракетная топка - это главное, а система утилизации тепла и выдачи его в отапливаемое помещение - нечто третьестепенное, простое и понятное само собою... модульный конструктор! постройте, мол, правильную ракетную топку, а уж тепло снимайте и отдавайте как хотите...
Но в реале так не бывает и быть не может, поскольку любая топка в составе любой приличной отопительной печи требует очень тесной увязки с конвективной системой этой печи, с её теплоаккумуляцией и теплоотдачей, а иначе... одна лишь хорошая топка хорошую печь не делает и не сделает никогда! |
И тем не менее практика говорит об обратном... Не один два энтузиастов, а гораздо больше. Опять же практика - дилетант вроде меня, аларин, Кольчугин, ВладимирСпб, Руслан, Берг..., да всех впервые взявшихся (и не впервые) построить очаг для сжигания топлива (сколько их там), и основу взяли пирокету, у всех всё получилось. Получилось так как и планировали, иначе бы они просто купили бы ту или иную буржуйку, так лучше пусть будет пирокета. Вы с этим согласны?
п.с. это как в одежде - классический смокинг это хорошо, красиво, престижно, но джинсы, свитер и кроссовки это ещё и удобно, хотя в шахту Вы спускаться не собираетесь (первоначально для них шили джинсы) и бегать кросс не собираетесь.
|
Последний раз редактировалось: demin_c (Вт 28 Июнь 2022, 12:20), всего редактировалось 1 раз |
|
  |
 |
Vad
Зарегистрирован: Вт 7 Декабрь 2021, 10:41
Сообщения: 2959
Регион: Беларусь
|
Добавлено:
Вт 28 Июнь 2022, 12:16
|
  |
Нет, не согласен.
А почему не согласен... ответить не сложно, но это будет большой пост, и о многом я уже писал не раз...
***
Впрочем, о главном... видите ли, запороть дровяной очаг так, чтобы он не горел - практически невозможно.)))
Поэтому для меня какой-то десяток чьих-то личных практик не доказывает вообще ничего: у всех дрова горят, да... это великий печной успех, опровергающий весь предыдущий опыт?)
Не думаю.)))
А вот когда пытаешься выяснить "мелкие" детали, в которых сидит дьявол... итог выходит далеко не такой однозначный и восторженный...
И то же самое в переводе на джинсы.)))
В интернете много рассказов и фоторепортажей о разных джинсах, которые якобы удобны, повседневны, не мажорны и так далее... стиль кэжуал, извините за выражение.)
Но из всех этих штанов реально удобны в повседневной жизни - единицы.
Потому, что дьявол всегда в мелочах, которые на первый взгляд не видны...
|
Последний раз редактировалось: Vad (Вт 28 Июнь 2022, 12:23), всего редактировалось 1 раз |
|
  |
 |
tuomob

Зарегистрирован: Пн 26 Сентябрь 2011, 16:45
Сообщения: 2370
Регион: Тула
|
Добавлено:
Вт 28 Июнь 2022, 12:22
|
  |
| demin_c писал(а): |
| Пусть даже пирокеты это где-то аналог современной буржуйки с какими-то своими недостатками, но горение всё же более чистое чем в металлической буржуйке. Это и есть главное преимущество перед буржуйками. |
Вот с этим соглашусь
Жалко нет внизу постов возможности ставить "спасибо", как на форумхаусе. Очень простая и наглядная оценка написанного участником форума. И кол-во балов в итоге наглядно характеризует участника
|
_________________ С Уважением! Юрий. Тула.
ВК https://vk.com/tuomob
За проектами в личку обращайтесь.
|
|
  |
 |
demin_c

Зарегистрирован: Ср 8 Январь 2014, 12:06
Сообщения: 929
Регион: Омск
|
Добавлено:
Вт 28 Июнь 2022, 12:22
|
  |
Значит, все те кто в своё время построил пирокету, купили бы буржуйку. И чем бы, в таком случае, обогатилась бы печная наука?
|
|
|
|
  |
 |
Vad
Зарегистрирован: Вт 7 Декабрь 2021, 10:41
Сообщения: 2959
Регион: Беларусь
|
Добавлено:
Вт 28 Июнь 2022, 12:27
|
  |
Современная буржуйка буржуйке рознь, знаете ли!
Посмотрите, например, футерованные американские, которые нормированы по нормам выбросов в соответствии с теми самыми ООНовскими принципами.
И да, их внешний разогрев зашкаливает... но их же и чистить, и мыть от пыли удобнее! и площадь, которую нужно держать чистой - сравнительно невелика!
А когда бабахают на внешнюю скорлупу голый шамот, который греется выше 120... ну куда это годится вообще, в какие ворота?
|
|
|
|
  |
 |
tuomob

Зарегистрирован: Пн 26 Сентябрь 2011, 16:45
Сообщения: 2370
Регион: Тула
|
Добавлено:
Вт 28 Июнь 2022, 12:29
|
  |
| Vad писал(а): |
И отсюда проистекает, гм... удивительная ракетная пропаганда: дескать, ракетная топка - это главное, а система утилизации тепла и выдачи его в отапливаемое помещение - нечто третьестепенное, простое и понятное само собою... модульный конструктор! постройте, мол, правильную ракетную топку, а уж тепло снимайте и отдавайте как хотите...
Но в реале так не бывает и быть не может, поскольку любая топка в составе любой приличной отопительной печи требует очень тесной увязки с конвективной системой этой печи, с её теплоаккумуляцией и теплоотдачей, а иначе... одна лишь хорошая топка хорошую печь не делает и не сделает никогда! |
И с этим соглашусь
У меня не получилось "красиво" соединить топку и конвектику в простую отопительную печь. Хотя очень хотел. И не подсказали как лучше.
|
_________________ С Уважением! Юрий. Тула.
ВК https://vk.com/tuomob
За проектами в личку обращайтесь.
|
|
  |
 |
tuomob

Зарегистрирован: Пн 26 Сентябрь 2011, 16:45
Сообщения: 2370
Регион: Тула
|
Добавлено:
Вт 28 Июнь 2022, 12:30
|
  |
| Vad писал(а): |
Современная буржуйка буржуйке рознь, знаете ли!
Посмотрите, например, футерованные американские, которые нормированы по нормам выбросов в соответствии с теми самыми ООНовскими принципами.
И да, их внешний разогрев зашкаливает... но их же и чистить, и мыть от пыли удобнее! и площадь, которую нужно держать чистой - сравнительно невелика!
А когда бабахают на внешнюю скорлупу голый шамот, который греется выше 120... ну куда это годится вообще, в какие ворота? |
Не убедительно, словоблудие, не в тему.
|
_________________ С Уважением! Юрий. Тула.
ВК https://vk.com/tuomob
За проектами в личку обращайтесь.
|
|
  |
 |
Vad
Зарегистрирован: Вт 7 Декабрь 2021, 10:41
Сообщения: 2959
Регион: Беларусь
|
Добавлено:
Вт 28 Июнь 2022, 12:35
|
  |
А чем обогатили печную науку продвинутые буржуйки... да много чем!
Верхний розжиг прежде всего!
И чёткие рекомендации по формированию закладки дров - прямо в инструкции.
И совместные заводские настройки (по результатам испытаний!) ПВ и ВВ.
И подогрев ВВ тонкой керамической футеровкой.
И в конце концов введение в общепринятую норму и уже даже традицию - наблюдения за пламенем через стекло.
И система "чистое стекло", кстати, тоже...
Мало? нет, не мало, а очень много, и ведь это не всё...
|
|
|
|
  |
 |
tuomob

Зарегистрирован: Пн 26 Сентябрь 2011, 16:45
Сообщения: 2370
Регион: Тула
|
Добавлено:
Вт 28 Июнь 2022, 12:39
|
  |
| Vad писал(а): |
А чем обогатили печную науку продвинутые буржуйки... да много чем!
Верхний розжиг прежде всего!
И чёткие рекомендации по формированию закладки дров - прямо в инструкции.
И совместные заводские настройки (по результатам испытаний!) ПВ и ВВ.
И подогрев ВВ тонкой керамической футеровкой.
И в конце концов введение в общепринятую норму и уже даже традицию - наблюдения за пламенем через стекло.
И система "чистое стекло", кстати, тоже...
Мало? нет, не мало, а очень много, и ведь это не всё... |
Так зачем тогда здесь обсуждаете ракеты?
Ставьте себе "продвинутую буржуйку" и делитесь, в отдельной теме, впечатлениями.
|
_________________ С Уважением! Юрий. Тула.
ВК https://vk.com/tuomob
За проектами в личку обращайтесь.
|
|
  |
 |
demin_c

Зарегистрирован: Ср 8 Январь 2014, 12:06
Сообщения: 929
Регион: Омск
|
Добавлено:
Вт 28 Июнь 2022, 12:39
|
  |
Нет всё в тему. Буржуйки тоже развиваются - футеруют шамотом, вставляют всякие горелки, райзера... Гибрид технологичной буржуйки и пирокеты с её чистым горением - это будущее "печной науки" (маркетинга). Котлы, точно уже применяют элементы похожие на райзер. Впрочем и ракеты что то взяли из котлов..., шахтных... (и от Кузнецова)
|
Последний раз редактировалось: demin_c (Вт 28 Июнь 2022, 12:41), всего редактировалось 1 раз |
|
  |
 |
Vad
Зарегистрирован: Вт 7 Декабрь 2021, 10:41
Сообщения: 2959
Регион: Беларусь
|
Добавлено:
Вт 28 Июнь 2022, 12:40
|
  |
| tuomob писал(а): |
| Не убедительно, словоблудие, не в тему. |
ОК, разверну...
Начало возгонки пыли - 70 град. Ц, резкая активизация возгонки - сразу после 80... но почему для глазурованных изразцов допускается до 90?
Потому, что провёл разок мокрой тряпкой, и нормально... а по голому кирпичу или штукатурке? никак, это поверхности, собирающие пыль неизбежно, а при повышении температуры - возгоняющие пыль в многочисленных мелких порах, а не на теоретически плоской поверхности, что ещё опаснее...
Так лучше?)
|
|
|
|
  |
 |
Vad
Зарегистрирован: Вт 7 Декабрь 2021, 10:41
Сообщения: 2959
Регион: Беларусь
|
Добавлено:
Вт 28 Июнь 2022, 13:09
|
  |
| tuomob писал(а): |
| У меня не получилось "красиво" соединить топку и конвектику в простую отопительную печь. Хотя очень хотел. И не подсказали как лучше. |
ОК, подскажу ещё раз.)
Берёте любой проект каркасной печи повышенного прогрева из известного альбома Госстроя - и спокойно меняете оригинальный шамотный райзер) на более тёплый.)))
Всё.)
Нет, не всё... не забыть гладкий футляр, стекло и входы для зондов газоанализа, иначе никогда не узнаете, сработало или нет...)
|
|
|
|
  |
 |
tuomob

Зарегистрирован: Пн 26 Сентябрь 2011, 16:45
Сообщения: 2370
Регион: Тула
|
Добавлено:
Вт 28 Июнь 2022, 13:37
|
  |
| Vad писал(а): |
| tuomob писал(а): |
| У меня не получилось "красиво" соединить топку и конвектику в простую отопительную печь. Хотя очень хотел. И не подсказали как лучше. |
ОК, подскажу ещё раз.)
Берёте любой проект каркасной печи повышенного прогрева из известного альбома Госстроя - и спокойно меняете оригинальный шамотный райзер) на более тёплый.)))
Всё.)
Нет, не всё... не забыть гладкий футляр, стекло и входы для зондов газоанализа, иначе никогда не узнаете, сработало или нет...) |
А Вы "не любите" ракеты...
Так зачем о них ЗДЕСЬ рассуждаете?
|
_________________ С Уважением! Юрий. Тула.
ВК https://vk.com/tuomob
За проектами в личку обращайтесь.
|
|
  |
 |
Кольчугин

Зарегистрирован: Вс 1 Апрель 2018, 03:26
Сообщения: 2051
Регион: Новосибирск
|
Добавлено:
Вт 28 Июнь 2022, 13:46
|
  |
| Vad писал(а): |
| tuomob писал(а): |
| У меня не получилось "красиво" соединить топку и конвектику в простую отопительную печь. Хотя очень хотел. И не подсказали как лучше. |
ОК, подскажу ещё раз.)
Берёте любой проект каркасной печи повышенного прогрева из известного альбома Госстроя - и спокойно меняете оригинальный шамотный райзер) на более тёплый.)))
Всё.)
Нет, не всё... не забыть гладкий футляр, стекло и входы для зондов газоанализа, иначе никогда не узнаете, сработало или нет...) |
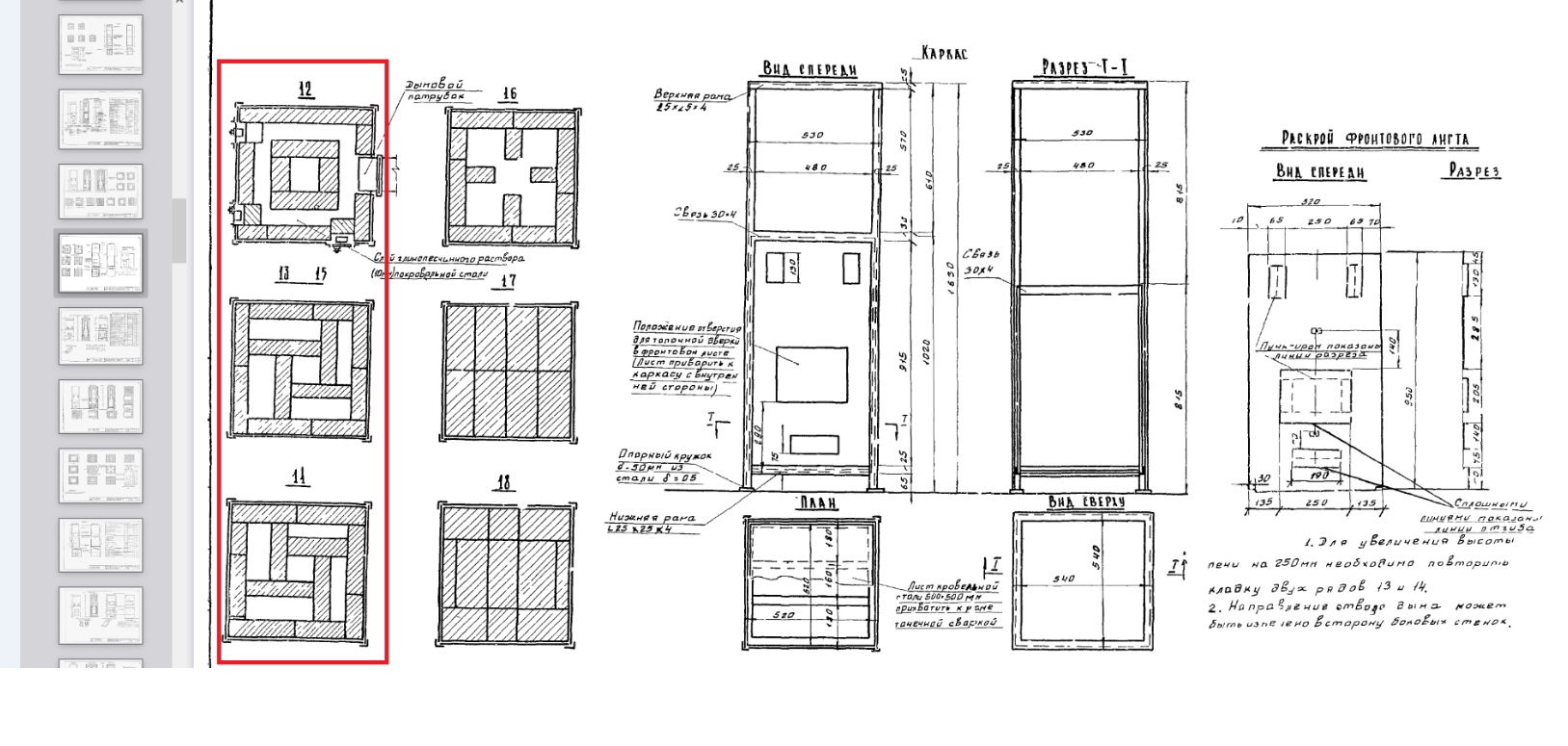
https://meganorm.ru/Data2/1/4293843/4293843693.pdf
Этот что ли?
https://disk.yandex.ru/i/mpzi4wKGzqV6lw
Вертикальные каналы есть... Райзерами даже не пахнет... Хоть заутепляйся...
Впрочем кому и кобыла невеста!
|
|
|
|
   |
 |
Vad
Зарегистрирован: Вт 7 Декабрь 2021, 10:41
Сообщения: 2959
Регион: Беларусь
|
Добавлено:
Вт 28 Июнь 2022, 14:22
|
  |
| Кольчугин писал(а): |
| Райзерами даже не пахнет... |
Даже не принюхивались?)
Можно и сечение обсчитать по Бергу, любопытные цифры выйдут.)
Но где-то я понимаю Ваше отрицание очевидного... изобретение новейшего велосипеда опять провалилось...)))
|
| Описание: |
|
| Размер файла: |
307.59 КБ |
| Просмотров: |
55 раз(а) |

|
|
|
  |
 |
|
|
|
Следующая тема
Предыдущая тема
Вы не можете начинать темы Вы не можете отвечать на сообщения Вы не можете редактировать свои сообщения Вы не можете удалять свои сообщения Вы не можете голосовать в опросах Вы не можете добавлять приложения в этом форуме Вы можете скачивать файлы в этом форуме
|
|