| Автор |
Сообщение
|
Сергей68

Зарегистрирован: Пт 5 Декабрь 2008, 21:49
Сообщения: 855
Регион: Питер
|
Добавлено:
Пн 13 Май 2013, 01:57
|
  |
Решил выложить на обозрение монтаж топки... может кому то будет интересно ???
|
_________________ 8-921-743-33-53
| Описание: |
|
| Размер файла: |
10.26 КБ |
| Просмотров: |
831 раз(а) |

|
| Описание: |
|
| Размер файла: |
29.44 КБ |
| Просмотров: |
750 раз(а) |

|
| Описание: |
|
| Размер файла: |
110.88 КБ |
| Просмотров: |
927 раз(а) |

|
| Описание: |
|
| Размер файла: |
270.57 КБ |
| Просмотров: |
878 раз(а) |

|
|
|
    |
 |
Сергей68

Зарегистрирован: Пт 5 Декабрь 2008, 21:49
Сообщения: 855
Регион: Питер
|
Добавлено:
Пн 13 Май 2013, 01:59
|
  |
Дом
|
_________________ 8-921-743-33-53
| Описание: |
|
| Размер файла: |
119.68 КБ |
| Просмотров: |
752 раз(а) |

|
| Описание: |
|
| Размер файла: |
109.81 КБ |
| Просмотров: |
755 раз(а) |

|
|
|
    |
 |
Сергей68

Зарегистрирован: Пт 5 Декабрь 2008, 21:49
Сообщения: 855
Регион: Питер
|
Добавлено:
Пн 13 Май 2013, 02:16
|
  |
Монтаж... Все усугублялось ограниченностью пространства под камин. Лестничники оттяпали места сколько им надо... а выдвинуться в перед нам не позволяла стропильная система, или перешагивать через шаг стропилы... тогда вылезаем за границы подиума на 50 см... Архитектор закричал "АХТУНГ" низзя ни в коем случае. После ночного " мозгового штурма" и многочисленных согласований с заказчиком и архитектором а так же прорабом по общестроительным работам, было выработано решение, которое устроило всех!!!
Если бы это было ВСЕ!!! Но у нас как обычно, все через одно место. Стенки корпуса под облицовку мрамором планировались из кирпича стандарт " евро", общий вес конструкции должен был перевалить за 2 тонны. И перед началом работ нам дают "СТОП" ... под тем местом где должен быть подиум и камин проложен водяной обогрев пола... т.е. там "пирог"- плита, над ней 100 мм. пенополистерол , сетка армирующая, на ней трубы водяного отопления, и потом стяжка 80 мм.. Что делать??? Опять цейтнот... И опять по кругу согласований и пр. но в итоге мы начали работу.
|
_________________ 8-921-743-33-53
| Описание: |
|
| Размер файла: |
156.22 КБ |
| Просмотров: |
741 раз(а) |

|
| Описание: |
| Первый приезд на объект, ознакомление и разметка на полу. |
|
| Размер файла: |
111.76 КБ |
| Просмотров: |
925 раз(а) |

|
| Описание: |
| Немцы народ практичный и думающий... для переноски этого монстра, имелись штатные ручки... четыре человека спокойно занесли в дом и поставили на подиум. Вес топки 286 кг. |
|
| Размер файла: |
297.49 КБ |
| Просмотров: |
918 раз(а) |

|
| Описание: |
|
| Размер файла: |
294.38 КБ |
| Просмотров: |
837 раз(а) |

|
Последний раз редактировалось: Сергей68 (Пн 13 Май 2013, 02:40), всего редактировалось 1 раз |
|
    |
 |
Сергей68

Зарегистрирован: Пт 5 Декабрь 2008, 21:49
Сообщения: 855
Регион: Питер
|
Добавлено:
Пн 13 Май 2013, 02:20
|
  |
Начинаем выставлять каркас... поскольку в размерах ужались сверх всякой меры, каркас пришлось ставить отдельными плоскостями
|
_________________ 8-921-743-33-53
| Описание: |
|
| Размер файла: |
304.69 КБ |
| Просмотров: |
782 раз(а) |

|
| Описание: |
|
| Размер файла: |
353.81 КБ |
| Просмотров: |
825 раз(а) |

|
| Описание: |
| базальт 50 мм. фольгированный |
|
| Размер файла: |
304.1 КБ |
| Просмотров: |
837 раз(а) |

|
| Описание: |
|
| Размер файла: |
305.77 КБ |
| Просмотров: |
881 раз(а) |

|
|
|
    |
 |
Сергей68

Зарегистрирован: Пт 5 Декабрь 2008, 21:49
Сообщения: 855
Регион: Питер
|
Добавлено:
Пн 13 Май 2013, 02:27
|
  |
Продолжаем
|
_________________ 8-921-743-33-53
| Описание: |
|
| Размер файла: |
289.91 КБ |
| Просмотров: |
1073 раз(а) |

|
| Описание: |
| Контроль размеров, так как любое расхождение по плоскостям вылезет потом при облицовке слэбами в БОльШОй " АХТУНГ" брать на себя стоимость мрамора для перепилки не хоца. Посему лучше Переб...ть |
|
| Размер файла: |
322.13 КБ |
| Просмотров: |
887 раз(а) |

|
| Описание: |
| Начинаем зашиваться стекломагниевым листом в 2-ва слоя, к мрамору шершавой стороной листа. |
|
| Размер файла: |
100.88 КБ |
| Просмотров: |
819 раз(а) |

|
|
|
    |
 |
Сергей68

Зарегистрирован: Пт 5 Декабрь 2008, 21:49
Сообщения: 855
Регион: Питер
|
Добавлено:
Пн 13 Май 2013, 02:31
|
  |
Корпус готов... Ждем "камень"
|
_________________ 8-921-743-33-53
| Описание: |
|
| Размер файла: |
94.77 КБ |
| Просмотров: |
862 раз(а) |

|
| Описание: |
| Вот что значит братья... и репу чешут одновременнО :-))) |
|
| Размер файла: |
105.58 КБ |
| Просмотров: |
800 раз(а) |

|
|
|
    |
 |
Андрей_Алексеевич

Зарегистрирован: Пн 13 Декабрь 2010, 19:17
Сообщения: 5932
Регион: малая родина Павлова, Скобелева, Циолковского, Уткиных и др.
|
Добавлено:
Пн 13 Май 2013, 07:21
|
  |
дык, эта... коли над одной проблемкой... , оно конешно!
МОЛОДЦЫ!!!
|
_________________ Печник - милостью и промыслом Божиим.
Печное отопление частного дома и т.п., авторское сопровождение проектов, наставничество в т.ч. дистанционное, партнёрство в кладке печей.
89106130763 МТС
andrejka61@mail.ru
andrej.kuzmischev@yandex.ru
|
|
   |
 |
ДРАГОМИР

Зарегистрирован: Вт 3 Март 2009, 11:26
Сообщения: 63
Регион: BULGARIA - PLOVDIV
|
Добавлено:
Пн 13 Май 2013, 12:39
|
  |
Пока чешут репу забыли про вентиляционные решетки в низу и верх корпуса для охлаждением корпус топки .Они должны быть не менше 800 кв.см в низу и верх корпуса тоже.
|
|
|
|
     |
 |
Андрей_Алексеевич

Зарегистрирован: Пн 13 Декабрь 2010, 19:17
Сообщения: 5932
Регион: малая родина Павлова, Скобелева, Циолковского, Уткиных и др.
|
Добавлено:
Пн 13 Май 2013, 18:15
|
  |
Они их по "месту" вырежут... , в смысле - по камню...
|
_________________ Печник - милостью и промыслом Божиим.
Печное отопление частного дома и т.п., авторское сопровождение проектов, наставничество в т.ч. дистанционное, партнёрство в кладке печей.
89106130763 МТС
andrejka61@mail.ru
andrej.kuzmischev@yandex.ru
|
|
   |
 |
ДРАГОМИР

Зарегистрирован: Вт 3 Март 2009, 11:26
Сообщения: 63
Регион: BULGARIA - PLOVDIV
|
Добавлено:
Пн 13 Май 2013, 21:42
|
  |
Вобшем надо сделат так що отверстия для решотки предварително оформит с UD или CD профилем зашивает с плоскостям вырезает по профилям и тагда берут разметки для отверстиям в облицовке из мрамора.
|
|
|
|
     |
 |
Сергей68

Зарегистрирован: Пт 5 Декабрь 2008, 21:49
Сообщения: 855
Регион: Питер
|
Добавлено:
Пн 13 Май 2013, 23:07
|
  |
| ДРАГОМИР писал(а): |
| Пока чешут репу забыли про вентиляционные решетки в низу и верх корпуса для охлаждением корпус топки .Они должны быть не менше 800 кв.см в низу и верх корпуса тоже. |
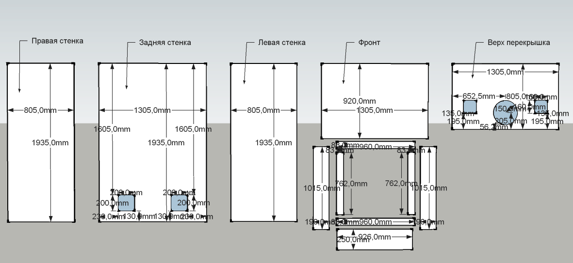
Забор воздуха сзади ( с того ракурса нет фото), выход вверх ( т.е в перекрышку). Так что про это мы не забыли... но у се равно... спасибо за беспокойство.
|
_________________ 8-921-743-33-53
| Описание: |
| Это размеры под камень... так наверно нагляднее |
|
| Размер файла: |
64.66 КБ |
| Просмотров: |
957 раз(а) |

|
|
|
    |
 |
Сергей68

Зарегистрирован: Пт 5 Декабрь 2008, 21:49
Сообщения: 855
Регион: Питер
|
Добавлено:
Пн 13 Май 2013, 23:10
|
  |
| Андрей_Алексеевич писал(а): |
Они их по "месту" вырежут... , в смысле - по камню...  |
Ага... Болгаркой
|
_________________ 8-921-743-33-53
|
|
    |
 |
Андрей_Алексеевич

Зарегистрирован: Пн 13 Декабрь 2010, 19:17
Сообщения: 5932
Регион: малая родина Павлова, Скобелева, Циолковского, Уткиных и др.
|
Добавлено:
Вт 14 Май 2013, 06:24
|
  |
| ДРАГОМИР писал(а): |
| Пока чешут репу забыли про вентиляционные решетки в низу и верх корпуса для охлаждением корпус топки .Они должны быть не менше 800 кв.см в низу и верх корпуса тоже. |
Да вот же они!!!
http://forum.stovemaster.ru/download.php?id=17059
МОЛОДЦЫ братишки!!!
|
_________________ Печник - милостью и промыслом Божиим.
Печное отопление частного дома и т.п., авторское сопровождение проектов, наставничество в т.ч. дистанционное, партнёрство в кладке печей.
89106130763 МТС
andrejka61@mail.ru
andrej.kuzmischev@yandex.ru
|
|
   |
 |
Сергей68

Зарегистрирован: Пт 5 Декабрь 2008, 21:49
Сообщения: 855
Регион: Питер
|
Добавлено:
Вт 14 Май 2013, 13:40
|
  |
Как оказывается все просто... посмотрел повнимательнее... и лишние вопросы и намеки на некомпетентность, отпадают сами собой.
Спасибо Андрей Алексеевич, за доброе слово, рад с Вами общаться, хоть и посредством форума. Удачи.
|
_________________ 8-921-743-33-53
|
|
    |
 |
ДРАГОМИР

Зарегистрирован: Вт 3 Март 2009, 11:26
Сообщения: 63
Регион: BULGARIA - PLOVDIV
|
Добавлено:
Вт 14 Май 2013, 15:17
|
  |
Никакие намеки на некомпетентность не были,неправилно поняли меня.
Да ошибка мая недосмотрел.
Извините меня ребята.
|
|
|
|
     |
 |
Сергей68

Зарегистрирован: Пт 5 Декабрь 2008, 21:49
Сообщения: 855
Регион: Питер
|
Добавлено:
Вт 14 Май 2013, 15:24
|
  |
Да не загоняйся Драгомир!
спишем все на несовершенство Гугль/переводчика
|
_________________ 8-921-743-33-53
|
|
    |
 |
Гребенчюк Андрей

Зарегистрирован: Чт 9 Сентябрь 2010, 17:23
Сообщения: 1211
Регион: Ленинградская область
|
Добавлено:
Вт 14 Май 2013, 18:47
|
  |
а между камином и корпусом пространство сколько см 10 наверно не мало ли будет?
|
|
|
|
  |
 |
Андрей_Алексеевич

Зарегистрирован: Пн 13 Декабрь 2010, 19:17
Сообщения: 5932
Регион: малая родина Павлова, Скобелева, Циолковского, Уткиных и др.
|
Добавлено:
Вт 14 Май 2013, 20:41
|
  |
А зазор д.б. таковым, чтобы его площадь не была меньше S калориферных отверстий
Что-то мне подсказывает, что у этих "братьёв" всё "по книжкам" и будет!!!
|
_________________ Печник - милостью и промыслом Божиим.
Печное отопление частного дома и т.п., авторское сопровождение проектов, наставничество в т.ч. дистанционное, партнёрство в кладке печей.
89106130763 МТС
andrejka61@mail.ru
andrej.kuzmischev@yandex.ru
|
|
   |
 |
Сергей68

Зарегистрирован: Пт 5 Декабрь 2008, 21:49
Сообщения: 855
Регион: Питер
|
Добавлено:
Вт 14 Май 2013, 21:54
|
  |
| Гребенюк А.Н. писал(а): |
| а между камином и корпусом пространство сколько см 10 наверно не мало ли будет? |
Дндрюха привет!
Зазор бы мы дали побольше... да на камин места оставили с гулькин ... , а топку хотелось большую , ну и пришлось напрягать извилины, что бы усе это впихнуть, без значительного перегрева.
... Да ... и забыл написать, что у этой топки , свой внешний кожух для вентиляции внутреннего пространства...
|
_________________ 8-921-743-33-53
Последний раз редактировалось: Сергей68 (Вт 14 Май 2013, 22:21), всего редактировалось 2 раз(а) |
|
    |
 |
Сергей68

Зарегистрирован: Пт 5 Декабрь 2008, 21:49
Сообщения: 855
Регион: Питер
|
Добавлено:
Вт 14 Май 2013, 21:59
|
  |
| Андрей_Алексеевич писал(а): |
А зазор д.б. таковым, чтобы его площадь не была меньше S калориферных отверстий
Что-то мне подсказывает, что у этих "братьёв" всё "по книжкам" и будет!!!  |
...Не... ну книжки конечно читаем... но в этот раз понадеялись на авось...
|
_________________ 8-921-743-33-53
|
|
    |
 |
|
|