 |
|
 |
| Автор |
Сообщение
|
Селиван Виктор
Проектировщик

Зарегистрирован: Сб 2 Январь 2010, 14:33
Сообщения: 6672
Регион: г.Челябинск
|
Добавлено:
Пт 22 Декабрь 2017, 15:43
|
  |
| Vladimir-spb писал(а): |
| Думаю что многие как раз распутались в своем понимании колпаковых конструкций |
Уже второй десяток лет лет эти споры(переливание из пустого в порожнее) периодически возникают на разных ресурсах. Никто к пониманию и консенсусу никогда не приходил. Все остаются при своих мнениях. Что то доказывать бесполезно.Бывало за ночь по десятку страниц на форумах написывалось - и всё бесполезно.
|
|
|
|
     |
 |
tuomob

Зарегистрирован: Пн 26 Сентябрь 2011, 16:45
Сообщения: 2355
Регион: Тула
|
Добавлено:
Пт 22 Декабрь 2017, 15:47
|
  |
| Vladimir-spb писал(а): |
| stas писал(а): |
| ... большинству ничего не понятно, ... Бесполезные сообщения множатся, люди запутываются... |
Отнюдь нет.. эта дискусия заставила меня серьезно разобраться в некоторых вопросах системы печей Кузнецова и продвинула меня в понимании процессов. Я даже не предполагал, что сделав ремарку к реплике Валеры о колпаковых печах, спровоцирую тут глобальные holy wars. Думаю что многие как раз распутались в своем понимании колпаковых конструкций |
Владимир!
Всё намного проще.
Внизу моих постов много толковой литературы и там есть ответы на все вопросы, обсуждаемые в этой многострадальной теме АВТОРА.
|
_________________ С Уважением! Юрий. Тула.
ВК https://vk.com/tuomob
За проектами в личку обращайтесь.
|
|
  |
 |
Шура

Зарегистрирован: Чт 8 Январь 2009, 20:09
Сообщения: 4171
Регион: Москва - Тамбов
|
Добавлено:
Пт 22 Декабрь 2017, 15:54
|
  |
| Шура писал(а): |
| Евгений Колчин писал(а): |
на своей печи установил подобный короб и провел испытания
на двух режимах - с коробом на поддувальную дверцу и открытой поддувальной дверцей на 4 см
рензультат был идентичен |
Ну правильно, 4см это же практически открытая дверка.
В моей печи, наилучший результат достигается при сечении отверстия подачи равным 20-30см2, в зависимости от влажности дров, и то, только в фазе активного горения летучих, за ем подачу прикрываю до 10-15см2, а в фазе горения только углей прикрываю и задвижку, оставляя треть проходного сечения. |
Согласно отчета по испытаним в Полушкино, поддувало имело постоянный просвет размером 92х115мм, что дает проходное сечпние 106см2, а это как минимум 3,5 раза превышает уровень штатной подачи.
|
|
|
|
   |
 |
Vladimir-spb

Зарегистрирован: Вт 24 Январь 2017, 17:28
Сообщения: 1467
Регион: S-Pb
|
Добавлено:
Пт 22 Декабрь 2017, 16:12
|
  |
| Шура писал(а): |
| Vladimir-spb писал(а): |
| ...Рисовать наверное имеет смысл только вокруг СШ. C остальным я надеюсь разночтений нет? |
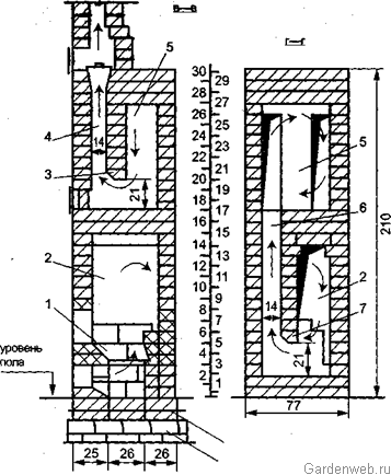
Нарисуйте на сечениях печи "Двухярусный колпак" Подгородникова.
Кстати, все кому интересна тема, тоже могли бы нарисовать... |
А там то что рисовать.. там все нарисовано до нас )))
| tuomob писал(а): |
Всё намного проще.
Внизу моих постов много толковой литературы и там есть ответы на все вопросы, обсуждаемые в этой многострадальной теме АВТОРА. |
Для того что бы разделить тему , нужны права админа. У меня их нет.
А что касается литературы, так мы ее тут обсуждаем.. Для того и нужны форумы, что бы обсудить прочитанное, поделиться успехами и неудачами.
|
| Описание: |
|
| Размер файла: |
227.33 КБ |
| Просмотров: |
743 раз(а) |

|
|
|
   |
 |
Шура

Зарегистрирован: Чт 8 Январь 2009, 20:09
Сообщения: 4171
Регион: Москва - Тамбов
|
Добавлено:
Пт 22 Декабрь 2017, 16:30
|
  |
| Vladimir-spb писал(а): |
А там то что рисовать.. там все нарисовано до нас ))) |
Там же нарисованы предполагаемые направления, точнее траектории, движения газов, средние значения.
Прошу пардону, но не могли бы вы, все же, нарисовать стрелочками, на сечениях печи 77х77, в исполнении топливника для дров, направления векторов тяги?
Надеюсь, вы не станете отрицать, что стрелочки обозначающие векторы, должны быть прямолинейные, а не такие которые уже имеются на вашей картинке?
|
|
|
|
   |
 |
stas

Зарегистрирован: Вт 29 Январь 2008, 22:53
Сообщения: 916
Регион: Москва
|
Добавлено:
Пт 22 Декабрь 2017, 17:15
|
  |
| Евгений Колчин писал(а): |
великим достижением стало поступление угара в помещение через задвижку летнего хода
поскольку она расположена в верхней зоне т.н. колпака, где после вытопа печи и закрытия основной задвижки печи образуется повышенное давление под перекрытием колпака
и избавится от этого никак невозможно
Вторым чудом, до которого дошел Кузнецов - прогар в перекрытие колпака первого яруса во второй или можно так сказать - противовзрывной клапан для стравливания СО.
Гениально(!) Байпас по ТРОЛ в действии |
.
Есть правила эксплуатации печей, и их надо соблюдать. Те правила эксплуатации, которые выложили Вы, в значительной степени требуют доработки. Полностью дожигайте топливо. Также Вы забыли (или сознательно умолчали?), что задвижки ставятся либо негерметичные, либо их делают таковыми срезая уголок. Ну, и еще кое-что.
Про прогар от Кузнецова ничего не слышал, не видел где он это писал - может Вы укажете, где в его статьях указано делать прогар? Возможно, Вы воспользовались некорректной информацией третьих лиц. Уточните, пожалуйста, и желательно без "пурги" и "страшилок".
|
|
|
|
    |
 |
Vladimir-spb

Зарегистрирован: Вт 24 Январь 2017, 17:28
Сообщения: 1467
Регион: S-Pb
|
Добавлено:
Пт 22 Декабрь 2017, 17:25
|
  |
| Шура писал(а): |
| Vladimir-spb писал(а): |
А там то что рисовать.. там все нарисовано до нас ))) |
Там же нарисованы предполагаемые направления, точнее траектории, движения газов, средние значения.
Прошу пардону, но не могли бы вы, все же, нарисовать стрелочками, на сечениях печи 77х77, в исполнении топливника для дров, направления векторов тяги?
Надеюсь, вы не станете отрицать, что стрелочки обозначающие векторы, должны быть прямолинейные, а не такие которые уже имеются на вашей картинке? |
Шура... я гляжу вы большой шутник. И тут Подгородников уже сам все для вас нарисовал. Если вы хотите увидеть вектор как прямую стрелку, то в точке, где вы хотите ее увидеть , проведите касательную линию к нарисованной траектории движения газов. Я что то не пойму , что вы хотите увидеть? Если вы хотите видеть направление (вектор) изменения давления, то он нарисовано. Если вы хотите видеть численные значения давления относительно атмосферного, то надо делать эпюры по каналам . Что то я не понимаю ваших хотелок.
|
| Описание: |
|
| Размер файла: |
48.9 КБ |
| Просмотров: |
634 раз(а) |

|
|
|
   |
 |
Шура

Зарегистрирован: Чт 8 Январь 2009, 20:09
Сообщения: 4171
Регион: Москва - Тамбов
|
Добавлено:
Пт 22 Декабрь 2017, 17:51
|
  |
| Vladimir-spb писал(а): |
| . И тут Подгородников уже сам все для вас нарисовал. Если вы хотите увидеть вектор как прямую стрелку, то в точке, где вы хотите ее увидеть , проведите касательную линию к нарисованной траектории движения газов. Я что то не пойму , что вы хотите увидеть? Если вы хотите видеть направление (вектор) изменения давления, то он нарисовал |
Во первых, на вашей картинке печь для угля, а не для дров.
А во вторых, уже имеющиеся криволинейные стрелки не являются векторами тяги, это, как я уже замечал выше, линии предполагаемых траекторий движения ДГ.
Неужели вам это так сложно, просто провести прямые стрелки, в направлении от большего давления к меньшему?
|
|
|
|
   |
 |
Vladimir-spb

Зарегистрирован: Вт 24 Январь 2017, 17:28
Сообщения: 1467
Регион: S-Pb
|
Добавлено:
Пт 22 Декабрь 2017, 18:25
|
  |
| Шура писал(а): |
| Неужели вам это так сложно, просто провести прямые стрелки, в направлении от большего давления к меньшему? |
Газы движутся "от большего давления к меньшему" и направления (а практически вектора) этих потоков нарисованы самим Подгородниковым. Я надеюсь вы не хотие , что бы я обводил вам эти стрелочки )) . Я не понимаю что вы хотите? Или вы что хотите что бы я нарисовал изобары через 50 гр и соединил их короткими векторами? Но это чистый садизм )))
|
|
|
|
   |
 |
Шура

Зарегистрирован: Чт 8 Январь 2009, 20:09
Сообщения: 4171
Регион: Москва - Тамбов
|
Добавлено:
Пт 22 Декабрь 2017, 18:42
|
  |
| Vladimir-spb писал(а): |
Газы движутся "от большего давления к меньшему"...) |
Тогда каким образом газы попадают в колпак, ведь в колпаке давление выше чем в районе подвертки? Или вы считаете что это не так?
Кстати, изобары есть в книгах...
|
| Описание: |
|
| Размер файла: |
66.75 КБ |
| Просмотров: |
633 раз(а) |

|
|
|
   |
 |
Vladimir-spb

Зарегистрирован: Вт 24 Январь 2017, 17:28
Сообщения: 1467
Регион: S-Pb
|
Добавлено:
Пт 22 Декабрь 2017, 21:02
|
  |
| Шура писал(а): |
| Vladimir-spb писал(а): |
Газы движутся "от большего давления к меньшему"...) |
Тогда каким образом газы попадают в колпак, ведь в колпаке давление выше чем в районе подвертки? Или вы считаете что это не так?
|
Еще бы понимать про какой момент времени вы говорите. В самом начале труба не работает и тяги от нее нет, есть только ее сопротивление . С другой стороны колпак холодный и горячие газы поступают в колпак. Все законно .. есть разница температур , есть высота колпака, есть самотяга. По мере прогрева дымовой трубы развивается тяга и давление на подвертке сравнивается с самотягой колпака и начинает шунтировать поток. Далее видим эффект вьюшки. В колпаке горячие газы, самотяга его минимальна, тяга трубы максимальна. Большая часть горячих газов мимо колпака идет в трубу или точнее на второй ярус, где происходят аналогичные процессы..
|
|
|
|
   |
 |
Шура

Зарегистрирован: Чт 8 Январь 2009, 20:09
Сообщения: 4171
Регион: Москва - Тамбов
|
Добавлено:
Пт 22 Декабрь 2017, 21:59
|
  |
| Vladimir-spb писал(а): |
Еще бы пцонимать про какой момент времени вы говорите. |
Про тот же самый, в каком нарисованы стрелки траекторий на картинках выше.
| Vladimir-spb писал(а): |
. По мере прогрева дымовой трубы развивается тяга и давление на подвертке сравнивается с самотягой колпака и начинает шунтировать поток...
В колпаке горячие газы, самотяга его минимальна, тяга трубы максимальна |
Т.е. по вашему, в этот момент вектор тяги направлен вниз, от колосника, через СШ в подвертку? Так следует понимать ваши слова: "давление начинает шунтировать поток"?
| Vladimir-spb писал(а): |
. Большая часть горячих газов мимо колпака идет в трубу или точнее на второй ярус, где происходят аналогичные процессы.. |
Два вопроса:
Большая или бОльшая часть горячих газов идет мимо колпака?
Куда и какая часть холодных газов идет в этот момент времени?
|
|
|
|
   |
 |
Vladimir-spb

Зарегистрирован: Вт 24 Январь 2017, 17:28
Сообщения: 1467
Регион: S-Pb
|
Добавлено:
Пт 22 Декабрь 2017, 22:37
|
  |
| Шура писал(а): |
| Vladimir-spb писал(а): |
Еще бы пцонимать про какой момент времени вы говорите. |
Про тот же самый, в каком нарисованы стрелки траекторий на картинках выше. |
Все вы загадками изъясняетесь.. Такое ощущение , что постоянно думаете что бы что нить лишнего не сказать.))
| Vladimir-spb писал(а): |
. По мере прогрева дымовой трубы развивается тяга и давление на подвертке сравнивается с самотягой колпака и начинает шунтировать поток...
В колпаке горячие газы, самотяга его минимальна, тяга трубы максимальна |
| Шура писал(а): |
Т.е. по вашему, в этот момент вектор тяги направлен вниз, от колосника, через СШ в подвертку? Так следует понимать ваши слова: "давление начинает шунтировать поток"?
|
Вектор имеет начало. Если вы берете началом точку колосник, то вектор тяги естественно вверх. Слова "шунтировать поток" следует понимать прямо, что по мере прогрева колпака и трубы основной поток , который ранее проходил через холодный колпак, начинает проходить по более естественному пути, по низу колпака в подвертку.
| Шура писал(а): |
Два вопроса:
Большая или бОльшая часть горячих газов идет мимо колпака?
Куда и какая часть холодных газов идет в этот момент времени? |
БольшАя часть горячих газов идет мимо колпака. Чем более нагрет колпак, тем больше горячих газов мимо него. Остывающие газы так же вытягиваются давлением трубы на выход. Совсем холодных газов в топке нет.
Шура... вы начали играть в ту же игру , что и Машков. Если что то хотите сказать... так скажите... Подумаем.. обсудим. А так вопрос на вопросе. Я тут уже говорил, что не надо играть в экзаменатора ))
|
|
|
|
   |
 |
tuomob

Зарегистрирован: Пн 26 Сентябрь 2011, 16:45
Сообщения: 2355
Регион: Тула
|
Добавлено:
Пт 22 Декабрь 2017, 22:44
|
  |
| Vladimir-spb писал(а): |
| Шура писал(а): |
| Vladimir-spb писал(а): |
Еще бы пцонимать про какой момент времени вы говорите. |
Про тот же самый, в каком нарисованы стрелки траекторий на картинках выше. |
Все вы загадками изъясняетесь.. Такое ощущение , что постоянно думаете что бы что нить лишнего не сказать.))
| Vladimir-spb писал(а): |
. По мере прогрева дымовой трубы развивается тяга и давление на подвертке сравнивается с самотягой колпака и начинает шунтировать поток...
В колпаке горячие газы, самотяга его минимальна, тяга трубы максимальна |
| Шура писал(а): |
Т.е. по вашему, в этот момент вектор тяги направлен вниз, от колосника, через СШ в подвертку? Так следует понимать ваши слова: "давление начинает шунтировать поток"?
|
Вектор имеет начало. Если вы берете началом точку колосник, то вектор тяги естественно вверх. Слова "шунтировать поток" следует понимать прямо, что по мере прогрева колпака и трубы основной поток , который ранее проходил через холодный колпак, начинает проходить по более естественному пути, по низу колпака в подвертку.
| Шура писал(а): |
Два вопроса:
Большая или бОльшая часть горячих газов идет мимо колпака?
Куда и какая часть холодных газов идет в этот момент времени? |
БольшАя часть горячих газов идет мимо колпака. Чем более нагрет колпак, тем больше горячих газов мимо него. Остывающие газы так же вытягиваются давлением трубы на выход. Совсем холодных газов в топке нет.
Шура... вы начали играть в ту же игру , что и Машков. Если что то хотите сказать... так скажите... Подумаем.. обсудим. А так вопрос на вопросе. Я тут уже говорил, что не надо играть в экзаменатора )) |
Я сожалею о потраченном времени в личных сообщения ТЕБЕ.
Читай литературу...................и не отвлекай УВАЖАЕМЫХ печников своими умозаключениями........
Когда построишь СВОЮ ПЕЧЬ и представишь на форуме, то МЫ, с удовольствием, ПОРАДУЕМСЯ за тебя и выслушаем........твои выводы по эксплуатации......
|
_________________ С Уважением! Юрий. Тула.
ВК https://vk.com/tuomob
За проектами в личку обращайтесь.
|
|
  |
 |
Vladimir-spb

Зарегистрирован: Вт 24 Январь 2017, 17:28
Сообщения: 1467
Регион: S-Pb
|
Добавлено:
Пт 22 Декабрь 2017, 22:51
|
  |
| tuomob писал(а): |
Я сожалею о потраченном времени в личных сообщения ТЕБЕ.
Читай литературу...................и не отвлекай УВАЖАЕМЫХ печников своими умозаключениями........
Когда построишь СВОЮ ПЕЧЬ и представишь на форуме, то МЫ, с удовольствием, ПОРАДУЕМСЯ за тебя и выслушаем........твои выводы по эксплуатации...... |
Эх, Юра... не жалей.. )) А печку я свою конечно построю ))) Но что мне делать... уж позволь я решу сам.
|
|
|
|
   |
 |
tuomob

Зарегистрирован: Пн 26 Сентябрь 2011, 16:45
Сообщения: 2355
Регион: Тула
|
Добавлено:
Пт 22 Декабрь 2017, 22:59
|
  |
| Vladimir-spb писал(а): |
| tuomob писал(а): |
Я сожалею о потраченном времени в личных сообщения ТЕБЕ.
Читай литературу...................и не отвлекай УВАЖАЕМЫХ печников своими умозаключениями........
Когда построишь СВОЮ ПЕЧЬ и представишь на форуме, то МЫ, с удовольствием, ПОРАДУЕМСЯ за тебя и выслушаем........твои выводы по эксплуатации...... |
Эх, Юра... не жалей.. )) А печку я свою конечно построю ))) Но что мне делать... уж позволь я решу сам. |
Поживём-увидим.......................
Форум ВЕЛИК ........ и многим ПОМОГ.
Ты не первый ........ и не последний.............
Успехов ..........
|
_________________ С Уважением! Юрий. Тула.
ВК https://vk.com/tuomob
За проектами в личку обращайтесь.
|
|
  |
 |
Шура

Зарегистрирован: Чт 8 Январь 2009, 20:09
Сообщения: 4171
Регион: Москва - Тамбов
|
Добавлено:
Пт 22 Декабрь 2017, 23:28
|
  |
| Vladimir-spb писал(а): |
Вектор имеет начало. Если вы берете началом точку колосник, то вектор тяги естественно вверх. |
А если топливник подовый, с подачей воздуха через боковые стенки?
Может все таки изобразите графически на картике?
| Vladimir-spb писал(а): |
Слова "шунтировать поток" следует понимать прямо, что по мере прогрева колпака и трубы основной поток , который ранее проходил через холодный колпак, начинает проходить по более естественному пути, по низу колпака в подвертку. |
Под словом "поток", что имеется в виду?
Входящий воздух или пламя?
| Vladimir-spb писал(а): |
БольшАя часть горячих газов идет мимо колпака. Чем более нагрет колпак, тем больше горячих газов мимо него. |
А что же тогда нагревает колпак и даже перегревает перекрышу? Маленькая часть газов что ли?
| Vladimir-spb писал(а): |
Шура... вы начали играть в ту же игру , что и Машков. Если что то хотите сказать... так скажите... Подумаем.. обсудим. А так вопрос на вопросе. Я тут уже говорил, что не надо играть в экзаменатора )) |
Просто вы за последнее время сообщили настолько много всякого странного, что совершенно естественно возникают вопросы.
|
|
|
|
   |
 |
Vladimir-spb

Зарегистрирован: Вт 24 Январь 2017, 17:28
Сообщения: 1467
Регион: S-Pb
|
Добавлено:
Пт 22 Декабрь 2017, 23:55
|
  |
| Шура писал(а): |
| Vladimir-spb писал(а): |
Вектор имеет начало. Если вы берете началом точку колосник, то вектор тяги естественно вверх. |
А если топливник подовый, с подачей воздуха через боковые стенки?
Может все таки изобразите графически на картике?
|
Я вам уже раза три сказал, что поток (вектор) газов идет из исходящего элемента к области низкого давления . Если это щели в боковых стенках то от них, а куда... это зависит от степени прогрева топливника, колпаков и трубы.
| Vladimir-spb писал(а): |
Слова "шунтировать поток" следует понимать прямо, что по мере прогрева колпака и трубы основной поток , который ранее проходил через холодный колпак, начинает проходить по более естественному пути, по низу колпака в подвертку. |
| Шура писал(а): |
Под словом "поток", что имеется в виду?
Входящий воздух или пламя?
|
Шура.... так же раза три я сказал вам что поток неразрывен. На входе воздух , на выходе ДГ. А пламя есть часть потока
| Vladimir-spb писал(а): |
БольшАя часть горячих газов идет мимо колпака. Чем более нагрет колпак, тем больше горячих газов мимо него. |
| Шура писал(а): |
А что же тогда нагревает колпак? Маленькая часть газов что ли? |
Давайте все же применять нормальную терминологию. Вы все время пытаетесь топливлник с колпаком смешать. Если вы про свод топливника, то излучение там явно превалирует в деле нагрева . Если вы про колпак вне топливника, то конечно его нагревают газы.
| Vladimir-spb писал(а): |
Шура... вы начали играть в ту же игру , что и Машков. Если что то хотите сказать... так скажите... Подумаем.. обсудим. А так вопрос на вопросе. Я тут уже говорил, что не надо играть в экзаменатора )) |
| Шура писал(а): |
Просто вы за последнее время сообщили настолько много всякого странного, что совершенно естественно возникают вопросы. |
У меня складывается впечатление, что вы просто "валяете дурака" )))
|
|
|
|
   |
 |
Шура

Зарегистрирован: Чт 8 Январь 2009, 20:09
Сообщения: 4171
Регион: Москва - Тамбов
|
Добавлено:
Сб 23 Декабрь 2017, 09:32
|
  |
]
| Vladimir-spb писал(а): |
Я вам уже раза три сказал, что поток (вектор) газов идет из исходящего элемента к области низкого давления . Если это щели в боковых стенках то от них, а куда... это зависит от степени прогрева топливника, колпаков и трубы |
Т.о. вы утверждаете, что область низкого давления, может располагаться в разных местах печи, в зависимости от прогрева трубы, топливника и колпаков?
Следовательно, вектор тяги так же не имеет постоянного направления, а зависит опять же от степени нагрева разных участков печи?
Я вас правильно понял?
| Vladimir-spb писал(а): |
Шура.... так же раза три я сказал вам что поток неразрывен. На входе воздух , на выходе ДГ. А пламя есть часть потока |
Здесь вы утверждаете что поток неразрывен, а раньше утверждали, что, при определенном прогреве, поток разделяется и часть потока идет в колпак, а другая, большАя часть, идет мимо колпака. Непонятно.
Во тесли бы вы на схеме указали векторы тяги а затем траектории движения газов? Ну скажем, векторы зеленым цветом а траектории движения горячих газов красным. Впрочем, траектории там уже нарисованы, самим автором.
Может вы видели в книге Подгородникова схемы, показывающие траектории движения газов? На одной показан путь горячих газов ао время топки печи, а на другой, путь попадающего в печь холодного воздуха.
Можете на этих схемах показать векторы тяги, если на сечениях сложно.
| Vladimir-spb писал(а): |
Давайте все же применять нормальную терминологию. Вы все время пытаетесь топливлник с колпаком смешать. |
Вобще то у колпаковой печи топливник находится в колпаке, образуя топливник-колпак.
| Vladimir-spb писал(а): |
Если вы про свод топливника, то излучение там явно превалирует в деле нагрева. |
Не факт.
| Vladimir-spb писал(а): |
У меня складывается впечатление, что вы просто "валяете дурака" ))) |
Не больше вашего...
|
|
|
|
   |
 |
Vladimir-spb

Зарегистрирован: Вт 24 Январь 2017, 17:28
Сообщения: 1467
Регион: S-Pb
|
Добавлено:
Сб 23 Декабрь 2017, 18:17
|
  |
| Шура писал(а): |
]
| Vladimir-spb писал(а): |
Я вам уже раза три сказал, что поток (вектор) газов идет из исходящего элемента к области низкого давления . Если это щели в боковых стенках то от них, а куда... это зависит от степени прогрева топливника, колпаков и трубы |
Т.о. вы утверждаете, что область низкого давления, может располагаться в разных местах печи, в зависимости от прогрева трубы, топливника и колпаков?
Следовательно, вектор тяги так же не имеет постоянного направления, а зависит опять же от степени нагрева разных участков печи?
Я вас правильно понял? |
Надеюсь что правильно. Конечно с поправкой на конструкцию.. Т.е. если допустим труба или канал горизонтальные, то вектор горизонтальный.
| Vladimir-spb писал(а): |
Шура.... так же раза три я сказал вам что поток неразрывен. На входе воздух , на выходе ДГ. А пламя есть часть потока |
| Шура писал(а): |
Здесь вы утверждаете что поток неразрывен, а раньше утверждали, что, при определенном прогреве, поток разделяется и часть потока идет в колпак, а другая, большАя часть, идет мимо колпака. Непонятно. |
Это не я утверждаю, это курс физики утверждает.. Шура.. я не верю, что вы взрослый и видимо имеющий образование человек, не можете отличить понятий неразрывности (сплошности) потока и разделения потока .
| Шура писал(а): |
Вот если бы вы на схеме указали векторы тяги а затем траектории движения газов? .....можете на этих схемах показать векторы тяги, если на сечениях сложно. |
Это не сложно.. и раза три вам сказал , что проведя касательную к кривой траекторий, вы получите любой интересующий вас вектор. Но заниматься бессмысленными раскрасками даже печей Подгородникова , откровенно скучно.
| Vladimir-spb писал(а): |
Давайте все же применять нормальную терминологию. Вы все время пытаетесь топливлник с колпаком смешать. |
| Шура писал(а): |
Вобще то у колпаковой печи топливник находится в колпаке, образуя топливник-колпак. |
Опять вы за свое. То что мы обсуждаем это топливник и опускные каналы. Термины Кузнецова не корректны.
| Vladimir-spb писал(а): |
Если вы про свод топливника, то излучение там явно превалирует в деле нагрева. |
Хорошо уточною. Части топки находящиеся на близком расстоянии от очага горения нагреваются преимущественно излучением. На большем удалении, например настил или свод, нагреваются комбинировано. Каналы и колпаки в основном горячими газами.
| Vladimir-spb писал(а): |
У меня складывается впечатление, что вы просто "валяете дурака" ))) |
| Шура писал(а): |
Не больше вашего...  |
Шура... давайте так. Если у вас есть желание конструктивно обсуждать технические проблемы , спорить или наоборот соглашаться с тем или иным утверждением., то разговор имеет интерес. Если же вы намерены ходить кругами, не высказывая своих мыслей, то я не вижу смысла отвечать по три раза на одни и те же вопросы.
|
|
|
|
   |
 |
|
|
|
Следующая тема
Предыдущая тема
Вы не можете начинать темы Вы не можете отвечать на сообщения Вы не можете редактировать свои сообщения Вы не можете удалять свои сообщения Вы не можете голосовать в опросах Вы не можете добавлять приложения в этом форуме Вы можете скачивать файлы в этом форуме
|
|