Некоммерческое партнерство Альянс Печных Дел Мастера
 RSS  • FAQ  •  Поиск  •  Пользователи  •  Группы   •  Регистрация   •  Избранные темы   •  Профиль  •  Войти и проверить личные сообщения  •  Чат  •  Вход





 Подскажите по врезке ревизионной дверцы в дымоход Следующая тема
Предыдущая тема
Начать новую темуОтветить на тему
Автор Сообщение
Alex1205



Зарегистрирован: Ср 4 Апрель 2018, 23:09
Сообщения: 1
Регион: Москва

СообщениеДобавлено: Ср 4 Апрель 2018, 23:21 Ответить с цитатойВернуться к началу

День добрый.
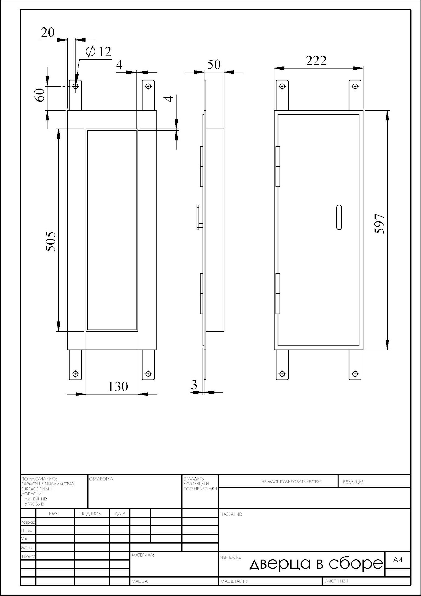
Нужен совет. Планируется врезать прочистную дверцу (высокую, на 7 рядов) для прочистки дымохода, как на эскизе. Место установки дверцы — 2 этаж двухэтажного дома. Труба в 4 кирпича как на эскизе, без гильзы. Сложена на раствор на основе шамотной глины. На первом этаже подключена печь буржуйка синель. Дверца нужна для прочистки самодельным составным ершом без выхода на крышу. Вопрос такой, насколько дверца ослабит трубу? Не развалится ли кладка если аккуратно прорезать окно под дверцу болгаркой диском по камню? Не развалится ли потом при эксплуатации? Стоит ли усилить дымоход в районе дверцы (стянуть хомутами и т.д.)?
Планирую ставить дверцу на термостойкую мастику + заанкерить за "уши". Саму дверцу буду заказывать там где буржуйки варят на заказ.
Спасибо!
Ерш планируется с разборной ручкой из полипропиленовых труб, сборный на резьбе. Чтобы наращивать легко было и чистить всю высоту дымохода.



310f6eds-1920.jpg
 Описание:
эскиз дверцы
 Размер файла:  231.89 КБ
 Просмотров:  728 раз(а)

310f6eds-1920.jpg



740f6eds-1920.jpg
 Описание:
дымоход с дверцей
 Размер файла:  291.83 КБ
 Просмотров:  674 раз(а)

740f6eds-1920.jpg


Посмотреть профильОтправить личное сообщение
Показать сообщения:      
Начать новую темуОтветить на тему


 Перейти:   



Следующая тема
Предыдущая тема
Вы не можете начинать темы
Вы не можете отвечать на сообщения
Вы не можете редактировать свои сообщения
Вы не можете удалять свои сообщения
Вы не можете голосовать в опросах
Вы не можете добавлять приложения в этом форуме
Вы можете скачивать файлы в этом форуме




Проект форум печников "Альянс. Печных Дел Мастера" © 2006-2026