 |
|
 |
| Автор |
Сообщение
|
Gorin
Зарегистрирован: Чт 15 Декабрь 2016, 16:32
Сообщения: 2
Регион: санкт-петербург
|
Добавлено:
Пт 16 Декабрь 2016, 11:19
|
  |
Добрый день.
В наличии дом бревно 32. размер 8,3х10х3. 5-стенок. фундамент монолитная плита с усилением под печь размером 2100х1600.
Хочу русскую печь с плитой.
Место ленинградская область волховский район. План начало работ по печи апрель.
|
|
|
|
  |
 |
Александр Володин

Зарегистрирован: Вт 28 Июнь 2011, 00:40
Сообщения: 791
Регион: Нижегородская обл.
|
Добавлено:
Вс 18 Декабрь 2016, 08:37
|
  |
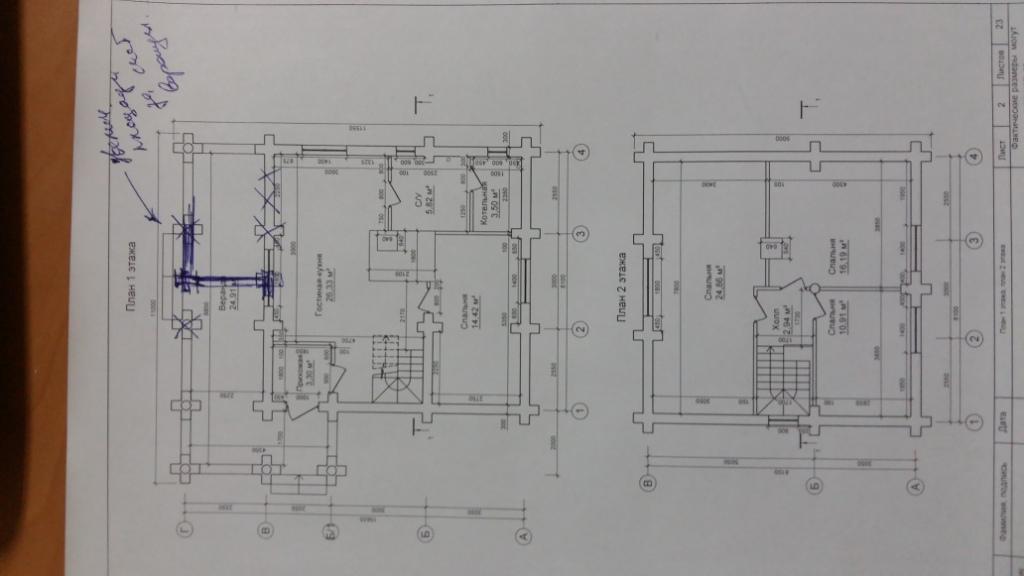
Дом не маленький. Если он будет отапливаться весь, а отопление будет только печное, то, возможно, одной печи будет недостаточно. Но многое зависит от планировки, вы бы хоть план дома выложили.
|
|
|
|
    |
 |
Gorin
Зарегистрирован: Чт 15 Декабрь 2016, 16:32
Сообщения: 2
Регион: санкт-петербург
|
Добавлено:
Пн 19 Декабрь 2016, 10:16
|
  |
план старый. в процессе строительства были внесены изменения. котельная обозначена условно. сам котел вынесу за территорию дома. пока мысль такая. рубится для нее отдельное помещение.
|
| Описание: |
|
| Размер файла: |
58.75 КБ |
| Просмотров: |
611 раз(а) |

|
|
|
  |
 |
Андрей ..

Зарегистрирован: Ср 16 Ноябрь 2011, 07:49
Сообщения: 1175
Регион: Нижегородская обл.
|
Добавлено:
Пн 19 Декабрь 2016, 21:57
|
  |
На первом этаже печь вписывается неплохо...В С.У. ташкент будет...
|
|
|
|
    |
 |
Александр Володин

Зарегистрирован: Вт 28 Июнь 2011, 00:40
Сообщения: 791
Регион: Нижегородская обл.
|
Добавлено:
Пн 19 Декабрь 2016, 22:25
|
  |
|
    |
 |
|
|
|
Следующая тема
Предыдущая тема
Вы не можете начинать темы Вы не можете отвечать на сообщения Вы не можете редактировать свои сообщения Вы не можете удалять свои сообщения Вы не можете голосовать в опросах Вы не можете добавлять приложения в этом форуме Вы можете скачивать файлы в этом форуме
|
|