| Автор |
Сообщение
|
sergejmalygin

Зарегистрирован: Чт 21 Октябрь 2010, 19:57
Сообщения: 24
Регион: Иваново
|
Добавлено:
Сб 25 Март 2017, 15:06
|
  |
Уважаемые,может кто найдет время , подскажите как лучше расположить русскую печь ,канал уже в стене,заказчица просит с плитой и не очень большой лежанкой.
|
| Описание: |
|
| Размер файла: |
45.32 КБ |
| Просмотров: |
770 раз(а) |

|
|
|
   |
 |
sergejmalygin

Зарегистрирован: Чт 21 Октябрь 2010, 19:57
Сообщения: 24
Регион: Иваново
|
Добавлено:
Сб 25 Март 2017, 15:08
|
  |
Почему то нет расширения на SketchUp ?
Планировка только в 2D
|
|
|
|
   |
 |
sergejmalygin

Зарегистрирован: Чт 21 Октябрь 2010, 19:57
Сообщения: 24
Регион: Иваново
|
Добавлено:
Сб 25 Март 2017, 15:12
|
  |
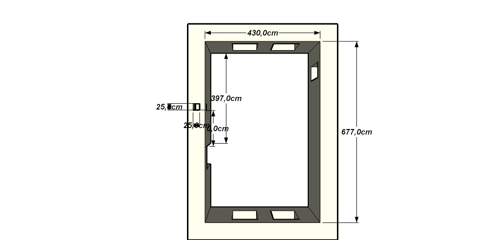
Вот ещо
|
| Описание: |
|
| Размер файла: |
129.31 КБ |
| Просмотров: |
782 раз(а) |

|
|
|
   |
 |
|
|
|
Следующая тема
Предыдущая тема
Вы не можете начинать темы Вы не можете отвечать на сообщения Вы не можете редактировать свои сообщения Вы не можете удалять свои сообщения Вы не можете голосовать в опросах Вы не можете добавлять приложения в этом форуме Вы можете скачивать файлы в этом форуме
|
|