 |
|
 |
| Автор |
Сообщение
|
TolYan
Зарегистрирован: Ср 16 Декабрь 2020, 22:45
Сообщения: 4
Регион: Penza
|
Добавлено:
Чт 17 Декабрь 2020, 02:02
|
  |
Доброго времени суток уважаемые форумовчане.
Прошу помочь . указать на ошибки в проекте.
Т.к. не имею опыта в построении печей.
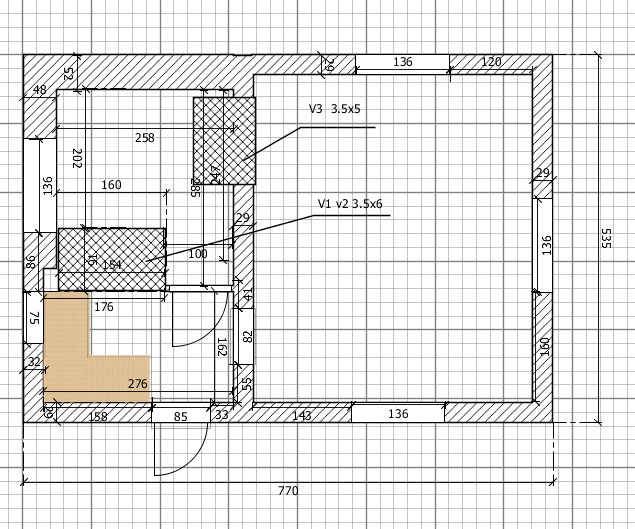
Дом кирпичный, предпологается утеплить для зимнего пребывания на выходных, в дальнеейшем возможно ПМЖ. (площадь 40-50 кв)
Основная идея Печи
Уличный воздух по вентиляционным каналам подается в дом предварительно подогретый печью
Печь подовая забор воздуха в топку из подпола и из подвала
На всякий случай предусматриваю теплообменник в колпаках печи для водяного отопления
есть 2 варианта размещения печи и соответственно варианты по конструкции.
Вопросы по конструкции
1 воздуховод металлический и теплообменник не будут ли перегреваться в 1 колпаке?
2 Теплообменник может во 2й колпак?
3 каналы 140х270 или 140х140 достаточно при высоте от пола 2м до верхней части 2го колпака
4 нужно ли укрепить шамотное ядро металич каркасом? уголки по периметру?
5 изначально мои женьщины попросили сделать печь с варочной поверхностью но как то не удалось совместить камеру дожига и варочную.Получается высоко и встает вопрос о большой утечке тепла из камеры дожига через варочную. Правильно ли я понимаю что камера дожига роботать не будет если перекрыть ее варочной плитой?
6 Сделал сухой шов изначально под хайлом, но потом перенес его подальше от подвертки с каналом уходящим во 2йколпак. Правильное ли это решение? как понимаю такое решение создаст дополнительную тягу внутрь топки через этот шов а не на оборот .
7 колпаки не слишком ли большие?
8 по центру колпака вывожу столб через оба колпака нужно ли при перекрытии колпака на эти столбы базальт или каолиновую не будет ли на них большее расширение вверх чем на стенках кпечи
|
| Описание: |
|
| Размер файла: |
34.49 КБ |
| Просмотров: |
258 раз(а) |

|
| Описание: |
|
 Скачать |
| Название файла: |
v2 3.5x6.zip |
| Размер файла: |
738.02 КБ |
| Скачено: |
278 раз(а) |
|
|
  |
 |
tuomob

Зарегистрирован: Пн 26 Сентябрь 2011, 16:45
Сообщения: 2371
Регион: Тула
|
Добавлено:
Чт 17 Декабрь 2020, 09:27
|
  |
| TolYan писал(а): |
Вопросы по конструкции
1 воздуховод металлический и теплообменник не будут ли перегреваться в 1 колпаке?
2 Теплообменник может во 2й колпак?
3 каналы 140х270 или 140х140 достаточно при высоте от пола 2м до верхней части 2го колпака
4 нужно ли укрепить шамотное ядро металич каркасом? уголки по периметру?
5 изначально мои женьщины попросили сделать печь с варочной поверхностью но как то не удалось совместить камеру дожига и варочную.Получается высоко и встает вопрос о большой утечке тепла из камеры дожига через варочную. Правильно ли я понимаю что камера дожига роботать не будет если перекрыть ее варочной плитой?
6 Сделал сухой шов изначально под хайлом, но потом перенес его подальше от подвертки с каналом уходящим во 2йколпак. Правильное ли это решение? как понимаю такое решение создаст дополнительную тягу внутрь топки через этот шов а не на оборот .
7 колпаки не слишком ли большие?
8 по центру колпака вывожу столб через оба колпака нужно ли при перекрытии колпака на эти столбы базальт или каолиновую не будет ли на них большее расширение вверх чем на стенках кпечи |
Слишком вольное трактование построения кирпичной печи.
Не хватит воздуха через "щель". Подогревать воздух излишне.
1. Металлический воздуховод будет зарастать сажей. Не нужен он в печи.
2. Он и здесь будет неэффективен.
6. Убирайте сухой шов. Есть вещь проще и проверенней - прогар.
Вам лучше "подумать" Каминопечь" с дверкой побольше (ДТГ-8).
Посмотрите проект в теме: https://forum.stovemaster.ru/viewtopic.php?t=12016
|
_________________ С Уважением! Юрий. Тула.
ВК https://vk.com/tuomob
За проектами в личку обращайтесь.
|
|
  |
 |
TolYan
Зарегистрирован: Ср 16 Декабрь 2020, 22:45
Сообщения: 4
Регион: Penza
|
Добавлено:
Чт 17 Декабрь 2020, 21:20
|
  |
| tuomob писал(а): |
| TolYan писал(а): |
Вопросы по конструкции
1 воздуховод металлический и теплообменник не будут ли перегреваться в 1 колпаке?
2 Теплообменник может во 2й колпак?
3 каналы 140х270 или 140х140 достаточно при высоте от пола 2м до верхней части 2го колпака
4 нужно ли укрепить шамотное ядро металич каркасом? уголки по периметру?
5 изначально мои женьщины попросили сделать печь с варочной поверхностью но как то не удалось совместить камеру дожига и варочную.Получается высоко и встает вопрос о большой утечке тепла из камеры дожига через варочную. Правильно ли я понимаю что камера дожига роботать не будет если перекрыть ее варочной плитой?
6 Сделал сухой шов изначально под хайлом, но потом перенес его подальше от подвертки с каналом уходящим во 2йколпак. Правильное ли это решение? как понимаю такое решение создаст дополнительную тягу внутрь топки через этот шов а не на оборот .
7 колпаки не слишком ли большие?
8 по центру колпака вывожу столб через оба колпака нужно ли при перекрытии колпака на эти столбы базальт или каолиновую не будет ли на них большее расширение вверх чем на стенках кпечи |
Слишком вольное трактование построения кирпичной печи.
Не хватит воздуха через "щель". Подогревать воздух излишне.
1. Металлический воздуховод будет зарастать сажей. Не нужен он в печи.
2. Он и здесь будет неэффективен.
6. Убирайте сухой шов. Есть вещь проще и проверенней - прогар.
Вам лучше "подумать" Каминопечь" с дверкой побольше (ДТГ-8).
Посмотрите проект в теме: https://forum.stovemaster.ru/viewtopic.php?t=12016 |
Спасибо за подсказки посмотрел вашу печь в теме, Реализация понравилась,Подумаю в этом направлении.Усвоил на примере этой печи некоторые моменты, о которых ранее не задумывался
1 про сажу понял - исправлю. Hо по опыту с протопкой печей в детстве помню что холодно в доме даже с хорошо протопленной печью, если нет подачи в дом подогретого воздуха, то в дом сосет ледяной воздух с улицы через все щели.
2 Теплообменник зарастать будет сажей это я понял, но разве он не будет в достаточнй мере нагреваться? Я предпологал что в 1 колпаке он будет перегреваться слишком сильно. Почему он не будет Эффективен? От него можно будет отказаться если печь удастся разместить между комнатами, иначе как я думаю большую комнату без него не прогреть.
6 с прогарами тоже понял (СШ в моем случае ослабляет конструкцию а эффект прогарами достигается похожий)
Буду благодарен если кто то еще выскажет свое мнение об ошибках в проекте.
|
_________________ Каждый творит свой мир сам
|
|
  |
 |
vladimir-krestyanin

Зарегистрирован: Сб 4 Май 2013, 17:38
Сообщения: 796
Регион: санкт-петербург
|
Добавлено:
Чт 17 Декабрь 2020, 23:28
|
  |
Какова толщина стен,как собираетесь утеплять? Как утеплен чердак,то же про цоколь? ?есть ли второй этаж или мансарда?
Есть ли тамбур? Площадь остекления? количество, размер,расположение окон?двойные или одинарные стеклопакеты?
"Теплый "ли монтаж окон и дверей?
Место расположения печи в доме?
Считали ли теплопотери дома,в калькуляторе?
Эти вопросы перед постройкой и проектированем печи.
|
_________________ Ну что, Данила-мастер,не выходит каменный цветок?
печи,камины,барбекю,проекты.
8 931 303 07 37
|
|
   |
 |
TolYan
Зарегистрирован: Ср 16 Декабрь 2020, 22:45
Сообщения: 4
Регион: Penza
|
Добавлено:
Пт 18 Декабрь 2020, 02:08
|
  |
| vladimir-krestyanin писал(а): |
Какова толщина стен,как собираетесь утеплять? Как утеплен чердак,то же про цоколь? ?есть ли второй этаж или мансарда?
Есть ли тамбур? Площадь остекления? количество, размер,расположение окон?двойные или одинарные стеклопакеты?
"Теплый "ли монтаж окон и дверей?
Место расположения печи в доме?
Считали ли теплопотери дома,в калькуляторе?
Эти вопросы перед постройкой и проектированем печи. |
Все эти вопросы рассматриваю
В чертеже есть план дома на данный момент дом не утеплен
стены кирпич30см(кое где 50см) чердак холодный засыпка слежавшимися опилками 10-25см
подпол 40см (чтото там тоже засыпано), подвал полноценный Окна деревянные 4шт140х140 1шт 70х140 стоит печка 3х3 до -5 можно еще пользоваться но комфорта уже нет
Предпологается цоколь утеплить пенополистиролом стены вентилируемый фасад например 20см минваты окна на 2х или 3хслойный стеклопакет опилки на чердаке заменить чедак как летняя мансарда.
Утепление рассматриваю чтоб общая толщина стены и утеплителя были нак эквивалент стены кирпич 1м. Если этого недостаточно но сколько для центральной полосы морозы до -35
с тамбуром сложнее, по факту его нет возможности полноценно сделать но делать придется, даже просто без ПМЖ без него ни куда
Все это предполагается сделать не за раз, но прежде чем делать чтото делаю наброски проекта.
место расположения печи на плане 2 варианта
Оптимальный чтоб не мешалась печь между прихожей и малой комнатой, но тогда теплообменники и водяное отопление в большую комнату . от печи делать.
Второй вариант между большой и малой комнатой, тогда можно печь поменьше и теплообменники если только для горячей воды
Можно по центру между 3мя помещениями но трубу не хотелось бы по центру мансарды пускать
Про калькулятор не подумал, считал в уме как по опыту сколько что утеплять, теперь думаю пересмотрю пару моментов рассматривал печи до 5-6 кв
нашел в сети калькулятор посчитал неутепленный теплопотери самые оптимистичные 20кв при утеплении например 7кв
так понимаю печь нужна тоже на 7кв либо утепление улучшать
|
_________________ Каждый творит свой мир сам
| Описание: |
|
| Размер файла: |
117.61 КБ |
| Просмотров: |
232 раз(а) |

|
|
|
  |
 |
vladimir-krestyanin

Зарегистрирован: Сб 4 Май 2013, 17:38
Сообщения: 796
Регион: санкт-петербург
|
Добавлено:
Пт 18 Декабрь 2020, 08:27
|
  |
Вот ваш канал,в нем же Вам совет,какую печь ставить в доме с подвалом.изучайте. удачи.
https://youtu.be/eM9YLBr1oZ0
https://youtu.be/tR2aQYxJ_IY
|
_________________ Ну что, Данила-мастер,не выходит каменный цветок?
печи,камины,барбекю,проекты.
8 931 303 07 37
Последний раз редактировалось: vladimir-krestyanin (Пт 18 Декабрь 2020, 09:11), всего редактировалось 1 раз |
|
   |
 |
tuomob

Зарегистрирован: Пн 26 Сентябрь 2011, 16:45
Сообщения: 2371
Регион: Тула
|
Добавлено:
Пт 18 Декабрь 2020, 09:02
|
  |
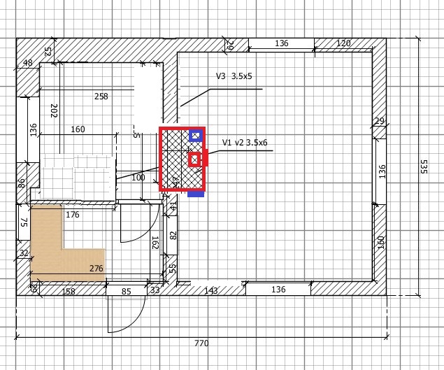
| TolYan писал(а): |
От него можно будет отказаться если печь удастся разместить между комнатами |
Подумайте вот так (на Вашем плане)
Симметричная каминопечь. Дверка ДТГ8. Красным топочная и труба на плане.
Размер печи 4,5-3,5 хватит. Верхняя часть 4,5-3.
Полочка образуется.
Посмотрите в теме проект для примера.
https://forum.stovemaster.ru/viewtopic.php?t=12084
Можно топочную дверку снизу-справа. Дверку ДТ4 со стеклом.
Тогда получится несимметричная как на фото ниже.
Синим топочная и труба на плане.
От "теплообменника" лучше отказаться совсем.
В данном плане он не нужен.
|
_________________ С Уважением! Юрий. Тула.
ВК https://vk.com/tuomob
За проектами в личку обращайтесь.
| Описание: |
|
| Размер файла: |
509.87 КБ |
| Просмотров: |
221 раз(а) |

|
| Описание: |
|
| Размер файла: |
252.59 КБ |
| Просмотров: |
209 раз(а) |

|
| Описание: |
|
| Размер файла: |
140.59 КБ |
| Просмотров: |
194 раз(а) |

|
|
|
  |
 |
TolYan
Зарегистрирован: Ср 16 Декабрь 2020, 22:45
Сообщения: 4
Регион: Penza
|
Добавлено:
Сб 19 Декабрь 2020, 22:15
|
  |
Благодарю за советы, решил пересмотреть подход к решению задачи.Осмотрел еще раз конструкционные особенности дома. Надо проработать детальнее на возможность реализации.
|
_________________ Каждый творит свой мир сам
|
|
  |
 |
|
|
|
Следующая тема
Предыдущая тема
Вы не можете начинать темы Вы не можете отвечать на сообщения Вы не можете редактировать свои сообщения Вы не можете удалять свои сообщения Вы не можете голосовать в опросах Вы не можете добавлять приложения в этом форуме Вы можете скачивать файлы в этом форуме
|
|