 |
|
 |
| Автор |
Сообщение
|
Евгений Колчин

Зарегистрирован: Чт 3 Октябрь 2002, 06:26
Сообщения: 10146
Регион: Москва
|
Добавлено:
Вт 22 Февраль 2022, 19:50
|
  |
ГОСТ 33016-2014(EN 303-5:2012)
КОТЛЫ ОТОПИТЕЛЬНЫЕ ДЛЯ ТВЕРДОГО ТОПЛИВА С РУЧНОЙ И АВТОМАТИЧЕСКОЙ ЗАГРУЗКОЙ НОМИНАЛЬНОЙ ТЕПЛОВОЙ МОЩНОСТЬЮ ДО 500 кВт
Терминология, требования, методы испытаний и маркировка.
Настоящий стандарт распространяется на котлы отопительные номинальной теплопроизводительностью до 500 кВт, предназначенные для сжигания твердого топлива, с естественной или принудительной подачей воздуха на горение, ручной или автоматической загрузкой топлива.
Настоящий стандарт определяет терминологию, конструктивные и эксплуатационные требования, требования по безопасности и качеству сгорания, методы испытаний, требования к маркировке и техническому обслуживанию отопительных котлов, работающих на твердом топливе.
Настоящий стандарт распространяется на отопительные котлы, предназначенные для систем центрального отопления, в которых теплоносителем является вода с максимально допустимой температурой 110°С, и максимально допустимым давлением 0,6 МПа.
Настоящий стандарт распространяется на отопительные котлы со встроенным или пристроенным водонагревателем (емкостным или проточным) для горячего водоснабжения, но только на отопительную часть котла.
Настоящий стандарт не распространяется:
- на отопительные котлы и другие нагревательные приборы, которые рассчитаны на прямой обогрев помещения, в котором установлен котел;
- приборы для приготовления пищи;
- топливные бункеры, автоматические конвейерные системы для подачи топлива в топку и предохранительные устройства отопительного котла.
Текст стандарта
|
_________________ ************************************
| Описание: |
|
| Размер файла: |
118.77 КБ |
| Просмотров: |
132 раз(а) |

|
|
|
      |
 |
Селиван Виктор
Проектировщик

Зарегистрирован: Сб 2 Январь 2010, 14:33
Сообщения: 6706
Регион: г.Челябинск
|
Добавлено:
Ср 23 Февраль 2022, 10:29
|
  |
Интересно а на кустарные котлы с регистром в колпаке или в топке в кирпичном корпусе есть какие то нормативы? Думаю нет. А их же строят и рекламируют. Законно? Думаю нет. Сделал несколько запросов в Яндексе -ответ не найдено по словам -ГОСТ печи с регистрами.котлами, кирпичные,
|
_________________ Я за здоровую конкуренцию в печном деле и за работу во благо потребителям услуг печника.Тел. +79507468555
|
|
     |
 |
Андрей_Алексеевич

Зарегистрирован: Пн 13 Декабрь 2010, 19:17
Сообщения: 5969
Регион: малая родина Павлова, Скобелева, Циолковского, Уткиных и др.
|
Добавлено:
Ср 23 Февраль 2022, 12:11
|
  |
| Селиван Виктор писал(а): |
| Интересно а на кустарные котлы с регистром в колпаке или в топке в кирпичном корпусе есть какие то нормативы? Думаю нет. А их же строят и рекламируют. Законно? Думаю нет. Сделал несколько запросов в Яндексе -ответ не найдено по словам -ГОСТ печи с регистрами.котлами, кирпичные, |
Из пропущенного... прямая цитата:
"... Настоящий стандарт НЕ РАСПРОСТРАНЯЕТСЯ:
- на отопительные котлы и другие нагревательные приборы, которые рассчитаны на прямой обогрев помещения, в котором установлен котел;
- приборы для приготовления пищи...."
Разве, что - вовсе запретят "самоварничество"...
Но в истории России подобное не припоминается..., разве, что, только - в отношении вооружения, ВВ, ОВ, наркоты и дензнаков с прочими изделиями ГосЗнака...
|
_________________ Печник - милостью и промыслом Божиим.
Печное отопление частного дома и т.п., авторское сопровождение проектов, наставничество в т.ч. дистанционное, партнёрство в кладке печей.
89106130763 МТС
andrejka61@mail.ru
andrej.kuzmischev@yandex.ru
|
|
   |
 |
Селиван Виктор
Проектировщик

Зарегистрирован: Сб 2 Январь 2010, 14:33
Сообщения: 6706
Регион: г.Челябинск
|
Добавлено:
Ср 23 Февраль 2022, 12:49
|
  |
| Андрей_Алексеевич писал(а): |
Из пропущенного... прямая цитата:
"... Настоящий стандарт НЕ РАСПРОСТРАНЯЕТСЯ:
- на отопительные котлы и другие нагревательные приборы, которые рассчитаны на прямой обогрев помещения, в котором установлен котел;
- приборы для приготовления пищи...."
|
Супер. Не изучил текст. Кустарные опасные и взрывоопасны. А если они находятся в жилых помещениях -это опасно для здоровья. Но адэпты из известной секты -активно пиарят такие котлы. Если что случится -это уже и уголовная ответственность может быть. Что опасно для людей -должно запрещено. А раз нет нормативов -значит такие очаги с самопальными регистрами внутри -вне закона.
|
_________________ Я за здоровую конкуренцию в печном деле и за работу во благо потребителям услуг печника.Тел. +79507468555
|
|
     |
 |
Vad
Зарегистрирован: Вт 7 Декабрь 2021, 10:41
Сообщения: 2888
Регион: Беларусь
|
Добавлено:
Ср 23 Февраль 2022, 13:21
|
  |
Однако кирпичные очаги с водяными регистрами внутри во времена СССР были вполне законны.
И проектировались они, и рекомендовались вполне официально для жилых помещений - и для самостоятельной постройки тоже.
А вот котлы стальные или чугунные - уже только в отдельные котельные помещения, да...
|
|
|
|
  |
 |
Селиван Виктор
Проектировщик

Зарегистрирован: Сб 2 Январь 2010, 14:33
Сообщения: 6706
Регион: г.Челябинск
|
Добавлено:
Ср 23 Февраль 2022, 15:07
|
  |
| Vad писал(а): |
Однако кирпичные очаги с водяными регистрами внутри во времена СССР были вполне законны.
И проектировались они, и рекомендовались вполне официально для жилых помещений - и для самостоятельной постройки тоже.
А вот котлы стальные или чугунные - уже только в отдельные котельные помещения, да... |
Покажите хоть один официальный проект и норматив советского периода? Где официальные законные рекомендации ? В студию пожалуйста
Яндекс говорит не найдено.https://yandex.ru/search/?text=проект+печи+с+регистром+по+госту&lr=56&src=suggest_Pers
|
_________________ Я за здоровую конкуренцию в печном деле и за работу во благо потребителям услуг печника.Тел. +79507468555
|
|
     |
 |
Евгений Колчин

Зарегистрирован: Чт 3 Октябрь 2002, 06:26
Сообщения: 10146
Регион: Москва
|
Добавлено:
Ср 23 Февраль 2022, 15:23
|
  |
|
      |
 |
Селиван Виктор
Проектировщик

Зарегистрирован: Сб 2 Январь 2010, 14:33
Сообщения: 6706
Регион: г.Челябинск
|
Добавлено:
Ср 23 Февраль 2022, 15:39
|
  |
Вот именно -о кустарных(ремесленных) в стандарте не упоминается.
|
_________________ Я за здоровую конкуренцию в печном деле и за работу во благо потребителям услуг печника.Тел. +79507468555
|
|
     |
 |
Евгений Колчин

Зарегистрирован: Чт 3 Октябрь 2002, 06:26
Сообщения: 10146
Регион: Москва
|
Добавлено:
Ср 23 Февраль 2022, 16:26
|
  |
| Селиван Виктор писал(а): |
| Вот именно -о кустарных(ремесленных) в стандарте не упоминается. |
"Настоящий стандарт не распространяется на котлы номинальной теплопроизводительностью менее 5 кВт, предназначенные для отопления или нагрева воды для бытовых нужд."
|
_________________ ************************************
|
|
      |
 |
Vad
Зарегистрирован: Вт 7 Декабрь 2021, 10:41
Сообщения: 2888
Регион: Беларусь
|
Добавлено:
Ср 23 Февраль 2022, 16:45
|
  |
| Селиван Виктор писал(а): |
| Покажите хоть один официальный проект и норматив советского периода? Где официальные законные рекомендации ? В студию пожалуйста. |
Да почти в каждой советской книжке соотв. профиля можно найти не один такой проект.
И чугунный радиатор в кирпиче оттуда, и сварные (непонятно из чего и как))) змеевики, и коробчатые ТО из листовой чернухи - в кухонных плитах.
И занимались такими проектами (вполне официально) очень известные инженеры вроде Хлудова. И его система прошла официальные испытания, и рекомендовалась в книжках и для самостоятельной сварки, и для самостоятельной кладки.)
Как, собственно, и всю систему водяного отопления в целом разрешалось варить, настраивать и пускать самостоятельно от и до.
|
| Описание: |
|
| Размер файла: |
195.93 КБ |
| Просмотров: |
144 раз(а) |

|
|
|
  |
 |
Селиван Виктор
Проектировщик

Зарегистрирован: Сб 2 Январь 2010, 14:33
Сообщения: 6706
Регион: г.Челябинск
|
Добавлено:
Ср 23 Февраль 2022, 17:46
|
  |
| Vad писал(а): |
| Селиван Виктор писал(а): |
| Покажите хоть один официальный проект и норматив советского периода? Где официальные законные рекомендации ? В студию пожалуйста. |
Да почти в каждой советской книжке соотв. профиля можно найти не один такой проект.
И чугунный радиатор в кирпиче оттуда, и сварные (непонятно из чего и как))) змеевики, и коробчатые ТО из листовой чернухи - в кухонных плитах.
И занимались такими проектами (вполне официально) очень известные инженеры вроде Хлудова. И его система прошла официальные испытания, и рекомендовалась в книжках и для самостоятельной сварки, и для самостоятельной кладки.)
Как, собственно, и всю систему водяного отопления в целом разрешалось варить, настраивать и пускать самостоятельно от и до. |
Именно в книжках -а не в нормативах. Покажите советские нормативы. А в книжках чего угодно можно написать -их что рецензировали? В 80 -х когда государство вожжи отпустило -много всяких кулибиных изобретателей появилось -пишущих статьи в журналы, книги писали и что ? А где нормативы? Я тоже в начале нулевых издал книгу -никто её не рецензировал не проверял достоверность информации -лишь проверяли -что бы не было плагиата.
|
_________________ Я за здоровую конкуренцию в печном деле и за работу во благо потребителям услуг печника.Тел. +79507468555
|
|
     |
 |
Селиван Виктор
Проектировщик

Зарегистрирован: Сб 2 Январь 2010, 14:33
Сообщения: 6706
Регион: г.Челябинск
|
Добавлено:
Ср 23 Февраль 2022, 17:51
|
  |
| Vad писал(а): |
| Селиван Виктор писал(а): |
| Покажите хоть один официальный проект и норматив советского периода? Где официальные законные рекомендации ? В студию пожалуйста. |
Да почти в каждой советской книжке соотв. профиля можно найти не один такой проект.
И чугунный радиатор в кирпиче оттуда, и сварные (непонятно из чего и как))) змеевики, и коробчатые ТО из листовой чернухи - в кухонных плитах.
И занимались такими проектами (вполне официально) очень известные инженеры вроде Хлудова. И его система прошла официальные испытания, и рекомендовалась в книжках и для самостоятельной сварки, и для самостоятельной кладки.)
Как, собственно, и всю систему водяного отопления в целом разрешалось варить, настраивать и пускать самостоятельно от и до. |
Кстати -на картинке -это сажегонный комбайн -а не технически грамотная печь. Где нормативы того периода? Я в начале печной карьеры -когда ещё мало разбирался в печах -но зная основы физики и теплотехники -негативно относился к таким конструкциям -с кучей металла в печи. Посмотреть проекты в книгах 80-х гг -там даже в порядовках каналы перекрыты металлическими уголками. Всякие бачки и духовки встроены в печи. Технически неграмотные печеклады до сих пор это бредовые проекты применяют на практике.
|
_________________ Я за здоровую конкуренцию в печном деле и за работу во благо потребителям услуг печника.Тел. +79507468555
|
|
     |
 |
Vad
Зарегистрирован: Вт 7 Декабрь 2021, 10:41
Сообщения: 2888
Регион: Беларусь
|
Добавлено:
Ср 23 Февраль 2022, 18:03
|
  |
Я ведь не утверждаю, что эти конструкции хороши.)
Но то, что они строились по официальным проектам самостоятельно и совершенно легально - факт.
И нет, в советских книжках никогда не рекомендовалось того, что было запрещено, такое стало возможным только в постсоветских текстах...)
|
|
|
|
  |
 |
Селиван Виктор
Проектировщик

Зарегистрирован: Сб 2 Январь 2010, 14:33
Сообщения: 6706
Регион: г.Челябинск
|
Добавлено:
Ср 23 Февраль 2022, 18:17
|
  |
| Vad писал(а): |
Я ведь не утверждаю, что эти конструкции хороши.)
Но то, что они строились по официальным проектам самостоятельно и совершенно легально - факт.
И нет, в советских книжках никогда не рекомендовалось того, что было запрещено, такое стало возможным только в постсоветских текстах...) |
Да всё было и самое бредовое -в 80 -х годах наповылазило "умников" Кулибиных. Я начал печами заниматься в эти годы -и начитался и насмотрелся книг от "умников".
|
_________________ Я за здоровую конкуренцию в печном деле и за работу во благо потребителям услуг печника.Тел. +79507468555
|
|
     |
 |
Vad
Зарегистрирован: Вт 7 Декабрь 2021, 10:41
Сообщения: 2888
Регион: Беларусь
|
Добавлено:
Ср 23 Февраль 2022, 18:45
|
  |
Хлудов и Дмитриев (авторы самых известных конструкций регистров в кирпиче) работали гораздо раньше.
И более того, водяные теплообменник-регистры для подобных печей выпускались серийно.
Например, модель КОВ: регистр покупаешь, а печь кладёшь сам.
***
И да, забыл главное: в те былинные) времена системы водяного отопления, которые разрешалось делать самим вместе с регистром в печи - это системы открытые, и только открытые.
Поэтому опасность взрыва минимизировалась, а также сильно снижались требования к качеству стали для регистров, качеству сварных швов и т. п.
Причём это шло ещё с дореволюционной России, а уж с довоенного СССР точно: небольшие водогрейные котлы с открытыми системами не должны были иметь паспорта Котлонадзора, журнала осмотров и т. п. док-ов, сорт стали для теплообменников не регламентировался и т. д.
И опять забыл) ещё одно: столь модных сегодня жаротрубных теплообменников для самодеятельности в малых формах) раньше не было, рекомендовались исключительно водотрубные - по тем же соображениям безопасности и для того, чтобы можно было применять практически любую доступную сталь и любую сварку.
И вот как раз это... конечно, очень жаль, что современные кулибины не понимают этой разницы, и тупо копируют заграничные заводские жаротрубные конструкции, не вникая в то, как они вообще работают и чем опасны...
|
|
|
|
  |
 |
Селиван Виктор
Проектировщик

Зарегистрирован: Сб 2 Январь 2010, 14:33
Сообщения: 6706
Регион: г.Челябинск
|
Добавлено:
Чт 24 Февраль 2022, 06:15
|
  |
| Vad писал(а): |
Хлудов и Дмитриев (авторы самых известных конструкций регистров в кирпиче) работали гораздо раньше.
И более того, водяные теплообменник-регистры для подобных печей выпускались серийно.
Например, модель КОВ: регистр покупаешь, а печь кладёшь сам.
***
И да, забыл главное: в те былинные) времена системы водяного отопления, которые разрешалось делать самим вместе с регистром в печи - это системы открытые, и только открытые.
Поэтому опасность взрыва минимизировалась, а также сильно снижались требования к качеству стали для регистров, качеству сварных швов и т. п.
Причём это шло ещё с дореволюционной России, а уж с довоенного СССР точно: небольшие водогрейные котлы с открытыми системами не должны были иметь паспорта Котлонадзора, журнала осмотров и т. п. док-ов, сорт стали для теплообменников не регламентировался и т. д.
И опять забыл) ещё одно: столь модных сегодня жаротрубных теплообменников для самодеятельности в малых формах) раньше не было, рекомендовались исключительно водотрубные - по тем же соображениям безопасности и для того, чтобы можно было применять практически любую доступную сталь и любую сварку.
И вот как раз это... конечно, очень жаль, что современные кулибины не понимают этой разницы, и тупо копируют заграничные заводские жаротрубные конструкции, не вникая в то, как они вообще работают и чем опасны... |
Да знаю что открытые( атмосферные) Сам даже себе ставил с деревне в доме котёл в топке паралельно с электрокотлом. Топили каменным углём. Чистить каналы из-за химического недожога угля от сажи необходимо было раз в месяц. Да и другим людям в первые годы печной деятельности ставил такие системы. До сих иногда ставлю регистры ГВС в печь. Вопрос я в другом поднимаю -в правомерности применения этих технологий и тех. решений? Может ли человек профессионально занимающийся печным делом рекламировать и ставить людям такие системы? Законно это ? Есть нормативы? Их нет -кроме тех что выложил здесь Колчин Е.В Сами себе дома люди чего угодно могут лепить и экспериментировать -и то если будет вред семье и окружающим соседям -будет уголовная ответственность. У нас в деревне в советское время посадили человека -построившего сам себе печь из силикатного кирпича. Сгорел его дом, дома соседей.
Я вот вчера в яндексе искал нормативы -не нашел. Может не те поисковые запросы делал? А если нет нормативов -то значит профи не имеет права этим заниматься.
Унас в деревне поголовно -практически в каждом были печи с котлами(регистрами) в топке. Ставили также из чугунных батарей в топку. Кто что мог достать или украсть во время тотального дефицита всего. Я вот чтобы поставить в доме электрокотёл -когда жил и работал в городе в середине 80-х -тоже пришлось "украсть" оборудование для электрокотла на работе -в магазинах не было в продаже такого оборудования.
|
_________________ Я за здоровую конкуренцию в печном деле и за работу во благо потребителям услуг печника.Тел. +79507468555
|
|
     |
 |
Vad
Зарегистрирован: Вт 7 Декабрь 2021, 10:41
Сообщения: 2888
Регион: Беларусь
|
Добавлено:
Чт 24 Февраль 2022, 10:20
|
  |
Может быть, быстрее всего выяснить этот вопрос у пожарных: примут ли они такую конструкцию в частной коттеджной новостройке?
|
|
|
|
  |
 |
vladgri
Зарегистрирован: Пт 8 Октябрь 2010, 08:33
Сообщения: 1857
Регион: г.Павлодар
|
Добавлено:
Чт 24 Февраль 2022, 17:28
|
  |
| Селиван Виктор писал(а): |
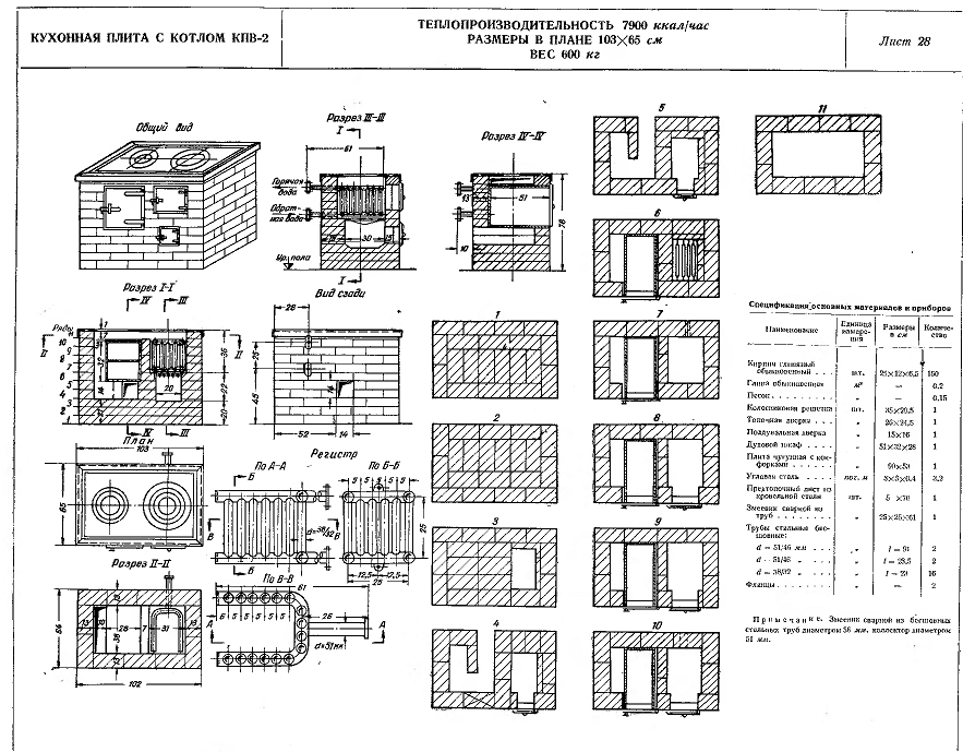
| Покажите хоть один официальный проект и норматив советского периода? |
Навалом. Серия КПВ, серия КПМ, КТП.
|
_________________ Впрочем, обоснованная аргументация не вписывается в дискуссии, где тон задают демагогия и эмоции.
| Описание: |
|
| Размер файла: |
168.51 КБ |
| Просмотров: |
145 раз(а) |

|
|
|
  |
 |
Vad
Зарегистрирован: Вт 7 Декабрь 2021, 10:41
Сообщения: 2888
Регион: Беларусь
|
Добавлено:
Чт 24 Февраль 2022, 17:50
|
  |
Вот-вот, тоже очень известный проект для самостоятельного изготовления, причём прямо из альбома Госстроя, если я не ошибаюсь...
И вспомнил о саже... где-то когда-то видел, наверное, первый проект с чугунными радиаторами, так вот там их было два, и они были широко разнесены по стенкам топки, а обычный кирпичный свод, таким образом, грел дрова, и пламенного пространства хватало тоже... жаль, сейчас не могу найти картинку, в компе бардак...)
|
|
|
|
  |
 |
Селиван Виктор
Проектировщик

Зарегистрирован: Сб 2 Январь 2010, 14:33
Сообщения: 6706
Регион: г.Челябинск
|
Добавлено:
Пт 25 Февраль 2022, 09:58
|
  |
| vladgri писал(а): |
| Селиван Виктор писал(а): |
| Покажите хоть один официальный проект и норматив советского периода? |
Навалом. Серия КПВ, серия КПМ, КТП. |
Норматив в студию того периода?
|
_________________ Я за здоровую конкуренцию в печном деле и за работу во благо потребителям услуг печника.Тел. +79507468555
|
|
     |
 |
|
|
|
Следующая тема
Предыдущая тема
Вы не можете начинать темы Вы не можете отвечать на сообщения Вы не можете редактировать свои сообщения Вы не можете удалять свои сообщения Вы не можете голосовать в опросах Вы не можете добавлять приложения в этом форуме Вы можете скачивать файлы в этом форуме
|
|