| Автор |
Сообщение
|
Францыч

Зарегистрирован: Пн 9 Январь 2006, 08:27
Сообщения: 558
Регион: Новосибирск
|
Добавлено:
Сб 6 Май 2006, 04:42
|
  |
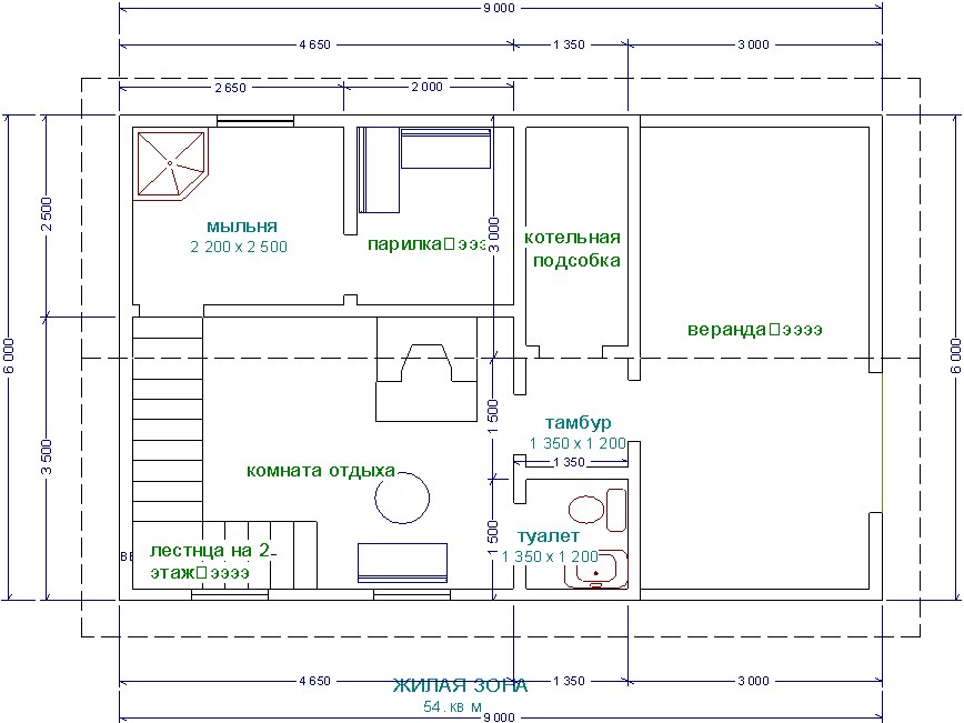
По просьбе Администратора: http://www.stovemaster.ru/viewtopic.php?t=1252 , начинаю тему, может кто и выскажется
Сегодня еду к заказчику, обсуждать - как "затолкать" каменку в его сруб. Планировку привожу. Главный вопрос в том, что внутренние перегородки - несущие, уже готовы и крыша есть. А перегородки надо резать...
|
| Описание: |
|
| Размер файла: |
79.54 КБ |
| Просмотров: |
2482 раз(а) |

|
|
|
    |
 |
Францыч

Зарегистрирован: Пн 9 Январь 2006, 08:27
Сообщения: 558
Регион: Новосибирск
|
Добавлено:
Сб 6 Май 2006, 04:59
|
  |
Это эскиз заказчика. Он запланировал каменку в парилке, с топкой из кладовой и камин в комнате отдыха. Буду предлагать каменку совмещенную с камином. Но уж очень неудобно расположены перегородки...
|
|
|
|
    |
 |
Евгений Колчин

Зарегистрирован: Чт 3 Октябрь 2002, 06:26
Сообщения: 10151
Регион: Москва
|
Добавлено:
Сб 6 Май 2006, 07:29
|
  |
Можно так (4х6.5)
|
_________________ ************************************
| Описание: |
|
| Размер файла: |
5.85 КБ |
| Просмотров: |
25802 раз(а) |

|
|
|
      |
 |
Францыч

Зарегистрирован: Пн 9 Январь 2006, 08:27
Сообщения: 558
Регион: Новосибирск
|
Добавлено:
Сб 6 Май 2006, 08:13
|
  |
Спасибо, Василий!
Съезжу на место, посмотрю, потом обсудим...
|
|
|
|
    |
 |
Валерий Петров

Зарегистрирован: Пт 9 Декабрь 2005, 14:33
Сообщения: 1085
Регион: Россия
|
Добавлено:
Сб 6 Май 2006, 10:37
|
  |
Владимир Францевич, а из чего эти несущие перегородки? как на них опирается перекрытие? И какое перекрытие? Резать придется практически однозначно, но вот если это перегородка бревенчатая - то это одно, а если каркасня - то решение может быть другим. Уточните пожалуйста.
|
|
|
|
     |
 |
Францыч

Зарегистрирован: Пн 9 Январь 2006, 08:27
Сообщения: 558
Регион: Новосибирск
|
Добавлено:
Сб 6 Май 2006, 19:10
|
  |
Валера, весь сруб и перегородки из цилиндрованного бревна D180. Все на столбчато (3м)- ригельном фундаменте, в том числе и перегородки. Стропила опираются на наружные стены. С перекрвтием - проблем нет. Уберем одну балку, все войдет по варианту Василия. Второй этаж - некая террасса-балкон, над комнатой отдыха. Заказчик стену уберет (вырежет), договорились. Есть одна проблема - уж очень он хочет, чтобы сверху печи, хоть два бревна остались... А высота всего 2,4м. Вот задача. Уменьшать высоту печи? А хватит температуры?
Еще. Отопление и ГВС - однозначно газовое, проблем на каменку не ложится. Токо камин (для души) и собственно каменка.
|
|
|
|
    |
 |
Евгений Колчин

Зарегистрирован: Чт 3 Октябрь 2002, 06:26
Сообщения: 10151
Регион: Москва
|
Добавлено:
Сб 6 Май 2006, 19:56
|
  |
Как раз два бревна и на остаток.
Печь 210, плюс 30 два бревна.
|
|
|
|
      |
 |
Валерий Петров

Зарегистрирован: Пт 9 Декабрь 2005, 14:33
Сообщения: 1085
Регион: Россия
|
Добавлено:
Сб 6 Май 2006, 23:41
|
  |
Василий прав, 210 см и два бревна сверху. только надо соблюсти ППБ.
А вот каменка топиться будет газом? я еще не сталкивался с газовым топливом в печах.... хотя самому задают такие вопросы в связи с начавшейся газификацией одного из районов города.
|
|
|
|
     |
 |
Францыч

Зарегистрирован: Пн 9 Январь 2006, 08:27
Сообщения: 558
Регион: Новосибирск
|
Добавлено:
Вс 7 Май 2006, 04:46
|
  |
Каменка - дровяная. Газ - это отопление и ГВС, т.е. баня всю зиму будет теплая.
Соблюсти ППБ и оставить два бревна - головная боль, однако с вашей помощью - справлюсь.
|
|
|
|
    |
 |
Евгений Колчин

Зарегистрирован: Чт 3 Октябрь 2002, 06:26
Сообщения: 10151
Регион: Москва
|
Добавлено:
Вс 7 Май 2006, 08:44
|
  |
Францыч, вы не уточнили какую модель печи вы будете ставить и какая - постоянного или периодического действия (надеюсь с закрытой каменкой).
Если говорить про БИК ПК10, то есть два решения.
Первое, печь делается одноколпаковой вровень с дымовой камерой камина, а над камином объеденительная камера.
Второе, - печь можно сместить в парную на кирпич с разделками и козырьком над дымовой камерой.
|
|
|
|
      |
 |
Валерий Петров

Зарегистрирован: Пт 9 Декабрь 2005, 14:33
Сообщения: 1085
Регион: Россия
|
Добавлено:
Вс 7 Май 2006, 10:07
|
  |
Да, но ведь клиент не хочет иметь топку каменки не в парилке и не рядом в камином, в котельной. Владимир Францевич, согласен клиент перенести топку?
|
|
|
|
     |
 |
Францыч

Зарегистрирован: Пн 9 Январь 2006, 08:27
Сообщения: 558
Регион: Новосибирск
|
Добавлено:
Вс 7 Май 2006, 10:44
|
  |
Вариант топки из кладовой - отпал сразу. Угол пересечения перегородок кладовая/парная - несущий (по осевой линии крыши проложена балка на которую опирается перекрытие второго этажа, выполненного в варианте мансардной веранды с проемом в сторону комнаты отдыха), вырезать его, это очень большая перестройка. Поэтому - топка справа от камина, по передней стороне печи, убедил заказчика, что это удобней.
Рассматриваю вариант типа БИК ПК7 (в пять кирпичей по лицевой стороне). Переодической топки, с закрытой каменкой.
Может быть, посоветую новопар, однако, сам его не пробывал, поэтому полагаюсь на мнение участников форума.
Далее, следующие предпосылки:
1.Ширина стены в свету, куда планируется врезать печь = 2000 - 180 (D бревна) = 1820. С учетом ПП разделки 260х2=520, т.е. передняя стена печи 1820-520=1300, или пять кирпичей впритык.
2.В глубину парной печь не втолкать. Обратите внимание, дверной проем в парную очень близко к перегородке, если сместить печь внутрь, то при входе в парную упираешься в печь и надо протискиваться в парную, что не совсем удобно. Проем не переделать, большая работа, с нарушением сруба... Хотя можно попробывать... При выпиливании стены для печи, этими бревнами заделать проем и выпилить новый... Гемморой...
Короче, задачи сложноваты. Однако, делать надо очень грамотно и качественно. Если заказ будет реализован, то в этом поселке (очень элитный) работы печнику на три года, как минимум. Соответственно 2-м печникам на 1,5 года и т.д... :
|
|
|
|
    |
 |
Евгений Колчин

Зарегистрирован: Чт 3 Октябрь 2002, 06:26
Сообщения: 10151
Регион: Москва
|
Добавлено:
Вс 7 Май 2006, 14:10
|
  |
Печь для паровой бани с закрытой каменкой желательно полностью устанавливать в парной.
Раз сложности с совмещенным вариантом, тогда рассмотреть:
- печь полностью в парной (4х4.5) с тонелем под топку из топочной
- камин отдельно в комнате (кирпич или сборка)
|
|
|
|
      |
 |
Андрей Ищенко
Проектировщик
Зарегистрирован: Вт 7 Февраль 2006, 10:08
Сообщения: 2946
Регион: Пенза
|
Добавлено:
Вс 7 Май 2006, 18:21
|
  |
| Vasya писал(а): |
Печь для паровой бани с закрытой каменкой желательно полностью устанавливать в парной.
Раз сложности с совмещенным вариантом, тогда рассмотреть:
- печь полностью в парной (4х4.5) с тонелем под топку из топочной
- камин отдельно в комнате (кирпич или сборка) |
Полностью согласен, еще вариант топка в парной, неудобно маленько, но зато все тепло остается в парной.
|
_________________ +7 962 974-10-94 Viber WhatsApp
+7 962 399-59-39
|
|
     |
 |
Евгений Колчин

Зарегистрирован: Чт 3 Октябрь 2002, 06:26
Сообщения: 10151
Регион: Москва
|
Добавлено:
Пн 8 Май 2006, 06:48
|
  |
Францыч, не ошибись с установкой печи.
Когда заказчик настаивает и говорит, что ему так не удобно, когда печь не вся в парной, то сразу следует вопрос:"Мы что строим - баню или гостевой домик?"
Если баню, то только всю печь (или три стороны) в парной. Хуже вариант - две стороны, и совсем плохо - одна.
|
|
|
|
      |
 |
Францыч

Зарегистрирован: Пн 9 Январь 2006, 08:27
Сообщения: 558
Регион: Новосибирск
|
Добавлено:
Пн 8 Май 2006, 23:00
|
  |
Вот и думаю, все мозги продумал...
Разносить каменку и камин - две трубы, второй этаж совсем плохо смотреться будет..., да еще барбекю на веранде - вся баня в трубах... Отпадает.
Еще один вариант (заказчик предложил). Г-образная каменка, с топкой из кладовой и камином в комнату отдыха. Несущий угол заменяем колонной. Две, длинные стороны каменки в парной. Но, появляется "слепой" угол, в котором надо организовать конвективные потоки... Сложная конструкция. Кто-нибудь делал?
|
|
|
|
    |
 |
Евгений Колчин

Зарегистрирован: Чт 3 Октябрь 2002, 06:26
Сообщения: 10151
Регион: Москва
|
Добавлено:
Пн 8 Май 2006, 23:29
|
  |
Тогда вот такой вариант, через боров (ну не люблю я их) в дымовую камеру камина.
|
_________________ ************************************
| Описание: |
|
| Размер файла: |
5.76 КБ |
| Просмотров: |
25799 раз(а) |

|
|
|
      |
 |
Францыч

Зарегистрирован: Пн 9 Январь 2006, 08:27
Сообщения: 558
Регион: Новосибирск
|
Добавлено:
Пн 8 Май 2006, 23:42
|
  |
Василий! : То что надо!
|
|
|
|
    |
 |
Францыч

Зарегистрирован: Пн 9 Январь 2006, 08:27
Сообщения: 558
Регион: Новосибирск
|
Добавлено:
Ср 10 Май 2006, 12:45
|
  |
Но - не совсем :
Игорь Викторович "разбомбил" такое предложение и предложил свое решение, как всегда на самом высоком уровне.
Жду решения заказчика.
|
|
|
|
    |
 |
Евгений Колчин

Зарегистрирован: Чт 3 Октябрь 2002, 06:26
Сообщения: 10151
Регион: Москва
|
Добавлено:
Ср 10 Май 2006, 14:28
|
  |
Решение предложенное Кузнецовым понятно. Такие решения он часто применяет при использовании печи, как отопительного очага в доме.
Здесь надо смотреть по месту перевязку несущих, насколько можно так удлинить парилку.
|
|
|
|
      |
 |
|
|