 |
|
 |
| Автор |
Сообщение
|
Алексей
Зарегистрирован: Пт 1 Февраль 2008, 15:31
Сообщения: 2
Регион: Ижевск
|
Добавлено:
Пт 1 Февраль 2008, 15:40
|
  |
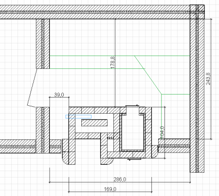
Здравствуйте
хочу строить баню по схеме,печь с камином. Видел на три отделения сразу (моечную,парилку и комнату отдыха) посоветуйте модель для моей бани.
Если в плане что-то неправильно скоректируйте меня пожалуйста
|
_________________ огромное желание построить себе баню
| Описание: |
|
| Размер файла: |
131 КБ |
| Просмотров: |
1621 раз(а) |

|
|
|
  |
 |
Сергей(Михалыч)

Зарегистрирован: Пт 5 Май 2006, 08:15
Сообщения: 70
Регион: Самара
|
Добавлено:
Пт 1 Февраль 2008, 20:23
|
  |
Для чего кухня в бане нужна. Насчет печки, смотря что надо.Для меня баня это церемония, когда зимой от начала топки до первого захода в баню уходит до 8 часов и моей семье это нравится. Другим надо затопил и через 2 часа в парилке уже 100 градусов. В первом случае печь кирпичная во втором метал( вариантов много, на форуме много написано). Надо в начале определиться что душа хочет а потом давать советы можно. Лично я приверженец кирпичных банных печей, согласен в -30 и 8 часов готовится к бане.
|
|
|
|
  |
 |
Евгений Колчин

Зарегистрирован: Чт 3 Октябрь 2002, 06:26
Сообщения: 10147
Регион: Москва
|
Добавлено:
Сб 2 Февраль 2008, 20:11
|
  |
если печь на три помещения, то предполагаю что кирпичную теплоемкую, а раз кирпичную теплоемкую, то для паровой бани ?
Прогревать моечную можно выпустив в проекте одну стенку в соответствующее помещение.
Но из практики - моечная прогревается до комфортной температуры уже после второго проветривания парной при приему банных процедур.
|
_________________ ************************************
| Описание: |
|
| Размер файла: |
46.27 КБ |
| Просмотров: |
1487 раз(а) |

|
|
|
      |
 |
Алексей
Зарегистрирован: Пт 1 Февраль 2008, 15:31
Сообщения: 2
Регион: Ижевск
|
Добавлено:
Вт 5 Февраль 2008, 10:04
|
  |
Кухня мне нужна больше не как кухня а помещение для чайной готовки,а насчет печи действительно нужна кирпичная, и как вы заметили (на два помещения парилка и комната отдыха) я с вами полностью согласен.Печь БИК пк 10 подходит под эти параметры?
|
_________________ огромное желание построить себе баню
|
|
  |
 |
|
|
|
Следующая тема
Предыдущая тема
Вы не можете начинать темы Вы не можете отвечать на сообщения Вы не можете редактировать свои сообщения Вы не можете удалять свои сообщения Вы не можете голосовать в опросах Вы не можете добавлять приложения в этом форуме Вы можете скачивать файлы в этом форуме
|
|