Некоммерческое партнерство Альянс Печных Дел Мастера
 RSS  • FAQ  •  Поиск  •  Пользователи  •  Группы   •  Регистрация   •  Избранные темы   •  Профиль  •  Войти и проверить личные сообщения  •  Чат  •  Вход





 Печь ОВИК БК 4 Следующая тема
Предыдущая тема
Начать новую темуОтветить на тему
Автор Сообщение
boris_ekb



Зарегистрирован: Чт 22 Апрель 2010, 07:25
Сообщения: 6
Регион: Екатеринбург

СообщениеДобавлено: Чт 22 Апрель 2010, 08:15 Ответить с цитатойВернуться к началу

Добрый день!

Выбрал себе печь ОВИК БК 4, но порядовки не нашел на сайте Sad
Где бы ее найти?
Посмотреть профильОтправить личное сообщение
boris_ekb



Зарегистрирован: Чт 22 Апрель 2010, 07:25
Сообщения: 6
Регион: Екатеринбург

СообщениеДобавлено: Чт 22 Апрель 2010, 13:21 Ответить с цитатойВернуться к началу

Еще вопрос.

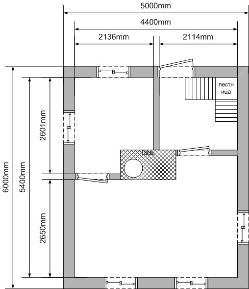
У меня дом рубленный в лапу, размер 5*6 м, толщина бревен 200-250 мм. высота потолка будет на первом этаже - 2,3 м.
Второй этаж мансардный утепленный будет, там высота потолка - 2,15 м.

Выбрал себе печь ОВИК БК-4 (если без камина то - ОВИК-1). Правильный ли я себе выбор сделал?
Что подскажите? Будет ли тепло в доме?

Планировку первого этажа хочу как в прикрепленном файле сделать.



план.jpg
 Описание:
 Размер файла:  44.84 КБ
 Просмотров:  851 раз(а)

план.jpg


Посмотреть профильОтправить личное сообщение
boris_ekb



Зарегистрирован: Чт 22 Апрель 2010, 07:25
Сообщения: 6
Регион: Екатеринбург

СообщениеДобавлено: Чт 29 Апрель 2010, 19:40 Ответить с цитатойВернуться к началу

тут тоже тишина ... ответа видимо ждать безсмысленно ? Sad
Посмотреть профильОтправить личное сообщение
vova230



Зарегистрирован: Ср 24 Март 2010, 00:20
Сообщения: 811
Регион: Беларусь

СообщениеДобавлено: Чт 29 Апрель 2010, 20:37 Ответить с цитатойВернуться к началу

Да, очень странно почему все молчат.
Ведь здесь немало тех, кто знаком с такими печами. А я не изучал печи ОВИК и потому мне нечего сказать. Теплоотдачу по идее можно просчитать, а так на вскидку должно хватить. Хотя я наверное сделал бы свою конструкцию.
Посмотреть профильОтправить личное сообщениеОтправить e-mail
Евгений Колчин



Зарегистрирован: Чт 3 Октябрь 2002, 06:26
Сообщения: 10146
Регион: Москва

СообщениеДобавлено: Чт 29 Апрель 2010, 21:12 Ответить с цитатойВернуться к началу

Теплоотдача печи при двух топках в сутки указана в каталоге:
Т-3316 А=1318 Б=340 С=995 Д=663 (ккакл/час)
Для вашего дома подойдет.
Порядовку придется рисовать самому, раз уж самостоятельно решили строить.
Отрисуете и выкладывайте в теме, печники подскажут, что и как.

_________________
************************************
Посмотреть профильОтправить личное сообщениеОтправить e-mailПосетить сайт автораПозвонить авторуICQ Number
Показать сообщения:      
Начать новую темуОтветить на тему


 Перейти:   



Следующая тема
Предыдущая тема
Вы не можете начинать темы
Вы не можете отвечать на сообщения
Вы не можете редактировать свои сообщения
Вы не можете удалять свои сообщения
Вы не можете голосовать в опросах
Вы не можете добавлять приложения в этом форуме
Вы можете скачивать файлы в этом форуме




Проект форум печников "Альянс. Печных Дел Мастера" © 2006-2026