 |
|
 |
| Автор |
Сообщение
|
daivi
Зарегистрирован: Чт 24 Сентябрь 2009, 13:15
Сообщения: 15
Регион: Украина, Днепропетровск
|
Добавлено:
Вс 27 Сентябрь 2009, 08:56
|
  |
Здравствуйте уважаемые печники! Меня зовут Станислав.
На Украине в г. Днепропетровске занимаюсь строительством и развитием храмового комплекса.
Храм не стандартный 3х этажное здание (3тий этаж храмовая комната)
Остальные помещения, предполагаются под различные подразделения, духовная академия, библиотека, студия, столовая и тд.
Коробка здания построена, сделана крыша - пока только рубероид.
третий этаж пока практически без утепления.
Первый этаж не утеплен, но стоят окна, двери. А вот на втором этаже несколько комнат уже утеплены (половина этажа), живут несколько монахов. Прошлые годы отапливали две комнаты электричеством так и зимовали.
Сейчас встал вопрос с отоплением хотя бы второго этажа общая площадь 300 кв.м.
Финансов особо нету, поэтому пока решили сделать дровяную печь котел.
Выбор пал на КИК 63, сейчас занимаюсь моделированием печи в программе Компас 3D (немного разбираюсь). Господа печники позвольте в этой теме задать вам вопросы и вести историю строительства печи? Скоро выложу чертежи здания.
А теперь к делу, позвольте уточнить (так как не нашел нигде описания) в чертеже КИК 63 есть обозначение в виде красных волнистых линий - что этим обозначено?
Хочу выразить почтение и благодарность господину Кузнецову Игорю Викторовичу, за его неоценимый вклад в развитие кирпичных печей во всем мире.
|
| Описание: |
|
| Размер файла: |
3.14 КБ |
| Просмотров: |
6643 раз(а) |

|
|
|
   |
 |
daivi
Зарегистрирован: Чт 24 Сентябрь 2009, 13:15
Сообщения: 15
Регион: Украина, Днепропетровск
|
Добавлено:
Вс 27 Сентябрь 2009, 19:03
|
  |
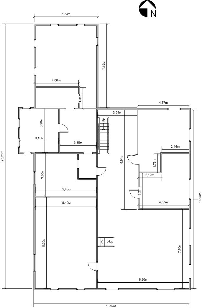
Вот простой план 2го этажа здания.
|
_________________ С уважением, Станислав Демидов.
| Описание: |
|
| Размер файла: |
53.39 КБ |
| Просмотров: |
917 раз(а) |

|
|
|
   |
 |
daivi
Зарегистрирован: Чт 24 Сентябрь 2009, 13:15
Сообщения: 15
Регион: Украина, Днепропетровск
|
Добавлено:
Вс 27 Сентябрь 2009, 22:56
|
  |
Так про волнистые линии кажется дошло, это теплоизоляция...
|
_________________ С уважением, Станислав Демидов.
|
|
   |
 |
daivi
Зарегистрирован: Чт 24 Сентябрь 2009, 13:15
Сообщения: 15
Регион: Украина, Днепропетровск
|
Добавлено:
Пн 28 Сентябрь 2009, 23:52
|
  |
Сделал модель регенератора, единственное что не могу пока понять каким образом два болта используются для чистки.
|
_________________ С уважением, Станислав Демидов.
| Описание: |
|
| Размер файла: |
68.75 КБ |
| Просмотров: |
921 раз(а) |

|
|
|
   |
 |
|
|
|
Следующая тема
Предыдущая тема
Вы не можете начинать темы Вы не можете отвечать на сообщения Вы не можете редактировать свои сообщения Вы не можете удалять свои сообщения Вы не можете голосовать в опросах Вы не можете добавлять приложения в этом форуме Вы можете скачивать файлы в этом форуме
|
|