 |
|
 |
| Автор |
Сообщение
|
nick_e

Зарегистрирован: Пт 23 Октябрь 2009, 15:40
Сообщения: 373
Регион: Бурятия
|
Добавлено:
Ср 10 Ноябрь 2010, 16:04
|
  |
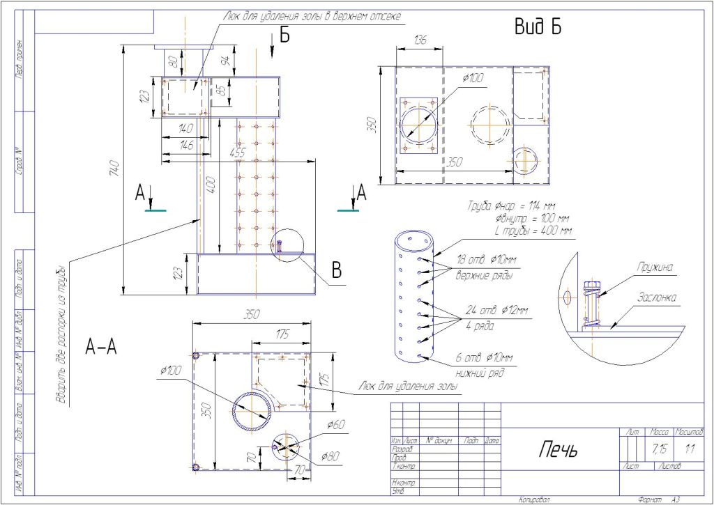
Возникла необходимость улучшить отопление гаража, а так же по возможности сэкономить на топливе. А что может быть дешевле использованного масла (отработки)! смотрите на http://chukvadim.narod.ru/
Наверняка многие видели разные варианты печи работающей на отработке, конструкция простая, но не совсем безопасная (открытое пламя в трубе с дырками - горят пары масла).
У меня деревянный гараж 6*4 метра, зимой средняя температура -35, но бывает и -45 и -50, так что печь придется топить достаточно часто и сильно.
Есть предложение сделать некий кирпичный ящик и разместить печь в нем, тепло держать будет дольше, да и пожаро безопасность повысится.
Вопрос в том, как лучше этот ящик сделать, закрыть сверху полностью и оставить открытой только переднюю стенку либо просто сделать дно и три стены?
|
_________________ Из страны канальных печей....
| Описание: |
|
| Размер файла: |
91.1 КБ |
| Просмотров: |
2911 раз(а) |

|
| Описание: |
|
| Размер файла: |
32.16 КБ |
| Просмотров: |
1274 раз(а) |

|
| Описание: |
|
| Размер файла: |
52.1 КБ |
| Просмотров: |
1434 раз(а) |

|
|
|
  |
 |
nick_e

Зарегистрирован: Пт 23 Октябрь 2009, 15:40
Сообщения: 373
Регион: Бурятия
|
Добавлено:
Вт 7 Декабрь 2010, 17:24
|
  |
...
|
_________________ Из страны канальных печей....
| Описание: |
|
| Размер файла: |
72.8 КБ |
| Просмотров: |
1408 раз(а) |

|
| Описание: |
|
| Размер файла: |
42.13 КБ |
| Просмотров: |
1643 раз(а) |

|
|
|
  |
 |
|
|
|
Следующая тема
Предыдущая тема
Вы не можете начинать темы Вы не можете отвечать на сообщения Вы не можете редактировать свои сообщения Вы не можете удалять свои сообщения Вы не можете голосовать в опросах Вы не можете добавлять приложения в этом форуме Вы можете скачивать файлы в этом форуме
|
|