 |
|
 |
| Автор |
Сообщение
|
Tol'an
Зарегистрирован: Чт 27 Январь 2011, 14:07
Сообщения: 6
Регион: Москва
|
Добавлено:
Чт 27 Январь 2011, 14:59
|
  |
Здравствуйте, уважаемые форумчане-печники!
В Феврале будут ставить баню, весной собираюсь заняться внутренними работами,
что бы к осени довести баню до ума, что бы можно было париться уже.
В связи с этим возник вопрос с печкой в первую очередь. Печь хочу настоящую кирпичную, с прямым нагревом камней, использоваться будет 1-2 раза в неделю, ну когда может и чаще, народу бывает много до 10 человек ну а так 6-7 человек., с регистром под горячую воду.
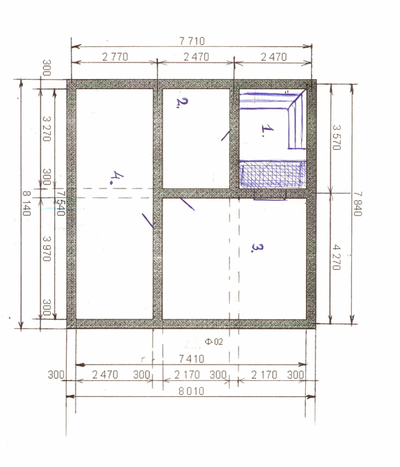
Фундамент под баню уже залит, под печь тоже залит(завязан вместе с общим фунд-том, залил по всей длине, ну что бы не изгаляться и крепче думаю так будет, 1 метр шириной), видно на фото, в парной, комната под №1., топиться будет из комнаты отдыха - №3.
План прилагается:
№1. - парная.
№2. - это моечная.
№3. - комната отдыха.
№4. - это терраса.
Размеры парной 2,20х3,20х2,30.
Предположительное время начала работы конец апреля, начало мая.
|
| Описание: |
|
| Размер файла: |
66.55 КБ |
| Просмотров: |
779 раз(а) |

|
|
|
   |
 |
stas

Зарегистрирован: Вт 29 Январь 2008, 22:53
Сообщения: 916
Регион: Москва
|
Добавлено:
Чт 27 Январь 2011, 19:06
|
  |
Tol*an, Все бы хорошо, и планировка нормальая, и фундамент, и мансарду можно утеплить и отопить, чтобы сделать баню-гостевой дом,... но конец апреля - начало мая у большинства печников уже занят. Если на середину-конец лета ориентировочно устроит Вас? По опыту знаю, что сроки общестроительных работ сильно затягиваются, так что может и к этому сроку будете не готовы. Также есть ряд работ, которые можно делать до постройки печи.
Поэтому возможно предварительно обговорить, я Вам написал личное сообщение.
|
|
|
|
    |
 |
Tol'an
Зарегистрирован: Чт 27 Январь 2011, 14:07
Сообщения: 6
Регион: Москва
|
Добавлено:
Чт 27 Январь 2011, 20:31
|
  |
Согласен с Вами, возможно и затянется до конца лета.
но планирую пораньше всетаки..
|
|
|
|
   |
 |
Валентин Стрибук

Зарегистрирован: Чт 17 Июль 2008, 18:53
Сообщения: 636
Регион: Москва
|
Добавлено:
Вс 30 Январь 2011, 10:00
|
  |
Советую продумать вариант, когда печь своими стенками выходит в парную и комнату отдыха. Это просто более рационально. Но тогда нужно продумать балки потолка 1 этажа чтобы не были над печкой.
Это сэкономит место не только на толщину перегородки, но плюс на 25см - противопожарную отступку.
|
_________________ 9164865048@mail.ru ... Вернём русскую печь в Россию через барбекю
|
|
     |
 |
Tol'an
Зарегистрирован: Чт 27 Январь 2011, 14:07
Сообщения: 6
Регион: Москва
|
Добавлено:
Ср 2 Февраль 2011, 12:33
|
  |
| Валентиныч писал(а): |
Советую продумать вариант, когда печь своими стенками выходит в парную и комнату отдыха. Это просто более рационально. Но тогда нужно продумать балки потолка 1 этажа чтобы не были над печкой.
Это сэкономит место не только на толщину перегородки, но плюс на 25см - противопожарную отступку. |
Нет такой вариант мне не нравится, в парной у меня 2 метра, я думаю хватит места для печки, печь нужна без камина.
|
|
|
|
   |
 |
Tol'an
Зарегистрирован: Чт 27 Январь 2011, 14:07
Сообщения: 6
Регион: Москва
|
Добавлено:
Ср 2 Февраль 2011, 12:54
|
  |
И хотелось бы конечно посмотреть работы пообщаться с хозяином, устраивает ли его печь.
А то я когда задаю такой вопрос, то все сразу начинают юлить, типа нет такой возможности у нас, все кому мы печи делал - люди состоятельные и не хотят к себе кого то там водить.... а то вдруг еще у кого то печь такая будет, скопируют вроде как.. или сглазят.. но мне кажется если вы делали им печь так и отношения же хорошие складываются если всё нормально делали..
А если и покажем кто говорит, сказали мне здесь на форуме, то на условии что вы будете закупать у нас весь материал, как это можно назвать..
Честное слово, как такое сказали.. неприятно стало на душе, поймите меня правильно. Как то надо уважительней к заказчикам относиться всё таки, я понимаю что у вас золотые руки и вы уникальные специалисты, так и заказчики люди.
С уважением, Анатолий
|
|
|
|
   |
 |
stas

Зарегистрирован: Вт 29 Январь 2008, 22:53
Сообщения: 916
Регион: Москва
|
Добавлено:
Ср 2 Февраль 2011, 15:51
|
  |
Tol*an, большинство людей (заказчиков), по понятным причинам не хотят видеть у себя дома незнакомых и случайных визитеров вообще, и также чтобы показывать им печь; они заплатили печнику за работу деньги согласно договоренности и ничем ему больше не обязаны.
Также и печник не хочет просить заказчика об одолжении и быть ему обязанным, да и накладно это по времени и силам - возить заказчиков (Вы не один у печников) по объектам показывать готовые работы.
Естественно, если есть возможность, печник покажет Вам свою готовую работу, так как это и в его интересах.
Хороший вариант для заказчика - воспользоваться рекомендациями своих знакомых, уже имеющих хорошие печи. Или искать косвенные подтверждения правильности выбора печника и конструкции, например в отзывах и обсуждениях на сайте.
Также при выполнении заранее четко обговаривать параметры парной и банной печи, заключать договор с гарантией.
|
Последний раз редактировалось: stas (Ср 2 Февраль 2011, 16:10), всего редактировалось 2 раз(а) |
|
    |
 |
silverscan

Зарегистрирован: Вт 21 Декабрь 2010, 14:50
Сообщения: 28
Регион: Рязань
|
Добавлено:
Ср 2 Февраль 2011, 15:59
|
  |
Здравствуйте Анатолий!
На этой недели одна бригада поедет в Бронницы, делать камин, а в прошлом году делали ему же банную печь. Вот где-то в конце февраля, а может и раньше будут, так сказать, учить париться хозяина, и париться вместе с ним. Так, что если хотите можете подъехать все спросить, а заодно и на камин посмотрите.
Если надумайте то пишите в личку.
|
_________________ Профессиональная кладка печей, каминов, барбекю. Тел. +79308774777
|
|
    |
 |
Tol'an
Зарегистрирован: Чт 27 Январь 2011, 14:07
Сообщения: 6
Регион: Москва
|
Добавлено:
Ср 2 Февраль 2011, 16:23
|
  |
| stas писал(а): |
Tol*an, большинство людей (заказчиков), по понятным причинам не хотят видеть у себя дома незнакомых и случайных визитеров вообще, и также чтобы показывать им печь; они заплатили печнику за работу деньги согласно договоренности и ничем ему больше не обязаны.
Также и печник не хочет просить заказчика об одолжении и быть ему обязанным, да и накладно это по времени и силам - возить заказчиков (Вы не один у печников) по объектам показывать готовые работы.
Естественно, если есть возможность, печник покажет Вам свою готовую работу, так как это и в его интересах.
Хороший вариант для заказчика - воспользоваться рекомендациями своих знакомых, уже имеющих хорошие печи. Или искать косвенные подтверждения правильности выбора печника и конструкции, например в отзывах и обсуждениях на сайте.
Также при выполнении заранее четко обговаривать параметры парной и банной печи, заключать договор с гарантией.
Вот хорошо, мы договоримся чтобы показать Вам нашу хорошую печь, сделаем Вам хорошую такую же печь - при условии (включим в договор), что потом будем всех заказчиков к Вам водить показывать печь, согласны? (вопрос риторический, то есть ответ не требуется, так как очевиден). |
stas, ну что Вы из крайности в крайности бросаетесь.. Про договор на то что постоянно приводить людей будете мне не нужен, а так просто показать поделиться впечатлениями - то почему бы нет, главное потом заказчика на крючок не сажайте за просмотр (он обязан будет у вас материал покупать)
Вы же не одну печь то сложили, и люди если вам благодарны то пару тройку раз покажут без вопросов... А Вы за каждое лишнее движение просите оплату, либо хотите обязать покупать у вас материал- это только за то что вы ему показали предыдущие свои работы.. Боитесь лишнее слово сказать.. а то вдруг секрет какой то раскроите.. Считаете это правильно?
Я и рубщиков бани так же выбирал.. и люди мне показывали.. там хозяин банкир приехал к нему, он все рассказал показал.., у него кстати печь в бане изразцами выложена, все устроило - заказал баню, теперь жду должны поставить сруб. А сейчас пока в поиске печника.. но первое впечатление конечно сложилось не очень хорошее..
|
|
|
|
   |
 |
stas

Зарегистрирован: Вт 29 Январь 2008, 22:53
Сообщения: 916
Регион: Москва
|
Добавлено:
Ср 2 Февраль 2011, 17:35
|
  |
Tol*an, Вы перепутали: лично я себе ни копейки за показ печи не просил, но человек, у которого я предложил Вам посмотреть печь, выразил желание иметь при этом небольшой личный интерес: комплектовать Ваш объект. Ничего страшного лично я в этом не увидел, так как материал для печи все равно покупать придется, а цены за эту услугу у него как у всех. Поэтому я передал Вам его слова - на ваше усмотрение. А Вы говорите - очень просто и легко попросить и сходить посмотреть: я попросил - в итоге Вы меня в корысти обвинили, и перед тем человеком я оказался пусть немного, но обязан.
Про договор, чтобы к Вам потом водить смотреть заказчиков, я из своего сообщения почти сразу убрал, так как это некорректно и очевидно, что неудобно для Вас.
Перечислите, за что еще я у Вас просил оплату? За какие еще движения? Это неправда. Все предварительные консультации я даю бесплатно вплоть до предварительного выбора конструкции печи, ее приблизительных размеров и оптимального местоположения в доме. Также рекомендую необходимые функции печи, указываю заказчику на его ошибки. Предоставляю необходимую информацию по возможностям выбора печи и современным печам, неоднократно уточняю заказчику неясные вопросы. И все это бесплатно. Что еще Вы хотите бесплатно?
Что касается уже конкретной профессиональной работы печника по решению конкретных задач и строительству печи - естественно, за нее надо платить, так как печник семью "спасибом" не накормит.
Если у заказчика недостаточно денег, то я всегда иду ему навстречу и предлагаю варианты разумной экономии.
Насчет лишнего слова, чтобы не выдать секреты: просто не вижу смысла и интереса в бесполезных объяснениях, которые к делу не относятся и заведомо непонятны заказчику как неспециалисту. Эти объяснения только запутывают заказчика, отнимают у него и у меня силы и время.
|
|
|
|
    |
 |
Tol'an
Зарегистрирован: Чт 27 Январь 2011, 14:07
Сообщения: 6
Регион: Москва
|
Добавлено:
Чт 14 Июль 2011, 20:29
|
  |
Все в силе, требуется хороший печник банную печь сложить.
|
|
|
|
   |
 |
ramunаs
Зарегистрирован: Вт 3 Май 2011, 14:55
Сообщения: 265
Регион: Lithuania
|
Добавлено:
Пт 15 Июль 2011, 01:48
|
  |
в такой расклад можно печку с каменкой с боку впендюрить - будет греть все смежные с парилкой помещения. а если регистр впендюрить в колпак , то можно получить печку с двумя каменками - одну с непосредственным нагревом, а вторую - с косвенным.
|
|
|
|
    |
 |
|
|
|
Следующая тема
Предыдущая тема
Вы не можете начинать темы Вы не можете отвечать на сообщения Вы не можете редактировать свои сообщения Вы не можете удалять свои сообщения Вы не можете голосовать в опросах Вы не можете добавлять приложения в этом форуме Вы можете скачивать файлы в этом форуме
|
|