Некоммерческое партнерство Альянс Печных Дел Мастера
 RSS  • FAQ  •  Поиск  •  Пользователи  •  Группы   •  Регистрация   •  Избранные темы   •  Профиль  •  Войти и проверить личные сообщения  •  Чат  •  Вход





 Про размещение печи в парилке. Следующая тема
Предыдущая тема
Начать новую темуОтветить на тему
Автор Сообщение
Еленка_



Зарегистрирован: Чт 8 Сентябрь 2011, 08:43
Сообщения: 11
Регион: Москва

СообщениеДобавлено: Чт 8 Сентябрь 2011, 08:50 Ответить с цитатойВернуться к началу

Выбрали баню-гостевой дом, в ближайшее время планируем залить ленточный фундамент. Хотим потом поставить печку каменку. Возник вопрос, с заливкой ленты видимо целесообразно залить фундамент под печь, но не знаем какого размера и в каком месте это лучше сделать. Мастера, помогите, пожалуйста, определиться. План прилагаю. И еще: баня будет в два этажа, хотелось бы чтоб при топке грелось помещение через стенку и 2-й этаж. Это реально?



1 этаж.jpg
 Описание:
 Размер файла:  56.22 КБ
 Просмотров:  1096 раз(а)

1 этаж.jpg


Посмотреть профильОтправить личное сообщение
Андрей Ищенко
Проектировщик


Зарегистрирован: Вт 7 Февраль 2006, 10:08
Сообщения: 2946
Регион: Пенза

СообщениеДобавлено: Чт 8 Сентябрь 2011, 11:20 Ответить с цитатойВернуться к началу

Первый этаж отопим, второй сложнее.

_________________
+7 962 974-10-94   Viber WhatsApp  
+7 962 399-59-39


Печь.JPG
 Описание:
 Размер файла:  27.38 КБ
 Просмотров:  1000 раз(а)

Печь.JPG


Посмотреть профильОтправить личное сообщениеОтправить e-mailПосетить сайт автораПозвонить автору
Еленка_



Зарегистрирован: Чт 8 Сентябрь 2011, 08:43
Сообщения: 11
Регион: Москва

СообщениеДобавлено: Чт 8 Сентябрь 2011, 11:44 Ответить с цитатойВернуться к началу

Спасибо!
А этот периметр видимо надо полностью залить, я правильно понимаю?
Ага и тогда мне бы еще понимать где труба будет проходить, чтоб лаги правильно положить.



2 этаж.jpg
 Описание:
 Размер файла:  48.81 КБ
 Просмотров:  936 раз(а)

2 этаж.jpg


Посмотреть профильОтправить личное сообщение
Андрей Ищенко
Проектировщик


Зарегистрирован: Вт 7 Февраль 2006, 10:08
Сообщения: 2946
Регион: Пенза

СообщениеДобавлено: Чт 8 Сентябрь 2011, 13:18 Ответить с цитатойВернуться к началу

Фундамент можно сделать шире печки, труба в правом или левом верхних углах печи, 52х52 см.

_________________
+7 962 974-10-94   Viber WhatsApp  
+7 962 399-59-39
Посмотреть профильОтправить личное сообщениеОтправить e-mailПосетить сайт автораПозвонить автору
Шура



Зарегистрирован: Чт 8 Январь 2009, 20:09
Сообщения: 4171
Регион: Москва - Тамбов

СообщениеДобавлено: Чт 8 Сентябрь 2011, 15:27 Ответить с цитатойВернуться к началу

Еленка_ писал(а):
Спасибо!
А этот периметр видимо надо полностью залить, я правильно понимаю?
Ага и тогда мне бы еще понимать где труба будет проходить, чтоб лаги правильно положить.

Можно так, синим показан фундамент печи.



баня1.jpg
 Описание:
 Размер файла:  78.3 КБ
 Просмотров:  1170 раз(а)

баня1.jpg


Посмотреть профильОтправить личное сообщениеОтправить e-mail
Еленка_



Зарегистрирован: Чт 8 Сентябрь 2011, 08:43
Сообщения: 11
Регион: Москва

СообщениеДобавлено: Чт 8 Сентябрь 2011, 15:53 Ответить с цитатойВернуться к началу

Печь стоит ровно посередине стены? И можно как-то с размерами указать?
Посмотреть профильОтправить личное сообщение
Андрей Ищенко
Проектировщик


Зарегистрирован: Вт 7 Февраль 2006, 10:08
Сообщения: 2946
Регион: Пенза

СообщениеДобавлено: Чт 8 Сентябрь 2011, 16:46 Ответить с цитатойВернуться к началу

Еленка_ писал(а):
Печь стоит ровно посередине стены? И можно как-то с размерами указать?

Если вопрос ко мне, то размеры указаны, и от правой стены печь отодвинута на пожаробезопасное расстояние 25 см. (на рисунке лежит кирпич).

_________________
+7 962 974-10-94   Viber WhatsApp  
+7 962 399-59-39
Посмотреть профильОтправить личное сообщениеОтправить e-mailПосетить сайт автораПозвонить автору
pe4ka



Зарегистрирован: Ср 23 Сентябрь 2009, 17:36
Сообщения: 1918
Регион: Туймазы

СообщениеДобавлено: Пт 16 Сентябрь 2011, 18:51 Ответить с цитатойВернуться к началу

Очень важно с дымоходами решить не потом а сейчас и на сколько каналоа будет ли камин.На втором этаже надо отдельную печь со своей топкой.В вашем случае зеркало теплового излучения печи должно греть несколько комнат.В какорй стадии стройка.Вариант печь для нагрва комнат с камином а БАННАЯ по черному пойдет или нет...ПРИВЕТ всем из солнечной башкирии.Помни посетитель форума печь без ВАЛУНОВ И БЕЗ РАСКАЛЕННЫХ ДОБЕЛА КАМНЕЙ НЕ ПЕЧЬ КАМЕНКА.Это просто кирпичная печь.И на форуме енадо четео разделить где кирпичные печи а где печи каменки-от слова камни...

_________________
окажу консультации по кладке печей каминов и их ремонту д51055 код8-34782 сот 8-9173752622 г.Туймазы башкирия
Посмотреть профильОтправить личное сообщениеОтправить e-mail
Еленка_



Зарегистрирован: Чт 8 Сентябрь 2011, 08:43
Сообщения: 11
Регион: Москва

СообщениеДобавлено: Вт 11 Октябрь 2011, 16:24 Ответить с цитатойВернуться к началу

pe4ka писал(а):
.В какорй стадии стройка.Вариант печь для нагрва комнат с камином а БАННАЯ по черному пойдет или нет...ПРИВЕТ всем из солнечной башкирии.Помни посетитель форума печь без ВАЛУНОВ И БЕЗ РАСКАЛЕННЫХ ДОБЕЛА КАМНЕЙ НЕ ПЕЧЬ КАМЕНКА.Это просто кирпичная печь.И на форуме енадо четео разделить где кирпичные печи а где печи каменки-от слова камни...
Стройка в начальной стадии, поэтому и пытаюсь понять как сделать лучше фундамент, чтоб не мучится потом.
Посмотреть профильОтправить личное сообщение
Еленка_



Зарегистрирован: Чт 8 Сентябрь 2011, 08:43
Сообщения: 11
Регион: Москва

СообщениеДобавлено: Пн 14 Ноябрь 2011, 20:29 Ответить с цитатойВернуться к началу

Залили фундамен, заложили под печь 1,17 на 0,91 буду благодарна за прект печи, цель писала в первом посте.
Посмотреть профильОтправить личное сообщение
ЮрийК



Зарегистрирован: Пт 6 Январь 2012, 10:32
Сообщения: 14
Регион: Москва

СообщениеДобавлено: Пт 6 Январь 2012, 14:15 Ответить с цитатойВернуться к началу

Есть такая печька, которая позволит отопить: и первый этаж, и второй этаж , и париться в бане.
Или проблема решена??? Question
Посмотреть профильОтправить личное сообщение
Еленка_



Зарегистрирован: Чт 8 Сентябрь 2011, 08:43
Сообщения: 11
Регион: Москва

СообщениеДобавлено: Вс 8 Январь 2012, 21:26 Ответить с цитатойВернуться к началу

Нет пока отстаивается банька, остальные работы по весне
Посмотреть профильОтправить личное сообщение
Андрей_Алексеевич



Зарегистрирован: Пн 13 Декабрь 2010, 19:17
Сообщения: 5990
Регион: малая родина Павлова, Скобелева, Циолковского, Уткиных и др.

СообщениеДобавлено: Вс 8 Январь 2012, 21:58 Ответить с цитатойВернуться к началу

Еленка_ писал(а):
Залили фундамен, заложили под печь 1,17 на 0,91 буду благодарна за прект печи, цель писала в первом посте.


Покажите на плане 1-го этажа расположение фундамента под печь-каменку.
Сам сделал бы вот так, как-то...

_________________
Печник - милостью и промыслом Божиим.
Печное отопление частного дома и т.п., авторское сопровождение проектов, наставничество в т.ч. дистанционное, партнёрство в кладке печей.
89106130763 МТС
andrejka61@mail.ru
andrej.kuzmischev@yandex.ru


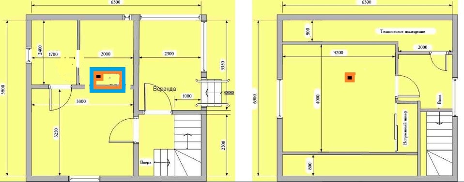
1 этаж жилой бани 1.JPG
 Описание:
 Размер файла:  49.12 КБ
 Просмотров:  921 раз(а)

1 этаж жилой бани 1.JPG



2 этаж жилой бани 2.JPG
 Описание:
 Размер файла:  42.36 КБ
 Просмотров:  837 раз(а)

2 этаж жилой бани 2.JPG


Посмотреть профильОтправить личное сообщениеПозвонить автору
ЮрийК



Зарегистрирован: Пт 6 Январь 2012, 10:32
Сообщения: 14
Регион: Москва

СообщениеДобавлено: Вс 8 Январь 2012, 22:47 Ответить с цитатойВернуться к началу

Необходимые условия заливки фундамента под печь:
1. фундамент должен примыкать к стенам помещений, которые нужно обогревать на первом этаже;
2. труба должна выходить в помещение на втором этаже, которое нужно обогревать;
3. расстояние между балками перекрытия над печкой не менее 60 см. а лучше 80 см.
4. размеры фундамента: размер печи + 30 см. на каждую сторону.
5. фундамент не доводить до пола 25-35 см.
Посмотреть профильОтправить личное сообщение
Андрей_Алексеевич



Зарегистрирован: Пн 13 Декабрь 2010, 19:17
Сообщения: 5990
Регион: малая родина Павлова, Скобелева, Циолковского, Уткиных и др.

СообщениеДобавлено: Пн 9 Январь 2012, 09:50 Ответить с цитатойВернуться к началу

Еленка_ писал(а):
Нет пока отстаивается банька, остальные работы по весне


А "техническое помещение" 80 см - оно Вам надо???
Подымите стены до уровня подоконников второго этажа Smile , а уже от них ведите крышу!!!
Самое место!!! для диванов-кроватей!!! Радость
А уж выгода по площадям!!! на единицу капитальных вложений в фундамент-стены-крыша-отопление...

_________________
Печник - милостью и промыслом Божиим.
Печное отопление частного дома и т.п., авторское сопровождение проектов, наставничество в т.ч. дистанционное, партнёрство в кладке печей.
89106130763 МТС
andrejka61@mail.ru
andrej.kuzmischev@yandex.ru


фасады.JPG
 Описание:
 Размер файла:  34.83 КБ
 Просмотров:  876 раз(а)

фасады.JPG


Посмотреть профильОтправить личное сообщениеПозвонить автору
Еленка_



Зарегистрирован: Чт 8 Сентябрь 2011, 08:43
Сообщения: 11
Регион: Москва

СообщениеДобавлено: Пн 9 Январь 2012, 15:42 Ответить с цитатойВернуться к началу

Андрей_Алексеевич писал(а):
Еленка_ писал(а):
Залили фундамен, заложили под печь 1,17 на 0,91 буду благодарна за прект печи, цель писала в первом посте.


Покажите на плане 1-го этажа расположение фундамента под печь-каменку.
Сам сделал бы вот так, как-то...


Фундамент залит, как во 2м посте Андрей Ищенко советовал.
А на счет поднять стены уже поздно. Избушка стоит уже.
Посмотреть профильОтправить личное сообщение
Андрей_Алексеевич



Зарегистрирован: Пн 13 Декабрь 2010, 19:17
Сообщения: 5990
Регион: малая родина Павлова, Скобелева, Циолковского, Уткиных и др.

СообщениеДобавлено: Пн 9 Январь 2012, 19:24 Ответить с цитатойВернуться к началу

Свою рисую вот уже который год, используя опыт строительства и эксплуатации у друзей-заказчиков...
И вопросы материалоёмкости (а, значит, себестоимости м.кв.) - отнюдь не на последнем....

_________________
Печник - милостью и промыслом Божиим.
Печное отопление частного дома и т.п., авторское сопровождение проектов, наставничество в т.ч. дистанционное, партнёрство в кладке печей.
89106130763 МТС
andrejka61@mail.ru
andrej.kuzmischev@yandex.ru
Посмотреть профильОтправить личное сообщениеПозвонить автору
ЮрийК



Зарегистрирован: Пт 6 Январь 2012, 10:32
Сообщения: 14
Регион: Москва

СообщениеДобавлено: Пн 9 Январь 2012, 22:42 Ответить с цитатойВернуться к началу

Еленка_ писал(а):
Нет пока отстаивается банька, остальные работы по весне

А где техническое задание на обогревательный комплекс?
Условия эксплуатации: лето? зима? постоянное проживание? наездами? чем топить? сколько воды греть? банные предпочтения? утепление? климатическая зона?
И только после этого можно что-то придумывать.
Весна уже не за горами.
Посмотреть профильОтправить личное сообщение
Еленка_



Зарегистрирован: Чт 8 Сентябрь 2011, 08:43
Сообщения: 11
Регион: Москва

СообщениеДобавлено: Вт 10 Январь 2012, 08:59 Ответить с цитатойВернуться к началу

ЮрийК писал(а):
Еленка_ писал(а):
Нет пока отстаивается банька, остальные работы по весне

А где техническое задание на обогревательный комплекс?
Условия эксплуатации: лето? зима? постоянное проживание? наездами? чем топить? сколько воды греть? банные предпочтения? утепление? климатическая зона?
И только после этого можно что-то придумывать.
Весна уже не за горами.


Проживание наездами, но хочется поддерживать плюсовую температуру, чтоб не сливать системы водоснабжения. Топить дровами, режим в бане ближе к русской бане (чтоб уши в трубочку не сворачивались). Про утепление не поняла вопрос. Баня во Владимирской области.
Посмотреть профильОтправить личное сообщение
ЮрийК



Зарегистрирован: Пт 6 Январь 2012, 10:32
Сообщения: 14
Регион: Москва

СообщениеДобавлено: Вт 10 Январь 2012, 21:21 Ответить с цитатойВернуться к началу

Еленка_ писал(а):
Нет пока отстаивается банька, остальные работы по весне

Если за бортом -30, то для подъдержания плюсовой температуры нужен постоянный обогрев.
Чем греть будете?
Чем планируете утеплять стены, потолок особенно второй этаж?
Или планируете дублировать систему отопления?
Посмотреть профильОтправить личное сообщение
Показать сообщения:      
Начать новую темуОтветить на тему


 Перейти:   



Следующая тема
Предыдущая тема
Вы не можете начинать темы
Вы не можете отвечать на сообщения
Вы не можете редактировать свои сообщения
Вы не можете удалять свои сообщения
Вы не можете голосовать в опросах
Вы не можете добавлять приложения в этом форуме
Вы можете скачивать файлы в этом форуме




Проект форум печников "Альянс. Печных Дел Мастера" © 2006-2026