 |
|
 |
| Автор |
Сообщение
|
Егор Николаевич
Зарегистрирован: Пн 10 Октябрь 2011, 11:32
Сообщения: 4
Регион: Бурятия
|
Добавлено:
Пн 17 Октябрь 2011, 04:34
|
  |
Здравствуйте. Нужна печь с плитой, без духового шкафа 4x3.5 кирпича, фундамент уже залит.
Дом 6x6, потолок 2.4м. Желательна 1 топка в сутки.
Думаю про "Шведку" или варочную плиту со щитком, хватит их для обогрева?
|
| Описание: |
|
| Размер файла: |
15.88 КБ |
| Просмотров: |
794 раз(а) |

|
|
|
  |
 |
Евгений Колчин

Зарегистрирован: Чт 3 Октябрь 2002, 06:26
Сообщения: 10143
Регион: Москва
|
Добавлено:
Пн 17 Октябрь 2011, 09:01
|
  |
- объемно планировочный план вашего дома, с указанием размеров помещений, расположением дверей и окон, а так же материал и конструкция стен и перегородок
- обозначение высот вашего дома: первого, второго .. и так же до конька кровли
- назначение очага в доме: основное отопление или вспомогательное, если последнее, то как организовано основное
- наличие естественной или искуственной вентиляции дома
- место расположения очага, его функциональное назначение: камин, топка с какой стороны, наличие котел или регистра ГВС
- наличие в данном месте фундамента, его размер и точная привязка к плану
|
_________________ ************************************
|
|
      |
 |
Егор Николаевич
Зарегистрирован: Пн 10 Октябрь 2011, 11:32
Сообщения: 4
Регион: Бурятия
|
Добавлено:
Пн 17 Октябрь 2011, 10:48
|
  |
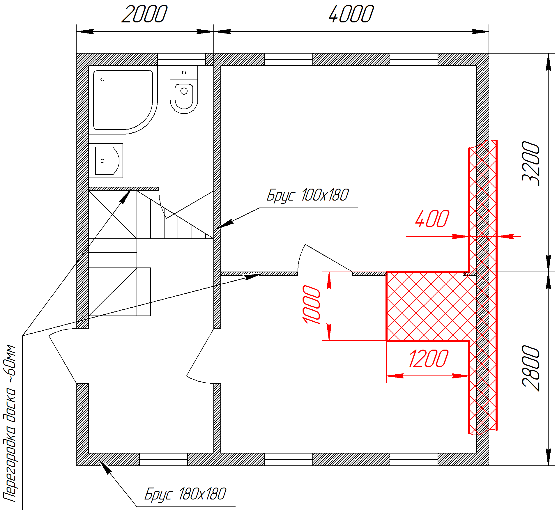
Назначение основное отопление 1 этажа, плита как бонус.
Высота фундамента min - 600мм, в районе печи - 800мм
Пол отметка 320 (от фундамента), потолок отметка - 2750, конек кровли ~6200
Окна 5шт. - 800x1200мм, 1шт. - 800x400мм (в ванной)
Дверца топки со стороны входа.
|
| Описание: |
|
| Размер файла: |
84.15 КБ |
| Просмотров: |
801 раз(а) |

|
|
|
  |
 |
Андрей_Алексеевич

Зарегистрирован: Пн 13 Декабрь 2010, 19:17
Сообщения: 5909
Регион: малая родина Павлова, Скобелева, Циолковского, Уткиных и др.
|
Добавлено:
Вт 18 Октябрь 2011, 08:34
|
  |
Даже с "Плита двухконфорочная П2-1 (Б) 585х340мм" и регистром ГВС для санузла размеры фундамента "тютелька в тютельку"
|
_________________ Печник - милостью и промыслом Божиим.
Печное отопление частного дома и т.п., авторское сопровождение проектов, наставничество в т.ч. дистанционное, партнёрство в кладке печей.
89106130763 МТС
andrejka61@mail.ru
andrej.kuzmischev@yandex.ru
| Описание: |
а в торце топки ставьте регистр ГВС... Сам использую для этого "радиаторы чугунные МС-140-300-0.9" |
|
| Размер файла: |
57.02 КБ |
| Просмотров: |
595 раз(а) |

|
|
|
   |
 |
Егор Николаевич
Зарегистрирован: Пн 10 Октябрь 2011, 11:32
Сообщения: 4
Регион: Бурятия
|
Добавлено:
Чт 20 Октябрь 2011, 07:14
|
  |
Ну вот в соседней теме нашел картинку, как раз "Шведка" 4 на 3.5 кирпича, с топкой сбоку.
Вопрос такой: греть будет лучше чем эта с укороченной топкой на полкирпича?
|
| Описание: |
|
| Размер файла: |
32.79 КБ |
| Просмотров: |
901 раз(а) |

|
|
|
  |
 |
pe4ka
Зарегистрирован: Ср 23 Сентябрь 2009, 17:36
Сообщения: 1917
Регион: Туймазы
|
Добавлено:
Чт 20 Октябрь 2011, 10:34
|
  |
Печь надо переместить влево чтобы она грела все 3 комнаты .А на этом фундаменте камин построите.Этот вариант никуда не годится.Еще расположение балок неизвестно.И вообще в какой стадии стройка.С чертежами проблем нет.Сначала с опытными проектировщиками по отоплению всего здания сделайте расчеты по потерям тепла.Как конек и балки перекрытия где расположены.
|
_________________ окажу консультации по кладке печей каминов и их ремонту д51055 код8-34782 сот 8-9173752622 г.Туймазы башкирия
|
|
   |
 |
Андрей_Алексеевич

Зарегистрирован: Пн 13 Декабрь 2010, 19:17
Сообщения: 5909
Регион: малая родина Павлова, Скобелева, Циолковского, Уткиных и др.
|
Добавлено:
Чт 20 Октябрь 2011, 18:47
|
  |
| Егор Николаевич писал(а): |
Ну вот в соседней теме нашел картинку, как раз "Шведка" 4 на 3.5 кирпича, с топкой сбоку.
Вопрос такой: греть будет лучше чем эта с укороченной топкой на полкирпича? |
ТОпка то покороче, да ОНА 4,5х3,5 - просчитались Вы с фундаментом (зато съэкономили места и материалов!!!).
Не смотря на укороченную топку, "эта" по-любому мощнее - площадь ТОП больше! да ещё два яруса-колпака + ПНП!
|
_________________ Печник - милостью и промыслом Божиим.
Печное отопление частного дома и т.п., авторское сопровождение проектов, наставничество в т.ч. дистанционное, партнёрство в кладке печей.
89106130763 МТС
andrejka61@mail.ru
andrej.kuzmischev@yandex.ru
|
|
   |
 |
Егор Николаевич
Зарегистрирован: Пн 10 Октябрь 2011, 11:32
Сообщения: 4
Регион: Бурятия
|
Добавлено:
Пт 21 Октябрь 2011, 07:02
|
  |
pe4ka
У меня гараж будет за правой стеной, да и домик то 6x6 всего, нормально прогревать должна.
Стройка в стадии начала возведения сруба
Андрей_Алексеевич
Я имел ввиду укоротить топку у этой печи вот типа так
|
| Описание: |
| Плиту покороче и нормуль вроде |
|
| Размер файла: |
138.27 КБ |
| Просмотров: |
893 раз(а) |

|
| Описание: |
Корок конечно много но основной смысл я думаю понятен. За исходную модель спасибо nick_e |
|
 Скачать |
| Название файла: |
3.5x4.zip |
| Размер файла: |
54.96 КБ |
| Скачено: |
498 раз(а) |
|
|
  |
 |
pe4ka
Зарегистрирован: Ср 23 Сентябрь 2009, 17:36
Сообщения: 1917
Регион: Туймазы
|
Добавлено:
Сб 22 Октябрь 2011, 15:39
|
  |
ГАРАЖ МНОГО ТЕПЛА ЗАБЕРЕТ А ВЕДЬ НАДО ДОМ ГРЕТЬ.В какой стадии стройка у вас.Чугунная плита нежелательна она сильно воздух сушит и надежность ее меньше чем у печи без плиты.Ее ведь надо ремонтировать и доступ доложен быть 80 см чтобы человек прошел вокруг печи.
|
_________________ окажу консультации по кладке печей каминов и их ремонту д51055 код8-34782 сот 8-9173752622 г.Туймазы башкирия
|
|
   |
 |
|
|
|
Следующая тема
Предыдущая тема
Вы не можете начинать темы Вы не можете отвечать на сообщения Вы не можете редактировать свои сообщения Вы не можете удалять свои сообщения Вы не можете голосовать в опросах Вы не можете добавлять приложения в этом форуме Вы можете скачивать файлы в этом форуме
|
|