 |
|
 |
| Автор |
Сообщение
|
Nickolay
Зарегистрирован: Сб 3 Декабрь 2011, 22:05
Сообщения: 3
Регион: Москва
|
Добавлено:
Сб 3 Декабрь 2011, 22:16
|
  |
Уважаемые форумчане,
Пожалуйста, оцените прилагаемый проект печи (рис. Pech) на предмет соответствия требованиям. Данный проект заказан мною у Разработчка, и по согласованию с Разработчиком я выкладываю проект на обсуждение форума. Это первый эскиз печи, мы понимаем с Разработчиком что там есть недостатки, и хотели бы обсудить концепцию печи с вами.
Требования:
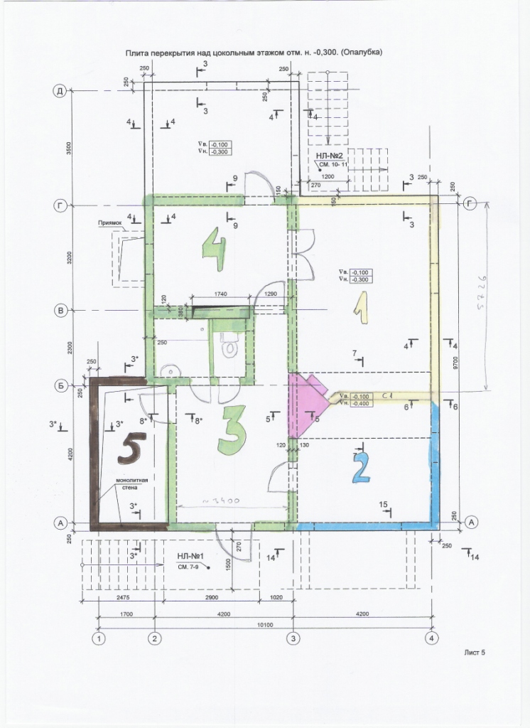
1. Двухэтажная печь с одной топкой на первом этаже. Назначение: подтопка дома в холодные пятидневки, резервное средство обогрева дома на случай выхода из строя газового отопления, камин. Основное отопление дома планируется от газового котла (пропан-бутан). Дом - трехэтажный коттедж – цоколь, 1 и 2 этажи изолированы друг от друга дверью на лестницу 5 (см. рис. Dom). Несущие наружные и внутренние стены - кирпичные, 250 мм. Наружное утепление дома минватой 150 мм и пол-кирпича.
2. Примерное желаемое расположение печи показано на рис. Dom.jpg – на полу первого этажа коттеджа c выходом в три помещения первого этажа и с таким же выходом в три помещения второго этажа. Печь должна располагаться на двухметровой железобетонной плите шириной 2000, ограниченной пунктирными линиями между комнатами 1 и 2. Расчетная масса печи с трубой – до 10 тонн (при необходимости, увеличение обсуждаемо). Расположение стены С1 между комнатами 1 и 2 и примыкание этой стены к печи обсуждаемо.
3. Печь высокой теплоемкости с протопкой один раз в сутки. Отапливается одной закладкой дров со стороны помещения 1. Должна обеспечивать пропорциональный прогрев помещений теплого контура дома. Площадь/объем помещений 1 и 2 этажей приведены в таблице:
Пом._ S, м2_ V1, м3_ V2, м3
1_ 28_ 84_ 98
2_ 19_ 56_ 66
3+4_ 45_ 134_ 156
4. Печь должна допускать топку в режиме камина (по крайней мере с закрытой стеклянной дверкой), топку только первого этажа, топку сразу первого и второго этажа. Максимум задвижек должны располагаться на первом этаже, желательно в помещениях 1 и 3. Желательно наличие хлебной камеры. Желательна стеклянная топочная дверка. Если такое бывает, то закрываемая снаружи еще и чугунной дверкой.
5. Труба должна выходить из печи в стороне от конькового бруса с соблюдением необходимого противопожарного отступа в 250, а лучше 380 мм. Коньковый брус шириной 250 мм будет проходить по центральной стене между помещениями 1/2 и 3/4.
6. Печь должна быть с высоким КПД, традиционной отработанной конструкции.
7. Конструкция печи должна предусматривать возможность кладки ее с изразцами по крайней мере в помещения 1 и 2.
Первые комментарии по печи:
1. Труба выходит точно на конек – надо изменить, чтобы выходила в стороне.
2. Топливник кажется непропорционально маленьким для протопки одной закладкой дров – увеличить?
3. Разработчик предполагает, что печь нельзя будет протопить одной топкой и что ее неизбежно нужно будет топить два раза (не столько из-за малого топливника, сколько из-за свойств прогрева кирпича первого и второго этажа). Справедливо ли это?
4. Не мало ли колпаков в этой печи? Не будет ли перегрева верхней части?
Спасибо,
Николай Умнов
|
| Описание: |
|
| Размер файла: |
398.38 КБ |
| Просмотров: |
1487 раз(а) |

|
| Описание: |
|
| Размер файла: |
269.64 КБ |
| Просмотров: |
958 раз(а) |

|
|
|
  |
 |
Андрей_Алексеевич

Зарегистрирован: Пн 13 Декабрь 2010, 19:17
Сообщения: 5990
Регион: малая родина Павлова, Скобелева, Циолковского, Уткиных и др.
|
Добавлено:
Сб 3 Декабрь 2011, 23:00
|
  |
В 31-ом ряду (фасад) измените порядовку, чтобы соблюсти перевязку, а то у Вас три ложковых друг над другом
Из вертикальных разрезов следует, что в первом ярусе-колпаке между перевалом и подвёрткой 20 рядов кирпичной кладки... а труба 130х250 протянет такое сопротивление? Да ещё в режиме открытого камина...
Если возможно, выложите порядовку, так проще разбираться.
|
_________________ Печник - милостью и промыслом Божиим.
Печное отопление частного дома и т.п., авторское сопровождение проектов, наставничество в т.ч. дистанционное, партнёрство в кладке печей.
89106130763 МТС
andrejka61@mail.ru
andrej.kuzmischev@yandex.ru
|
|
   |
 |
Шура

Зарегистрирован: Чт 8 Январь 2009, 20:09
Сообщения: 4171
Регион: Москва - Тамбов
|
Добавлено:
Вс 4 Декабрь 2011, 00:23
|
  |
1. Печь не колпаковая, а канальная, с невнятной конвективной системой.
2. Не вижу смысла в треугольной конфигурации, для этих помещений.
На мой взгляд, для этого дома, лучше подошёл бы одноэтажный печь-котёл(с большой каминной дверкой и хлебной камерой), интегрированный в основную систему водяного отопления или с собственным гравитационным контуром.
|
|
|
|
   |
 |
Nickolay
Зарегистрирован: Сб 3 Декабрь 2011, 22:05
Сообщения: 3
Регион: Москва
|
Добавлено:
Вс 4 Декабрь 2011, 14:07
|
  |
Андрей Алексеевич, Шура, здравствуйте
Спасибо за комментарии. Отвечаю на вопросы.
1. Прядовки печи пока нет. Идет обсуждение принципиальной конструкции - порядовка будет позже.
2. Основание под печь допускает прямоугольную конструкцию - печь может располагаться в любом месте стены С1 между помещениями 1 и 2, при массе печи до 10 тонн. Если не получится сделать хорошую треугольную конструкцию с топкой из помещения 1, то я буду рассматривать другие варианты. Например, треугольная печь с топкой из помещения 3. Или прямоугольная печь, выходящая в помещения 1-2-3 с топкой из помещения 1 или из помещения 3. Или прямоугольная печь, выходящая только в помещения 1 и 2, с топкой из помещения 1. Очень хочется сделать двухэтажную печь с одной топкой на первом этаже. Если не получится - то будут рассматривать две топки - на первом и втором. Встроенный контур водяного отопления в печи не рассматривается - в доме будет отдельная бойлерная на цокольном этаже со своим конуром отопления.
Буду благодарен за дополнительные комментарии/идеи/мысли.
С уважением,
Николай
|
|
|
|
  |
 |
Андрей_Алексеевич

Зарегистрирован: Пн 13 Декабрь 2010, 19:17
Сообщения: 5990
Регион: малая родина Павлова, Скобелева, Циолковского, Уткиных и др.
|
Добавлено:
Вс 4 Декабрь 2011, 15:15
|
  |
Киньте план 2-го этажа и поговорим, как культурные люди...
Я не стал бы отказываться от регистра ГВС, запараллеленного с котлом - отключить за ненадобностью - просто (пара шаровых), а вот использовать, при недостатке в сетях голубого топлива - самое ТО!!!
Да и затраты - смешные: 2,3 тырРФ на полотенцесушилку из нержавейки Ф=50х3
|
_________________ Печник - милостью и промыслом Божиим.
Печное отопление частного дома и т.п., авторское сопровождение проектов, наставничество в т.ч. дистанционное, партнёрство в кладке печей.
89106130763 МТС
andrejka61@mail.ru
andrej.kuzmischev@yandex.ru
| Описание: |
|
| Размер файла: |
10.06 КБ |
| Просмотров: |
813 раз(а) |

|
|
|
   |
 |
Nickolay
Зарегистрирован: Сб 3 Декабрь 2011, 22:05
Сообщения: 3
Регион: Москва
|
Добавлено:
Вс 4 Декабрь 2011, 15:55
|
  |
Андрей Алексеевич, здравствуйте
План второго этажа идентичен первому (см. рис Dom в начале этой переписки), с небольшими изменениями. Отличия для второго этажа такие:
Помещение 4 вместо кухни становится комнатой. Вход в помещение 1 перемещается в коридор ближе к печи - чтобы комната 4 не была проходной. Потолки становятся мансардными, поэтому средняя высота потолка увеличивается. Из помещений 2 и 3 появляется выход на балкон. Стена С1 между 1 и 2 помещениями на обоих этажах будет располагаться одинаково.
По поводу контура ГВС - не хочу усложнять печку. Газ у меня не магистральный - будет пропан-бутан в газгольдере. Если надо, я в бойлерной поставлю угольный/дровяной/электрический котел в дополнение к газовому (или сразу многотопливный). Печь у меня будет для души и, возможно, с изразцами. Лешнее железно в ней ставить не хочу.
С уважением,
Николай
|
|
|
|
  |
 |
|
|
|
Следующая тема
Предыдущая тема
Вы не можете начинать темы Вы не можете отвечать на сообщения Вы не можете редактировать свои сообщения Вы не можете удалять свои сообщения Вы не можете голосовать в опросах Вы не можете добавлять приложения в этом форуме Вы можете скачивать файлы в этом форуме
|
|