 |
|
 |
| Автор |
Сообщение
|
Доцент
Зарегистрирован: Пт 9 Декабрь 2011, 21:06
Сообщения: 3
Регион: Москва
|
Добавлено:
Ср 14 Декабрь 2011, 13:05
|
  |
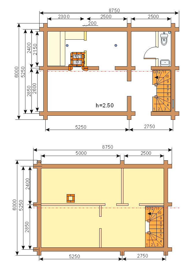
Уважаемые Мастера!
Заказал сруб для охотничего домика с утепленной мансардой и баней на 1 этаже (схемы ниже). Планирую наезжать туда (Ивановская обл.) 2-3 раза в месяц на 2-4 дня круглый год. Сруб из бревна d 25 см. Между парной и помывочной деревянная утепленная перегородка.
Планирую использовать металическую печ ТЕКЛАР в кирпичном каркасе (быстро отдает тепло и дает ефект руской парной). При протопке бани обогреваются и смежные помещения, что позволяет ночевать зимой на 1-м этаже 1-2 чел. Но если баня не топится, то без отопления зимой ночевать нельзя. Особено смущает отсутствие отопления на мансарде, гдерасполагаются гости. В связи с этм вопрос:
1. Как организовать отопление 1-го этажа в случае если баня не топится? Хочется сделать кирпичную печ совмещенную с дымоходом банной печи. Какую печь выбрать и как организовать общий дымоход исходя из планировки?
2. Как отапливать 2-й этаж (мансарду). Очень смущает расположение дымохода на мансарде. Как и какую печь можно установить на 2-м этаже.
Сруб и фундамент планируется установить летом. Пока есть возможность внести изменения в проект.
Буду признателен любым советам. Готов рассмотреть возможность изготовления проекта. Печ планирую поставить сам, если она не будет сложной.
|
| Описание: |
|
| Размер файла: |
118.25 КБ |
| Просмотров: |
1019 раз(а) |

|
|
|
  |
 |
Андрей_Алексеевич

Зарегистрирован: Пн 13 Декабрь 2010, 19:17
Сообщения: 5990
Регион: малая родина Павлова, Скобелева, Циолковского, Уткиных и др.
|
Добавлено:
Ср 14 Декабрь 2011, 17:16
|
  |
Первый этаж:
- поменять местами парную и душевую;
- поставить банный печной комплекс - камин+каменка в простенок-перекрестие, чтобы грелся и санузел (наприм. спросить Александра Шалагина - ссылки не сохранил, но м.б., да наверняка! Евгений Викторович добавит )
- над каминной топкой поставить ХК;
- в топку обязательно вделать регистр ГВС и поставить ТАКкумулятор 1,5-2,0 м.куб.!
Второй этаж:
- дымовую трубу, объединяющую каменку и камин, провести через второй этаж в виде щитка 1,5х5,5 кирпича.
УСПЕХОВ!!!
Рисуйте и выкладывайте проекты!
|
_________________ Печник - милостью и промыслом Божиим.
Печное отопление частного дома и т.п., авторское сопровождение проектов, наставничество в т.ч. дистанционное, партнёрство в кладке печей.
89106130763 МТС
andrejka61@mail.ru
andrej.kuzmischev@yandex.ru
|
|
   |
 |
Доцент
Зарегистрирован: Пт 9 Декабрь 2011, 21:06
Сообщения: 3
Регион: Москва
|
Добавлено:
Ср 14 Декабрь 2011, 18:53
|
  |
Спасибо за участие.
Поменять местами можно, и это будет лучше для размещения трубы на 2 этаже. Но в плане эксплуатации бани, лучше иметь моечную ближе к входной двери, чтобы не мешая отдыхающим в комнате отдыха (в углу ближе к окну) выскочить на улицу в снег. А не могли бы Вы дать ссылку на порядовку такого щитка. И будет ли достаточно температуры на выходе из каменки, чтобы дымовые газы прошли сквозь такой щиток?
Забыл отметить, что полы в парной и моечной устроены на бетонном перекрытии.
|
|
|
|
  |
 |
|
|
|
Следующая тема
Предыдущая тема
Вы не можете начинать темы Вы не можете отвечать на сообщения Вы не можете редактировать свои сообщения Вы не можете удалять свои сообщения Вы не можете голосовать в опросах Вы не можете добавлять приложения в этом форуме Вы можете скачивать файлы в этом форуме
|
|