| Автор |
Сообщение
|
Максмил
Зарегистрирован: Вс 11 Март 2012, 13:43
Сообщения: 7
Регион: Моск. обл
|
Добавлено:
Вс 11 Март 2012, 15:37
|
  |
Нужен печник для постройки в дачном доме круглой или угловой печи.
Дом из бревна диаметром 200 мм. Высота потолка 2700 мм. Размеры фундамента и сам фундамент указан красным шрифтом.[/b]
|
| Описание: |
|
| Размер файла: |
70.81 КБ |
| Просмотров: |
704 раз(а) |

|
|
|
  |
 |
Elm

Зарегистрирован: Пн 12 Декабрь 2011, 13:23
Сообщения: 1413
Регион: Первомайск (на Южном Буге)
|
Добавлено:
Вс 11 Март 2012, 17:15
|
  |
По факту, даже если делать холодную четверть, печь получиться максимум 3.5х3.5 кирпича...
|
|
|
|
    |
 |
pe4ka
Зарегистрирован: Ср 23 Сентябрь 2009, 17:36
Сообщения: 1918
Регион: Туймазы
|
Добавлено:
Вс 11 Март 2012, 17:57
|
  |
Печи в середине избы клади народ.Моя мама росла в деревне правда татарской.И были как во всякой доброй печи-ТАРАКАНЫ.У русских они зовутся-тараканами запечными.По религии их бабушка не трогала-ведь им жизнь дал бог и они мирно жили в избе.Печь надо холить лелеять. А в углу ей будет холодно неуютно и при ремонте проблемы.И помни посетитель форума дымоход любит рядом с коньком быть.Печь надо штукатурить и белить и не менее 80см расстояние от стены надо иметь...
|
_________________ окажу консультации по кладке печей каминов и их ремонту д51055 код8-34782 сот 8-9173752622 г.Туймазы башкирия
|
|
   |
 |
Максмил
Зарегистрирован: Вс 11 Март 2012, 13:43
Сообщения: 7
Регион: Моск. обл
|
Добавлено:
Вс 11 Март 2012, 18:19
|
  |
Получается что фундамент надо увеличивать? Я правильно Вас понял.
Elm.
|
|
|
|
  |
 |
Elm

Зарегистрирован: Пн 12 Декабрь 2011, 13:23
Сообщения: 1413
Регион: Первомайск (на Южном Буге)
|
Добавлено:
Вс 11 Март 2012, 18:59
|
  |
Зависит от того, какую печь хотите...
Можно было просто отодвинуть фундамент печи на некоторое расстояние от стены и сделать так называемую "холодную четверть"(при этом можно заделать пространство за печью, получая с него нагретый воздух) или просто отодвинуть, тогда: http://forum.stovemaster.ru/download.php?id=10847
В любом случае впритирку к деревянной стене печь ставить нельзя ибо не соблюдать ППБ - давать работу пожарникам.
***
Еще можно сделать по глухой стене дымоход (и печь ес-но), как это изображают в старинных домиках.
http://wallpaper.goodfon.ru/wallpaper/previews-middle/206855.jpg
В стене ес-но при этом проем, а противопожарные меры относятся уже к торцам стены.
|
|
|
|
    |
 |
Boris759
Зарегистрирован: Ср 9 Февраль 2011, 08:36
Сообщения: 272
Регион: Belarus
|
Добавлено:
Вс 11 Март 2012, 19:26
|
  |
Да хватит там фундамента.Просто придется угловую печь строить сложной формы.Пиления кирпича очень много, печка дорогая получится.
|
|
|
|
  |
 |
Максмил
Зарегистрирован: Вс 11 Март 2012, 13:43
Сообщения: 7
Регион: Моск. обл
|
Добавлено:
Вс 11 Март 2012, 19:28
|
  |
Претпочтения больше к круглой в футляре.
|
|
|
|
  |
 |
Максмил
Зарегистрирован: Вс 11 Март 2012, 13:43
Сообщения: 7
Регион: Моск. обл
|
Добавлено:
Вс 11 Март 2012, 19:36
|
  |
Огласите примерную сумму.
Boris759
|
|
|
|
  |
 |
Elm

Зарегистрирован: Пн 12 Декабрь 2011, 13:23
Сообщения: 1413
Регион: Первомайск (на Южном Буге)
|
Добавлено:
Вс 11 Март 2012, 19:59
|
  |
Boris759, да какое там поместится?! - минимум 38 см "от дыма" хоть так, хоть иначе надо отступить.
Самая большая, если не увеличивать фундамент, будет квадратная, а самая меньшая - треугольная.
Максмил, вот отрежьте от стенок зону в 380 мм и если кто-то заикнется что там может быть печь (ПП-разделка ес-но не в счет), так сразу и спрашивайте про ППБ
|
|
|
|
    |
 |
Максмил
Зарегистрирован: Вс 11 Март 2012, 13:43
Сообщения: 7
Регион: Моск. обл
|
Добавлено:
Вс 11 Март 2012, 20:20
|
  |
|
  |
 |
Boris759
Зарегистрирован: Ср 9 Февраль 2011, 08:36
Сообщения: 272
Регион: Belarus
|
Добавлено:
Пн 12 Март 2012, 07:37
|
  |
| Elm писал(а): |
Boris759, да какое там поместится?! - минимум 38 см "от дыма" хоть так, хоть иначе надо отступить.
Самая большая, если не увеличивать фундамент, будет квадратная, а самая меньшая - треугольная.
Максмил, вот отрежьте от стенок зону в 380 мм и если кто-то заикнется что там может быть печь (ПП-разделка ес-но не в счет), так сразу и спрашивайте про ППБ  |
"Отрезал 380" и печь всунул? Так уже ж будет 510 до дыма. Считать умеете?.И потом,380-до незащищенного,а сделайте стену защищенной с применением листов нержи или оцинковки и базальта то и 250 хватит. Может вы и распушки делаете 380 от дыма- дело ваше.
|
|
|
|
  |
 |
Elm

Зарегистрирован: Пн 12 Декабрь 2011, 13:23
Сообщения: 1413
Регион: Первомайск (на Южном Буге)
|
Добавлено:
Пн 12 Март 2012, 08:10
|
  |
Boris759, Вы невнимательны...
Возможно в Беларуси ППБ другие, но возвращаясь к табличке и к тому, что заказчик из МО: даже в случае открытой отступки при защищенной от возгорания стене (кстати, расстояние-то от защиты считаем, что не только слой нержи, а еще и теплоизолятор нужен), ширину разделки надо взять >= 260 мм, что кирпич и два шва.
Итого у нас на печь меньше метра, а, значит, ее габарит (ребро для квадратной, диаметр для круглой, катет для треугольной) будет 3.5 кирпича или меньше, что возвращает к моему самому первому посту:
| Elm писал(а): |
| По факту, даже если делать холодную четверть, печь получиться максимум 3.5х3.5 кирпича... |
| Цитата: |
| Может вы и распушки делаете 380 от дыма |
Я и Вам рекомендую в целиком деревянном доме делать распушку такой ширины: http://forum.stovemaster.ru/download.php?id=10847
|
|
|
|
    |
 |
Boris759
Зарегистрирован: Ср 9 Февраль 2011, 08:36
Сообщения: 272
Регион: Belarus
|
Добавлено:
Пн 12 Март 2012, 08:50
|
  |
Все там влезет.Я уже прикидывал.Лень рисовать просто-потому что столько угловых и пилить неохота,а тогда зачем рисовать....Делаете распушки 380---на здоровье. Вас Ельм на форуме слишком много,но это не значит что вы во всем дока.
|
|
|
|
  |
 |
Dreamdavids
Зарегистрирован: Сб 29 Октябрь 2011, 07:18
Сообщения: 1105
Регион: Пермь
|
Добавлено:
Пн 12 Март 2012, 10:06
|
  |
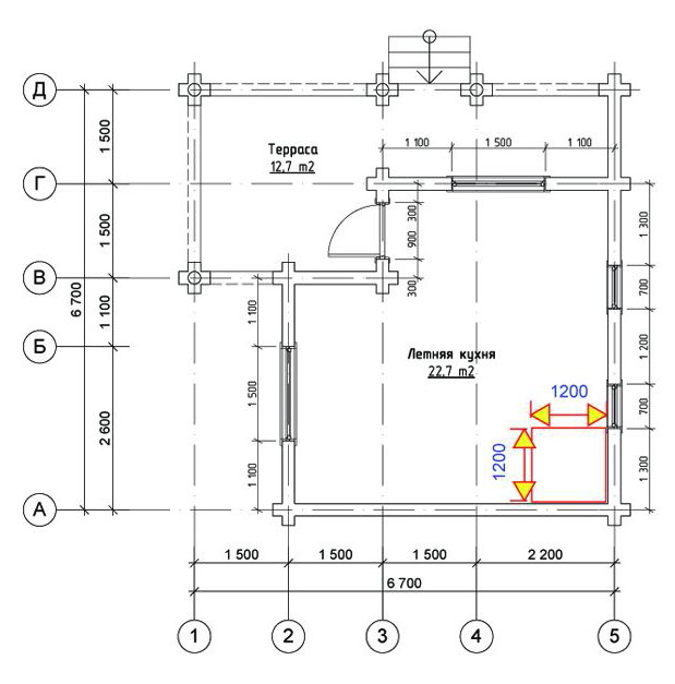
Зачем угловая печь?Кухня летняя исходя из этого вероятно нужна шведка простая.У вас фундамент указан впритык к основному,а какой реально зазор между ними?
P/S/ ППБ штука обязательная надо выполнять не просто они так придуманы.
|
|
|
|
  |
 |
Анатолич

Зарегистрирован: Ср 23 Сентябрь 2009, 23:25
Сообщения: 393
Регион: Рязань
|
Добавлено:
Пн 12 Март 2012, 10:20
|
  |
Диаметр круглой печи получается в районе 80ти см. Есть даже старинная топочная дверка для круглой печи .
|
|
|
|
    |
 |
Гребенчюк Андрей

Зарегистрирован: Чт 9 Сентябрь 2010, 17:23
Сообщения: 1211
Регион: Ленинградская область
|
Добавлено:
Пн 12 Март 2012, 11:16
|
  |
у вас фундамент на сколько я понял 1200 х 1200 места вполне хватит для печи и угловой или квадратной если хотите круглую то заказ каркаса круглой печи тоже не дёшево стоить а плюс материал и работа печника может лучше угловую подумайте
|
|
|
|
  |
 |
Анатолич

Зарегистрирован: Ср 23 Сентябрь 2009, 23:25
Сообщения: 393
Регион: Рязань
|
Добавлено:
Пн 12 Март 2012, 22:19
|
  |
| Гребенюк А.Н. писал(а): |
| у вас фундамент на сколько я понял 1200 х 1200 места вполне хватит для печи и угловой или квадратной если хотите круглую то заказ каркаса круглой печи тоже не дёшево стоить а плюс материал и работа печника может лучше угловую подумайте |
Согласен... на НЕугловую...
|
|
|
|
    |
 |
Гребенчюк Андрей

Зарегистрирован: Чт 9 Сентябрь 2010, 17:23
Сообщения: 1211
Регион: Ленинградская область
|
Добавлено:
Вт 13 Март 2012, 11:58
|
  |
тогда можно и квадратную ну или круглую если с футляром потянете круглая мне думается всё таки будет дороже стоить чем квадратная я тут видел у себя готовый футляр стоит 10 000 руб, а ещё работа печника и материал
|
|
|
|
  |
 |
Максмил
Зарегистрирован: Вс 11 Март 2012, 13:43
Сообщения: 7
Регион: Моск. обл
|
Добавлено:
Вт 13 Март 2012, 13:05
|
  |
Вот вам еще повод для размысления.
|
| Описание: |
|
| Размер файла: |
645.25 КБ |
| Просмотров: |
751 раз(а) |

|
|
|
  |
 |
Максмил
Зарегистрирован: Вс 11 Март 2012, 13:43
Сообщения: 7
Регион: Моск. обл
|
Добавлено:
Вт 13 Март 2012, 13:12
|
  |
| Цитата: |
| футляр стоит 10 000 руб, |
Если они высотой 700мм не так критично,а кирпичей надо по моему меньше чем на угловую и квадратную.
|
|
|
|
  |
 |
|
|