 |
|
 |
| Автор |
Сообщение
|
BACO
Зарегистрирован: Сб 10 Март 2012, 23:48
Сообщения: 6
Регион: Кубинка
|
Добавлено:
Пн 12 Март 2012, 00:28
|
  |
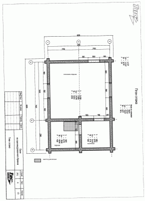
Уважаемые мастера!
Ситуация простая, поставил сруб под баню в конце осени 2011. Теперь озадачился вопросом дальнейшего строительства, кровля .перекрытия, пол... Посоветовался с товарищами кто строил бани и пришел к выводу, что лутше сначала сделать печь. Все печки, которые я видел у друзей - металические. После трех месячного ознакомления с материалами форума и сайта, появилось непреодолимое желание выложить кирпичную каменку! Но не знаю какую конструкцию печи выбрать за основу и есть-ли решения так чтоб прошли по габаритам с учетом моих пожеланий.
Вот требования к печи, которые я сейчас могу сказать, может подскажите, что еще надо:
1. Печь переодического действия
2. Топка из комнаты отдыха
3. Т.к. топка из комнаты отдыха, часть тепла будет отапливать и саму комнату
4. Духовка для камней сзади или сбоку, не знаю как будет правильней
5. Наличие змеевика для ГВС, то же не знаю.
Теперь к описанию сруба, оцилинрованное бревно, 220мм. Высота потолка в парной 2400мм до перекрытия. Планирую теплоизолировать парную. Планирую по длинной стороне (2700мм) один ярус , а по короткой стороне (2580мм) два яруса полков. Тут уже понятно, что дверь придется переносить. В приложении фото сруба и планировка.
Прошу высказаться всех.
|
| Описание: |
|
| Размер файла: |
117.64 КБ |
| Просмотров: |
1059 раз(а) |

|
|
|
  |
 |
BACO
Зарегистрирован: Сб 10 Март 2012, 23:48
Сообщения: 6
Регион: Кубинка
|
Добавлено:
Пн 12 Март 2012, 08:15
|
  |
| BACO писал(а): |
Уважаемые мастера!
Ситуация простая, поставил сруб под баню в конце осени 2011. Теперь озадачился вопросом дальнейшего строительства, кровля .перекрытия, пол... Посоветовался с товарищами кто строил бани и пришел к выводу, что лутше сначала сделать печь. Все печки, которые я видел у друзей - металические. После трех месячного ознакомления с материалами форума и сайта, появилось непреодолимое желание выложить кирпичную каменку! Но не знаю какую конструкцию печи выбрать за основу и есть-ли решения так чтоб прошли по габаритам с учетом моих пожеланий.
Вот требования к печи, которые я сейчас могу сказать, может подскажите, что еще надо:
1. Печь переодического действия
2. Топка из комнаты отдыха
3. Т.к. топка из комнаты отдыха, часть тепла будет отапливать и саму комнату
4. Духовка для камней сзади или сбоку, не знаю как будет правильней
5. Наличие змеевика для ГВС, то же не знаю.
Теперь к описанию сруба, оцилинрованное бревно, 220мм. Высота потолка в парной 2400мм до перекрытия. Планирую теплоизолировать парную. Планирую по длинной стороне (2700мм) один ярус , а по короткой стороне (2580мм) два яруса полков. Тут уже понятно, что дверь придется переносить. В приложении фото сруба и планировка.
Прошу высказаться всех. |
|
| Описание: |
| вид из комнаты отдыха на стену парной |
|
| Размер файла: |
116.5 КБ |
| Просмотров: |
918 раз(а) |

|
| Описание: |
| вид из комнаты отдыха на моечную |
|
| Размер файла: |
113.45 КБ |
| Просмотров: |
832 раз(а) |

|
| Описание: |
|
| Размер файла: |
127.83 КБ |
| Просмотров: |
874 раз(а) |

|
|
|
  |
 |
BACO
Зарегистрирован: Сб 10 Март 2012, 23:48
Сообщения: 6
Регион: Кубинка
|
Добавлено:
Пн 12 Март 2012, 08:16
|
  |
| BACO писал(а): |
Уважаемые мастера!
Ситуация простая, поставил сруб под баню в конце осени 2011. Теперь озадачился вопросом дальнейшего строительства, кровля .перекрытия, пол... Посоветовался с товарищами кто строил бани и пришел к выводу, что лутше сначала сделать печь. Все печки, которые я видел у друзей - металические. После трех месячного ознакомления с материалами форума и сайта, появилось непреодолимое желание выложить кирпичную каменку! Но не знаю какую конструкцию печи выбрать за основу и есть-ли решения так чтоб прошли по габаритам с учетом моих пожеланий.
Вот требования к печи, которые я сейчас могу сказать, может подскажите, что еще надо:
1. Печь переодического действия
2. Топка из комнаты отдыха
3. Т.к. топка из комнаты отдыха, часть тепла будет отапливать и саму комнату
4. Духовка для камней сзади или сбоку, не знаю как будет правильней
5. Наличие змеевика для ГВС, то же не знаю.
Теперь к описанию сруба, оцилинрованное бревно, 220мм. Высота потолка в парной 2400мм до перекрытия. Планирую теплоизолировать парную. Планирую по длинной стороне (2700мм) один ярус , а по короткой стороне (2580мм) два яруса полков. Тут уже понятно, что дверь придется переносить. В приложении фото сруба и планировка.
Прошу высказаться всех. |
|
| Описание: |
|
| Размер файла: |
119.81 КБ |
| Просмотров: |
843 раз(а) |

|
|
|
  |
 |
Андрей_Алексеевич

Зарегистрирован: Пн 13 Декабрь 2010, 19:17
Сообщения: 5994
Регион: малая родина Павлова, Скобелева, Циолковского, Уткиных и др.
|
Добавлено:
Пн 12 Март 2012, 08:55
|
  |
Тогда уж такую планировку...
|
_________________ Печник - милостью и промыслом Божиим.
Печное отопление частного дома и т.п., авторское сопровождение проектов, наставничество в т.ч. дистанционное, партнёрство в кладке печей.
89106130763 МТС
andrejka61@mail.ru
andrej.kuzmischev@yandex.ru
| Описание: |
|
| Размер файла: |
18.02 КБ |
| Просмотров: |
959 раз(а) |

|
|
|
   |
 |
Elm

Зарегистрирован: Пн 12 Декабрь 2011, 13:23
Сообщения: 1413
Регион: Первомайск (на Южном Буге)
|
Добавлено:
Пн 12 Март 2012, 09:12
|
  |
От печи до прохода тоже надо сделать хотя бы 25 см - как-то нехорошо протискиваться мимо раскаленной каменки...
Еще я бы сдвинул печь чуток влево, чтобы в нише шайка помещалась - тогда и стенку можно деревянной оставить ибо 50 см и выйдет.
|
|
|
|
    |
 |
BACO
Зарегистрирован: Сб 10 Март 2012, 23:48
Сообщения: 6
Регион: Кубинка
|
Добавлено:
Пн 12 Март 2012, 11:47
|
  |
Спасибо. Если так можно сделать я даже ЗА. Просто читал, что лутше не связывать фундамент печи с фундаментом основного строения. http://stendstroy.ru/informatsiya/ustroystvo-fundamenta.html
Как вы считаете, можно связывать и какую конструкцию фундамент при этом сделать?
Основной фундамент ленточнй армированный со сваями, ширина 300мм высота 500мм, 24 сваи.
|
| Описание: |
|
 Скачать |
| Название файла: |
Фундамент.rar |
| Размер файла: |
271.91 КБ |
| Скачено: |
482 раз(а) |
|
|
  |
 |
Андрей_Алексеевич

Зарегистрирован: Пн 13 Декабрь 2010, 19:17
Сообщения: 5994
Регион: малая родина Павлова, Скобелева, Циолковского, Уткиных и др.
|
Добавлено:
Пн 12 Март 2012, 12:12
|
  |
Да можно и не связывать, если фундамент дома не плитой... (см. рис.)
А банная каменка может быть и такой: http://forum.stovemaster.ru/viewtopic.php?t=4606
|
_________________ Печник - милостью и промыслом Божиим.
Печное отопление частного дома и т.п., авторское сопровождение проектов, наставничество в т.ч. дистанционное, партнёрство в кладке печей.
89106130763 МТС
andrejka61@mail.ru
andrej.kuzmischev@yandex.ru
| Описание: |
|
| Размер файла: |
17.3 КБ |
| Просмотров: |
852 раз(а) |

|
| Описание: |
|
| Размер файла: |
17.88 КБ |
| Просмотров: |
871 раз(а) |

|
|
|
   |
 |
BACO
Зарегистрирован: Сб 10 Март 2012, 23:48
Сообщения: 6
Регион: Кубинка
|
Добавлено:
Пн 12 Март 2012, 22:07
|
  |
На сколько я понял, фиолетовая часть - лента основного фундамента, а серая - фундамент печи. Тогда вопрос: какой высоты следует сделать фундамент печи, если высота ленты фундамента основного строения 500 мм, ну т.е. в моем случае?
|
|
|
|
  |
 |
Elm

Зарегистрирован: Пн 12 Декабрь 2011, 13:23
Сообщения: 1413
Регион: Первомайск (на Южном Буге)
|
Добавлено:
Пн 12 Март 2012, 22:29
|
  |
Плита сверху делается порядка 30-40 см, больше нет смысла, меньше надо считать армирование.
Ну и сама по себе она должна выйти на уровень пола - если ниже, то можно поднять кирпичами, но зачем если можно сделать сваи подлиннее.
|
|
|
|
    |
 |
BACO
Зарегистрирован: Сб 10 Март 2012, 23:48
Сообщения: 6
Регион: Кубинка
|
Добавлено:
Ср 14 Март 2012, 14:39
|
  |
Пока до проекта дело не дошло. Может подскажите какую печь лучше выбрать с учетом того, что использовать печь буду по выходным и иногда среди недели. Режим - русская баня.
Вроде все. Подскажите, может с чем-то еще надо определится?
|
|
|
|
  |
 |
Kolek2012

Зарегистрирован: Вт 10 Январь 2012, 09:37
Сообщения: 445
Регион: Нижний Новгород
|
Добавлено:
Пт 23 Март 2012, 11:25
|
  |
Посмотрите мою тему "Мой однозначный выбор". Не повторяйте моих ошибок. Обратитесь к профессионалам-печникам. Я построил себе на третий (!) раз одноколпаковую печь Кузнецова. На данный момент очень доволен. Позднее отпишусь, как эта печь в действии: как прогревает баню, какова температура камней, какой пар и т.д. На сегодня могу однозначно сказать, моя новая печь минимум вдвое экономичней предыдущих печей и, безусловно, имеет более презнетабельный вид.
|
|
|
|
    |
 |
Андрей_Алексеевич

Зарегистрирован: Пн 13 Декабрь 2010, 19:17
Сообщения: 5994
Регион: малая родина Павлова, Скобелева, Циолковского, Уткиных и др.
|
Добавлено:
Пт 23 Март 2012, 12:14
|
  |
| BACO писал(а): |
Пока до проекта дело не дошло. Может подскажите какую печь лучше выбрать с учетом того, что использовать печь буду по выходным и иногда среди недели. Режим - русская баня.
Вроде все. Подскажите, может с чем-то еще надо определится? |
Кирпичную печь лучше выбрать здесь а печника - тот, что с руками...
Отделка-оформление фасадов печи м.б. самым разным - от "шкафа без ручек", до подобного: http://forum.stovemaster.ru/viewtopic.php?t=4434 - просмотреть весь раздел!!!
У нас вот вновь хотят каменку с лежаночкой... сижу рисую
|
_________________ Печник - милостью и промыслом Божиим.
Печное отопление частного дома и т.п., авторское сопровождение проектов, наставничество в т.ч. дистанционное, партнёрство в кладке печей.
89106130763 МТС
andrejka61@mail.ru
andrej.kuzmischev@yandex.ru
|
|
   |
 |
|
|
|
Следующая тема
Предыдущая тема
Вы не можете начинать темы Вы не можете отвечать на сообщения Вы не можете редактировать свои сообщения Вы не можете удалять свои сообщения Вы не можете голосовать в опросах Вы не можете добавлять приложения в этом форуме Вы можете скачивать файлы в этом форуме
|
|