Некоммерческое партнерство Альянс Печных Дел Мастера
 RSS  • FAQ  •  Поиск  •  Пользователи  •  Группы   •  Регистрация   •  Избранные темы   •  Профиль  •  Войти и проверить личные сообщения  •  Чат  •  Вход





 Прошу совета! Какую печь выбрать для ПМЖ Следующая тема
Предыдущая тема
Начать новую темуОтветить на тему
Автор Сообщение
dmitry-ra



Зарегистрирован: Вс 12 Август 2012, 23:28
Сообщения: 1
Регион: Пущино

СообщениеДобавлено: Вс 12 Август 2012, 23:41 Ответить с цитатойВернуться к началу

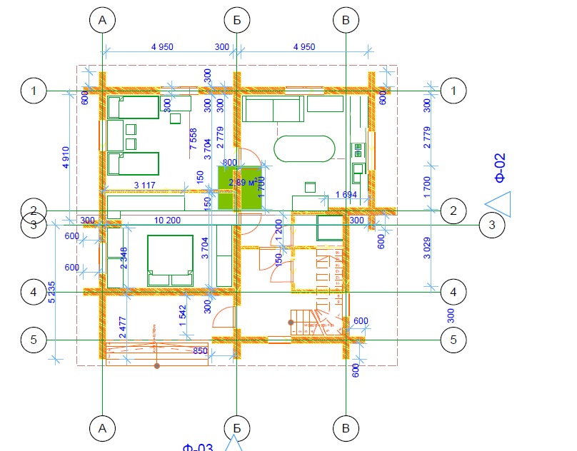
На плане много всего нарисовано. Печь зеленым цветом.
Отапливаемая площадь 1го этажа дома 60м2
Вопрос - какую печь поставить для отопления 1го этажа с возможностью отопления 2го. Планируем большое семейство с возможностью выселения старшего поколения на 2ой этаж Smile Еще важно что печь отопительно варочная со змеевиком планируется.
Сейчас планируем залить под печь 180 на 180 фундамент, не связанный с ленточным мелкозаглубленным фундаментом дома. Еще вопрос- как организовать глубину фундамента под такую печь? Сколько см песка, на сколько заглублять железобетонный фундамент печи? Вот такие вопросы.
Строительство фундамента дома вот вот начнется- прошу совета!



план.jpg
 Описание:
 Размер файла:  134.16 КБ
 Просмотров:  804 раз(а)

план.jpg


Посмотреть профильОтправить личное сообщение
Elm



Зарегистрирован: Пн 12 Декабрь 2011, 13:23
Сообщения: 1413
Регион: Первомайск (на Южном Буге)

СообщениеДобавлено: Пн 13 Август 2012, 10:04 Ответить с цитатойВернуться к началу

а) Теплопотери дома надо - посчитайте в среднем и на каждую комнату.
б) Сейчас Вы поместили печь в разрыв несущей стены да еще рядом два проема дверей - был ли проведен расчет такой возможности?
в) Фундамент под печь делается исходя их ее веса и типа грунта.
Посмотреть профильОтправить личное сообщениеПосетить сайт автораICQ Number
Шура



Зарегистрирован: Чт 8 Январь 2009, 20:09
Сообщения: 4171
Регион: Москва - Тамбов

СообщениеДобавлено: Пн 13 Август 2012, 15:49 Ответить с цитатойВернуться к началу

dmitry-ra писал(а):
Строительство фундамента дома вот вот начнется- прошу совета!
В вашем случае, идеальным будет плитный фундамент(будет дешевле и капитальнее).
Но если хочется именно ленту, то фундамент под печь лучше сделать заодно с лентой, но обязательно надо железобетоную ленту с перекрестием в районе печи(примерно как на рисунке.)



ф.jpg
 Описание:
 Размер файла:  32.11 КБ
 Просмотров:  700 раз(а)

ф.jpg


Посмотреть профильОтправить личное сообщениеОтправить e-mail
Elm



Зарегистрирован: Пн 12 Декабрь 2011, 13:23
Сообщения: 1413
Регион: Первомайск (на Южном Буге)

СообщениеДобавлено: Пн 13 Август 2012, 16:06 Ответить с цитатойВернуться к началу

Шура, при таком размещении нижняя-левая комната будет холодной Sad

Можно попробовать печь поставить "ромбом" - под 45 градусов к сторонам дома...
Посмотреть профильОтправить личное сообщениеПосетить сайт автораICQ Number
Юрий74



Зарегистрирован: Пн 7 Март 2011, 09:16
Сообщения: 142
Регион: Челябинская обл. г. Миасс

СообщениеДобавлено: Вт 14 Август 2012, 07:58 Ответить с цитатойВернуться к началу

Змеевик, для какой цели?
Посмотреть профильОтправить личное сообщениеОтправить e-mailПосетить сайт автораПозвонить авторуICQ Number
Владимир Солин



Зарегистрирован: Ср 9 Сентябрь 2009, 12:52
Сообщения: 3804
Регион: Череповец

СообщениеДобавлено: Вт 14 Август 2012, 08:53 Ответить с цитатойВернуться к началу

Шура, при промерзании первыми поднимутся стенки дома и попытаются приподнять печку. Лопнут или нет балки фундамента? И если лопнут то со всех сторон или нет? Что из этого получится представить не сложно. Surprised

_________________
САМОназначенный дебил форума в 2017году
Посмотреть профильОтправить личное сообщение
Шура



Зарегистрирован: Чт 8 Январь 2009, 20:09
Сообщения: 4171
Регион: Москва - Тамбов

СообщениеДобавлено: Вт 14 Август 2012, 10:23 Ответить с цитатойВернуться к началу

Владимир Солин писал(а):
Шура, при промерзании первыми поднимутся стенки дома и попытаются приподнять печку. Лопнут или нет балки фундамента? И если лопнут то со всех сторон или нет? Что из этого получится представить не сложно. Surprised

Поэтому я и советую плиту, а если уж ленту, то обязательно железобетонную.
Вопрос с промерзанием и поднятием, решается соответствующими, стандартными мерами и строительными приемами(утеплением и т.д.).
Посмотреть профильОтправить личное сообщениеОтправить e-mail
Владимир Солин



Зарегистрирован: Ср 9 Сентябрь 2009, 12:52
Сообщения: 3804
Регион: Череповец

СообщениеДобавлено: Вт 14 Август 2012, 11:20 Ответить с цитатойВернуться к началу

[quote="Шура"]
dmitry-ra писал(а):
... если хочется именно ленту, то фундамент под печь лучше сделать заодно с лентой, но обязательно надо железобетоную ленту с перекрестием в районе печи.


я с этим не согласен Confused
Мое мнение - рассчитывать примерно равные нагрузки на грунт от фундамента дома и от стоящей отдельно от него печки. Если давления примерно одинавковы - будут ходить зимой по отдельности. Не разрушая друг друга.

_________________
САМОназначенный дебил форума в 2017году
Посмотреть профильОтправить личное сообщение
Шура



Зарегистрирован: Чт 8 Январь 2009, 20:09
Сообщения: 4171
Регион: Москва - Тамбов

СообщениеДобавлено: Вт 14 Август 2012, 11:57 Ответить с цитатойВернуться к началу

Владимир Солин писал(а):
я с этим не согласен Confused
Мое мнение - рассчитывать примерно равные нагрузки на грунт от фундамента дома и от стоящей отдельно от него печки. Если давления примерно одинавковы - будут ходить зимой по отдельности. Не разрушая друг друга.

По такой логике, все внутренние несущие стены(в кирпичном доме), должны стоять каждая на своём независимом фундаменте...
Посмотреть профильОтправить личное сообщениеОтправить e-mail
Владимир Солин



Зарегистрирован: Ср 9 Сентябрь 2009, 12:52
Сообщения: 3804
Регион: Череповец

СообщениеДобавлено: Вт 14 Август 2012, 13:13 Ответить с цитатойВернуться к началу

Нет, внутренние стенки практически можно не брать во внимание, легкие они у наших небольших домов. Или вообще каркасные. У больших - к проектировщикам. Smile
У меня давление на грунт от печки и от дома как от меня с женой на руках, стоящего на одной ноге. Специально считал с чем сравнить. )) Песок такое давление держит легко. Smile

_________________
САМОназначенный дебил форума в 2017году
Посмотреть профильОтправить личное сообщение
Elm



Зарегистрирован: Пн 12 Декабрь 2011, 13:23
Сообщения: 1413
Регион: Первомайск (на Южном Буге)

СообщениеДобавлено: Вт 14 Август 2012, 13:47 Ответить с цитатойВернуться к началу

Разбирал довольно много печей, что стояли вообще без фундамента - на утрамбованный глине грунта... и так ничего, трещин нет, если бы не прогорали со временем стояли бы еще лет 50 )))
Посмотреть профильОтправить личное сообщениеПосетить сайт автораICQ Number
Шура



Зарегистрирован: Чт 8 Январь 2009, 20:09
Сообщения: 4171
Регион: Москва - Тамбов

СообщениеДобавлено: Вт 14 Август 2012, 14:23 Ответить с цитатойВернуться к началу

Владимир Солин писал(а):
Нет, внутренние стенки практически можно не брать во внимание, легкие они

Легкие?
Несущие стены в доме например из газосиликата, делаются из кирпича, толщиной в кирпич, и на всю высоту. На них ещё и плиты перекрытия кладут, когда домк двухэтажный или мансардный...
Посмотреть профильОтправить личное сообщениеОтправить e-mail
Владимир Солин



Зарегистрирован: Ср 9 Сентябрь 2009, 12:52
Сообщения: 3804
Регион: Череповец

СообщениеДобавлено: Вт 14 Август 2012, 15:02 Ответить с цитатойВернуться к началу

Я считал, что мой 2х этажный 40т весить будет. Это фигня. Smile

_________________
САМОназначенный дебил форума в 2017году
Посмотреть профильОтправить личное сообщение
Вогнистый Владимир



Зарегистрирован: Сб 7 Апрель 2012, 16:13
Сообщения: 811
Регион: Мариуполь, Украина

СообщениеДобавлено: Ср 15 Август 2012, 17:16 Ответить с цитатойВернуться к началу

Все зависит от грунта и от того, как утеплен внешний фундамент. согласен с Elmом, у на в Донбассе большинство печей стоит просто на утрамбованной глине. А вот обогревательный щиток стоит на фундаменте, который в з раза меньше чем наружный. Но у нас другая специфик - обогревательные щитки стоят отдельно от печи и не "перевязанные" вместе. И сам щиток облегченный и находится в простенках.

_________________
Печь - это душа дома!!!
Посмотреть профильОтправить личное сообщениеОтправить e-mailПосетить сайт автора
Вогнистый Владимир



Зарегистрирован: Сб 7 Апрель 2012, 16:13
Сообщения: 811
Регион: Мариуполь, Украина

СообщениеДобавлено: Пн 27 Август 2012, 17:58 Ответить с цитатойВернуться к началу

смотри там http://forum.stovemaster.ru/viewtopic.php?p=74165#74165

_________________
Печь - это душа дома!!!
Посмотреть профильОтправить личное сообщениеОтправить e-mailПосетить сайт автора
Показать сообщения:      
Начать новую темуОтветить на тему


 Перейти:   



Следующая тема
Предыдущая тема
Вы не можете начинать темы
Вы не можете отвечать на сообщения
Вы не можете редактировать свои сообщения
Вы не можете удалять свои сообщения
Вы не можете голосовать в опросах
Вы не можете добавлять приложения в этом форуме
Вы можете скачивать файлы в этом форуме




Проект форум печников "Альянс. Печных Дел Мастера" © 2006-2026