 |
|
 |
| Автор |
Сообщение
|
homedistiller
Зарегистрирован: Ср 11 Октябрь 2023, 20:02
Сообщения: 3
Регион: 77
|
Добавлено:
Ср 11 Октябрь 2023, 20:14
|
  |
Всем привет!
Помогите выбрать печь в гостинную с высоким КПД, удобной топкой и по возможности с духовкой.
Нужна порядовка, собирать буду самостоятельно.
В несущую стену вложена гильза 120х240 0,8мм 316 нержавейка.
Параметры дома:
Стены газоблок Д500 40см толщина, потолок 2,9м, Перекрытия плиты многопустотные. Московская область.
В соседней теме видел в рекомендации двухколпаковуюя каминопеч с хлебной камерой, мне понравилось.
|
| Описание: |
|
| Размер файла: |
35.81 КБ |
| Просмотров: |
135 раз(а) |

|
| Описание: |
|
| Размер файла: |
104.82 КБ |
| Просмотров: |
116 раз(а) |

|
| Описание: |
|
| Размер файла: |
121.59 КБ |
| Просмотров: |
139 раз(а) |

|
|
|
  |
 |
Андрей_Алексеевич

Зарегистрирован: Пн 13 Декабрь 2010, 19:17
Сообщения: 5973
Регион: малая родина Павлова, Скобелева, Циолковского, Уткиных и др.
|
Добавлено:
Ср 11 Октябрь 2023, 21:03
|
  |
Нечто подобное (рис.), к.м.к.
|
_________________ Печник - милостью и промыслом Божиим.
Печное отопление частного дома и т.п., авторское сопровождение проектов, наставничество в т.ч. дистанционное, партнёрство в кладке печей.
89106130763 МТС
andrejka61@mail.ru
andrej.kuzmischev@yandex.ru
| Описание: |
|
| Размер файла: |
85.87 КБ |
| Просмотров: |
124 раз(а) |

|
|
|
   |
 |
Андрей_Алексеевич

Зарегистрирован: Пн 13 Декабрь 2010, 19:17
Сообщения: 5973
Регион: малая родина Павлова, Скобелева, Циолковского, Уткиных и др.
|
Добавлено:
Чт 12 Октябрь 2023, 11:41
|
  |
А какой из каналов предусмотрен под печку?
|
_________________ Печник - милостью и промыслом Божиим.
Печное отопление частного дома и т.п., авторское сопровождение проектов, наставничество в т.ч. дистанционное, партнёрство в кладке печей.
89106130763 МТС
andrejka61@mail.ru
andrej.kuzmischev@yandex.ru
| Описание: |
| ... а размеры-то - правильные! |
|
| Размер файла: |
95.69 КБ |
| Просмотров: |
131 раз(а) |

|
|
|
   |
 |
tuomob

Зарегистрирован: Пн 26 Сентябрь 2011, 16:45
Сообщения: 2367
Регион: Тула
|
Добавлено:
Чт 12 Октябрь 2023, 17:07
|
  |
| homedistiller писал(а): |
Всем привет!
Помогите выбрать печь в гостинную с высоким КПД, удобной топкой и по возможности с духовкой.
Нужна порядовка, собирать буду самостоятельно.
В несущую стену вложена гильза 120х240 0,8мм 316 нержавейка.
Параметры дома:
Стены газоблок Д500 40см толщина, потолок 2,9м, Перекрытия плиты многопустотные. Московская область.
В соседней теме видел в рекомендации двухколпаковуюя каминопеч с хлебной камерой, мне понравилось. |
Наберите в яндексе "каминопечь" и посмотрите сотни картинок.
Попробуйте определиться с размером печи и внешним видом.
Печное литьё подумайте: большая дверка (500-500) или поменьше.
Дверка ХК (хлебная камера) выбирается в пару к топочной дверке.
Рекомендуемый размер печи: симметричная печь 5 (5.5) кирпичей в ширину и 3.5 в глубину. В этом размере очень большая и теплоёмкая печь получится. Можно и поменьше печь (4,5-3), печное литьё тоже поменьше.
И по кирпичу подумайте: сейчас есть большой выбор по цветам и геометрии (увидите на картинках компоновки разноцветные, скруглённые).
Подумайте... Всё зависит от Вашего понимания того, что Вы хотите в итоге "увидеть" у себя в гостиной.
Потом уже с более конкретными вопросами обращайтесь.
|
_________________ С Уважением! Юрий. Тула.
ВК https://vk.com/tuomob
За проектами в личку обращайтесь.
|
|
  |
 |
alarin
Зарегистрирован: Ср 21 Февраль 2018, 08:32
Сообщения: 2965
Регион: Казахстан, Алма-Ата. Нижний Новгород РФ
|
Добавлено:
Чт 12 Октябрь 2023, 19:04
|
  |
Смотрите финские печи, в них правильная организация горения. Только современные, те которые порядка 1 млн руб стоят.
|
|
|
|
   |
 |
homedistiller
Зарегистрирован: Ср 11 Октябрь 2023, 20:02
Сообщения: 3
Регион: 77
|
Добавлено:
Пн 16 Октябрь 2023, 09:16
|
  |
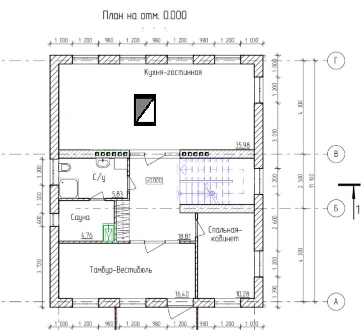
Андрей_Алексеевич, ориентировочно если средние 2 объединить, вот там канал под печь.
tuomob, На этом форуме есть схемы в данной теме:
https://forum.stovemaster.ru/viewtopic.php?t=4295
Но автора почему-то хают. Можно ли доверять этим порядовкам?
В частности первому варианту ОИК ХК2
И вопрос, если топка из шамота, то можно ли для облицовки использовать кирпич ЛСР-М250, у меня его много осталось.
|
|
|
|
  |
 |
Андрей_Алексеевич

Зарегистрирован: Пн 13 Декабрь 2010, 19:17
Сообщения: 5973
Регион: малая родина Павлова, Скобелева, Циолковского, Уткиных и др.
|
Добавлено:
Пн 16 Октябрь 2023, 12:17
|
  |
| homedistiller писал(а): |
Андрей_Алексеевич, ориентировочно если средние 2 объединить, вот там канал под печь.
tuomob, На этом форуме есть схемы в данной теме:
https://forum.stovemaster.ru/viewtopic.php?t=4295
Но автора почему-то хают. Можно ли доверять этим порядовкам?
В частности первому варианту ОИК ХК2
И вопрос, если топка из шамота, то можно ли для облицовки использовать кирпич ЛСР-М250, у меня его много осталось. |
1) ТД "вкирпич" будет достаточно для КПТО в указанных Вами размерах, дальний угол, примерно 6 м. от стенки печи, будет прогреваться стабильно, без конденсатообразования.
2) симметричная КПТОшка не будет смотреться гармонично, будучи расположена вправо от входной двери со смещением в кухню-гостиную.
3) Автор ни чего здесь не прокомментирует, он уже 4 года, как в "стране правильного отопления": https://vk.com/wall-64829929_117
4) Для ПМЖ, при 2-ух слойной конструкции (футеровка), он не плохо постоит.
|
_________________ Печник - милостью и промыслом Божиим.
Печное отопление частного дома и т.п., авторское сопровождение проектов, наставничество в т.ч. дистанционное, партнёрство в кладке печей.
89106130763 МТС
andrejka61@mail.ru
andrej.kuzmischev@yandex.ru
| Описание: |
|
| Размер файла: |
98.81 КБ |
| Просмотров: |
111 раз(а) |

|
|
|
   |
 |
tuomob

Зарегистрирован: Пн 26 Сентябрь 2011, 16:45
Сообщения: 2367
Регион: Тула
|
Добавлено:
Пн 16 Октябрь 2023, 15:42
|
  |
| homedistiller писал(а): |
Андрей_Алексеевич, ориентировочно если средние 2 объединить, вот там канал под печь.
tuomob, На этом форуме есть схемы в данной теме:
https://forum.stovemaster.ru/viewtopic.php?t=4295
Но автора почему-то хают. Можно ли доверять этим порядовкам?
В частности первому варианту ОИК ХК2
И вопрос, если топка из шамота, то можно ли для облицовки использовать кирпич ЛСР-М250, у меня его много осталось. |
Проект ОИК ХК2 под маленькую топочную дверку.
Кирпич ЛСР-М250 подойдёт.
Посмотрите другие проекты.
Проекты у Владимира Солина надо творчески осмысливать. Они достаточно скелетные, надо знать печное ремесло, чтобы по ним делать. Есть немало технологических моментов при строительстве печи, которые НАДО ЗНАТЬ.
|
_________________ С Уважением! Юрий. Тула.
ВК https://vk.com/tuomob
За проектами в личку обращайтесь.
|
|
  |
 |
Андрей_Алексеевич

Зарегистрирован: Пн 13 Декабрь 2010, 19:17
Сообщения: 5973
Регион: малая родина Павлова, Скобелева, Циолковского, Уткиных и др.
|
Добавлено:
Пт 20 Октябрь 2023, 21:54
|
  |
КПТОсХК 7,5х4,5 к-ча, 4,8 кВт/час при однократной топке в сутки, регистр для подпитки накопительного водонагревателя.
"Ну, вот - так, как-то..."(с)
|
_________________ Печник - милостью и промыслом Божиим.
Печное отопление частного дома и т.п., авторское сопровождение проектов, наставничество в т.ч. дистанционное, партнёрство в кладке печей.
89106130763 МТС
andrejka61@mail.ru
andrej.kuzmischev@yandex.ru
| Описание: |
|
| Размер файла: |
73.01 КБ |
| Просмотров: |
124 раз(а) |

|
|
|
   |
 |
homedistiller
Зарегистрирован: Ср 11 Октябрь 2023, 20:02
Сообщения: 3
Регион: 77
|
Добавлено:
Вс 22 Октябрь 2023, 17:33
|
  |
Андрей_Алексеевич, я подумал мне великоват Ваш вариант.
Очень понравилась каминопечь 4,5х3,5 кирпича и по габаритам и визуально.
Пока читаю форум и интернет.
Вот такой вариант нашел на просторах.
https://disk.yandex.ru/d/EreUpzs6M3XctQ
|
|
|
|
  |
 |
Андрей_Алексеевич

Зарегистрирован: Пн 13 Декабрь 2010, 19:17
Сообщения: 5973
Регион: малая родина Павлова, Скобелева, Циолковского, Уткиных и др.
|
Добавлено:
Вс 22 Октябрь 2023, 17:41
|
  |
| homedistiller писал(а): |
Андрей_Алексеевич, я подумал мне великоват Ваш вариант.
Очень понравилась каминопечь 4,5х3,5 кирпича и по габаритам и визуально.
Пока читаю форум и интернет.
Вот такой вариант нашел на просторах.
https://disk.yandex.ru/d/EreUpzs6M3XctQ |
Надеюсь, Вашего внимания удостоятся главы (литература специальная), освещающие вопросы термодинамики.
Успехов!
|
_________________ Печник - милостью и промыслом Божиим.
Печное отопление частного дома и т.п., авторское сопровождение проектов, наставничество в т.ч. дистанционное, партнёрство в кладке печей.
89106130763 МТС
andrejka61@mail.ru
andrej.kuzmischev@yandex.ru
|
|
   |
 |
tuomob

Зарегистрирован: Пн 26 Сентябрь 2011, 16:45
Сообщения: 2367
Регион: Тула
|
Добавлено:
Вс 22 Октябрь 2023, 18:29
|
  |
| homedistiller писал(а): |
Андрей_Алексеевич, я подумал мне великоват Ваш вариант.
Очень понравилась каминопечь 4,5х3,5 кирпича и по габаритам и визуально.
Пока читаю форум и интернет.
Вот такой вариант нашел на просторах.
https://disk.yandex.ru/d/EreUpzs6M3XctQ |
Вот такой проект делал с дверкой ДТГ8, без ХК.
Готовка в топке.
В топке спереди колосник, далее Под. Называю эту схему - полуПодовая. Уже не раз реализована эта схема, люди довольны.
ХК удорожает сильно печь по литью и шамоту.
|
_________________ С Уважением! Юрий. Тула.
ВК https://vk.com/tuomob
За проектами в личку обращайтесь.
| Описание: |
|
| Размер файла: |
145.66 КБ |
| Просмотров: |
121 раз(а) |

|
|
|
  |
 |
Андрей_Алексеевич

Зарегистрирован: Пн 13 Декабрь 2010, 19:17
Сообщения: 5973
Регион: малая родина Павлова, Скобелева, Циолковского, Уткиных и др.
|
Добавлено:
Вт 24 Октябрь 2023, 07:27
|
  |
[quote="homedistiller"]Андрей_Алексеевич, я подумал мне великоват Ваш вариант.../quote]
Надеюсь, эта иллюстрация даст Вам "пищу для размышлений".
Вы, изначально (рис.) очертили верно пропорции и место расположение будущей камино-печи.
Если её развернуть на 90 град., то возможно "вписаться" в скромные размеры.
|
_________________ Печник - милостью и промыслом Божиим.
Печное отопление частного дома и т.п., авторское сопровождение проектов, наставничество в т.ч. дистанционное, партнёрство в кладке печей.
89106130763 МТС
andrejka61@mail.ru
andrej.kuzmischev@yandex.ru
| Описание: |
| по центру - рассматриваемая Вами печь 4,5х3,5 кирпича... при её грамотном размещении |
|
| Размер файла: |
124.91 КБ |
| Просмотров: |
122 раз(а) |

|
|
|
   |
 |
Андрей_Алексеевич

Зарегистрирован: Пн 13 Декабрь 2010, 19:17
Сообщения: 5973
Регион: малая родина Павлова, Скобелева, Циолковского, Уткиных и др.
|
Добавлено:
Вт 24 Октябрь 2023, 13:12
|
  |
При таком (рис.) расположении, ТД от КПТОсХК 5,5х4,5 пройдёт аккурат возле стенки спальни (что слева на Плане) на втором этаже.
|
_________________ Печник - милостью и промыслом Божиим.
Печное отопление частного дома и т.п., авторское сопровождение проектов, наставничество в т.ч. дистанционное, партнёрство в кладке печей.
89106130763 МТС
andrejka61@mail.ru
andrej.kuzmischev@yandex.ru
| Описание: |
|
| Размер файла: |
90.19 КБ |
| Просмотров: |
100 раз(а) |

|
|
|
   |
 |
|
|
|
Следующая тема
Предыдущая тема
Вы не можете начинать темы Вы не можете отвечать на сообщения Вы не можете редактировать свои сообщения Вы не можете удалять свои сообщения Вы не можете голосовать в опросах Вы не можете добавлять приложения в этом форуме Вы можете скачивать файлы в этом форуме
|
|