| Автор |
Сообщение
|
Сергей 40
Зарегистрирован: Пт 15 Март 2013, 22:12
Сообщения: 8
Регион: Калуга
|
Добавлено:
Пн 15 Апрель 2013, 22:16
|
  |
Доброе время суток Печных дел мастера и просто читатели форума. Очень надеюсь на ваш дельный совет при выборе конструкции печи для бани и дальнейшую реализацию проекта, так как опыта в возведении печей не имею. Баня 6х6 пятистенок- сруб. стены не утеплены, просто проконопачены. был поставлен на фундамент летом 2012 года. В конце лета нашел печника который соорудил мне печь. которую я на этих выходных разобрал. Если кому то будет интересно выложу фото старой печи.
так вот к теме чего бы хотелось:
1. Так как баня для меня является долгожданной процедурой то время приготовления 1-2ч. меня бы расстроило, поэтому остановимся на 4-6 часах.
2. Только периодического действия.
3. Могла прогревать до комфортной температуры комнату отдыха и промывочную.
4. Температура в парной 60-70 градусов.
6. Простота конструкции т.к. опыта кладки печей не имею.
Сразу оговорюсь проблема в высоте потолка от фундамента печи до балки 2,25м.
если опустить его до цоколя 2,35м, цоколь высокий 70 см. Планировал полы заливать и сверху керамическую плитку так вот если опущу немного пол то получу 240 до потолка.
И хотелось бы не разбирать трубу от предыдущей печи которую так и не пришлось опробовать. Почитав форум очень понравилась тема Евгения Викторовича Колчина. Подскажите возможно ли мне в моей бане построить одну печей по проекту Евгения Викторовича. Заранее спасибо!
|
|
|
|
  |
 |
Сергей 40
Зарегистрирован: Пт 15 Март 2013, 22:12
Сообщения: 8
Регион: Калуга
|
Добавлено:
Вт 16 Апрель 2013, 12:17
|
  |
Баня не достроена. Перегородки между парилкой и помывочной пока нет.
|
| Описание: |
|
| Размер файла: |
106.41 КБ |
| Просмотров: |
903 раз(а) |

|
|
|
  |
 |
Сергей 40
Зарегистрирован: Пт 15 Март 2013, 22:12
Сообщения: 8
Регион: Калуга
|
Добавлено:
Вт 16 Апрель 2013, 13:39
|
  |
Вот такая печь была. топил всего раза три и то пробно. сухой осиной, по 3-5 поленьев закладок по 4- 5 после просушки. сначала обогреватель 10 дней сушил потом маленькими порциями лучинок, только потом попытался протопить. Начал трескаться кирпич и расходиться швы в районе топливника. Протопил и на горячую замазал, не помогло. И раствор мне не понравился кирпич без усилий от него отрывался. на фото видно как он пластами отваливается. Кладочная смесь оказалась по огнеупору.
|
|
|
|
  |
 |
Сергей 40
Зарегистрирован: Пт 15 Март 2013, 22:12
Сообщения: 8
Регион: Калуга
|
Добавлено:
Вт 16 Апрель 2013, 13:43
|
  |
Старая печь
|
| Описание: |
|
| Размер файла: |
674.56 КБ |
| Просмотров: |
800 раз(а) |

|
|
|
  |
 |
Сергей 40
Зарегистрирован: Пт 15 Март 2013, 22:12
Сообщения: 8
Регион: Калуга
|
Добавлено:
Вт 16 Апрель 2013, 14:46
|
  |
Распушка мне показалась маловата. всего полкирпича + огнеупорный на ребро.
|
|
|
|
  |
 |
Сергей 40
Зарегистрирован: Пт 15 Март 2013, 22:12
Сообщения: 8
Регион: Калуга
|
Добавлено:
Вт 16 Апрель 2013, 18:31
|
  |
духовка
|
| Описание: |
|
| Размер файла: |
679.9 КБ |
| Просмотров: |
757 раз(а) |

|
|
|
  |
 |
Сергей 40
Зарегистрирован: Пт 15 Март 2013, 22:12
Сообщения: 8
Регион: Калуга
|
Добавлено:
Вт 16 Апрель 2013, 18:52
|
  |
Красный совместно с огнеупором
|
| Описание: |
|
| Размер файла: |
685.78 КБ |
| Просмотров: |
774 раз(а) |

|
| Описание: |
|
| Размер файла: |
686.44 КБ |
| Просмотров: |
763 раз(а) |

|
| Описание: |
|
| Размер файла: |
655.58 КБ |
| Просмотров: |
739 раз(а) |

|
| Описание: |
|
| Размер файла: |
772.95 КБ |
| Просмотров: |
768 раз(а) |

|
| Описание: |
|
| Размер файла: |
663.81 КБ |
| Просмотров: |
740 раз(а) |

|
|
|
  |
 |
Kolek2012

Зарегистрирован: Вт 10 Январь 2012, 09:37
Сообщения: 445
Регион: Нижний Новгород
|
Добавлено:
Ср 17 Апрель 2013, 08:20
|
  |
Нда, виден почерк "потомственных" сельских печников... Не расстраивайтесь, главное баня не успела сгореть! Мне дважды перкладывали мою печь, была еще хуже вашей. На третий раз решил обратиться действительно к настоящим профессионалам. Не пожалел ни разу.
|
|
|
|
    |
 |
Павел_П

Зарегистрирован: Чт 6 Август 2009, 09:12
Сообщения: 423
Регион: Москва
|
Добавлено:
Ср 17 Апрель 2013, 23:06
|
  |
| Kolek2012 писал(а): |
| Нда, виден почерк ... |
назрело уже авторство с "реквизитами" публиковать
|
_________________ щи да каша - пища наша
|
|
   |
 |
Вадим Борисыч

Зарегистрирован: Пт 16 Апрель 2010, 08:54
Сообщения: 340
Регион: Камчатка
|
Добавлено:
Чт 18 Апрель 2013, 05:26
|
  |
Только не ясно, почему понятию "потомственный" придается уничижительный смысл? Или у тебя детей нет, Колек?
|
_________________ С уважением, В.Б.
|
|
  |
 |
Kolek2012

Зарегистрирован: Вт 10 Январь 2012, 09:37
Сообщения: 445
Регион: Нижний Новгород
|
Добавлено:
Чт 18 Апрель 2013, 07:35
|
  |
| Вадим Борисыч писал(а): |
| Только не ясно, почему понятию "потомственный" придается уничижительный смысл? Или у тебя детей нет, Колек? |
Дети есть, две девочки, пока Извините, если кого обидел. Объясню свою позицию, почему такие печи у меня ассоцииируются с понятием "потомственный печник":
1. Мне дважды делал банную печь "потомственный печник". Как он делал, я уже писал на этом форуме.
2. Из цитат с сайта "Правильные печи" из рубрики "За копейку канарейку", где выставлены на всеобщее обозрение похожие "печи", сделанные "профессиональными сельскими печниками", скорее всего также "потомственными".
3. На этом форуме есть тема "Они выдают чужие работы за свои". Там есть ссылки на сайты, где "потомственные печники" выкладывают фото печей, совсем им не принадлежавших.
Еще раз извините, если кого обидел.
|
|
|
|
    |
 |
Вадим Борисыч

Зарегистрирован: Пт 16 Апрель 2010, 08:54
Сообщения: 340
Регион: Камчатка
|
Добавлено:
Чт 18 Апрель 2013, 10:22
|
  |
Дело не в обидах. Просто есть куча слов, в том числе нецензурных, которыми легко описать деятельность подобных "специалистов". Может, перегибаю? Извините.
|
_________________ С уважением, В.Б.
|
|
  |
 |
Kolek2012

Зарегистрирован: Вт 10 Январь 2012, 09:37
Сообщения: 445
Регион: Нижний Новгород
|
Добавлено:
Чт 18 Апрель 2013, 12:04
|
  |
| Вадим Борисыч писал(а): |
| деятельность подобных "специалистов". |
Заметьте, слово "специалист" вы взяли в кавычки, как впрочем и я слово "потомственный". Так что ни каких обид быть не должно, благодаря нашему великому и могучему Русскому языку
|
|
|
|
    |
 |
Сергей 40
Зарегистрирован: Пт 15 Март 2013, 22:12
Сообщения: 8
Регион: Калуга
|
Добавлено:
Чт 18 Апрель 2013, 13:11
|
  |
Ели говорить о печниках "сельских" то у нас дедушка есть он раньше на всю округу делал печи. У нас поселок колхозный дома строились 1985 году он там отопительные делал, так многие по сегодняшний день функционируют. Но его парализовало. Я у него просил консультацию, он сказал что по раствору подскажет, а по банной печке совет не даст он конструировал очень простые по его словам кирпичная топка шестеренка от дт 75 и короб мет. либо труба 200 л.(могу что то соврать не очень углублялся в конструкцию). Я показал старую печь только для того чтобы обосновать почему я ее разобрал так и не доделав баню. что бы не сказали- что это он с жиру бесятся.
Не кого критиковать не собирался. Только обратился за помощью. Я понимаю, что таких как я с просьбами очень много, но если у вас будет свободная минута не забудьте про меня.
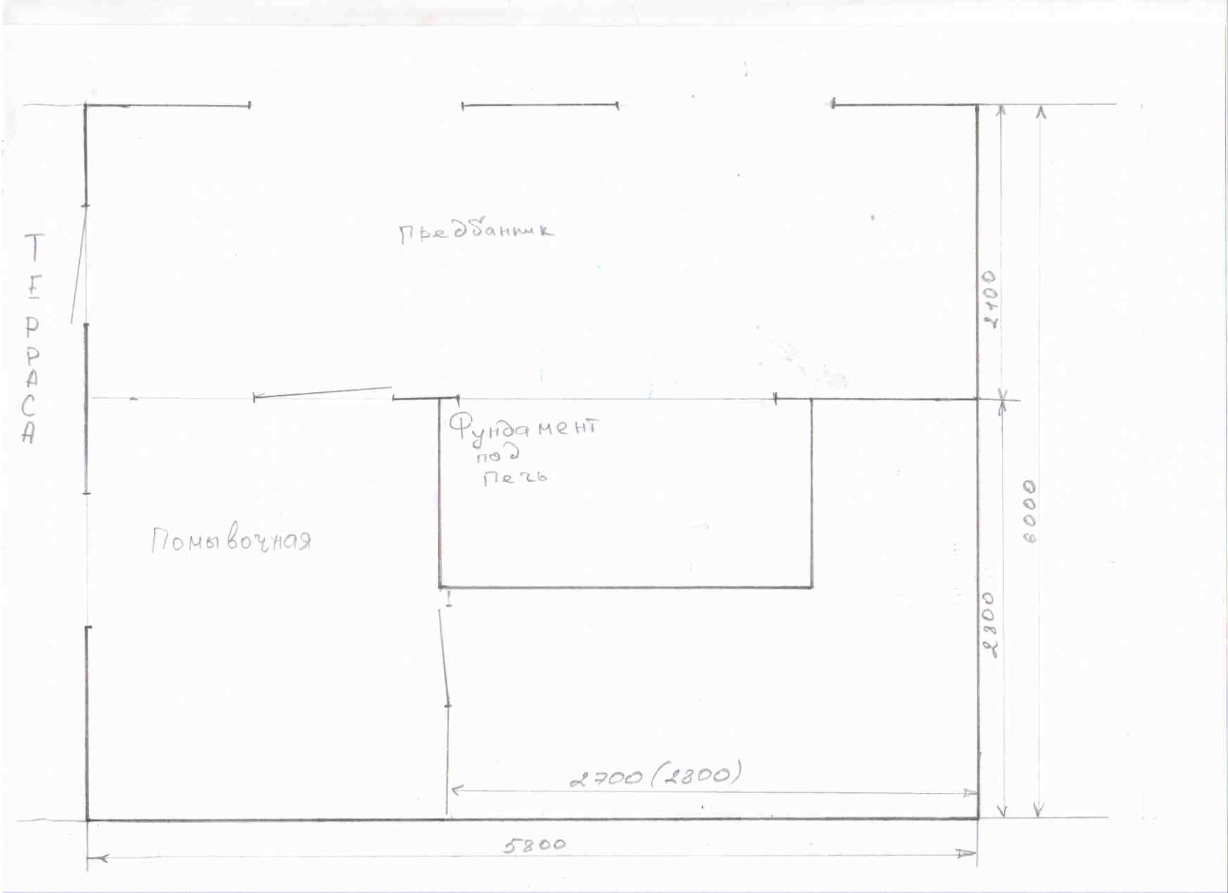
Меня интересует вопрос можно ли мне установить печь Е.В. Колчина Парная 2,8Х2,8 и высоту потолков сделаю 2,4. Топиться будет их помывочной, а между предбанником и парной планирую декоративную нишу в пол кирпича. расстояние от ниши до печи будет всего лишь 10 см. и какой вариант печи № 2 либо № 3.
|
|
|
|
  |
 |
komissar
Зарегистрирован: Чт 4 Октябрь 2012, 05:31
Сообщения: 100
Регион: Чита
|
Добавлено:
Чт 18 Апрель 2013, 14:34
|
  |
| Сергей 40 писал(а): |
| ... Меня интересует вопрос можно ли мне установить печь Е.В. Колчина ... |
А почему нет? Отличный выбор. Я бы тоже остановился на этом варианте, если бы не зудело в одном месте желание сделать что-то свое ))
|
|
|
|
  |
 |
Павел_П

Зарегистрирован: Чт 6 Август 2009, 09:12
Сообщения: 423
Регион: Москва
|
Добавлено:
Пт 19 Апрель 2013, 01:12
|
  |
извиняюсь за оффтоп, лучше это отделить в новую тему
| Вадим Борисыч писал(а): |
| Только не ясно, почему понятию "потомственный" придается уничижительный смысл? ... |
ну он вроде кавычки то поставил !? /и это вы уже обсудили )))/
а смысл уничижительного отношения очень даже ясен -слишком много криворуких ухарей из обоймы "все могу, чо вам надо" приписывают себя к потомсвенным ...
пример из жизни : зашел к "нам на объект" пенсионер-сосед и заявил в разговоре, что он "и сам печник". заказчик потом пояснил - сам себе этот сосед сложил по книжке две печки.
так вот - печник ли он ????
|
_________________ щи да каша - пища наша
|
|
   |
 |
|
|