 |
|
 |
| Автор |
Сообщение
|
Den0123
Зарегистрирован: Пн 30 Декабрь 2013, 18:40
Сообщения: 3
Регион: МО
|
Добавлено:
Вс 5 Январь 2014, 18:37
|
  |
Привет всему печному сообществу.
На данный момент идет проектирование дома совмещенного с банным отсеком,
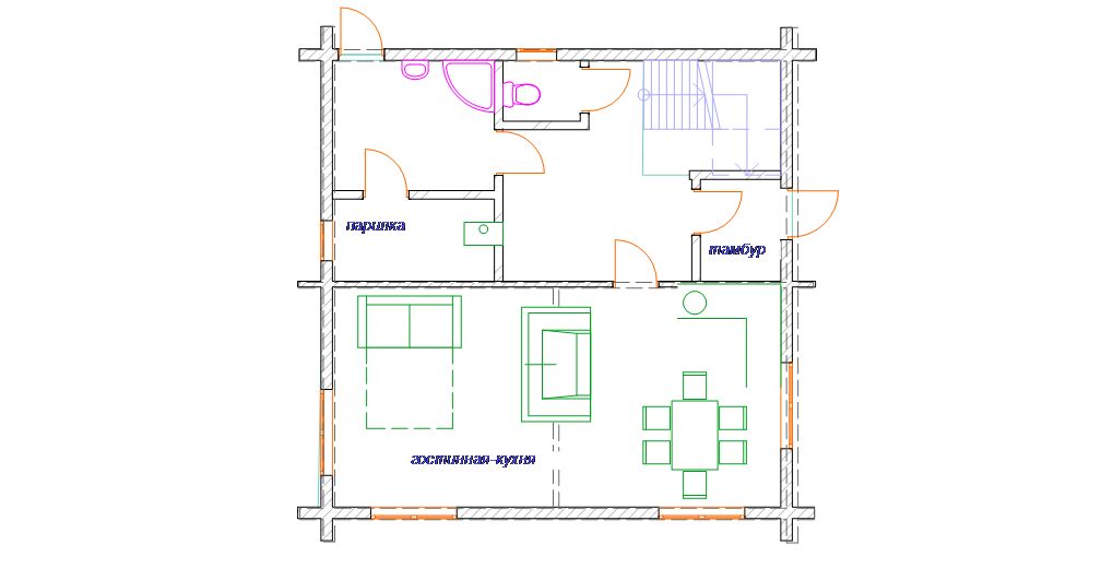
в качестве основного отопления планируется печь, альтернатив виде газа не предвидится...На ваш суд хочу вынести планировку дома из профбруса толщиной 200 и вторым мансардным этажом. Прочитав множество тем в качестве отопительноой печи вижу чтото вроде такой конструкции
http://forum.stovemaster.ru/viewtopic.php?t=7024&start=20
только не из кирпича ручной формовки и попроще во внешнем виде
размеры дома по осям 8*8, но скорее всего вырастут до 8*9
по центру гостинной на 1 этаже как раз место для печи, да и парилка с душевой поменяются скорее всего местами. Жду ваших комментариев и предложений по проекту печи...
|
| Описание: |
|
| Размер файла: |
31.73 КБ |
| Просмотров: |
653 раз(а) |

|
| Описание: |
|
| Размер файла: |
41.77 КБ |
| Просмотров: |
686 раз(а) |

|
|
|
  |
 |
internet_pechnik
Зарегистрирован: Вт 9 Апрель 2013, 19:51
Сообщения: 1892
Регион: belarus
|
Добавлено:
Вс 5 Январь 2014, 19:12
|
  |
Судя по рис(по тому месту где стоит печь).печь-на две комнаты нижних. На 32 квадрата по сути. что не трудно для каминопечи среденеькой,,можно с ХК можно и без
|
|
|
|
  |
 |
Den0123
Зарегистрирован: Пн 30 Декабрь 2013, 18:40
Сообщения: 3
Регион: МО
|
Добавлено:
Вс 5 Январь 2014, 20:46
|
  |
на первом этаже как бы общее помещение кухня-гостинная и в нем по центру печь а на второй этаж идет отопительный щиток и проходит по стенке между двух комнат...Правда тут есть пока споры по поводу расположению комнат, если отопительный щиток с камином на втором этаже то хотелось бы чтоб камин выходил в зал на втором этаже....
|
|
|
|
  |
 |
internet_pechnik
Зарегистрирован: Вт 9 Апрель 2013, 19:51
Сообщения: 1892
Регион: belarus
|
Добавлено:
Пн 6 Январь 2014, 02:57
|
  |
чтоб обогреть нижние 32 квадрата не нужен монстр как на вашей ссылке.Можно и поменше но таки тоже каминопечь с такой же каминной дверкой..Но вот для щитка наверху и камина там нужен немалый фундамент которым будет нижняя печь.вобщем некая нескладуха здесь.К тому же для работы камина (открытого камина)нужна достаточно высокая труба мин 5м. что наверху не всегда получается(5м-от пода где горит до конца трубы попрямой)
Если же поставить прямо на пол нетяжелую металлическую буржуйку с большой стекл дверкой которую обзывают печь-камин то такой вариант подойдет.Кстати очень может быть что в таком случае не придется и щиток верхний греть нижней печью, а греть именно буржуйкой.Кто знает, может именно это вы и имели ввиду
|
|
|
|
  |
 |
Den0123
Зарегистрирован: Пн 30 Декабрь 2013, 18:40
Сообщения: 3
Регион: МО
|
Добавлено:
Пн 6 Январь 2014, 09:37
|
  |
мне хочется печь по функционалу как по ссылке, внизу варочная с ХК, наверху щиток с каминопечью, фундамент будет такойже как и по ссылке-винтовой, под печь планирую 4 винта-сваи с обвязкой швеллером...
Хочется также услышать от уважаемого сообщества насколько хорош данный проект под печное отопление...
|
|
|
|
  |
 |
Владимир Солин

Зарегистрирован: Ср 9 Сентябрь 2009, 12:52
Сообщения: 3804
Регион: Череповец
|
Добавлено:
Пн 6 Январь 2014, 09:40
|
  |
Проект нормальный. У меня ОВИК20 справляется с такой же задачей нормально. Размер 3,5х4,5 кирпича. Вес под 8 тонн.
Хотя парилку бы из дома убрать лучше... Влажность дому во вред.
|
_________________ САМОназначенный дебил форума в 2017году
|
|
  |
 |
|
|
|
Следующая тема
Предыдущая тема
Вы не можете начинать темы Вы не можете отвечать на сообщения Вы не можете редактировать свои сообщения Вы не можете удалять свои сообщения Вы не можете голосовать в опросах Вы не можете добавлять приложения в этом форуме Вы можете скачивать файлы в этом форуме
|
|