| Автор |
Сообщение
|
Миха_59
Зарегистрирован: Чт 2 Май 2013, 06:25
Сообщения: 3
Регион: Соликамск
|
Добавлено:
Вт 4 Июнь 2013, 07:20
|
  |
Добрый день уважаемые форумчане!
В прошлом году поставил баню, а в этом я думаю уже и попариться можно… Только вот печи ещё нет! Очень долго читал данную ветку и понял, что сложить печь, которая будет правильно работать – это искусство! В голове моей полная неразбериха. Для себя определил одно – печь будет каменная. Только вот с выбором самой печи нужен совет профессионалов.
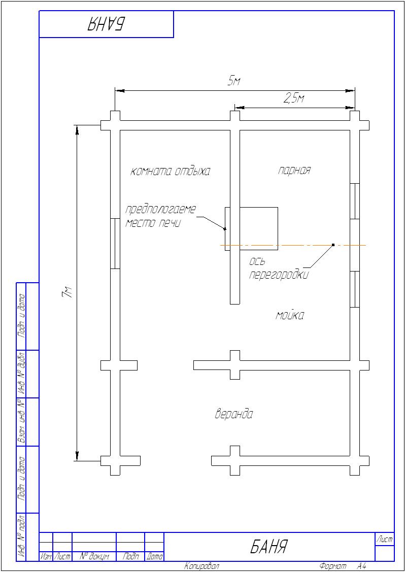
Из исходных данных есть: устоявшийся наверно сруб бани; размер парной – 2400х2500х2200, размер мойки тоже 2400х2500х2200, комната отдыха 2500х5000х2200. Хотелось бы, что бы печь топилась из комнаты отдыха и одной стеной выходила в мойку. Центральный переруб пока не тронутый за исключением дверного проёма в мойку. Перегородки между парной и мойкой пока нет. Баню по прямому назначению планируется использовать раза 2 в неделю.
Уважаемые печники подскажите пожалуйста какую печь предпочтительнее выбрать для данных условий.
|
| Описание: |
|
| Размер файла: |
77.57 КБ |
| Просмотров: |
941 раз(а) |

|
|
|
  |
 |
pe4ka
Зарегистрирован: Ср 23 Сентябрь 2009, 17:36
Сообщения: 1918
Регион: Туймазы
|
Добавлено:
Вт 4 Июнь 2013, 12:49
|
  |
По черному не думали делать? У шведов дым удаляется колпаком дымосборником как в кафе над плитой?Вариантов банных печей много...
|
_________________ окажу консультации по кладке печей каминов и их ремонту д51055 код8-34782 сот 8-9173752622 г.Туймазы башкирия
|
|
   |
 |
Dreamdavids
Зарегистрирован: Сб 29 Октябрь 2011, 07:18
Сообщения: 1105
Регион: Пермь
|
Добавлено:
Вт 4 Июнь 2013, 13:49
|
  |
| pe4ka писал(а): |
| По черному не думали делать? У шведов дым удаляется колпаком дымосборником как в кафе над плитой? |
Тогда уж по-серому
|
_________________ +79222445758 Владимир
|
|
  |
 |
Миха_59
Зарегистрирован: Чт 2 Май 2013, 06:25
Сообщения: 3
Регион: Соликамск
|
Добавлено:
Ср 5 Июнь 2013, 09:49
|
  |
Советы конечно дельные..., но хотелось бы что то побелее, а то после баньки по-чёрному - не отмыться.
|
|
|
|
  |
 |
Dreamdavids
Зарегистрирован: Сб 29 Октябрь 2011, 07:18
Сообщения: 1105
Регион: Пермь
|
Добавлено:
Ср 5 Июнь 2013, 10:41
|
  |
| Миха_59 писал(а): |
| Советы конечно дельные..., но хотелось бы что то побелее, а то после баньки по-чёрному - не отмыться. |
Заблуждение
Но разговор не про это.Вам надо найти печника для начала.Он вам и должен советовать печь под конкретно ваши потребности в привязке к бане.Рассчитывают печь индивидуально.Тут совета,кроме того что печь должна быть из кирпича не посоветуют
|
_________________ +79222445758 Владимир
|
|
  |
 |
Миха_59
Зарегистрирован: Чт 2 Май 2013, 06:25
Сообщения: 3
Регион: Соликамск
|
Добавлено:
Чт 6 Июнь 2013, 08:28
|
  |
Позвонив по объявлениям в газете я понял, что эти "печники" работают каменьщиками на стройках в лучшем случае. Печь сложат хоть из силиката и на цементном растворе. С таких потом спросу.... Видел и творения таких "мастеров". Пришёл, слепил печьку, а потом увидел, что труба на балку вышла.... О швах речь вобще не идёт "а зачем вам тонкие швы - штукатурить же ведь надо". Другие, форум и печников общающихся здесь мягко говоря не уважают. У моего знакомого после такого печника сгорела баня.
Да я бы и сам хотел попробовать сложить печь с Вашей помощью. Вот и спрашиваю специалистов какую печь для моих условий выбрать.
|
|
|
|
  |
 |
komissar
Зарегистрирован: Чт 4 Октябрь 2012, 05:31
Сообщения: 100
Регион: Чита
|
Добавлено:
Чт 6 Июнь 2013, 12:31
|
  |
|
  |
 |
Селиван Виктор
Проектировщик

Зарегистрирован: Сб 2 Январь 2010, 14:33
Сообщения: 6762
Регион: г.Челябинск
|
Добавлено:
Чт 6 Июнь 2013, 19:15
|
  |
| Миха_59 писал(а): |
Позвонив по объявлениям в газете я понял, что эти "печники" работают каменьщиками на стройках в лучшем случае. Печь сложат хоть из силиката и на цементном растворе. С таких потом спросу.... Видел и творения таких "мастеров". Пришёл, слепил печьку, а потом увидел, что труба на балку вышла.... О швах речь вобще не идёт "а зачем вам тонкие швы - штукатурить же ведь надо". Другие, форум и печников общающихся здесь мягко говоря не уважают. У моего знакомого после такого печника сгорела баня.
Да я бы и сам хотел попробовать сложить печь с Вашей помощью. Вот и спрашиваю специалистов какую печь для моих условий выбрать. |
Да, действительно, таких "печников", которые не уважают этот ресурс и печников на этом ресурсе, много -особенно на ресурсе stroiteli- а ищущих справедливости на том ресурсе-банят.
|
_________________ Я за здоровую конкуренцию в печном деле и за работу во благо потребителям услуг печника.Тел. +79507468555
|
|
     |
 |
pe4ka
Зарегистрирован: Ср 23 Сентябрь 2009, 17:36
Сообщения: 1918
Регион: Туймазы
|
Добавлено:
Пт 7 Июнь 2013, 11:08
|
  |
Почему по черному не вызывает интереса?Дышать серой зольной пылью-все ЗА......у НЕЕ КПД БОЛЬШОЙ очень надежна.Для комнаты отдыха просто надо камин делать с печью отопительной и все...
|
_________________ окажу консультации по кладке печей каминов и их ремонту д51055 код8-34782 сот 8-9173752622 г.Туймазы башкирия
|
|
   |
 |
|
|