 |
|
 |
| Автор |
Сообщение
|
Ростислав
Зарегистрирован: Пт 6 Июнь 2014, 22:14
Сообщения: 5
Регион: Николаев
|
Добавлено:
Сб 7 Июнь 2014, 00:01
|
  |
Всем доброго здоровья, господа...
Жизнь заставила взяться за печь. В результате попытался спроектировать печь для аварийного отопления, на случай отключения электроэнергии
Прошу, пожалуйста оцените мой проект и, по-возможности, развейте мои сомнения по следующим вопросам...
1. В проекте дома печи не было предусмотрено, поэтому в плане дома (прилагаю) ее расположение возможно только в указанном месте, поскольку в других местах тяжело добраться до трубы на крыше... В связи с этим возникла мысль развести нагретый воздух в другие помещения с помощью калорифера. Может это лишнее и достаточно будет просто открытых дверей?
2. Имеет ли смысл подача горячего воздуха под потолок этих помещений?
3. Правильный ли размер колосника?
4. Из приемлемых по цене дверок нашел только такие по размеру, но для такой топки она кажется маленькой, может ее нужно поднять на 1-2 ряда, чтобы топку удобно было загружать? И чтобы потом легче было заменить ее на большую?
5. Возможно ли применить для печи такой кирпич (вариант №2)? http://kzsm1.com.ua Он полусухого прессования, но они пишут, что он обжигается и, судя по цвету, достаточно равномерно... Может как-то проверить его можно?
|
| Описание: |
|
 Скачать |
| Название файла: |
Печи.rar |
| Размер файла: |
587.07 КБ |
| Скачено: |
660 раз(а) |
|
|
  |
 |
Vova-U

Зарегистрирован: Пт 30 Июль 2010, 12:28
Сообщения: 979
Регион: Питер
|
Добавлено:
Сб 7 Июнь 2014, 23:00
|
  |
Не печник, но ИМХО тут нужен котёл, вода, а не разводка воздуха
Больно всё далеко от места печи, опять же - возле деревянных лестниц вроде плохо печку ставить
ПМЖ?
|
|
|
|
   |
 |
Ростислав
Зарегистрирован: Пт 6 Июнь 2014, 22:14
Сообщения: 5
Регион: Николаев
|
Добавлено:
Сб 7 Июнь 2014, 23:45
|
  |
Котел, вода... Насос, теплоаккумулятор, поскольку теплые полы, узел подмеса, электричество... А все как-раз затевается на случай отсутствия такового... Этой зимой опыт показал, что электричества может не быть неделю и больше... Лестница - металлический каркас, с, пока неопределенной отделкой. Скорее всего отлитые из бетона ступеньки... Дом - ПМЖ...
Вобщем-то котел было бы идеально, но тут стоит вопрос размещения теплоаккумулятора (он должен быть выше котла и места дохера занимать) и по-любому электричества... Возможно, когда будет пристроена кухня с котельной, - это станет возможным, но пока...(((
Задача спастись в случае наступления ледникового периода при отсутствии благ цивилизации...
|
|
|
|
  |
 |
Игорь 2

Зарегистрирован: Пн 1 Февраль 2010, 13:16
Сообщения: 1006
Регион: Лен обл Волосовский, Ломоносовский р-ны, Гатчина
|
Добавлено:
Вс 8 Июнь 2014, 09:03
|
  |
1 Нет
2 Нет
Тепло от печи будет на лестнице у второго этажа, если лестница не отделена дверью от первого этажа.
Сколько раз сказано: печь греет только то помещение, в котором находится! Исключение составляют калориферные каналы выведенные на ВТОРОЙ этаж.
Проект не под печное отопление и ничего Вы с этим не сделаете.
|
_________________ телефон +79217415105 https://vk.com/id60358428
|
|
   |
 |
Vova-U

Зарегистрирован: Пт 30 Июль 2010, 12:28
Сообщения: 979
Регион: Питер
|
Добавлено:
Вс 8 Июнь 2014, 09:06
|
  |
Если дом ПМЖ, то буржуйка отпадает, проблем с замораживанием теплоносителя нет.
Делают водяные контуры и с естественной циркуляцией, без мотора
Там трубы должны быть потолще и сгоны наклонные, есть специальные темы на форумах.
Если печь больше некуда ставить, то, ИМХО двухконтурный котёл, внутри ядро из шамота, сверху обкладка из декоративного кирпича или ещё чего-нибудь -- к ней уже требований на жаропрочность особых не будет, вверх труба на чердак, там же расширительный бачок, сгоны под наклоном в спальню и м.б. ванну и понизу под полом возврат к котлу. Естественная циркуляция.
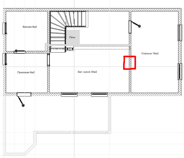
А по идее печке самое место вот тут, можно и плиту сделать для готовки, раз у вас тут холл-кухня.
Всё как обычно, схема вашего дома не под печное отопление, но в принципе аварийные решения по отоплению не самые плохие
------------------------------
Лесницу надо было в прихожей делать, ну да что теперь ....
|
| Описание: |
|
| Размер файла: |
43.83 КБ |
| Просмотров: |
909 раз(а) |

|
|
|
   |
 |
Ростислав
Зарегистрирован: Пт 6 Июнь 2014, 22:14
Сообщения: 5
Регион: Николаев
|
Добавлено:
Вс 8 Июнь 2014, 12:13
|
  |
Понятно...
Тогда вопрос такой, насколько холодно может быть в остальных комнатах, если отбросить идею с калорифером, а оставить только печь... Задача стоит не разморозить их, с возможностью комфортно чувствовать себя в зале... Дом из пенобетона в ж/б каркасе, утеплен 8см пенопласта, под теплым полом 30мм ЭППС, перекрытие 150мм пеноизола, двухкамерные стеклопакеты... Расчетные теплопотери 45 вт/м2, при -30°С.. Или вообще нет смысла рассматривать печное отопление?
Про котел, перемещение печи и СО с естественной циркуляцией пока не говорим...
Да и по самой печи, если можно, ответьте на вопросы...
|
|
|
|
  |
 |
Vova-U

Зарегистрирован: Пт 30 Июль 2010, 12:28
Сообщения: 979
Регион: Питер
|
Добавлено:
Вс 8 Июнь 2014, 15:31
|
  |
| Ростислав писал(а): |
Понятно...
Тогда вопрос такой, насколько холодно может быть в остальных комнатах, если отбросить идею с калорифером, а оставить только печь... |
Калорифер тоже можно, но там такая же циркуляция д.б. налажена, как и с СО: трубы подачи сверху, трубы отдачи снизу. А для воздуха эти трубы будут больше диаметром, по понятным причинам. Вода лучший теплоноситель, если ниже 100 градусов.... А для ПМЖ -- лучший вариант
Опять же в эту же СО можно и ТЭН вставить, будет её частью, а при топке котла может автоматически выключаться. В штатном режиме будете экономить электричество, если хочется. В аварийном придётся работать истопником, котёл сильно меньше начинает греть помещение, если он натоплен, но уже не топится...
Если поставить печь, как я указал, то тепло будет в спальне и холле, печь площадями стен должна открываться в помещения пропорционально потерям тепла.
Потери можно прикинуть на калькуляторах тут с какой-то долей точности:
http://vladirom.narod.ru/stoves/index.html
| Цитата: |
| Расчетные теплопотери 45 вт/м2, при -30°С.. Или вообще нет смысла рассматривать печное отопление? |
Кажется, норма не более 100 вт так что вполне можно, единственно -- из-за планировки отопить одной печью всё не получится (ванна полюбому холодная и что у вас на втором этаже?), с котлом -- возможно
| Цитата: |
Про котел, перемещение печи и СО с естественной циркуляцией пока не говорим...
Да и по самой печи, если можно, ответьте на вопросы... |
Печь по мотивам солинской ОИК 20, я так понимаю...
Там всё более менее правильно, может хайло маловато
Моё имхо (хотя я не печник и не одной печи не построил, а Солин построил) излишне сложная топка там, много пиления, трудоемко и не уверен, что оправданного.
Кирпич полусухого прессования не стоит использовать, может потрещать напротив хайла.
Опять же конвективный канал у вас по форме предполагается вроде из жести
Я бы зассал ставить внутрь печи что-то кроме бесшовной трубы нержавеющей, не дай бог прогорит ... печь конечно при работе под разряжением трубы, но ... ссыкотно...
Именно поэтому считаю лучше ОС на воде, разводка воздуха удобна для буржуек чугунных, правда такая система отопления кроме как на аварийную и не тянет, подгорает на железе воздух....
|
|
|
|
   |
 |
Владимир Солин

Зарегистрирован: Ср 9 Сентябрь 2009, 12:52
Сообщения: 3804
Регион: Череповец
|
Добавлено:
Вс 8 Июнь 2014, 16:49
|
  |
Ну, хотя бы покиваю... и поддержу.
|
_________________ САМОназначенный дебил форума в 2017году
|
|
  |
 |
tuomob

Зарегистрирован: Пн 26 Сентябрь 2011, 16:45
Сообщения: 2370
Регион: Тула
|
Добавлено:
Пн 9 Июнь 2014, 11:24
|
  |
Разрешите тоже высказаться по теме.
Пробую рисовать печи с калориферными каналами и пришел к выводу (не без помощи форумчан), что канал из нержавейки надо убирать за кирпич, как в моём проекте http://forum.stovemaster.ru/download.php?id=21587
Тема http://forum.stovemaster.ru/viewtopic.php?t=7891.
В вашем варианте будет сильно нагреваться канал, что приведёт к горению пыли.
А это совсем нехорошо.
Попробуй "подумать", как у меня. Нагрев от шамота будет быстрый, но не запредельный. И нерж "не будет видеть" прямого пламени.
А после нагрева печи канал будет постепенно забирать тепло от красного и шамота.
В своей теме (ссылка выше) это подробно "рассуждал".
И вопрос герметичности канала чуть менее будет вставать.
И опять-же в открытое пламя (выходит из хайла) можно ставить только нерж, которая это держит (12Х10Т8М, если не ошибаюсь) и толщиной 0.8-1 мм, а в закрытый можно и попроще и тоньше (0.5 мм) ну и дешевле.
|
_________________ С Уважением! Юрий. Тула.
ВК https://vk.com/tuomob
За проектами в личку обращайтесь.
|
|
  |
 |
Ростислав
Зарегистрирован: Пт 6 Июнь 2014, 22:14
Сообщения: 5
Регион: Николаев
|
Добавлено:
Чт 12 Июнь 2014, 14:09
|
  |
Извините, надо было потрудиться поодаль от компа...
Критику принял. Самому стремно ставить трубу в печку, поэтому и спрашиваю насколько холодно может быть в других комнатах без калорифера в печи? Ну, не может же там быть минусовая температура, когда в зале +25, к примеру?
Да, лестница ведет на жилую мансарду, которую, в принципе, в экстримальный период можно закрыть и не отапливать.
С "водяной" системой отопления согласен, что лучше, но городить в доме с теплыми полами чугунину по стенам с толстенными трубами, еще и с уклонами, просто... кошелек не поднимается, ну и внутренняя эстетическая жаба, конешно...))
Хорошо было бы, конечно, поставить небольшой котелок в печку и завязать его на теплый пол, но там жеж с циркуляцией вопросы возникают, и ТА девать некуда... Кстати, какой объем ТА нужен, чтоб не закипел котел в этой печи, скажем по-Кузнецовски на 10кВт, при топке в две полные закладки (килограм 25?)
- Если хайло маловато, какое должно быть?
- Диаметр трубы правильный?
- Достаточно ли тех отверстий под катализатором и правильный у них размер и расположение?
- Размер колосниковой решетки годится?
- Ну, и как проверить кирпич, ато есть тут какой-то с виду ничего, но не звонкий совсем?
Кстати, печь - да, сделана под впечатлением от печей Владимира Солина, за что Вам, Владимир, большое спасибо. Хотелось бы, конешно, и Вашей, более подробной критики...
|
|
|
|
  |
 |
Vova-U

Зарегистрирован: Пт 30 Июль 2010, 12:28
Сообщения: 979
Регион: Питер
|
Добавлено:
Чт 12 Июнь 2014, 17:30
|
  |
Нет, минусовой не будет, но спать там станет крайне неуютно
| Ростислав писал(а): |
- Если хайло маловато, какое должно быть?
- Диаметр трубы правильный?
- Достаточно ли тех отверстий под катализатором и правильный у них размер и расположение?
- Размер колосниковой решетки годится?
- Ну, и как проверить кирпич, ато есть тут какой-то с виду ничего, но не звонкий совсем?
|
Да всё там более-менее нормально, хайло бы я сделал-таки в кирпич, хотя с тем сухим швом как у вас вторые полкирипича там набираются
Трубы хватит, другое дело, что вы задолбаетесь ложить трубу из 3/4-ок, думаю хватит и трубы в четверик, раз у вас второй этаж, но можно подстраховаться и сделать в пятерик.
Колосник, если сделали как у Солина -- должно хватить, но это вопрос к нему
Про катализаторы, вторичный воздух и сухой шов -- я скептик.
Не вижу от всего этого пользы большой, СШ в вашем исполнении -- скорее протяженное узкое хайло -- немного снимет тепловой удар с угла, в который будет бить пламя, а так : считаю всё это излишним усложнением топки, которое делает её слабее механически
У нас ведь не только красный кирпич говно многие печники ругают и шамот, что сильно быстро он лопается.... многие считают что топку из шамота надо класть на плашку.... вот такие дела.
Кирпич проверить проще всего -- кинув в костёр: если лопнет прямо в костре -- совсем говно, если не лопнет -- можно попробовать его прямо из костра бросить в ведро с водой, если опять не лопнул -- вам повезло с кирпичём
-----------------------------
PS про котёл вы всё правильно поняли, если тёплый пол и вырубят ток -- ничего не поможет кроме естественной циркуляции
Если нужна именно аварийная система -- лучше сделать каминопечь красивую (следовательно -- не самому) в том месте, как я нарисовал.
Интерьер не испаганит и будет аварийным или дополнительным источником тепла
Или можно шведку, что уже гораздо менее пафосно
Всё сказанное -- не личный опыт, имейте в виду. Дайджест печных форумов, сам не печник
|
|
|
|
   |
 |
Ростислав
Зарегистрирован: Пт 6 Июнь 2014, 22:14
Сообщения: 5
Регион: Николаев
|
Добавлено:
Чт 12 Июнь 2014, 19:52
|
  |
У Солина колосник гораздо больше, а я отталкивался, если не ошибаюсь, от каких-то Кузнецовских печей. Сейчас точно не вспомню где, но помню что там обсуждался этот момент и утверждалось, что такой размер для подобной топки оптимален... Кто-то может обосновать размеры колосника? Владимир?
Передвинуть печь в стенку со спальней не могу по двум причинам, наверху труба получится либо посреди комнаты, либо попадет на ендову крыши, а это тот еще гемор... А вторая - это то, что там изголовье кровати будет как-раз... Не думаю, что спать головой к печке это хорошая идея...))
Ну, и самая главная задача избежать минусов в соседних помещениях, а переспать этот период можно и в зале, там ведь, будет комфортно...
По сухому шву, - ну убедил меня Кузнецов, что поделаешь... Стал бы дядька с таким опытом создавать себе лишние сложности. А по-поводу катализатора так по-моему даже здесь есть темы где видно как сажа догорает на нем...
|
|
|
|
  |
 |
ВованЕ

Зарегистрирован: Вт 14 Февраль 2017, 15:12
Сообщения: 680
Регион: ЛитвА
|
Добавлено:
Ср 8 Март 2017, 18:06
|
  |
Товарищ"tuomob"..!
Проблема "подгорания"воздуха при-контакте с-нагревАемым железом легкО решАется путём подсыпки пескА на-горизонтальные чугунные или нержавеющие нагреваемые поверхности,установленные в-качестве"калориферов"......
Вы можете экспериментальным путём определить необходимую комфортную толщинУ "подсыпки"и не-страдАть пустыми сомнениями....
Зато металлическая открытая поверхность создаёт быструю"зону разогрева"вокруг печИ.......
Песок хорошО фильтрует "дурные запахи" и, одновременно,служит"аккумулятором ТеплА"......
Кирпичные воздуховоды - слабая альтернатива чугуну.......
|
|
|
|
  |
 |
|
|
|
Следующая тема
Предыдущая тема
Вы не можете начинать темы Вы не можете отвечать на сообщения Вы не можете редактировать свои сообщения Вы не можете удалять свои сообщения Вы не можете голосовать в опросах Вы не можете добавлять приложения в этом форуме Вы можете скачивать файлы в этом форуме
|
|