 |
|
 |
| Автор |
Сообщение
|
Павел Яшуткин

Зарегистрирован: Вт 14 Май 2013, 06:23
Сообщения: 269
Регион: Новосибирская обл.
|
Добавлено:
Чт 19 Сентябрь 2013, 05:24
|
  |
Доброго времени суток форумчане.Старая печь пришла в негодность,нужно делать новую.Заинтересовали меня колпаковые печи.Старая состоит из топки и 5 канального щитка.Помогите подобрать что-нибудь.
Вот так расположена печь в доме.
|
| Описание: |
|
| Размер файла: |
43.7 КБ |
| Просмотров: |
657 раз(а) |

|
|
|
  |
 |
Dreamdavids
Зарегистрирован: Сб 29 Октябрь 2011, 07:18
Сообщения: 1105
Регион: Пермь
|
Добавлено:
Чт 19 Сентябрь 2013, 07:37
|
  |
Размеры помещений и задачи?
|
_________________ +79222445758 Владимир
|
|
  |
 |
Dreamdavids
Зарегистрирован: Сб 29 Октябрь 2011, 07:18
Сообщения: 1105
Регион: Пермь
|
Добавлено:
Чт 19 Сентябрь 2013, 07:49
|
  |
Размеры помещений и задачи?
|
_________________ +79222445758 Владимир
|
|
  |
 |
Павел Яшуткин

Зарегистрирован: Вт 14 Май 2013, 06:23
Сообщения: 269
Регион: Новосибирская обл.
|
Добавлено:
Чт 19 Сентябрь 2013, 08:21
|
  |
1-ая комната 4,2 х 2,5
2-ая комната 3 х 3,5
3-ая комната 4 х 3,5
Дом для пмж,уже зима на носу,что в доме что на улице-холодно.Я начинаю разбирать старую печь
|
|
|
|
  |
 |
Сергей Михайлов

Зарегистрирован: Чт 6 Январь 2011, 17:38
Сообщения: 173
Регион: Москва
|
Добавлено:
Чт 19 Сентябрь 2013, 09:02
|
  |
| Glass21 писал(а): |
1-ая комната 4,2 х 2,5
2-ая комната 3 х 3,5
3-ая комната 4 х 3,5
Дом для пмж,уже зима на носу,что в доме что на улице-холодно.Я начинаю разбирать старую печь |
Жесть!
|
|
|
|
   |
 |
Андрей_Алексеевич

Зарегистрирован: Пн 13 Декабрь 2010, 19:17
Сообщения: 5990
Регион: малая родина Павлова, Скобелева, Циолковского, Уткиных и др.
|
Добавлено:
Чт 19 Сентябрь 2013, 09:07
|
  |
"дотерпелись"... а что в печке хотелось бы на Ваши 35 квадратов?
Имеется ли 2-рой этаж отапливаемый?
Каков фундамент под печью? Его габариты?
Кто будет вести кладку новой печи? Каков кирпич?
Ренее Вы писали, что топятся печи в Ваших благословенных краях, исключительно углём... тогда и топка д.б. соответствующая!
Будет ли в печи регистр ГВС? Для отопления, или для "руки помыть - ванная"?
Печи теплоёмкие кирпичные под уголь должны иметь футировку ШАмотом всего первого яруса(колпака)!!! а, за лучшее - топку футировать не на ребро, а на плашку
На ребро же - остальную часть первого колпака, включая первый подъёмный(-е) ДК.
Такой ПМЖ прогреет печь 2-х ярусная (колпаковая) с периметром стен 4,8 м (без учёта плиты!!!)
|
_________________ Печник - милостью и промыслом Божиим.
Печное отопление частного дома и т.п., авторское сопровождение проектов, наставничество в т.ч. дистанционное, партнёрство в кладке печей.
89106130763 МТС
andrejka61@mail.ru
andrej.kuzmischev@yandex.ru
Последний раз редактировалось: Андрей_Алексеевич (Чт 19 Сентябрь 2013, 09:38), всего редактировалось 1 раз |
|
   |
 |
Павел Яшуткин

Зарегистрирован: Вт 14 Май 2013, 06:23
Сообщения: 269
Регион: Новосибирская обл.
|
Добавлено:
Чт 19 Сентябрь 2013, 09:36
|
  |
| Андрей_Алексеевич писал(а): |
"дотерпелись"... а что в печке хотелось бы на Ваши 35 квадратов?
Имеется ли 2-рой этаж отапливаемый?
Каков фундамент под печью? Его габариты?
Кто будет вести кладку новой печи? Каков кирпич? |
Дом старый,но ещё жилой.Новый начал строить,но в этом планирую ещё жить минимум года 3.Кстати 1-ой комнаты не было,это я сам пристроил.
Второго этажа нет.Высота до потолка 2,05 м.
Нужна отопительно-варочая печь,что бы было тепло в доме.Топливо: дрова и уголь.Ни пироги,ни хлеб печь не планируется,поэтому ХК не нужна.
Про фундамент не знаю,когда разберу увижу.
Кирпич будет новый,марки м-200.Ложить буду сам.
|
|
|
|
  |
 |
Андрей_Алексеевич

Зарегистрирован: Пн 13 Декабрь 2010, 19:17
Сообщения: 5990
Регион: малая родина Павлова, Скобелева, Циолковского, Уткиных и др.
|
Добавлено:
Чт 19 Сентябрь 2013, 09:40
|
  |
Что про размеры печи не отписались?
Поставьте на "184.jpg" размеры фундамента Вы же печник! пусть и начинающий...
Какова перегородка между "2" и "3"?
|
_________________ Печник - милостью и промыслом Божиим.
Печное отопление частного дома и т.п., авторское сопровождение проектов, наставничество в т.ч. дистанционное, партнёрство в кладке печей.
89106130763 МТС
andrejka61@mail.ru
andrej.kuzmischev@yandex.ru
|
|
   |
 |
Вогнистый Владимир

Зарегистрирован: Сб 7 Апрель 2012, 16:13
Сообщения: 811
Регион: Мариуполь, Украина
|
Добавлено:
Чт 19 Сентябрь 2013, 19:11
|
  |
|
    |
 |
Андрей_Алексеевич

Зарегистрирован: Пн 13 Декабрь 2010, 19:17
Сообщения: 5990
Регион: малая родина Павлова, Скобелева, Циолковского, Уткиных и др.
|
Добавлено:
Чт 19 Сентябрь 2013, 21:04
|
  |
что-то заказчик - из "молчунов"..., а здесь "ясновидцев и прорицателей" не встречалось... пока..., или таятся , чтобы кирпичами не побили
|
_________________ Печник - милостью и промыслом Божиим.
Печное отопление частного дома и т.п., авторское сопровождение проектов, наставничество в т.ч. дистанционное, партнёрство в кладке печей.
89106130763 МТС
andrejka61@mail.ru
andrej.kuzmischev@yandex.ru
|
|
   |
 |
Павел Яшуткин

Зарегистрирован: Вт 14 Май 2013, 06:23
Сообщения: 269
Регион: Новосибирская обл.
|
Добавлено:
Пт 20 Сентябрь 2013, 05:43
|
  |
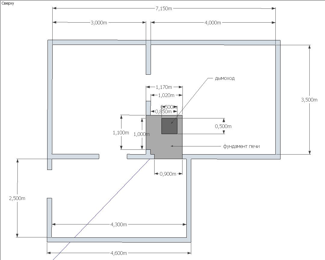
Регистр в печи не нужен.Воду можно и на плите согреть.Вот план с размерами:
|
| Описание: |
|
| Размер файла: |
58.1 КБ |
| Просмотров: |
669 раз(а) |

|
|
|
  |
 |
Андрей_Алексеевич

Зарегистрирован: Пн 13 Декабрь 2010, 19:17
Сообщения: 5990
Регион: малая родина Павлова, Скобелева, Циолковского, Уткиных и др.
|
Добавлено:
Пт 20 Сентябрь 2013, 07:47
|
  |
| Glass21 писал(а): |
| ...Вот план с размерами: |
А топку думаете в гостинной делать? или в кухне под ВП? Ноги хозяйка пожгёт , пока обед готовится...
Что за чугунное печное литьё планируете? какое имеется? Будете ли приобретать дверку со стеклом?
На ширине 900 в кухне вдоль "ляжет" лишь вП 2-3 710х410...
Если купить вП 2-5 и положить её поперёк кухни, то топку с застеклённой дверкой можно сделать из зала, как камин оформив
|
_________________ Печник - милостью и промыслом Божиим.
Печное отопление частного дома и т.п., авторское сопровождение проектов, наставничество в т.ч. дистанционное, партнёрство в кладке печей.
89106130763 МТС
andrejka61@mail.ru
andrej.kuzmischev@yandex.ru
|
|
   |
 |
Павел Яшуткин

Зарегистрирован: Вт 14 Май 2013, 06:23
Сообщения: 269
Регион: Новосибирская обл.
|
Добавлено:
Пт 20 Сентябрь 2013, 18:11
|
  |
| Андрей_Алексеевич писал(а): |
А топку думаете в гостинной делать? или в кухне под ВП? Ноги хозяйка пожгёт , пока обед готовится...
Что за чугунное печное литьё планируете? какое имеется? Будете ли приобретать дверку со стеклом?
На ширине 900 в кухне вдоль "ляжет" лишь вП 2-3 710х410...
Если купить вП 2-5 и положить её поперёк кухни, то топку с застеклённой дверкой можно сделать из зала, как камин оформив  |
Топку лучше делать на кухне,т.е. в комнате 1. У нас вообще большинство новых домов строится с отдельной котельней,что бы мусор с дров домой не нести.
Топочную дверь хотел ставить обычную 250 х 210.Да и смысла особо нет красоту наводить в старом доме.Вот построю новый,тогда можно.
Плиту я как раз предпологал использовать 710х410.
|
|
|
|
  |
 |
Андрей_Алексеевич

Зарегистрирован: Пн 13 Декабрь 2010, 19:17
Сообщения: 5990
Регион: малая родина Павлова, Скобелева, Циолковского, Уткиных и др.
|
Добавлено:
Пт 20 Сентябрь 2013, 19:08
|
  |
С шириной ясно - 117 см.
А какова общая длина(глубина) печи?
|
_________________ Печник - милостью и промыслом Божиим.
Печное отопление частного дома и т.п., авторское сопровождение проектов, наставничество в т.ч. дистанционное, партнёрство в кладке печей.
89106130763 МТС
andrejka61@mail.ru
andrej.kuzmischev@yandex.ru
|
|
   |
 |
Павел Яшуткин

Зарегистрирован: Вт 14 Май 2013, 06:23
Сообщения: 269
Регион: Новосибирская обл.
|
Добавлено:
Пт 20 Сентябрь 2013, 19:41
|
  |
| Андрей_Алексеевич писал(а): |
С шириной ясно - 117 см.
А какова общая длина(глубина) печи? |
А это как?
|
|
|
|
  |
 |
Андрей_Алексеевич

Зарегистрирован: Пн 13 Декабрь 2010, 19:17
Сообщения: 5990
Регион: малая родина Павлова, Скобелева, Циолковского, Уткиных и др.
|
Добавлено:
Пт 20 Сентябрь 2013, 19:59
|
  |
Мне показалось это непоследовательным , а Вам?
|
_________________ Печник - милостью и промыслом Божиим.
Печное отопление частного дома и т.п., авторское сопровождение проектов, наставничество в т.ч. дистанционное, партнёрство в кладке печей.
89106130763 МТС
andrejka61@mail.ru
andrej.kuzmischev@yandex.ru
| Описание: |
|
| Размер файла: |
59.83 КБ |
| Просмотров: |
640 раз(а) |

|
|
|
   |
 |
Павел Яшуткин

Зарегистрирован: Вт 14 Май 2013, 06:23
Сообщения: 269
Регион: Новосибирская обл.
|
Добавлено:
Сб 21 Сентябрь 2013, 20:24
|
  |
135 см длинна получатся.
Я сегодня весь день старую печь разбирал.Как такогого фундамента нет.Есть толстый слой глины.
Завтра попробую по скайпу связаться.
|
|
|
|
  |
 |
|
|
|
Следующая тема
Предыдущая тема
Вы не можете начинать темы Вы не можете отвечать на сообщения Вы не можете редактировать свои сообщения Вы не можете удалять свои сообщения Вы не можете голосовать в опросах Вы не можете добавлять приложения в этом форуме Вы можете скачивать файлы в этом форуме
|
|