 |
|
 |
| Автор |
Сообщение
|
cryion
Зарегистрирован: Ср 30 Октябрь 2013, 11:47
Сообщения: 4
Регион: Донбасс
|
Добавлено:
Ср 30 Октябрь 2013, 12:15
|
  |
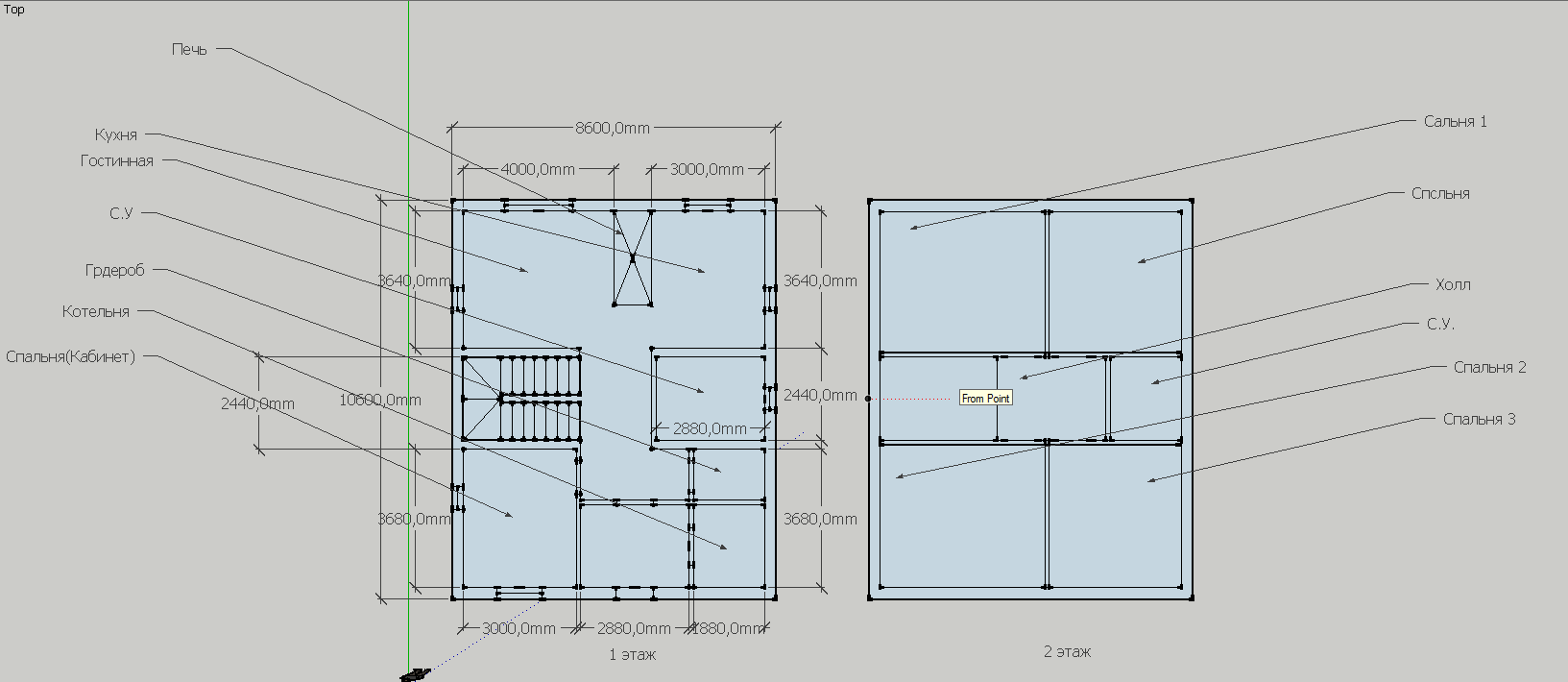
Добрый день,
У меня во всю идет проектирование дома, все будущие домочадцы пришли к одному мнению, что в доме должна быть печь, как резервный источник тепла. Ну, а мне как всегда приходится решать, что это за печь и как она должна выглядеть. Но в печах я вообще ничего не смыслю, и попытавшись на скорую руку разобраться, пришел в тупик. Посоветуйте какую печь можно вписать в мою планировку. Пожелания: чтобы это была печь-камин, в которой будет духовка на кухню.
|
| Описание: |
|
| Размер файла: |
47.8 КБ |
| Просмотров: |
681 раз(а) |

|
|
|
  |
 |
Владимир Солин

Зарегистрирован: Ср 9 Сентябрь 2009, 12:52
Сообщения: 3804
Регион: Череповец
|
Добавлено:
Ср 30 Октябрь 2013, 14:03
|
  |
В очередной раз планировка дома не для печного отопления. Здесь даже тема есть в которой есть проекты более подходящие под отопление печкой.
http://forum.stovemaster.ru/viewtopic.php?t=7341
Но если вера в котельную сильна - то печку можно бы по глубине увеличить, а по ширине уменьшить. На 2ом этаже можно щиток поставить между 2мя спальнями. Так что полдома печкой отопить можно будет.
http://forum.stovemaster.ru/viewtopic.php?p=74489#74489
Но есть и другого размера варианты печек.
|
_________________ САМОназначенный дебил форума в 2017году
|
|
  |
 |
cryion
Зарегистрирован: Ср 30 Октябрь 2013, 11:47
Сообщения: 4
Регион: Донбасс
|
Добавлено:
Ср 30 Октябрь 2013, 18:51
|
  |
Вот из-за того, что вера в котельную не сильна, поэтому и хочется печь в доме. Планировку менять не получается из-за многих факторов, которые тут перечислять смысла нет. С таким расположением печи (что она сможет отапливать половину дома) я в принципе согласен. Просто сейчас для проектирования, необходимы размеры печи, ее приблизительный вид на обоих этажах, фундамент... вот поэтому и обратился на форум. Спасибо за предложенные варианты.
|
|
|
|
  |
 |
Вогнистый Владимир

Зарегистрирован: Сб 7 Апрель 2012, 16:13
Сообщения: 811
Регион: Мариуполь, Украина
|
Добавлено:
Ср 30 Октябрь 2013, 20:09
|
  |
Для кухни Г. образный КАТ.и ОВП. В гостинку Печь-камин. Щиток на 2й. этаж между спальнями.
|
_________________ Печь - это душа дома!!!
|
|
    |
 |
cryion
Зарегистрирован: Ср 30 Октябрь 2013, 11:47
Сообщения: 4
Регион: Донбасс
|
Добавлено:
Ср 30 Октябрь 2013, 23:09
|
  |
| Вогнистый Владимир писал(а): |
| Для кухни Г. образный КАТ.и ОВП. В гостинку Печь-камин. Щиток на 2й. этаж между спальнями. |
Владимир, вот мы и на этом форуме пересеклись Т.е. вы предлагаете вообще 2 печи?
Почитал Ваши посты на другом форуме http://www.forumhouse.ru/threads/201557/page-4, но все равно не могу представить как может в моей планировке выглядеть Г образный кирпичный аккумулятор тепла с отопительно-варочной печью???
|
|
|
|
  |
 |
cryion
Зарегистрирован: Ср 30 Октябрь 2013, 11:47
Сообщения: 4
Регион: Донбасс
|
Добавлено:
Ср 30 Октябрь 2013, 23:11
|
  |
|
  |
 |
|
|
|
Следующая тема
Предыдущая тема
Вы не можете начинать темы Вы не можете отвечать на сообщения Вы не можете редактировать свои сообщения Вы не можете удалять свои сообщения Вы не можете голосовать в опросах Вы не можете добавлять приложения в этом форуме Вы можете скачивать файлы в этом форуме
|
|