Некоммерческое партнерство Альянс Печных Дел Мастера
 RSS  • FAQ  •  Поиск  •  Пользователи  •  Группы   •  Регистрация   •  Избранные темы   •  Профиль  •  Войти и проверить личные сообщения  •  Чат  •  Вход





 Нужен совет Следующая тема
Предыдущая тема
Начать новую темуОтветить на тему
Автор Сообщение
Alex9111310



Зарегистрирован: Пн 3 Февраль 2014, 17:30
Сообщения: 5
Регион: Нижний Новгород

СообщениеДобавлено: Пн 3 Февраль 2014, 21:58 Ответить с цитатойВернуться к началу

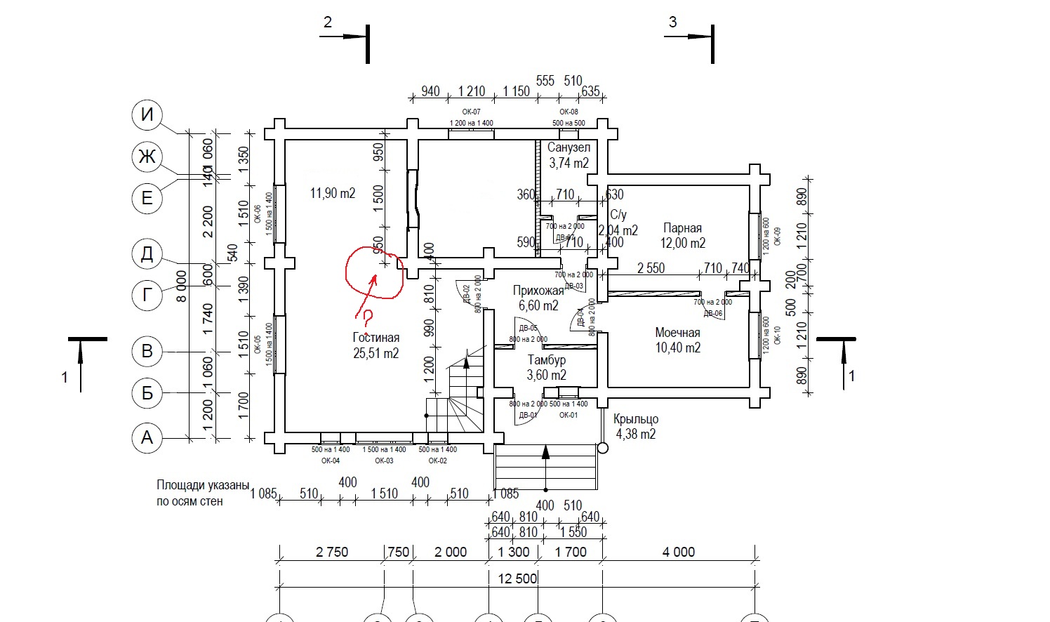
Кто какую печку посоветует , конечно хотелось бы камино-печь смотрящую в зал , с другой стороны плиту на 1-2 комфорки .
Кто и какую мог бы посоветовать и где в данном случае её поставить , и кто бы мог поспособствовать с порядовкой , так как планирую строить сам . Хотелось бы красивую , над которой можно было бы ну оочень постараться )))



Безымянный.jpg
 Описание:
 Размер файла:  208.18 КБ
 Просмотров:  585 раз(а)

Безымянный.jpg


Посмотреть профильОтправить личное сообщениеОтправить e-mail
Показать сообщения:      
Начать новую темуОтветить на тему


 Перейти:   



Следующая тема
Предыдущая тема
Вы не можете начинать темы
Вы не можете отвечать на сообщения
Вы не можете редактировать свои сообщения
Вы не можете удалять свои сообщения
Вы не можете голосовать в опросах
Вы не можете добавлять приложения в этом форуме
Вы можете скачивать файлы в этом форуме




Проект форум печников "Альянс. Печных Дел Мастера" © 2006-2026