 |
|
 |
| Автор |
Сообщение
|
naoma
Зарегистрирован: Вт 29 Июль 2014, 17:44
Сообщения: 2
Регион: Минск
|
Добавлено:
Вт 29 Июль 2014, 17:51
|
  |
Добрый день!
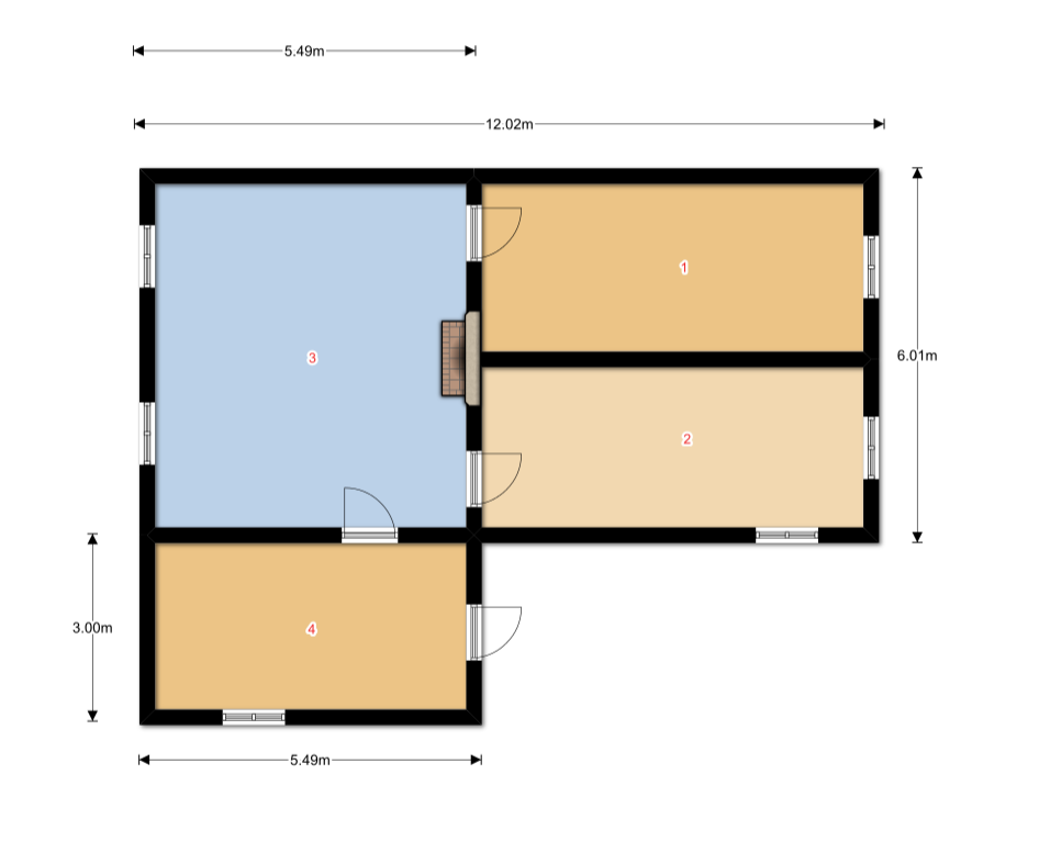
Сейчас активно ведется работа по перепланировке дачного дома, в котором не малую роль будет играть камин. В первую очередь учитывается насколько хорошо он будет обогревать всю жилую площадь. Комнаты 1 и 2 спальные. Комната, где будем проводить основное время - 3.
Комната 4 - прихожая.
Сейчас стоит выбор между двумя вариантами:
Вариант 1: Один камин.
Вариант 2: Здесь два камина.
Сам склоняюсь к первому варианту, т. к. по денежно-временным затратам он меньше, но будет ли хватать тепла для всего дома (прихожую исключаем).
Делитесь опытом и замечаниями.
Спасибо!
|
| Описание: |
|
| Размер файла: |
34.47 КБ |
| Просмотров: |
669 раз(а) |

|
| Описание: |
|
| Размер файла: |
41.77 КБ |
| Просмотров: |
582 раз(а) |

|
|
|
  |
 |
Андрей_Алексеевич

Зарегистрирован: Пн 13 Декабрь 2010, 19:17
Сообщения: 5994
Регион: малая родина Павлова, Скобелева, Циолковского, Уткиных и др.
|
Добавлено:
Вт 29 Июль 2014, 20:02
|
  |
Для 70-ти квадратов периметр камино-печи д.б. не менее 24-х кирпичей
Планировка правильная, под печное отопление! в смысле - одной печкой с камином
|
_________________ Печник - милостью и промыслом Божиим.
Печное отопление частного дома и т.п., авторское сопровождение проектов, наставничество в т.ч. дистанционное, партнёрство в кладке печей.
89106130763 МТС
andrejka61@mail.ru
andrej.kuzmischev@yandex.ru
|
|
   |
 |
naoma
Зарегистрирован: Вт 29 Июль 2014, 17:44
Сообщения: 2
Регион: Минск
|
Добавлено:
Ср 30 Июль 2014, 09:33
|
  |
| Андрей_Алексеевич писал(а): |
Для 70-ти квадратов периметр камино-печи д.б. не менее 24-х кирпичей
Планировка правильная, под печное отопление! в смысле - одной печкой с камином |
Это вы про вариант 2?
|
|
|
|
  |
 |
|
|
|
Следующая тема
Предыдущая тема
Вы не можете начинать темы Вы не можете отвечать на сообщения Вы не можете редактировать свои сообщения Вы не можете удалять свои сообщения Вы не можете голосовать в опросах Вы не можете добавлять приложения в этом форуме Вы можете скачивать файлы в этом форуме
|
|