| Автор |
Сообщение
|
Алексей 74

Зарегистрирован: Сб 7 Март 2015, 15:49
Сообщения: 12
Регион: Карелия г.Беломорск
|
Добавлено:
Вт 10 Март 2015, 18:23
|
  |
Первый раз проектировал , посмотрите может что где переделать.
|
_________________ C Уважением, Алексей.
| Описание: |
|
 Скачать |
| Название файла: |
печь.rar |
| Размер файла: |
433.99 КБ |
| Скачено: |
495 раз(а) |
|
|
  |
 |
Владимир Солин

Зарегистрирован: Ср 9 Сентябрь 2009, 12:52
Сообщения: 3804
Регион: Череповец
|
Добавлено:
Вт 10 Март 2015, 19:53
|
  |
осталось начать читать форум.
|
_________________ САМОназначенный дебил форума в 2017году
|
|
  |
 |
tuomob

Зарегистрирован: Пн 26 Сентябрь 2011, 16:45
Сообщения: 2370
Регион: Тула
|
Добавлено:
Вт 10 Март 2015, 21:09
|
  |
| Алексей 74 писал(а): |
| Первый раз проектировал , посмотрите может что где переделать. |
С 31 по 47 ряд сплошной массив кирпича.
ЭТО ЗАЧЕМ
Внешний вид вторичен, главное, что внутри.
Может с чего-то малого начнёте.
2.5 на 3.5, 3.5 на 3.5, 3 на 3 и т.д.
С разными топочными.
И Лучше в одном этаже.
Кладите в ОБЛАКО,а ссылки на форум.
Почитайте разделы на форуме
http://forum.stovemaster.ru/viewforum.php?f=75
http://forum.stovemaster.ru/viewforum.php?f=48
Здесь очень много полезной информации.
|
_________________ С Уважением! Юрий. Тула.
ВК https://vk.com/tuomob
За проектами в личку обращайтесь.
|
|
  |
 |
Алексей 74

Зарегистрирован: Сб 7 Март 2015, 15:49
Сообщения: 12
Регион: Карелия г.Беломорск
|
Добавлено:
Вт 10 Март 2015, 21:58
|
  |
Проектировал для своего дома,сплошной массив-это проход между этажами,прошу совета конкретно по этой печи , весь форум мне за год не прочитать.
|
_________________ C Уважением, Алексей.
|
|
  |
 |
tuomob

Зарегистрирован: Пн 26 Сентябрь 2011, 16:45
Сообщения: 2370
Регион: Тула
|
Добавлено:
Вт 10 Март 2015, 22:31
|
  |
| Алексей 74 писал(а): |
| Проектировал для своего дома,сплошной массив-это проход между этажами,прошу совета конкретно по этой печи , весь форум мне за год не прочитать. |
Тогда закажи проект у профи. Будет надёжней.
Слишком сырой проект, много корректировать, надо переделывать во многих местах.
Выкатывай поэтажный план в тему со вписанной печью. Чтобы предметный разговор можно было вести на форуме по Вашим хотелкам.
|
_________________ С Уважением! Юрий. Тула.
ВК https://vk.com/tuomob
За проектами в личку обращайтесь.
|
|
  |
 |
Алексей 74

Зарегистрирован: Сб 7 Март 2015, 15:49
Сообщения: 12
Регион: Карелия г.Беломорск
|
Добавлено:
Вт 10 Март 2015, 22:59
|
  |
|
_________________ C Уважением, Алексей.
| Описание: |
|
 Скачать |
| Название файла: |
печь 2.rar |
| Размер файла: |
436.46 КБ |
| Скачено: |
431 раз(а) |
|
|
  |
 |
tuomob

Зарегистрирован: Пн 26 Сентябрь 2011, 16:45
Сообщения: 2370
Регион: Тула
|
Добавлено:
Вт 10 Март 2015, 23:06
|
  |
Поэтажный план ДОМА, а не разрезанная по этажам печь.
|
_________________ С Уважением! Юрий. Тула.
ВК https://vk.com/tuomob
За проектами в личку обращайтесь.
|
|
  |
 |
Алексей 74

Зарегистрирован: Сб 7 Март 2015, 15:49
Сообщения: 12
Регион: Карелия г.Беломорск
|
Добавлено:
Вт 10 Март 2015, 23:12
|
  |
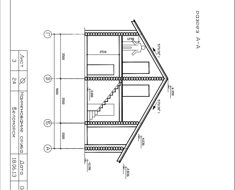
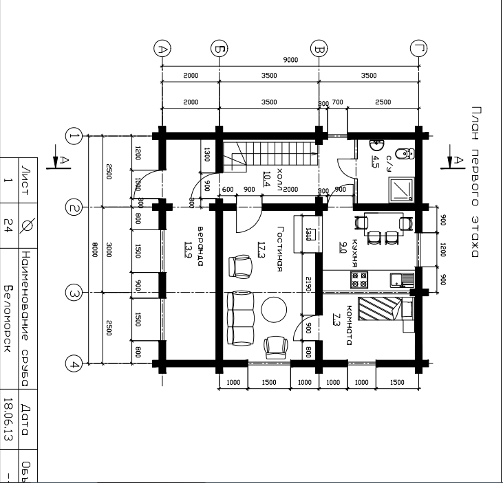
проект дома,фундамент под печь на30 см шире ,дом сделан из бруса по этому проекту
|
_________________ C Уважением, Алексей.
| Описание: |
|
 Скачать |
| Название файла: |
Беломорск.pdf |
| Размер файла: |
479.7 КБ |
| Скачено: |
591 раз(а) |
|
|
  |
 |
Алексей 74

Зарегистрирован: Сб 7 Март 2015, 15:49
Сообщения: 12
Регион: Карелия г.Беломорск
|
Добавлено:
Чт 12 Март 2015, 09:21
|
  |
| Алексей 74 писал(а): |
| проект дома,фундамент под печь на30 см шире ,дом сделан из бруса по этому проекту |
|
_________________ C Уважением, Алексей.
| Описание: |
|
| Размер файла: |
70.51 КБ |
| Просмотров: |
1149 раз(а) |

|
|
|
  |
 |
Алексей 74

Зарегистрирован: Сб 7 Март 2015, 15:49
Сообщения: 12
Регион: Карелия г.Беломорск
|
Добавлено:
Чт 12 Март 2015, 09:22
|
  |
|
_________________ C Уважением, Алексей.
| Описание: |
|
| Размер файла: |
61.81 КБ |
| Просмотров: |
885 раз(а) |

|
|
|
  |
 |
Алексей 74

Зарегистрирован: Сб 7 Март 2015, 15:49
Сообщения: 12
Регион: Карелия г.Беломорск
|
Добавлено:
Чт 12 Март 2015, 09:24
|
  |
| Алексей 74 писал(а): |
| проект дома,фундамент под печь на30 см шире ,дом сделан из бруса по этому проекту |
|
_________________ C Уважением, Алексей.
| Описание: |
|
| Размер файла: |
64.73 КБ |
| Просмотров: |
947 раз(а) |

|
|
|
  |
 |
Алексей 74

Зарегистрирован: Сб 7 Март 2015, 15:49
Сообщения: 12
Регион: Карелия г.Беломорск
|
Добавлено:
Чт 12 Март 2015, 09:27
|
  |
|
_________________ C Уважением, Алексей.
| Описание: |
|
| Размер файла: |
57.96 КБ |
| Просмотров: |
861 раз(а) |

|
|
|
  |
 |
Владимир Солин

Зарегистрирован: Ср 9 Сентябрь 2009, 12:52
Сообщения: 3804
Регион: Череповец
|
Добавлено:
Чт 12 Март 2015, 10:02
|
  |
Смотрю на план и недоумеваю...
Из кухни в гостинную попадать через коридор нужно. И комната-спальня на 1 этаже неотапливаемая...
Ведь все решается проще - печку сдвигаем вниз, так чтобы угол ее в спальню заходил. С топкой только на 1 этаже.
Дверь из кухни в гостинную добавить. Щиток отопительный между 2х верхних комнат ставится.
В кухне мебель поставить по внешней стенке дома. Готовят и в окно смотрят.
|
_________________ САМОназначенный дебил форума в 2017году
|
|
  |
 |
Андрей_Алексеевич

Зарегистрирован: Пн 13 Декабрь 2010, 19:17
Сообщения: 5994
Регион: малая родина Павлова, Скобелева, Циолковского, Уткиных и др.
|
Добавлено:
Чт 12 Март 2015, 10:17
|
  |
"Ну, вот так, как-то! (с)
|
_________________ Печник - милостью и промыслом Божиим.
Печное отопление частного дома и т.п., авторское сопровождение проектов, наставничество в т.ч. дистанционное, партнёрство в кладке печей.
89106130763 МТС
andrejka61@mail.ru
andrej.kuzmischev@yandex.ru
| Описание: |
| сие - схема, без размеров... |
|
| Размер файла: |
77.34 КБ |
| Просмотров: |
960 раз(а) |

|
| Описание: |
|
| Размер файла: |
66.74 КБ |
| Просмотров: |
977 раз(а) |

|
|
|
   |
 |
Владимир Солин

Зарегистрирован: Ср 9 Сентябрь 2009, 12:52
Сообщения: 3804
Регион: Череповец
|
Добавлено:
Чт 12 Март 2015, 10:37
|
  |
ага, только печку я чуток поменьше бы поставил... Но нужно считать теплопотери.
И мебель чуток попередвигать...
|
_________________ САМОназначенный дебил форума в 2017году
| Описание: |
|
| Размер файла: |
96.74 КБ |
| Просмотров: |
1063 раз(а) |

|
|
|
  |
 |
Алексей 74

Зарегистрирован: Сб 7 Март 2015, 15:49
Сообщения: 12
Регион: Карелия г.Беломорск
|
Добавлено:
Чт 12 Март 2015, 10:41
|
  |
| Владимир Солин писал(а): |
Смотрю на план и недоумеваю...
Из кухни в гостинную попадать через коридор нужно. И комната-спальня на 1 этаже неотапливаемая...
Ведь все решается проще - печку сдвигаем вниз, так чтобы угол ее в спальню заходил. С топкой только на 1 этаже.
Дверь из кухни в гостинную добавить. Щиток отопительный между 2х верхних комнат ставится.
В кухне мебель поставить по внешней стенке дома. Готовят и в окно смотрят. |
Здравствуйте спасибо, что ответили . На 2 этаже разделяются комнаты брусом 100х150 ,а на первом уже почти пропилили проем под печь (хотя строителям говорил не трогать но увы и ах ), а в маленькую комнату на первом этаже думаю из кухни тепло и так пойдет.Дверь не с комнаты ,а с кухни будет .
|
_________________ C Уважением, Алексей.
Последний раз редактировалось: Алексей 74 (Чт 12 Март 2015, 10:43), всего редактировалось 1 раз |
|
  |
 |
Владимир Солин

Зарегистрирован: Ср 9 Сентябрь 2009, 12:52
Сообщения: 3804
Регион: Череповец
|
Добавлено:
Чт 12 Март 2015, 10:42
|
  |
думайте дальше.
|
_________________ САМОназначенный дебил форума в 2017году
|
|
  |
 |
Алексей 74

Зарегистрирован: Сб 7 Март 2015, 15:49
Сообщения: 12
Регион: Карелия г.Беломорск
|
Добавлено:
Чт 12 Март 2015, 11:02
|
  |
| Владимир Солин писал(а): |
| думайте дальше. |
А если поставить печь как было изначально,жена не хочет забирать пространство стены,хотели ещё на первом этаже теплый пол сделать,но с ростом цен уже не знаю.
|
_________________ C Уважением, Алексей.
|
|
  |
 |
Владимир Солин

Зарегистрирован: Ср 9 Сентябрь 2009, 12:52
Сообщения: 3804
Регион: Череповец
|
Добавлено:
Чт 12 Март 2015, 21:19
|
  |
у вас еще с лестницей... не все в порядке, как мне думается... Слишком крутая. Но может я ошибаюсь.
И холл на 2ом этаже я бы увеличил по ширине. Спальни вроде как великоваты. )
|
_________________ САМОназначенный дебил форума в 2017году
|
|
  |
 |
|
|