 |
|
 |
| Автор |
Сообщение
|
Калина
Зарегистрирован: Ср 1 Апрель 2015, 10:10
Сообщения: 2
Регион: Московская область
|
Добавлено:
Ср 1 Апрель 2015, 10:40
|
  |
Добрый день.
Ищу мастера для постройки печного комплекса под навесом. Навес готов.
Есть готовый фундамент. К печному комплексу, подведены вода и канализация. В печном комплексе хотелось бы видеть мангал, казан, мойку ...
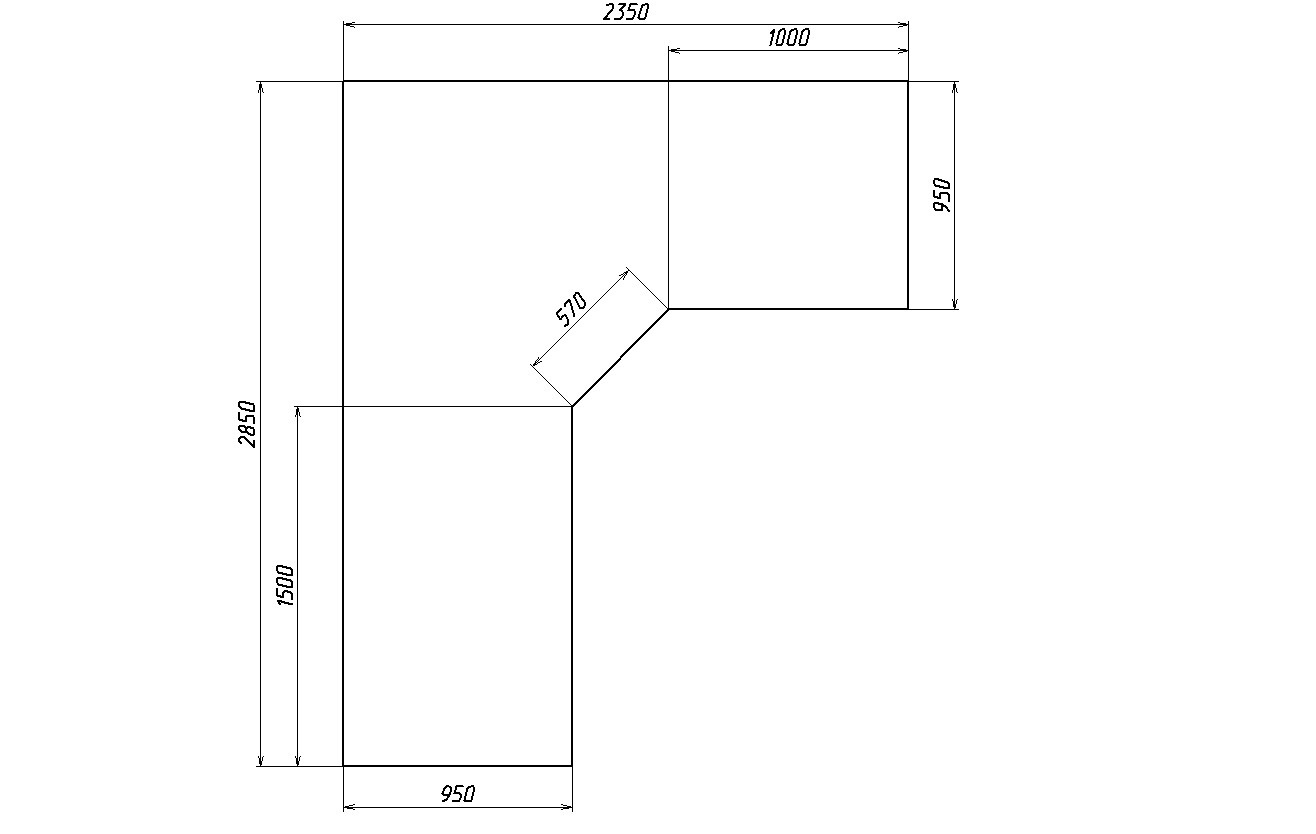
Объект находится на Дмитровском шоссе, в 20 км от МКАД. Электричество, вода, проживание. В приложение размеры фундамента. Некоторые варианты. Не получается больше дух фото вставить. При необходимости, размеры фундамента можно увеличить.
С уважением, Александр.
Alexandr.kalina@mail.ru
|
| Описание: |
|
| Размер файла: |
43.88 КБ |
| Просмотров: |
678 раз(а) |

|
| Описание: |
|
| Размер файла: |
309.12 КБ |
| Просмотров: |
407 раз(а) |

|
|
|
  |
 |
смирнов иван
Зарегистрирован: Чт 16 Январь 2014, 13:06
Сообщения: 1168
Регион: москва
|
Добавлено:
Ср 1 Апрель 2015, 11:51
|
  |
А для чего дверка в зоне мангала, что предполагается - просто закрыть мангал, либо разновидность хлебной камеры? . Проект сырой. Хотя в основе жизнеспособный. Каковы пожелания по внешнему виду? Витебск, киров, lode?
|
_________________ Камины , печи , барбекю , русские печи , ремонт ,переделка.8(903)286-88-58
|
|
    |
 |
Калина
Зарегистрирован: Ср 1 Апрель 2015, 10:10
Сообщения: 2
Регион: Московская область
|
Добавлено:
Ср 1 Апрель 2015, 13:15
|
  |
Добрый.
Проект сыроват, да вообщем, это просто картинка. Так получилось, что фундамент делали под комплекс которого и не было. Пытаюсь привязать к существующему фундаменту, хотя подлить плиту "не проблемма". Кирпич наверно "Кировский", дороже, не рассматривал. Дверцы поставленны т.к. внутри мини печь, не знаю правда, как в таком маленьков входе шашлык готовить. Готов рассмотреть проект правильного комплекса.
С уважением, Александр
|
| Описание: |
|
| Размер файла: |
198.67 КБ |
| Просмотров: |
680 раз(а) |

|
| Описание: |
|
| Размер файла: |
208.31 КБ |
| Просмотров: |
571 раз(а) |

|
|
|
  |
 |
Владимир Солин

Зарегистрирован: Ср 9 Сентябрь 2009, 12:52
Сообщения: 3804
Регион: Череповец
|
Добавлено:
Ср 1 Апрель 2015, 15:39
|
  |
Проект кухонного комплекса мой.
Дверка на мангале делает его коптилкой. Есть прямой ход в трубу при открытой дверке и есть возможность на тлеющем огне подвесить что-то коптится.
Для шашлыков ширина 500мм, длина шампуров 500мм.
Проект подготовлен к реализации.
Есть и другие варианты барбекю.
|
_________________ САМОназначенный дебил форума в 2017году
| Описание: |
|
| Размер файла: |
138.99 КБ |
| Просмотров: |
661 раз(а) |

|
| Описание: |
|
| Размер файла: |
127.85 КБ |
| Просмотров: |
560 раз(а) |

|
Последний раз редактировалось: Владимир Солин (Ср 1 Апрель 2015, 15:51), всего редактировалось 2 раз(а) |
|
  |
 |
ivgen77
Зарегистрирован: Сб 14 Март 2015, 14:03
Сообщения: 49
Регион: Мос.обл
|
Добавлено:
Ср 1 Апрель 2015, 15:48
|
  |
|
  |
 |
смирнов иван
Зарегистрирован: Чт 16 Январь 2014, 13:06
Сообщения: 1168
Регион: москва
|
Добавлено:
Ср 1 Апрель 2015, 16:56
|
  |
Негерметичная дверка на коптилке неразумна сама по себе. Реализация футеровки такой полости при заданном размере сомнительна в передней части.
|
_________________ Камины , печи , барбекю , русские печи , ремонт ,переделка.8(903)286-88-58
|
|
    |
 |
Владимир Солин

Зарегистрирован: Ср 9 Сентябрь 2009, 12:52
Сообщения: 3804
Регион: Череповец
|
Добавлено:
Ср 1 Апрель 2015, 21:21
|
  |
дверка скорее всего нужна без стекол. Зарастет быстро. Сьемная нужна с возможностью помыть.
Герметичность по мне сильно не нужна. Тяга трубы есть.
|
_________________ САМОназначенный дебил форума в 2017году
|
|
  |
 |
|
|
|
Следующая тема
Предыдущая тема
Вы не можете начинать темы Вы не можете отвечать на сообщения Вы не можете редактировать свои сообщения Вы не можете удалять свои сообщения Вы не можете голосовать в опросах Вы не можете добавлять приложения в этом форуме Вы можете скачивать файлы в этом форуме
|
|