| Автор |
Сообщение
|
Безумный Печник

Зарегистрирован: Чт 2 Февраль 2012, 21:43
Сообщения: 3221
Регион: спб
|
Добавлено:
Вс 16 Февраль 2014, 00:02
|
  |
Вопрос к печному сообществу кто делал банную кирпичную печь совмещенную с лежанкой и как она в деле . Проектирую на весну банный комплекс для базы отдыха .Стоят задачи соединить русскую паровою баню+сауну + турецкою в один флакон размеров парной пока нет так как нет проекта ( но есть некоторые фото для примера). Суть добиться от лежанки эффекта турецкого Хамама делается для в основном для женщин Спа -салона с электричеством у них проблемы. Поэтому как вариант сделать подключаемую лежанку из кирпича и покрыть сверху керамикой или плиткой из талькохлорида вот только у меня сомнения;1) будет ли влажность 30-40 градусов при подаче воды на нее?? 2) не будет ли локальный перегрев перекрыши лежанки чтоб добиться нужных температур ? 3)как ее контролировать с другой стороны перетопили сели задницу ошпарили датчик к в хк вставлять что ли? 4) возможно предусмотреть в ней отдельную топку чтоб режимы температур от нагретых кирпичных стенок русской паровой камненки не смешивались в парной. Я конечно понимаю что затея бредовая объединить все три печи в один комбайн с разными режимами !но все же хотелось услышать мнения хотя бы вопросу о лежанки имеет ее место быть в бане . Интересно может кто из Партнерства Кузнецова строил что-то подобное посмотрел на сайте у них много фото с лежанками есть и изразцовые не уверен конечно что они все находятся в парной ???? P.s Есть мысль еще совместить лежанку с гипокаустом в полу типа римских терм ?
|
_________________ Русская Печная АртелЪ -Возрождение старинных ремесел. Печные работы под ключ от зонтика до зольника . 89213537822
| Описание: |
|
| Размер файла: |
74.71 КБ |
| Просмотров: |
1251 раз(а) |

|
| Описание: |
|
| Размер файла: |
74.32 КБ |
| Просмотров: |
1035 раз(а) |

|
| Описание: |
|
| Размер файла: |
19.52 КБ |
| Просмотров: |
992 раз(а) |

|
| Описание: |
|
| Размер файла: |
48.04 КБ |
| Просмотров: |
917 раз(а) |

|
|
|
    |
 |
Вогнистый Владимир

Зарегистрирован: Сб 7 Апрель 2012, 16:13
Сообщения: 811
Регион: Мариуполь, Украина
|
Добавлено:
Вс 16 Февраль 2014, 10:58
|
  |
У А. Замашка - была печь с лежанкой. Регулировка задвижкой. Идея хорошая и давно назрела. Удачи и Здоровья.
|
_________________ Печь - это душа дома!!!
|
|
    |
 |
Селиван Виктор
Проектировщик

Зарегистрирован: Сб 2 Январь 2010, 14:33
Сообщения: 6756
Регион: г.Челябинск
|
Добавлено:
Вс 16 Февраль 2014, 11:08
|
  |
Я подключал к металлической(кустарного производства ) банной печи кирпичную лежанку. Металлическая печь с шамотной футеровкой изнутри. Сделал переключение печи с прямого хода на лежанку. Для общественных заведений я бы не советовал -могут перетопить и ошпарить ж....у. На лежанке плиты толщ. 60 мм из талькомагнезита. Два года уже в домашней бане эксплуатируют- пока "наездов" не было.
|
_________________ Я за здоровую конкуренцию в печном деле и за работу во благо потребителям услуг печника.Тел. +79507468555
|
|
     |
 |
Михаил Фадеев

Зарегистрирован: Пн 13 Февраль 2012, 15:39
Сообщения: 570
Регион: Москва
|
Добавлено:
Вс 16 Февраль 2014, 14:14
|
  |
Лёш, а в каком помещении разместишь лежанку? В парной врядли - режим русской бани + горячая лежанка, по-моему крутовато будет. Да и если это связано с хамамом, то влажностные режимы не совпадают - в хамаме должно быть ~ 80% влажности. Я бы, наверное, делал ей отдельную топку.
|
_________________ 8 903 112 79 73;
|
|
    |
 |
Селиван Виктор
Проектировщик

Зарегистрирован: Сб 2 Январь 2010, 14:33
Сообщения: 6756
Регион: г.Челябинск
|
Добавлено:
Вс 16 Февраль 2014, 14:41
|
  |
| Михаил Фадеев писал(а): |
| ? В парной врядли - режим русской бани + горячая лежанка, по-моему крутовато будет. |
Для моего заказчика не крутовато- лежит на горячей лежанке и вдобавок ещё веником парится.Чтобы не обжечься стелет полотенце на лежанку. Ведь камень нагревается и за счёт воздуха в парилке до температуры в самой парилке.
|
_________________ Я за здоровую конкуренцию в печном деле и за работу во благо потребителям услуг печника.Тел. +79507468555
|
|
     |
 |
Андрей_Алексеевич

Зарегистрирован: Пн 13 Декабрь 2010, 19:17
Сообщения: 5980
Регион: малая родина Павлова, Скобелева, Циолковского, Уткиных и др.
|
Добавлено:
Вс 16 Февраль 2014, 19:01
|
  |
| Селиван Виктор писал(а): |
| Для моего заказчика не крутовато- лежит на горячей лежанке и вдобавок ещё веником парится.Чтобы не обжечься стелет полотенце на лежанку. Ведь камень нагревается и за счёт воздуха в парилке до температуры в самой парилке. |
http://forum.stovemaster.ru/viewtopic.php?t=4606
март 2011 года
В печке-каменке: над топкой открытое корыто с камнями и 2-ва опускных ДК - 1-н, дальний "байпас" газослив и канал ПНП, а 2-рой - "факельный" сверху сквозь каменную закладку, покоющуюся на решетке ливневой канализации 40х80, также имеет боковые газосливы.
Лежанка 220см = более 4,5 м горизонтальных ДК.
2-ва яруса-колпака, не считая лежанки...
ТД - 200-тый ШИДЕЛ.
Нареканий и вопросов нет.
Заказчик "экстримал" - не гнушается зимой проваливаться..., промокать насквозь...
За фотками не доехал - Мещера!, однака...
|
_________________ Печник - милостью и промыслом Божиим.
Печное отопление частного дома и т.п., авторское сопровождение проектов, наставничество в т.ч. дистанционное, партнёрство в кладке печей.
89106130763 МТС
andrejka61@mail.ru
andrej.kuzmischev@yandex.ru
Последний раз редактировалось: Андрей_Алексеевич (Вс 16 Февраль 2014, 19:08), всего редактировалось 1 раз |
|
   |
 |
Андрей_Алексеевич

Зарегистрирован: Пн 13 Декабрь 2010, 19:17
Сообщения: 5980
Регион: малая родина Павлова, Скобелева, Циолковского, Уткиных и др.
|
Добавлено:
Вс 16 Февраль 2014, 19:08
|
  |
| Безумный Печник писал(а): |
Вопрос к печному сообществу кто делал банную кирпичную печь совмещенную с лежанкой и как она в деле . Проектирую на весну банный комплекс для базы отдыха ... |
ВСЁ выйдет!!!
|
_________________ Печник - милостью и промыслом Божиим.
Печное отопление частного дома и т.п., авторское сопровождение проектов, наставничество в т.ч. дистанционное, партнёрство в кладке печей.
89106130763 МТС
andrejka61@mail.ru
andrej.kuzmischev@yandex.ru
|
|
   |
 |
Безумный Печник

Зарегистрирован: Чт 2 Февраль 2012, 21:43
Сообщения: 3221
Регион: спб
|
Добавлено:
Вс 23 Февраль 2014, 10:39
|
  |
Всем спасибо за ответы !!! В парной лежанка спорное решения половина за половина против ! От многих печников раньше слышал про отдельную самостоятельную топку как (на фото Ками )у лежанки как наиболие грамотное решения странно переключением задвижек разве не добиться регулировки нагрева ??? Обкладка верха в место тальхолорида камнем змеивиком существенной разницы не даст ???
|
_________________ Русская Печная АртелЪ -Возрождение старинных ремесел. Печные работы под ключ от зонтика до зольника . 89213537822
| Описание: |
|
| Размер файла: |
95.65 КБ |
| Просмотров: |
1009 раз(а) |

|
|
|
    |
 |
Dreamdavids
Зарегистрирован: Сб 29 Октябрь 2011, 07:18
Сообщения: 1105
Регион: Пермь
|
Добавлено:
Вс 23 Февраль 2014, 11:10
|
  |
Печь то планируется периодичка или постоянного действия?Если типа Руссауны,то с лежанкой проще.С периодичкой запаришься ловить температуру лежанки и сажу
на камнях.
|
_________________ +79222445758 Владимир
|
|
  |
 |
Андрей_Алексеевич

Зарегистрирован: Пн 13 Декабрь 2010, 19:17
Сообщения: 5980
Регион: малая родина Павлова, Скобелева, Циолковского, Уткиных и др.
|
Добавлено:
Вс 23 Февраль 2014, 14:53
|
  |
| Безумный Печник писал(а): |
| ... Обкладка верха в место тальхолорида камнем змеивиком существенной разницы не даст ??? |
Коли такой "ценник" , клади нефрит
|
_________________ Печник - милостью и промыслом Божиим.
Печное отопление частного дома и т.п., авторское сопровождение проектов, наставничество в т.ч. дистанционное, партнёрство в кладке печей.
89106130763 МТС
andrejka61@mail.ru
andrej.kuzmischev@yandex.ru
|
|
   |
 |
Безумный Печник

Зарегистрирован: Чт 2 Февраль 2012, 21:43
Сообщения: 3221
Регион: спб
|
Добавлено:
Вс 23 Февраль 2014, 15:31
|
  |
Думаю печь делать переодическую как вариант тех решения с форума русбани http://forum.rusbani.ru/viewtopic.php?t=2350 Интересует больше теплоемкость камня а не цена.
|
_________________ Русская Печная АртелЪ -Возрождение старинных ремесел. Печные работы под ключ от зонтика до зольника . 89213537822
| Описание: |
|
| Размер файла: |
25.5 КБ |
| Просмотров: |
1331 раз(а) |

|
|
|
    |
 |
VETAL

Зарегистрирован: Вт 4 Март 2014, 17:57
Сообщения: 140
Регион: Воронеж
|
Добавлено:
Пн 28 Апрель 2014, 15:25
|
  |
жалко тема заглохла...неужели нет интереса?..Алексей как печь вышла?Отчитайтесь,если начали...
|
|
|
|
    |
 |
VETAL

Зарегистрирован: Вт 4 Март 2014, 17:57
Сообщения: 140
Регион: Воронеж
|
Добавлено:
Пн 28 Апрель 2014, 15:39
|
  |
И есче...посмотрите пожалуйста проект с коренной в теме "Нужен ли предбанник?"
|
|
|
|
    |
 |
Безумный Печник

Зарегистрирован: Чт 2 Февраль 2012, 21:43
Сообщения: 3221
Регион: спб
|
Добавлено:
Пн 2 Июнь 2014, 10:01
|
  |
Тема еще жива только будет строится уже правда в своей бани отчет будет позже пока только лью фундамент под данный проэкт
|
_________________ Русская Печная АртелЪ -Возрождение старинных ремесел. Печные работы под ключ от зонтика до зольника . 89213537822
|
|
    |
 |
Андрей ..

Зарегистрирован: Ср 16 Ноябрь 2011, 07:49
Сообщения: 1175
Регион: Нижегородская обл.
|
Добавлено:
Пн 2 Июнь 2014, 19:40
|
  |
Принципиально, очень импонирует...Здесь уже описывал эту тему очень толково, один любитель бани, с ВПК уклоном...Каменная лежанка с т. примерно 45- 55 гр. И ещё парни клали какому- то тузу, в прибалтике, банную, на том же принципе: ИК излучение от стены в парилке...Лично я , тоже предпочитаю ИК излучение...
|
|
|
|
    |
 |
Безумный Печник

Зарегистрирован: Чт 2 Февраль 2012, 21:43
Сообщения: 3221
Регион: спб
|
Добавлено:
Пн 2 Июнь 2014, 23:54
|
  |
кинь сыллку что за тема = все о лежанки в бани слышали а видели не многие
|
_________________ Русская Печная АртелЪ -Возрождение старинных ремесел. Печные работы под ключ от зонтика до зольника . 89213537822
|
|
    |
 |
Андрей ..

Зарегистрирован: Ср 16 Ноябрь 2011, 07:49
Сообщения: 1175
Регион: Нижегородская обл.
|
Добавлено:
Вт 3 Июнь 2014, 06:49
|
  |
Года три назад читал где- то, наверно здесь, или на русбанях...В прибалтике ребята ещё в 90- х делали, охранник их стерёг...Весь смысл в том, что температура невысокая, но излучение от камня со всех сторон...а лежанка та не от ТЭНов ли разогревалась, забыл уж...
|
|
|
|
    |
 |
Roman Nikolaeff
Зарегистрирован: Ср 22 Июль 2015, 10:24
Сообщения: 33
Регион: Пенза
|
Добавлено:
Пн 31 Август 2015, 11:05
|
  |
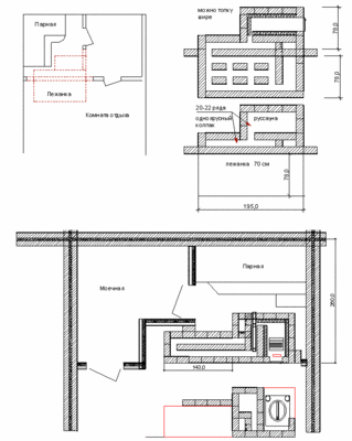
Добрый день всем!В продолжение темы... Строю банную печь с лежанкой... интересно как будет в работе
|
| Описание: |
|
| Размер файла: |
677.81 КБ |
| Просмотров: |
1032 раз(а) |

|
|
|
  |
 |
Безумный Печник

Зарегистрирован: Чт 2 Февраль 2012, 21:43
Сообщения: 3221
Регион: спб
|
Добавлено:
Пн 31 Август 2015, 11:16
|
  |
Всегда интересно!!! А лежанка в парилке и в комнате отдыха?
|
_________________ Русская Печная АртелЪ -Возрождение старинных ремесел. Печные работы под ключ от зонтика до зольника . 89213537822
|
|
    |
 |
Roman Nikolaeff
Зарегистрирован: Ср 22 Июль 2015, 10:24
Сообщения: 33
Регион: Пенза
|
Добавлено:
Пн 31 Август 2015, 11:24
|
  |
еще
|
| Описание: |
|
| Размер файла: |
737.47 КБ |
| Просмотров: |
1010 раз(а) |

|
|
|
  |
 |
|
|