 |
|
 |
| Автор |
Сообщение
|
Соловьёв
Зарегистрирован: Чт 25 Июнь 2015, 01:24
Сообщения: 35
Регион: Нижний Новгород
|
Добавлено:
Пн 14 Сентябрь 2015, 01:16
|
  |
Помогите, пожалуйста, определиться с проектом печи.
Проект в приложении.
Теплопотери по расчетам у меня 7 кВт на 1 этаж.
В идеале хотелось бы 2-х этажную печь с топкой (с застекленной дверкой) на первом этаже и подтопком.
В общем, нужна печь, чтобы аккумулировала тепло и чтобы быстро согревала помещение. Возможно, печь-камин мне подойдет, но вряд ли он сможет аккумулировать.
Если на форуме есть кто-то кроме таких делетантов как я, подскажите, пожалуйста, где можно найти нужный мне проект. Спасибо!
|
| Описание: |
|
| Размер файла: |
520.18 КБ |
| Просмотров: |
925 раз(а) |

|
|
|
   |
 |
Андрей ..

Зарегистрирован: Ср 16 Ноябрь 2011, 07:49
Сообщения: 1175
Регион: Нижегородская обл.
|
Добавлено:
Пн 14 Сентябрь 2015, 08:06
|
  |
Печь ставят в простенке, обычно, на две комнаты. Размеры дома надо бы знать, что с фундаментом, какое проживание- постоянно или дача... Мало информации...
|
|
|
|
    |
 |
Соловьёв
Зарегистрирован: Чт 25 Июнь 2015, 01:24
Сообщения: 35
Регион: Нижний Новгород
|
Добавлено:
Пн 14 Сентябрь 2015, 12:35
|
  |
| Андрей .. писал(а): |
Печь ставят в простенке, обычно, на две комнаты. Размеры дома надо бы знать, что с фундаментом, какое проживание- постоянно или дача... Мало информации...  |
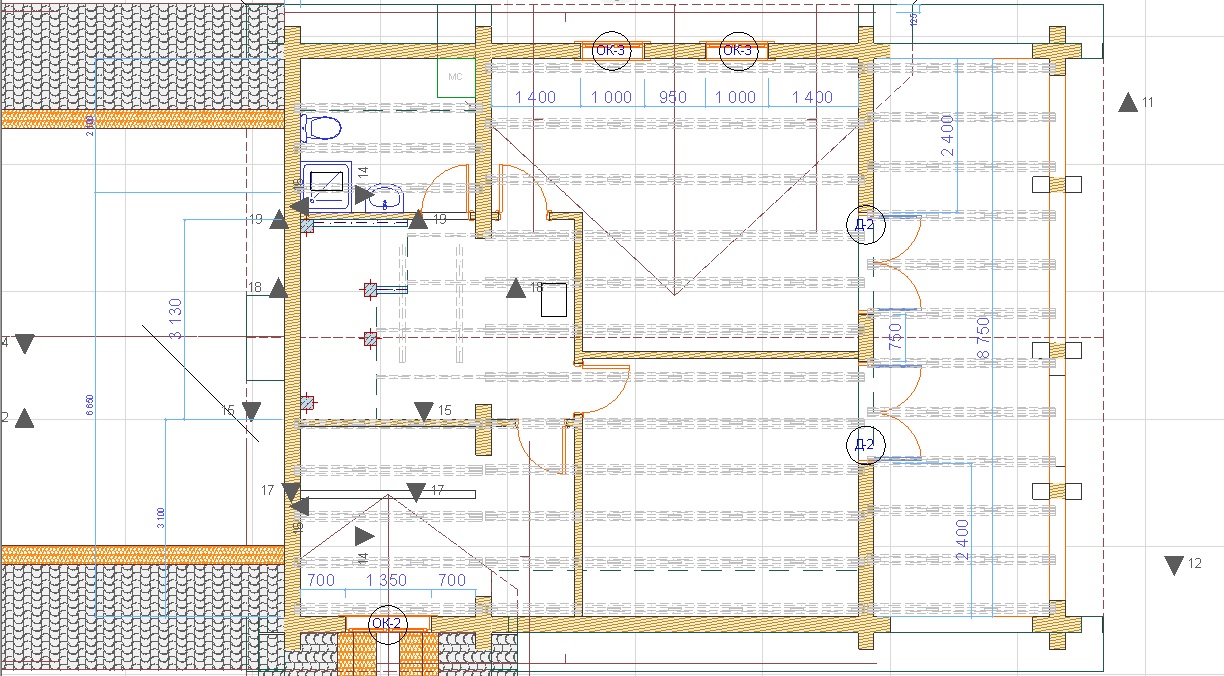
Андрей, добрый день! Земляк! Это кухня-столовая-гостинная без перегородок площадью 50 кв.м. - 6*9 по осям сруб. Сверху спальни над этим помещением. Черным цветом обозначено местоположение отверстия под трубу на крыше. Проживание планируется в дальнейшем постоянное. Фундамента пока нет.
|
| Описание: |
|
| Размер файла: |
236.84 КБ |
| Просмотров: |
953 раз(а) |

|
|
|
   |
 |
Андрей ..

Зарегистрирован: Ср 16 Ноябрь 2011, 07:49
Сообщения: 1175
Регион: Нижегородская обл.
|
Добавлено:
Пн 14 Сентябрь 2015, 13:12
|
  |
Я бы здесь теплушку поставил, труба немного не на месте, но терпимо...Фотки процесса кладки могу скинуть на эл. почту, там всё наглядно и ясно.
|
|
|
|
    |
 |
Андрей ..

Зарегистрирован: Ср 16 Ноябрь 2011, 07:49
Сообщения: 1175
Регион: Нижегородская обл.
|
Добавлено:
Пн 14 Сентябрь 2015, 13:34
|
  |
Трубу можно коленами отвести в пределах метра, и попасть в отверстие...Недавно один нижегородец рассмешил меня... Отверстие в кровле у него готово, и труба там стоит 200 мм, надо в неё попасть... Я отвес спустил, ну так и есть- прямо над балкой перекрытия...
Я предлагаю класть теплушку, размеры 120 на 164 см , подходит она здесь.
|
|
|
|
    |
 |
Соловьёв
Зарегистрирован: Чт 25 Июнь 2015, 01:24
Сообщения: 35
Регион: Нижний Новгород
|
Добавлено:
Пн 14 Сентябрь 2015, 13:46
|
  |
| Андрей .. писал(а): |
| Я бы здесь теплушку поставил, труба немного не на месте, но терпимо...Фотки процесса кладки могу скинуть на эл. почту, там всё наглядно и ясно. |
Да, буду благодарен. solovjevoleg@yandex.ru
|
|
|
|
   |
 |
tuomob

Зарегистрирован: Пн 26 Сентябрь 2011, 16:45
Сообщения: 2370
Регион: Тула
|
Добавлено:
Пн 14 Сентябрь 2015, 14:05
|
  |
| Соловьёв писал(а): |
| Андрей .. писал(а): |
Печь ставят в простенке, обычно, на две комнаты. Размеры дома надо бы знать, что с фундаментом, какое проживание- постоянно или дача... Мало информации...  |
Андрей, добрый день! Земляк! Это кухня-столовая-гостинная без перегородок площадью 50 кв.м. - 6*9 по осям сруб. Сверху спальни над этим помещением. Черным цветом обозначено местоположение отверстия под трубу на крыше. Проживание планируется в дальнейшем постоянное. Фундамента пока нет. |
А как обогревать ванну планируете?
А спальни пополам на втором?
Полный план выложите для понимания.
А печь реально для отопления или для экономии газа в зимнее время?
Получается, что на первом надо большую печь (3.5*6.5 кирпичей) и в двух спальнях отдельные печи с дверками со стеклом на основании нижней (1 этаж) в одну трубу.
Тогда можно независимо топить 3 печи в необходимых режимах.
Нижняя печь - основание для верхних и можно не делать её мощной (небольшая топка) и может быть снабжена нишами и прочими изысками.
Проходя 2-й этаж труба участвует в отоплении.
Конструкция получается большой, но не сложной, т.к. по отдельности печи простые и независимые. Собираются в одну трубу пятерик.
Но это моя фантазия и вариант компоновки печи под ПМЖ.
А вот по поводу быстрого прогрева - это из сказок.
Быстрый прогрев - это металлические буржуйки.
|
_________________ С Уважением! Юрий. Тула.
ВК https://vk.com/tuomob
За проектами в личку обращайтесь.
|
|
  |
 |
Соловьёв
Зарегистрирован: Чт 25 Июнь 2015, 01:24
Сообщения: 35
Регион: Нижний Новгород
|
Добавлено:
Пн 14 Сентябрь 2015, 14:37
|
  |
| tuomob писал(а): |
| Соловьёв писал(а): |
| Андрей .. писал(а): |
Печь ставят в простенке, обычно, на две комнаты. Размеры дома надо бы знать, что с фундаментом, какое проживание- постоянно или дача... Мало информации...  |
Андрей, добрый день! Земляк! Это кухня-столовая-гостинная без перегородок площадью 50 кв.м. - 6*9 по осям сруб. Сверху спальни над этим помещением. Черным цветом обозначено местоположение отверстия под трубу на крыше. Проживание планируется в дальнейшем постоянное. Фундамента пока нет. |
А как обогревать ванну планируете?
А спальни пополам на втором?
Полный план выложите для понимания.
А печь реально для отопления или для экономии газа в зимнее время?
Получается, что на первом надо большую печь (3.5*6.5 кирпичей) и в двух спальнях отдельные печи с дверками со стеклом на основании нижней (1 этаж) в одну трубу.
Тогда можно независимо топить 3 печи в необходимых режимах.
Нижняя печь - основание для верхних и можно не делать её мощной (небольшая топка) и может быть снабжена нишами и прочими изысками.
Проходя 2-й этаж труба участвует в отоплении.
Конструкция получается большой, но не сложной, т.к. по отдельности печи простые и независимые. Собираются в одну трубу пятерик.
Но это моя фантазия и вариант компоновки печи под ПМЖ.
А вот по поводу быстрого прогрева - это из сказок.
Быстрый прогрев - это металлические буржуйки. |
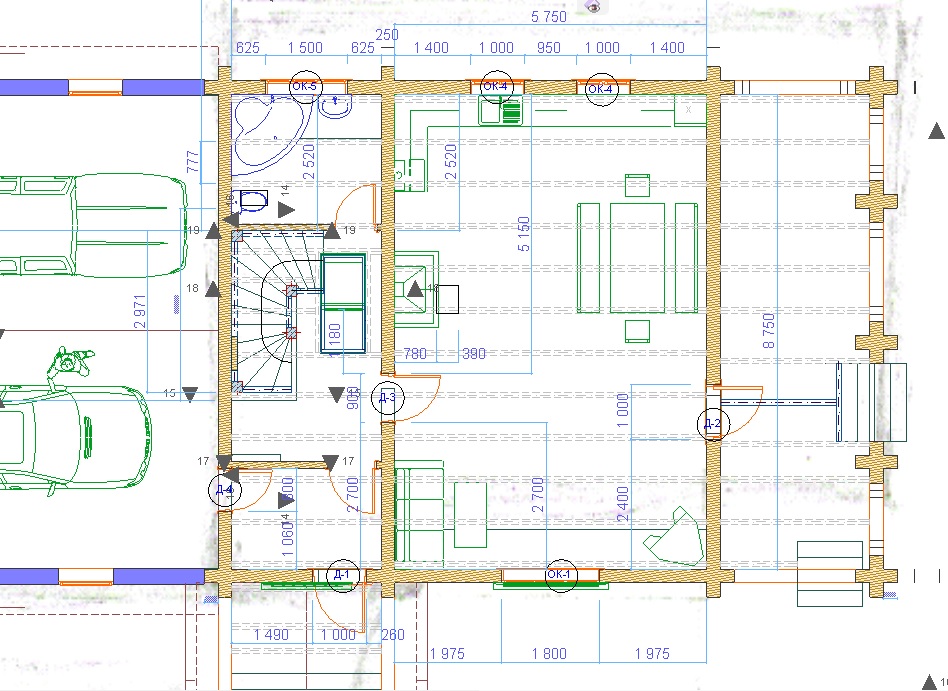
Идея мне нравится про отдельные топки. План 2-го этажа прилагаю. Прямоугольник в холле - труба. Вообще на втором этаже 3 спальни, но на зиму можно греть 2 или даже одну. Перегородки можно сделать как угодно. Единственно, перегородка, делящая основные спальни проходит не по центру трубы.
Ванну придется электричеством греть. Хотел теплообменник в печь встроить, но почитал, что он работает только в то время, когда горит огонь - мне не подходит. По этой же причине пришлось отказаться от дровяного котла.
Газа пока нет. В перспективе. Но всю разводку под отопление дома буду монтировать и пока нет газа - подключу электрокотел на ванную. И при необходимости буду включать радиаторы в жилых комнатах. Но в идеале хочу обойтись одним печным отоплением.
Вообще было бы здорово, если можно было бы топить и второй этаж на первом плюс в случае недостаточного тепла топить уже непосредственно в комнатах. Все на одном основании.
|
| Описание: |
|
| Размер файла: |
324.84 КБ |
| Просмотров: |
813 раз(а) |

|
|
|
   |
 |
tuomob

Зарегистрирован: Пн 26 Сентябрь 2011, 16:45
Сообщения: 2370
Регион: Тула
|
Добавлено:
Пн 14 Сентябрь 2015, 15:16
|
  |
| Соловьёв писал(а): |
Идея мне нравится про отдельные топки. План 2-го этажа прилагаю. Прямоугольник в холле - труба. Вообще на втором этаже 3 спальни, но на зиму можно греть 2 или даже одну. Перегородки можно сделать как угодно. Единственно, перегородка, делящая основные спальни проходит не по центру трубы.
Вообще было бы здорово, если можно было бы топить и второй этаж на первом плюс в случае недостаточного тепла топить уже непосредственно в комнатах. Все на одном основании. |
Беру таймаут на подумать.
От стенки надо сильно отступать на первом, чтобы вписаться.
Там лежанка за печкой вырисовывается.
Да, Русская ставится в этом помещении хорошо, если намерены готовить в ней.
Посмотри тему http://www.forum.stovemaster.ru/viewtopic.php?t=7815
По идее этого автора сделана предыдущая http://www.forum.stovemaster.ru/viewtopic.php?t=6194
И эту посмотри http://www.forum.stovemaster.ru/viewtopic.php?t=8538&start=0&postdays=0&postorder=asc&highlight=
Реши для себя, будешь готовить постоянно, или одно отопление требуется.
Если отопление только, то удобства готовки надо убирать. Другой подход к топке для отопительной.
Хотя можно приспособиться печь в топке с тем-же успехом, как в хлебной камере.
Чтобы греть спальни, надо выдвигать печь от стены.
Подумай хорошо.....
|
_________________ С Уважением! Юрий. Тула.
ВК https://vk.com/tuomob
За проектами в личку обращайтесь.
|
|
  |
 |
tuomob

Зарегистрирован: Пн 26 Сентябрь 2011, 16:45
Сообщения: 2370
Регион: Тула
|
Добавлено:
Пн 14 Сентябрь 2015, 15:55
|
  |
В догонку.....
На 2-м печь с топочной дверкой с общего холла может получится.
А холл лучше для этого уменьшить, чтобы труба в спальне как-бы была.
|
_________________ С Уважением! Юрий. Тула.
ВК https://vk.com/tuomob
За проектами в личку обращайтесь.
|
|
  |
 |
Андрей ..

Зарегистрирован: Ср 16 Ноябрь 2011, 07:49
Сообщения: 1175
Регион: Нижегородская обл.
|
Добавлено:
Пн 14 Сентябрь 2015, 16:35
|
  |
Если есть намерение монтировать систему отопления под газовый котёл, или в крайнем случае дровяной, то на втором этаже не стоит городить печи, кмк. Хотя работают двухэтажные от одного топливника, и ничего, довольны люди...поселили меня нынче на 2-м этаже в комнате с верхним колпаком от такой печи, и стоял там стойкий запах смоли...(эт не далеко от Зиняков, Олег...) Нижегородский печник клал, с подачей ВВ, все дела...А может истопник виноват.
Теплушка с плитой реально даёт быстрое тепло, зимой когда приезжаю по себе знаю. Ну с буржуйкой- то не сравнить конечно...так есть эл. нагреватели воздушные наконец...
|
|
|
|
    |
 |
tuomob

Зарегистрирован: Пн 26 Сентябрь 2011, 16:45
Сообщения: 2370
Регион: Тула
|
Добавлено:
Пн 14 Сентябрь 2015, 16:49
|
  |
| Андрей .. писал(а): |
и стоял там стойкий запах смоли...(эт не далеко от Зиняков, Олег...) Нижегородский печник клал, с подачей ВВ, все дела...А может истопник виноват.
Теплушка с плитой реально даёт быстрое тепло, зимой когда приезжаю по себе знаю. Ну с буржуйкой- то не сравнить конечно...так есть эл. нагреватели воздушные наконец... |
О том и разговор...
Если на 2-м отдельная топка, то проблем меньше.
А вот теплушка на 1-м как обогреет спальни на 2-м ?
|
_________________ С Уважением! Юрий. Тула.
ВК https://vk.com/tuomob
За проектами в личку обращайтесь.
|
|
  |
 |
Андрей ..

Зарегистрирован: Ср 16 Ноябрь 2011, 07:49
Сообщения: 1175
Регион: Нижегородская обл.
|
Добавлено:
Пн 14 Сентябрь 2015, 16:57
|
  |
Вот я и предлагаю сделать проще, весь дом отапливать котлом, кроме горницы на 1-м этаже, там русская печь обогреет, накормит, высушит одежду, и спать уложит...
|
|
|
|
    |
 |
tuomob

Зарегистрирован: Пн 26 Сентябрь 2011, 16:45
Сообщения: 2370
Регион: Тула
|
Добавлено:
Пн 14 Сентябрь 2015, 17:40
|
  |
| Андрей .. писал(а): |
Вот я и предлагаю сделать проще, весь дом отапливать котлом, кроме горницы на 1-м этаже, там русская печь обогреет, накормит, высушит одежду, и спать уложит...  |
Котёл, в смысле отдельная печь?
Или котёл в Русской, в подтопке?
|
_________________ С Уважением! Юрий. Тула.
ВК https://vk.com/tuomob
За проектами в личку обращайтесь.
|
|
  |
 |
Андрей ..

Зарегистрирован: Ср 16 Ноябрь 2011, 07:49
Сообщения: 1175
Регион: Нижегородская обл.
|
Добавлено:
Пн 14 Сентябрь 2015, 17:57
|
  |
Именно котёл, газовый или твёрдотопливный. Бывал у заказчика в доме с ТТ котлом, ну закладывает он дрова утром и вечером, в большом двухэтажном доме, тепло...Конденсат на трубе льёт, правда...Всё решаемо.
|
|
|
|
    |
 |
Соловьёв
Зарегистрирован: Чт 25 Июнь 2015, 01:24
Сообщения: 35
Регион: Нижний Новгород
|
Добавлено:
Пн 14 Сентябрь 2015, 19:14
|
  |
| Андрей .. писал(а): |
| Именно котёл, газовый или твёрдотопливный. Бывал у заказчика в доме с ТТ котлом, ну закладывает он дрова утром и вечером, в большом двухэтажном доме, тепло...Конденсат на трубе льёт, правда...Всё решаемо. |
Котел, безусловно, будет, но все же по максимуму хочется греться от печи. И готовить. А котел будет электрический по той причине, что пока дом используется как дача и котел будет поддерживать температуру больше 0 пока нас нет дома
|
|
|
|
   |
 |
tuomob

Зарегистрирован: Пн 26 Сентябрь 2011, 16:45
Сообщения: 2370
Регион: Тула
|
Добавлено:
Вт 15 Сентябрь 2015, 09:11
|
  |
| Соловьёв писал(а): |
| по максимуму хочется греться от печи. И готовить. |
Тогда с хлебной камерой лучше сделать.
Хотя опыт показывает, что готовить проще и удобнее на газовой настольной плите с баллоном на 27 литров. Очень практично и хозяйке привычно.
А в печи запекать в Хлебной камере.
|
_________________ С Уважением! Юрий. Тула.
ВК https://vk.com/tuomob
За проектами в личку обращайтесь.
|
|
  |
 |
Соловьёв
Зарегистрирован: Чт 25 Июнь 2015, 01:24
Сообщения: 35
Регион: Нижний Новгород
|
Добавлено:
Чт 14 Апрель 2016, 21:29
|
  |
Прошу помощи у формучан по проектированию печи или подбору конкретно для моего случая! Скоро сезон, а мне еще фундамент заливать! Класть печь буду сам, нужна порядовка.
|
|
|
|
   |
 |
Андрей ..

Зарегистрирован: Ср 16 Ноябрь 2011, 07:49
Сообщения: 1175
Регион: Нижегородская обл.
|
Добавлено:
Пт 15 Апрель 2016, 05:26
|
  |
Можно с хлебной камерой, можно шведку с плитой и духовкой... У меня в дачном деревенском доме стоит русская теплушка небольших размеров - получается комбайн : отопление, лежанка, плита, горнило русской печи (попросторнее чем хлебная камера, и тем более духовка), не представляю свой дом без такой печи... Выбирайте по функциям, которые Вам необходимы.
|
|
|
|
    |
 |
|
|
|
Следующая тема
Предыдущая тема
Вы не можете начинать темы Вы не можете отвечать на сообщения Вы не можете редактировать свои сообщения Вы не можете удалять свои сообщения Вы не можете голосовать в опросах Вы не можете добавлять приложения в этом форуме Вы можете скачивать файлы в этом форуме
|
|