| Автор |
Сообщение
|
Григорий К.
Зарегистрирован: Вс 11 Март 2007, 20:33
Сообщения: 2
|
Добавлено:
Вс 25 Март 2007, 18:13
|
  |
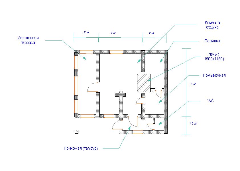
Ищу печника для проектирования и постройки печи для дома-бани.
Хотелось бы иметь следующую функциональность:
1. Приготовление пара для принятия банных процедур в режиме русской парной.
2. Возможность отапливать хотя-бы комнату отдыха, помывочную, немного прихожую(тамбур) и WC.
Не знаю, возможно ли, но если воpможно то и
- реализовть воможность прогревать утепленную террасу
- мансардный этах ( примерно 5м х 8м )
Домом-баней планируется пользоваться не реже 1 раза в неделю (банные процедуры), а возможно и постоянное проживание (отец мечтает перебраться из квартиры)
Были мысли о камине (2 в одном типа БИК ПК), но если ради функциональноости он будет мешать, то воможно обойтись и просто стеклянной дверцей топки
План сруба прилагаю. В плане я указал примерное место , где хотелось-бы установить печь. Топка печи из комналы отдыха.
Фундамента под печь пока нет, буду делать только после консультации с печником и окончательной привязки к плану сруба.
Стена, в которой планируется установить печь - рубленная. Соответственно придется вырезать под печь нишу
Участок находится на юге М.О. (15 км. Каширское шоссе)
Сруб собран, перекрыт только рубероидом. Пола нет - только половые балки.
Высота сруба - 3 м
Крыша - двускатная, высота фронтона 4.8 м.
Основная проблема - отсуствие электричества. Но есть бензогенератор 6 кв
Реализовать хотелось бы в мае-июле.
Пришлите пожалуства условия по проектированию и строительству печи
и, если это возможно, примерные расклад по стоимости работ и метериалов (хотя-бы примерно )
Заранее спасибо
Все предложения просьба направлять либо в личку либо по email
|
| Описание: |
|
| Размер файла: |
41.14 КБ |
| Просмотров: |
1258 раз(а) |

|
|
|
   |
 |
Андрей Ищенко
Проектировщик
Зарегистрирован: Вт 7 Февраль 2006, 10:08
Сообщения: 2946
Регион: Пенза
|
Добавлено:
Вс 25 Март 2007, 19:45
|
  |
Первое и самое главное БАННАЯ ПЕЧЬ ДЛЯ ПАРА!
Если хотите получить полноценный пар, не нагружайте банную печь различными функциями.
Все остальное лучше отапливать отдельно.
|
_________________ +7 962 974-10-94 Viber WhatsApp
+7 962 399-59-39
|
|
     |
 |
Францыч

Зарегистрирован: Пн 9 Январь 2006, 08:27
Сообщения: 558
Регион: Новосибирск
|
Добавлено:
Вс 25 Март 2007, 20:10
|
  |
Андрей прав. Комната отдыха - будет прогреватся, помывочная - то же. Тамбур - не надо. ВС - вряд ли. Хотя в ВС можно расположить бак с горячей водой. Тогда и там будет тепло.
|
|
|
|
    |
 |
Валерий Петров

Зарегистрирован: Пт 9 Декабрь 2005, 14:33
Сообщения: 1085
Регион: Россия
|
Добавлено:
Вс 25 Март 2007, 22:18
|
  |
С учетом возможности проживания Вам нужно делать различные, независимые системы для парилки и для отопления. При проживании стоит предусмотреть возможность готовить пищу.
Каменка к этому слабо приспособлена.
|
_________________ +7 911 090-08-96 (МТС СПб)
________________________________________
Чтобы получать правильные ответы, научись задавать правильные вопросы...
|
|
     |
 |
Григорий К.
Зарегистрирован: Вс 11 Март 2007, 20:33
Сообщения: 2
|
Добавлено:
Пн 26 Март 2007, 21:07
|
  |
Спасибо Всем гуру печного дела за оперативные отзывы.
Я в принципе и так понимал - универсальное - значит никакое. Так как эта постройка в первую очередь задумывалась как баня - то и основным принципом построния печи должен быть ХОРОШИЙ ПАР.
Что-бы на Ваш взгляд было бы лучше(наибоее оптимально) реализовать для отопления тех помещений, которые не попали в зону действия банной печи (мансардный этаж, утепленная терраса). Оптимально-ли было-бы устроить в мансардном этаже вторым ярусом над банной отопительную печь, не помешает ли это нормальнй работе банной печи.
|
|
|
|
   |
 |
Евгений Колчин

Зарегистрирован: Чт 3 Октябрь 2002, 06:26
Сообщения: 10144
Регион: Москва
|
Добавлено:
Пн 26 Март 2007, 21:11
|
  |
абсолютно не помешает и на работе банной печи никак не отразиться
можно даже на первом этаже сделать печь-куменку с открытым камином
|
_________________ ************************************
|
|
      |
 |
Андрей Ищенко
Проектировщик
Зарегистрирован: Вт 7 Февраль 2006, 10:08
Сообщения: 2946
Регион: Пенза
|
Добавлено:
Вт 27 Март 2007, 09:52
|
  |
Вариант расположения печи-камина для дополнительного обогрева.
|
_________________ +7 962 974-10-94 Viber WhatsApp
+7 962 399-59-39
|
|
     |
 |
Евгений Колчин

Зарегистрирован: Чт 3 Октябрь 2002, 06:26
Сообщения: 10144
Регион: Москва
|
Добавлено:
Сб 22 Ноябрь 2008, 21:47
|
  |
вот что получилось
|
_________________ ************************************
| Описание: |
|
| Размер файла: |
119.3 КБ |
| Просмотров: |
1982 раз(а) |

|
|
|
      |
 |
Александр Бацулин

Зарегистрирован: Пт 17 Февраль 2006, 19:20
Сообщения: 928
Регион: Москва
|
Добавлено:
Сб 22 Ноябрь 2008, 23:24
|
  |
А как держиться кирпич над топочной дверкой?
|
_________________ Здесь могла бы быть ваша реклама.
|
|
   |
 |
Евгений Колчин

Зарегистрирован: Чт 3 Октябрь 2002, 06:26
Сообщения: 10144
Регион: Москва
|
Добавлено:
Вс 23 Ноябрь 2008, 09:32
|
  |
|
      |
 |
Александр Бацулин

Зарегистрирован: Пт 17 Февраль 2006, 19:20
Сообщения: 928
Регион: Москва
|
Добавлено:
Вс 23 Ноябрь 2008, 12:05
|
  |
А подпорная плачтина пе проосядет в топке? В хебной камере понятно, а вот в топке? Один раз я положил кирпич футеровки над литой (небыло блоков) на уголок 40*40, с возможностью замены последнего. Через 2 года он наполовину прогорел и прогнулся дугой. Все було заменено на перемычку из шамотного блока. Больше я так стараюсь не делать.
|
_________________ Здесь могла бы быть ваша реклама.
|
|
   |
 |
Евгений Колчин

Зарегистрирован: Чт 3 Октябрь 2002, 06:26
Сообщения: 10144
Регион: Москва
|
Добавлено:
Вс 23 Ноябрь 2008, 13:01
|
  |
даже если и просядет, то за ней через негрючий изолятор стоит вторая, так же из нержавейки
при наличие щели перед топочной дверцей экран не так перегревается
|
|
|
|
      |
 |
Паша

Зарегистрирован: Ср 28 Ноябрь 2007, 23:35
Сообщения: 369
|
Добавлено:
Вс 23 Ноябрь 2008, 14:56
|
  |
В контексте данной темы хочется спросить. Этот Маркус Флинт с "Пиромассы" перекрывает топку уголком примерно 10/10 см. с небольшой защитой пластинками шамота. Не должен ли и такой уголок постепенно деформироваться вниз ?
|
|
|
|
  |
 |
Александр Бацулин

Зарегистрирован: Пт 17 Февраль 2006, 19:20
Сообщения: 928
Регион: Москва
|
Добавлено:
Вс 23 Ноябрь 2008, 22:29
|
  |
Я ему письмо об этом написал, не отгорят-ли кронштейны, которые защиту держут? Обещал скоро ответить. Расскажу потом. Но наверно не отгорят, тк у нх заказчики послушные и топят одной закладкой.
|
_________________ Здесь могла бы быть ваша реклама.
|
|
   |
 |
Паша

Зарегистрирован: Ср 28 Ноябрь 2007, 23:35
Сообщения: 369
|
Добавлено:
Вс 23 Ноябрь 2008, 23:05
|
  |
| Александр Бацулин писал(а): |
| Я ему письмо об этом написал, не отгорят-ли кронштейны, которые защиту держут? Обещал скоро ответить. Расскажу потом. Но наверно не отгорят, тк у нх заказчики послушные и топят одной закладкой. |
Классно, ждём ответов. Передайте ему, что здесь образуется фан-клуб Маркуса Флинта.
|
|
|
|
  |
 |
Александр Бацулин

Зарегистрирован: Пт 17 Февраль 2006, 19:20
Сообщения: 928
Регион: Москва
|
Добавлено:
Вс 23 Ноябрь 2008, 23:22
|
  |
Да, токо он че-то не пишет. Сразу прислал ответ что ответит позже и все. А вообще по ходу он классный малый. Интересуется печами, доже в Беларусь ездил и в Никарагуа. У него на сайте репорты есть. И работает в патрясных местах, горы, озера, зАмки.
|
_________________ Здесь могла бы быть ваша реклама.
|
|
   |
 |
Паша

Зарегистрирован: Ср 28 Ноябрь 2007, 23:35
Сообщения: 369
|
Добавлено:
Вс 23 Ноябрь 2008, 23:43
|
  |
Причём он украшает печи именно как печник , по печниковски . Пример как он вставил местные вулканические камни в кладку.
|
|
|
|
  |
 |
Александр Бацулин

Зарегистрирован: Пт 17 Февраль 2006, 19:20
Сообщения: 928
Регион: Москва
|
Добавлено:
Вс 23 Ноябрь 2008, 23:57
|
  |
Да, с душой подходит. Где-то мне встретилась у него есть такая штука. Собаа наступила лапой в бетон. Он это кусок вырезал и вставил в облицовку.
|
_________________ Здесь могла бы быть ваша реклама.
|
|
   |
 |
vova230
Зарегистрирован: Ср 24 Март 2010, 00:20
Сообщения: 811
Регион: Беларусь
|
Добавлено:
Вс 28 Март 2010, 11:20
|
  |
| Евгений Колчин писал(а): |
| вот что получилось |
Очень понравилось. Надеюсь автор не будет против, если я воспользуюсь его идеей?
|
|
|
|
   |
 |
|
|