| Автор |
Сообщение
|
Алексей 43
Зарегистрирован: Вс 16 Август 2015, 11:39
Сообщения: 3
Регион: Москва
|
Добавлено:
Вс 16 Август 2015, 12:15
|
  |
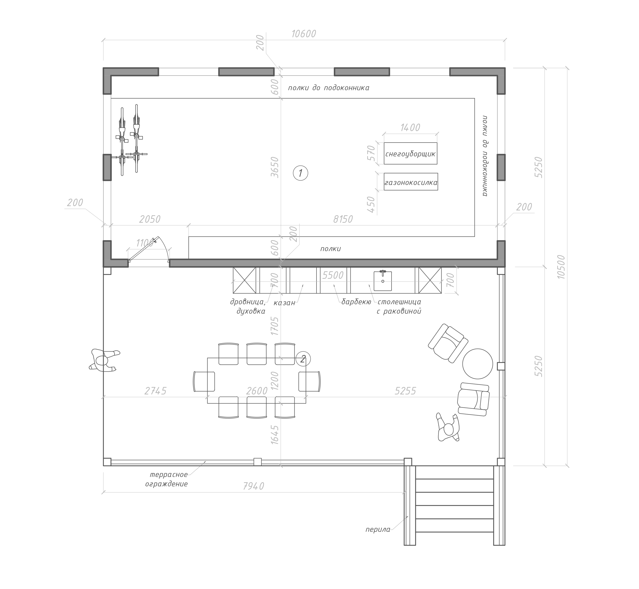
Доброго времени! Нужно построить кухню- барбекю на террасе под крышей с проходом трубы через потолок ,чердак и крышу(металлочерепица). Казан,барбекю,столешница с мойкой. Строение готово. Территориально МО Клинский район коттеджный поселок "Анютины глазки".
|
| Описание: |
|
| Размер файла: |
340.5 КБ |
| Просмотров: |
921 раз(а) |

|
| Описание: |
|
| Размер файла: |
386.11 КБ |
| Просмотров: |
953 раз(а) |

|
|
|
  |
 |
Гребенчюк Андрей

Зарегистрирован: Чт 9 Сентябрь 2010, 17:23
Сообщения: 1211
Регион: Ленинградская область
|
Добавлено:
Вс 16 Август 2015, 13:27
|
  |
Что именно хотите увидеть.
|
|
|
|
  |
 |
Михаил Фадеев

Зарегистрирован: Пн 13 Февраль 2012, 15:39
Сообщения: 570
Регион: Москва
|
Добавлено:
Вс 16 Август 2015, 22:33
|
  |
На втором фото: глубина печи указана 700 мм. Это 2,5 кирпича. 3 уже не помещается. Казан сюда не очень вписывается. Если только размером с пиалу.
|
_________________ 8 903 112 79 73;
|
|
    |
 |
Алексей 43
Зарегистрирован: Вс 16 Август 2015, 11:39
Сообщения: 3
Регион: Москва
|
Добавлено:
Вс 16 Август 2015, 23:37
|
  |
Размеры не принципиальны, для ориентира.Предлагайте!Рассмотрим любое готовое решение. Расположение казана ,барбекю,мойки ,так же можно поменять!
|
|
|
|
  |
 |
смирнов иван
Зарегистрирован: Чт 16 Январь 2014, 13:06
Сообщения: 1170
Регион: москва
|
Добавлено:
Пн 17 Август 2015, 21:33
|
  |
Тогда отчего ж не обсудить. Пишите - звоните
|
_________________ Камины , печи , барбекю , русские печи , ремонт ,переделка.8(903)286-88-58
|
|
    |
 |
Виталий Кострюков

Зарегистрирован: Ср 12 Октябрь 2011, 17:55
Сообщения: 790
Регион: Москва
|
Добавлено:
Пн 17 Август 2015, 22:20
|
  |
Стена примыкания - дерево. Во с теплоизоляцией ковыряться кому-то придется. Сочувствую....
|
|
|
|
    |
 |
смирнов иван
Зарегистрирован: Чт 16 Январь 2014, 13:06
Сообщения: 1170
Регион: москва
|
Добавлено:
Пн 17 Август 2015, 22:29
|
  |
Так отступок - то никто не отменял.
|
_________________ Камины , печи , барбекю , русские печи , ремонт ,переделка.8(903)286-88-58
|
|
    |
 |
Алексей Артамонов
Зарегистрирован: Чт 19 Ноябрь 2009, 21:24
Сообщения: 174
|
Добавлено:
Пн 17 Август 2015, 23:20
|
  |
| Михаил Фадеев писал(а): |
| На втором фото: глубина печи указана 700 мм. Это 2,5 кирпича. 3 уже не помещается. Казан сюда не очень вписывается. Если только размером с пиалу. |
Подвинуться придется. Ни куда не деться.
|
|
|
|
   |
 |
Виталий Кострюков

Зарегистрирован: Ср 12 Октябрь 2011, 17:55
Сообщения: 790
Регион: Москва
|
Добавлено:
Вт 18 Август 2015, 21:08
|
  |
| смирнов иван писал(а): |
| Так отступок - то никто не отменял. |
Так и компоновку на эскизе тоже никто пока не отменял. Там вплотную к стене....
|
|
|
|
    |
 |
смирнов иван
Зарегистрирован: Чт 16 Январь 2014, 13:06
Сообщения: 1170
Регион: москва
|
Добавлено:
Вт 18 Август 2015, 21:51
|
  |
Придется подвигаться
|
_________________ Камины , печи , барбекю , русские печи , ремонт ,переделка.8(903)286-88-58
|
|
    |
 |
ivgen77
Зарегистрирован: Сб 14 Март 2015, 14:03
Сообщения: 49
Регион: Мос.обл
|
Добавлено:
Ср 19 Август 2015, 19:03
|
  |
|
  |
 |
Lexx-Pechi

Зарегистрирован: Ср 2 Октябрь 2013, 08:58
Сообщения: 14
Регион: Usa
|
Добавлено:
Пн 24 Август 2015, 13:12
|
  |
Добрый день.Если вопрос еще актуален пишите в ЛС. Большой опыт по кладке Барбекю.Написал вам с подробным предложением в ЛС
|
_________________ Pretty Girls from your town
|
|
      |
 |
Tim_on

Зарегистрирован: Ср 27 Октябрь 2010, 10:40
Сообщения: 576
Регион: Краснодар
|
Добавлено:
Пн 24 Август 2015, 21:09
|
  |
мучает вопрос! для чего печник рвется в другой регион работать????????? Дома работы нет или невостребован или стереотип что за речкой водка крепче и бабы слаще??? Просветите пожалуйста!!!
|
_________________ Быть добру! +79180212012 Дмитрий
|
|
    |
 |
Шура

Зарегистрирован: Чт 8 Январь 2009, 20:09
Сообщения: 4171
Регион: Москва - Тамбов
|
Добавлено:
Пн 24 Август 2015, 21:31
|
  |
| Tim_on писал(а): |
| мучает вопрос! для чего печник рвется в другой регион!!! |
Вероятно потому, что Москва это не "другой регион"?
|
|
|
|
   |
 |
Мангилев Сергей
Зарегистрирован: Сб 15 Октябрь 2011, 16:09
Сообщения: 978
Регион: Советск
|
Добавлено:
Пн 24 Август 2015, 22:12
|
  |
Киров и область каминопечь с хк , фаски геометрия, труба кирпичь-50 т р. Шведки с галанками от 10.
|
|
|
|
     |
 |
Мангилев Сергей
Зарегистрирован: Сб 15 Октябрь 2011, 16:09
Сообщения: 978
Регион: Советск
|
Добавлено:
Пн 24 Август 2015, 22:17
|
  |
В нашем городке 15 обьяв, все что хочешь, по 30 за кирпичь кузнецовки, факельные, уличные. Месяцам сидят без работы.
|
|
|
|
     |
 |
Андрей_Алексеевич

Зарегистрирован: Пн 13 Декабрь 2010, 19:17
Сообщения: 5957
Регион: малая родина Павлова, Скобелева, Циолковского, Уткиных и др.
|
Добавлено:
Пн 24 Август 2015, 22:51
|
  |
| Tim_on писал(а): |
| мучает вопрос! ...Просветите пожалуйста!!! |
Печник - отхожий промысел.
Мастеров, как в старь, "выписывают", только уже по инету...
"Активная зона" зависит от лишь от хотелок, бюджета да наличия-отсутствия шенгена...
|
_________________ Печник - милостью и промыслом Божиим.
Печное отопление частного дома и т.п., авторское сопровождение проектов, наставничество в т.ч. дистанционное, партнёрство в кладке печей.
89106130763 МТС
andrejka61@mail.ru
andrej.kuzmischev@yandex.ru
|
|
   |
 |
Lexx-Pechi

Зарегистрирован: Ср 2 Октябрь 2013, 08:58
Сообщения: 14
Регион: Usa
|
Добавлено:
Вт 25 Август 2015, 09:36
|
  |
| Tim_on писал(а): |
| мучает вопрос! для чего печник рвется в другой регион работать????????? Дома работы нет или невостребован или стереотип что за речкой водка крепче и бабы слаще??? Просветите пожалуйста!!! |
Увожаемый, ни кто в Москву не рвется,10 лет уже там работаю.Вам какое дело кто и от куда?И не засоряйте тему.Человек печника ищет,а не выслушивать кто и откуда.
P.S К вашему сведению заказы у меня на год вперед,работаю по народной рекламе.Времени нет,в отличии от вас высматривать кто и от куда.Просто появилось не большое окно ,решил подыскать небольшой заказ.
|
_________________ Pretty Girls from your town
|
|
      |
 |
Василий Васильевич
Зарегистрирован: Вт 25 Март 2014, 15:15
Сообщения: 304
Регион: Сергиев Посад
|
Добавлено:
Вт 25 Август 2015, 17:59
|
  |
Лукавит чувачёк...............ну да бог с ним..................пущай трудиться во благо других и себя..............
|
_________________ не беспокойте меня, заказчиков здесь не ищу
|
|
   |
 |
Tim_on

Зарегистрирован: Ср 27 Октябрь 2010, 10:40
Сообщения: 576
Регион: Краснодар
|
Добавлено:
Вт 25 Август 2015, 19:58
|
  |
Lexx.... Хамить не надо! "Времени нет,в отличии от вас высматривать кто и от куда"... Вы не знаете есть у меня время или нет... Я задал вопрос и спасибо Сергею, что ответил...
|
_________________ Быть добру! +79180212012 Дмитрий
|
|
    |
 |
|
|