 |
|
 |
| Автор |
Сообщение
|
Ranger
Зарегистрирован: Чт 27 Август 2015, 09:55
Сообщения: 4
Регион: Москва
|
Добавлено:
Чт 27 Август 2015, 10:15
|
  |
Добрый день!
Ищу мастера для кладки камина. В Чеховском районе МО, 6км. от Чехова.
Описание классический камин, но с калорифером (каналы в кладке боковых стен, с входом воздуха на уровне пола и выходом - на уровне полки). Отопительная функция - только вспомогательная, чтоб зимой посидеть у открытого огня и полюбоваться. Основное отопление будет от газового котла (теплые полы и радиаторы).
Топка начинается на уровне высоты 1 кирпича от чистового пола, никаких зольников, дровников быть не должно.
Материал: Красный полнотелый кирпич чистовая кладка (без доп. отделки), топка - шамотный кирпич (наверно это очевидно).
Размеры: дом кирпичный, под камин заложен фундамент: ширина - 1750 мм. глубина - 920 мм. Сам камин предполагаю чуть меньше: 1680мм на 770мм или 900мм, ширина портала 920мм, высота полки - 1400мм (все ориентировочно).
Высота первого этажа от чистового пола до перекрытия - 3100мм. Площадь помещения - 56м2. Общая высота до конька в месте выхода трубы - 9470мм.
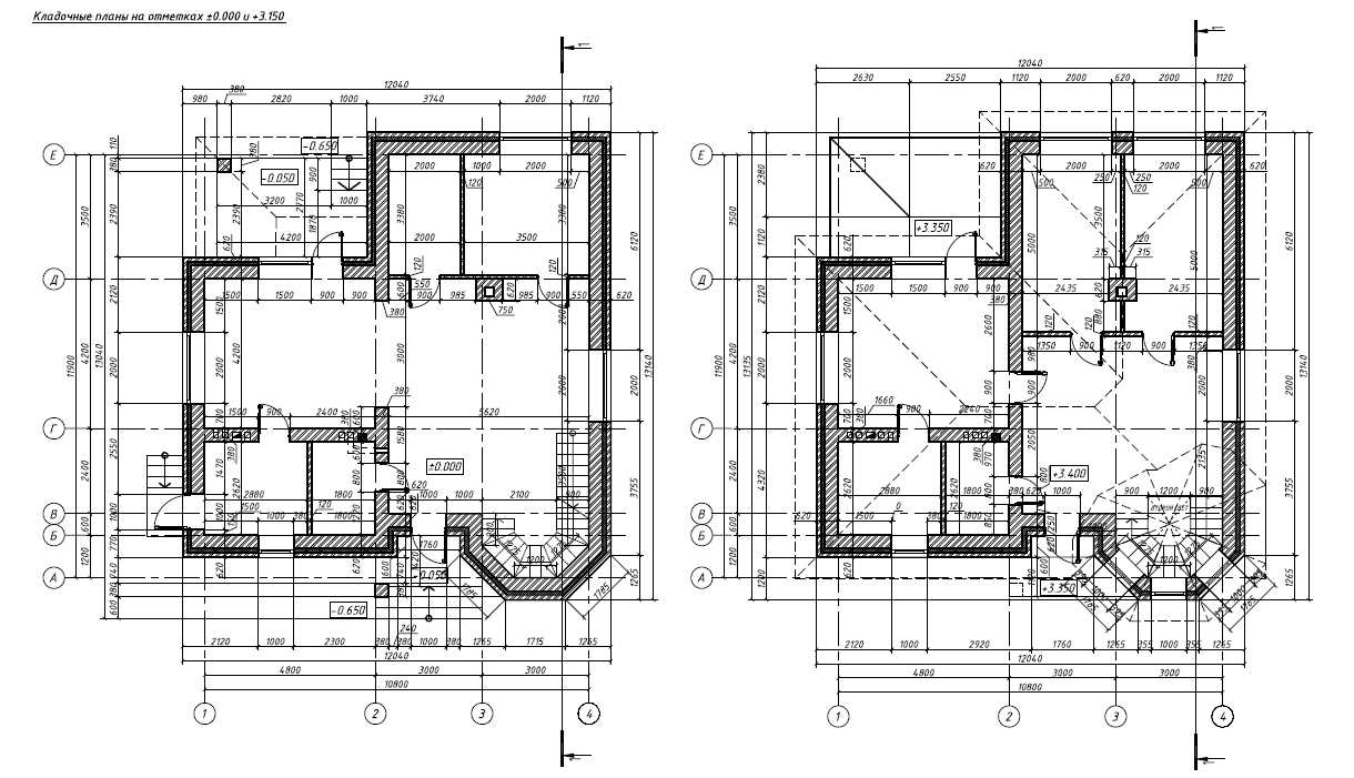
Прилагаю эскиз (примерно что хотелось бы получить) и план (труба обозначена неправильно, ее нужно будет сместить вправо, чтоб не разрезать конек).
Тел: +7(906)054-5566, мыло: ranger[@]ranger.ru
Юрий.
|
| Описание: |
|
| Размер файла: |
161.78 КБ |
| Просмотров: |
758 раз(а) |

|
| Описание: |
|
| Размер файла: |
401.29 КБ |
| Просмотров: |
563 раз(а) |

|
| Описание: |
|
| Размер файла: |
565.46 КБ |
| Просмотров: |
730 раз(а) |

|
| Описание: |
|
| Размер файла: |
602.28 КБ |
| Просмотров: |
770 раз(а) |

|
|
|
  |
 |
Шура

Зарегистрирован: Чт 8 Январь 2009, 20:09
Сообщения: 4171
Регион: Москва - Тамбов
|
Добавлено:
Чт 27 Август 2015, 11:53
|
  |
| Ranger писал(а): |
..
Прилагаю эскиз (примерно что хотелось бы получить)... |
Арочный портал склонен к дымлению.
|
|
|
|
   |
 |
смирнов иван
Зарегистрирован: Чт 16 Январь 2014, 13:06
Сообщения: 1170
Регион: москва
|
Добавлено:
Чт 27 Август 2015, 13:23
|
  |
Не согласен. При соблюдении все необходимых пропорций все будет работать
|
_________________ Камины , печи , барбекю , русские печи , ремонт ,переделка.8(903)286-88-58
|
|
    |
 |
Ranger
Зарегистрирован: Чт 27 Август 2015, 09:55
Сообщения: 4
Регион: Москва
|
Добавлено:
Чт 27 Август 2015, 15:36
|
  |
Это только эскиз, а не догма. Естественно, профессиональные советы мастера, с которым сговоримся на работу, всячески приветствуются будут.
|
|
|
|
  |
 |
смирнов иван
Зарегистрирован: Чт 16 Январь 2014, 13:06
Сообщения: 1170
Регион: москва
|
Добавлено:
Чт 27 Август 2015, 17:31
|
  |
Так кто мешает договориться?
|
_________________ Камины , печи , барбекю , русские печи , ремонт ,переделка.8(903)286-88-58
|
|
    |
 |
санко

Зарегистрирован: Пн 7 Апрель 2008, 21:51
Сообщения: 80
Регион: Тверская обл. г.Осташков
|
Добавлено:
Пт 28 Август 2015, 09:49
|
  |
На какое время ,ориентировочно, планируете начинать строительство камина?
|
_________________ tel.89109300394
|
|
   |
 |
Ranger
Зарегистрирован: Чт 27 Август 2015, 09:55
Сообщения: 4
Регион: Москва
|
Добавлено:
Пт 28 Август 2015, 09:56
|
  |
| санко писал(а): |
| На какое время ,ориентировочно, планируете начинать строительство камина? |
Готов приступить прямо сейчас. Но могу и подождать мастера, когда он освободится, если сейчас получится четко договориться (с выездом на объект) по проекту камина, по условиям, конкретному сроку работы и деньгам.
|
|
|
|
  |
 |
Ranger
Зарегистрирован: Чт 27 Август 2015, 09:55
Сообщения: 4
Регион: Москва
|
Добавлено:
Вс 30 Август 2015, 19:54
|
  |
Большое спасибо всем откликнувшимся!
Посмотрели работы многих замечательных мастеров.
Повезло пообщаться с некоторыми детально. Спасибо за уделенное внимание и время.
Выбор сделан. Тему можно сносить в архив.
|
|
|
|
  |
 |
|
|
|
Следующая тема
Предыдущая тема
Вы не можете начинать темы Вы не можете отвечать на сообщения Вы не можете редактировать свои сообщения Вы не можете удалять свои сообщения Вы не можете голосовать в опросах Вы не можете добавлять приложения в этом форуме Вы можете скачивать файлы в этом форуме
|
|