| Автор |
Сообщение
|
Екас
Зарегистрирован: Ср 23 Март 2016, 20:54
Сообщения: 10
Регион: Екатеринбург
|
Добавлено:
Чт 24 Март 2016, 07:39
|
  |
День добрый, уважаемые Печники!
Обращаюсь к Вам с проблемой. Проблема заключается в следующем: Построили печь банную с камином из красного кирпича. После 4-х часов топки температура в парилке поднялась до 50-55 градусов, а заказчик требует 75 градусов через 3 часа топки.
Прошу помочь советом: как изменить данную печь, что бы она давала такую температуру?
Пока из решений только:
а) замена наружных кирпичей в районе топки и первого канала на шамот - будет быстрее отдавать тепло;
б) Заменить кирпич в районе топки - поставить красный на ребро.
Может у вас какие соображения будут по данной проблеме? Буду благодарен за любой дельный совет и комментарий.
|
| Описание: |
|
| Размер файла: |
74.74 КБ |
| Просмотров: |
923 раз(а) |

|
|
|
  |
 |
Ромарио

Зарегистрирован: Вт 14 Октябрь 2014, 09:33
Сообщения: 497
Регион: Ярославль
|
Добавлено:
Чт 24 Март 2016, 15:08
|
  |
|
   |
 |
Екас
Зарегистрирован: Ср 23 Март 2016, 20:54
Сообщения: 10
Регион: Екатеринбург
|
Добавлено:
Чт 24 Март 2016, 17:57
|
  |
В том то и дело, что и показывал, и объяснял, и доказывал... но нет! Хочет 75! Это я и так с 90-100 градусов опустил его "хотелки". Сейчас вот думаю, как печь дорабатывать...
|
|
|
|
  |
 |
Дачник
Зарегистрирован: Чт 25 Август 2011, 15:32
Сообщения: 543
Регион: Лен.область
|
Добавлено:
Чт 24 Март 2016, 19:52
|
  |
У инвалида нога не отрастёт и с костылём он бегать не будет.
Три параллельных подъёмных это перебор,всё уходит в трубу через первый. Закладку на сковородке,через такую дырку можно будет разогреть только газовой горелкой.
|
|
|
|
  |
 |
Екас
Зарегистрирован: Ср 23 Март 2016, 20:54
Сообщения: 10
Регион: Екатеринбург
|
Добавлено:
Пт 25 Март 2016, 07:24
|
  |
Я вас услышал, спасибо за комментарий. А если вот так сделать?
|
| Описание: |
|
| Размер файла: |
98.92 КБ |
| Просмотров: |
1030 раз(а) |

|
|
|
  |
 |
Ромарио

Зарегистрирован: Вт 14 Октябрь 2014, 09:33
Сообщения: 497
Регион: Ярославль
|
Добавлено:
Пт 25 Март 2016, 10:08
|
  |
Поставьте рядом железную "адову" печь! Пусть "кайфует".
|
_________________ Сталевары не понимают кайфа,сидеть у камина.
Писанин Роман +79036460762
|
|
   |
 |
Дачник
Зарегистрирован: Чт 25 Август 2011, 15:32
Сообщения: 543
Регион: Лен.область
|
Добавлено:
Пт 25 Март 2016, 13:32
|
  |
| Екас писал(а): |
| Я вас услышал, спасибо за комментарий. А если вот так сделать? |
Если это связано с минимальными затратами по переделке печи то как вариант пойдёт.
Конвекционные трубы тонковаты, лучше сделать сечением в кирпич или взять гибкие рукава из нержавейки ()=10см.
|
|
|
|
  |
 |
Екас
Зарегистрирован: Ср 23 Март 2016, 20:54
Сообщения: 10
Регион: Екатеринбург
|
Добавлено:
Пт 1 Апрель 2016, 07:12
|
  |
А если такой вариант?
|
| Описание: |
|
| Размер файла: |
105.88 КБ |
| Просмотров: |
877 раз(а) |

|
|
|
  |
 |
Dreamdavids
Зарегистрирован: Сб 29 Октябрь 2011, 07:18
Сообщения: 1105
Регион: Пермь
|
Добавлено:
Пт 1 Апрель 2016, 09:17
|
  |
Парилка утеплена?
|
_________________ +79222445758 Владимир
|
|
  |
 |
Екас
Зарегистрирован: Ср 23 Март 2016, 20:54
Сообщения: 10
Регион: Екатеринбург
|
Добавлено:
Пт 1 Апрель 2016, 09:54
|
  |
Да, утеплена:
Перегородка (парилка-мойка): 100мм, минвата Rockwool
Межэтажное перекрытие (над парилкой сделан второй этаж типа полати): 200мм, минвата Rockwool
Теплопроводность Rockwool 0,036-0,041 Вт/(м*К)
Цокольное перекрытие: 150мм ПСБ-С-35
Теплопроводность ПСБ 0,042 Вт/(м*К)
Материал стен - сосна, кругляк, диаметром порядка 40 см.
Пол бетонная стяжка с прокладкой утеплителя, поверх - керамическая плитка
|
|
|
|
  |
 |
Дачник
Зарегистрирован: Чт 25 Август 2011, 15:32
Сообщения: 543
Регион: Лен.область
|
Добавлено:
Пт 1 Апрель 2016, 11:24
|
  |
| Екас писал(а): |
Пол бетонная стяжка с прокладкой утеплителя, поверх - керамическая плитка |
Утеплитель не поможет, зимой такой пол в бане будет всегда холодный,а края промерзать и плитка будет отваливаться.
|
|
|
|
  |
 |
Екас
Зарегистрирован: Ср 23 Март 2016, 20:54
Сообщения: 10
Регион: Екатеринбург
|
Добавлено:
Пт 1 Апрель 2016, 11:38
|
  |
Там много таких недоразумений по части строительства.
А что касается печи - есть какие нибудь комментарии или замечания? просто завтра печники уже начинают работать по последнему проекту... И очень хотелось бы, что бы печь заработала так, как этого хочет заказчик... А именно 75 градусов за 3 часа.
|
|
|
|
  |
 |
Дачник
Зарегистрирован: Чт 25 Август 2011, 15:32
Сообщения: 543
Регион: Лен.область
|
Добавлено:
Пт 1 Апрель 2016, 18:22
|
  |
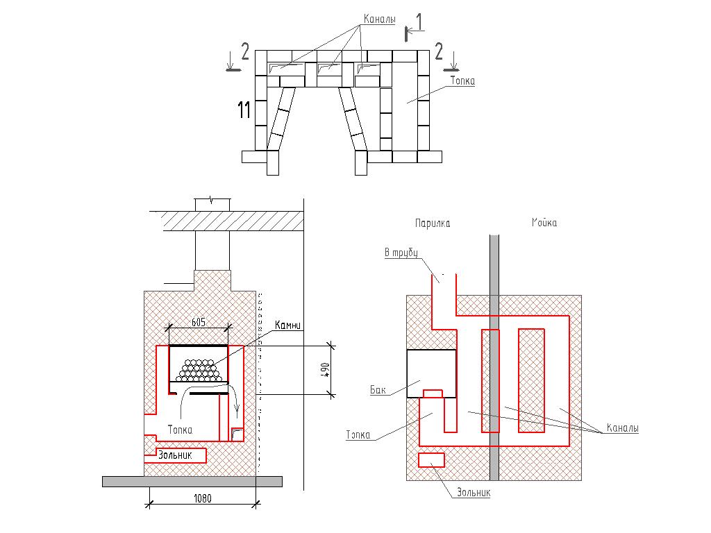
Опускных сколько влезет в печку, подъёмный один.
Поставьте ЗЛХ и будет нормально.
|
| Описание: |
|
| Размер файла: |
103.21 КБ |
| Просмотров: |
767 раз(а) |

|
|
|
  |
 |
Селиван Виктор
Проектировщик

Зарегистрирован: Сб 2 Январь 2010, 14:33
Сообщения: 6718
Регион: г.Челябинск
|
Добавлено:
Сб 2 Апрель 2016, 09:43
|
  |
Конструкцию на 100% -полный отстой. Это не банная печь -это камин с отопительной печью. Съэкономили на печниках?-это уже ваши проблемы а не заказчика.Я бы на месте заказчика потребовал бы возврата денег за такую самодеятельность и не компетентность. Почему здесь люди должны Вам здесь давать советы? Чтобы защитить ваши "шкурные " интересы?
|
_________________ Я за здоровую конкуренцию в печном деле и за работу во благо потребителям услуг печника.Тел. +79507468555
|
|
     |
 |
Екас
Зарегистрирован: Ср 23 Март 2016, 20:54
Сообщения: 10
Регион: Екатеринбург
|
Добавлено:
Пн 4 Апрель 2016, 07:23
|
  |
| Селиван Виктор писал(а): |
| Почему здесь люди должны Вам здесь давать советы? |
это же форум, для чего он еще нужен? что бы люди давали друг другу советы.
|
|
|
|
  |
 |
Селиван Виктор
Проектировщик

Зарегистрирован: Сб 2 Январь 2010, 14:33
Сообщения: 6718
Регион: г.Челябинск
|
Добавлено:
Пн 4 Апрель 2016, 07:33
|
  |
| Екас писал(а): |
| Селиван Виктор писал(а): |
| Почему здесь люди должны Вам здесь давать советы? |
это же форум, для чего он еще нужен? что бы люди давали друг другу советы. |
Советов спрашивают - как правильно построить. А не как исправить косяки после не компетентных мастеров. В вашем случае -это "мёртвому припарки". Печь под снос- ремонт и советы в данном случае не приемлемы.
|
_________________ Я за здоровую конкуренцию в печном деле и за работу во благо потребителям услуг печника.Тел. +79507468555
|
|
     |
 |
Екас
Зарегистрирован: Ср 23 Март 2016, 20:54
Сообщения: 10
Регион: Екатеринбург
|
Добавлено:
Пн 4 Апрель 2016, 08:07
|
  |
| Селиван Виктор писал(а): |
| Екас писал(а): |
| Селиван Виктор писал(а): |
| Почему здесь люди должны Вам здесь давать советы? |
это же форум, для чего он еще нужен? что бы люди давали друг другу советы. |
Советов спрашивают - как правильно построить. |
Мне кажется Вы ошибаетесь, эта тема называется "Ремонт банных печей", а не как правильно построить.
Ваше мнение понятно, может быть у кого то еще есть мнения на счет реконструкции печи?
|
|
|
|
  |
 |
Селиван Виктор
Проектировщик

Зарегистрирован: Сб 2 Январь 2010, 14:33
Сообщения: 6718
Регион: г.Челябинск
|
Добавлено:
Пн 4 Апрель 2016, 08:30
|
  |
| Екас писал(а): |
Мне кажется Вы ошибаетесь, эта тема называется "Ремонт банных печей", а не как правильно построить.
Ваше мнение понятно, может быть у кого то еще есть мнения на счет реконструкции печи? |
Ремонт работоспособных банных печей после исправной эксплуатации. А у вас новая печь -изначально не правильно построенная. Какой ремонт-если от печи не получен положительный результат сразу же после запуска в эксплуатацию- только снос и возврат денег заказчику.Вы съэкономили на печнике-вот и разхлёбывайте сами свои проблемы.Вам заказчик заплатил деньги за новую и исправную печь и он должен получить новую печь - а не отремонтированную печь.
|
_________________ Я за здоровую конкуренцию в печном деле и за работу во благо потребителям услуг печника.Тел. +79507468555
|
|
     |
 |
Екас
Зарегистрирован: Ср 23 Март 2016, 20:54
Сообщения: 10
Регион: Екатеринбург
|
Добавлено:
Пн 4 Апрель 2016, 08:57
|
  |
| Селиван Виктор писал(а): |
| Екас писал(а): |
Мне кажется Вы ошибаетесь, эта тема называется "Ремонт банных печей", а не как правильно построить.
Ваше мнение понятно, может быть у кого то еще есть мнения на счет реконструкции печи? |
Ремонт работоспособных банных печей после исправной эксплуатации. А у вас новая печь -изначально не правильно построенная. Какой ремонт-если от печи не получен положительный результат сразу же после запуска в эксплуатацию- только снос и возврат денег заказчику.Вы съэкономили на печнике-вот и разхлёбывайте сами свои проблемы.Вам заказчик заплатил деньги за новую и исправную печь и он должен получить новую печь - а не отремонтированную печь. |
Виктор, мне не понятен Ваш антагонизм, если у Вас нет конкретных советов, зачем что то писать, "пастернака не читал, но осуждаю"?
|
|
|
|
  |
 |
Селиван Виктор
Проектировщик

Зарегистрирован: Сб 2 Январь 2010, 14:33
Сообщения: 6718
Регион: г.Челябинск
|
Добавлено:
Пн 4 Апрель 2016, 11:03
|
  |
| Екас писал(а): |
Виктор, у Вас нет конкретных советов, зачем что то писать, ? |
Как нет советов?- снести и построить нормальную работоспособную печь. В Ек -ге есть к кому обратиться.
|
_________________ Я за здоровую конкуренцию в печном деле и за работу во благо потребителям услуг печника.Тел. +79507468555
|
|
     |
 |
|
|