 |
|
 |
| Автор |
Сообщение
|
Валерий Ф
Зарегистрирован: Вт 11 Октябрь 2016, 10:56
Сообщения: 20
Регион: Вологда
|
Добавлено:
Вт 25 Октябрь 2016, 14:40
|
  |
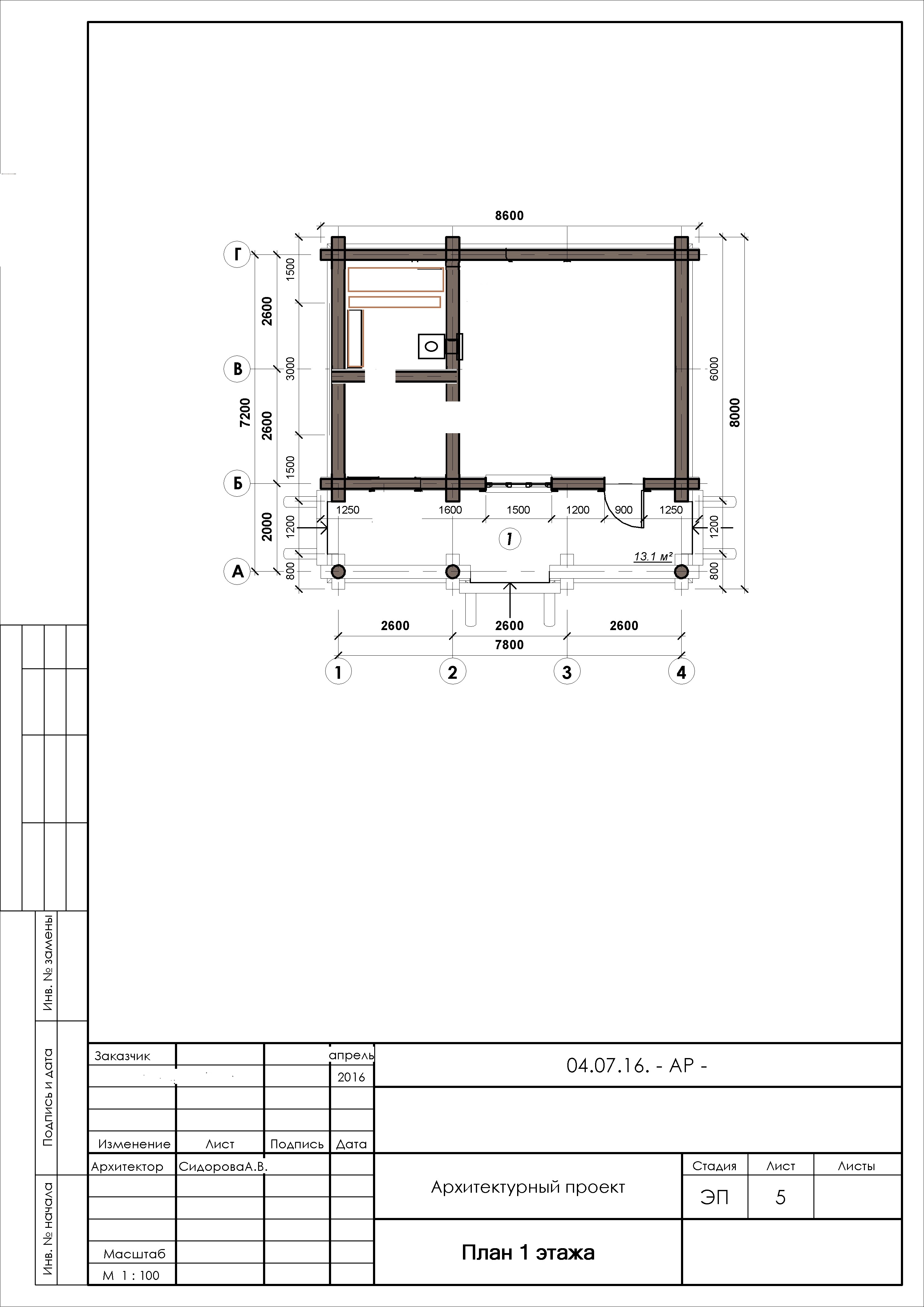
Здравствуйте уважаемые мастера печного дела!!! Имея небольшой опыт использования бани прошу вашей помощи по планировке бани и внутреннего наполнения всем необходимым и полезным для принятия банных процедур и приятного отдыха после них.
А теперь более подробно об использовании бани:
Баня находится в 120 км. от постоянного места проживания, зимой будет использоваться наездами после рыбалки, поэтому планируется большая комната отдыха с диваном для ночлега и большим столом посреди комнаты, вдоль правой стены или в дальнем правом углу разместить мини-русскую с мангалом в шестке, плиту под казан, столик для готовки и мойку. Летом в период отпусков и наплывом гостей с детьми, дом с небольшой кухней будет отдан в распоряжение жен и детей. А баня - будет основным местом времяпровождения мужиков.
P.S. Настоящая банная печь не рассматривается в связи с экстремальным режимом использования зимой (приехал,выпил,протопил,проснулся,уехал)
|
| Описание: |
|
| Размер файла: |
771.8 КБ |
| Просмотров: |
646 раз(а) |

|
|
|
  |
 |
mazatrucker74rus

Зарегистрирован: Пн 13 Май 2013, 22:28
Сообщения: 636
Регион: Челябинск
|
Добавлено:
Ср 26 Октябрь 2016, 22:29
|
  |
Личку посмотри !
|
_________________ Дилетант аз есьмь .
Вред приносишь ты если хвалишь , но еще больше вреда , если порицаешь то , в чем мало смыслишь .
|
|
  |
 |
Максим Ра

Зарегистрирован: Пн 10 Октябрь 2016, 20:20
Сообщения: 37
Регион: 3BFBA
|
Добавлено:
Пт 28 Октябрь 2016, 19:03
|
  |
Я бы сделал тамбур для того, чтобы с улицы напрямую не заходить в комнату. Зимой тем более.
|
|
|
|
  |
 |
Валерий Ф
Зарегистрирован: Вт 11 Октябрь 2016, 10:56
Сообщения: 20
Регион: Вологда
|
Добавлено:
Сб 29 Октябрь 2016, 12:23
|
  |
| Максим Ра писал(а): |
| Я бы сделал тамбур для того, чтобы с улицы напрямую не заходить в комнату. Зимой тем более. |
Можно поставить тепловую завесу над дверью,открытая веранда на сваях на берегу пруда, чем меньше дверей тем быстрее нырять в пруд после парной.
|
|
|
|
  |
 |
|
|
|
Следующая тема
Предыдущая тема
Вы не можете начинать темы Вы не можете отвечать на сообщения Вы не можете редактировать свои сообщения Вы не можете удалять свои сообщения Вы не можете голосовать в опросах Вы не можете добавлять приложения в этом форуме Вы можете скачивать файлы в этом форуме
|
|