| Автор |
Сообщение
|
Мангилев Сергей
Зарегистрирован: Сб 15 Октябрь 2011, 16:09
Сообщения: 978
Регион: Советск
|
Добавлено:
Пт 12 Май 2017, 20:02
|
  |
Главное правильная организация труда подсобников. На разборку стараюсь выехать сам. Трубу или вешаем или разбираем так чтоб весь кирпичь был сразу на месте для будущих работ. Основной выносим моём сортируем и заносим, раскладываем в соответствии с организацией рабочего места. Щамачиваем приготовленную заранее глину и Денек рыбачим иногда помешивая глину миксером. Проживает на веранде в пологе от комаров- сказка. Люли готовы бабки платить чтоб с города свалить . работаем не напрягаясь по 8-9 часов с перерывом на обед и подремать. За неделю управимся может дней за 5. По 3 косаря на день без затрат ,ну вы блин Даете.
|
|
|
|
     |
 |
Валер

Зарегистрирован: Вс 30 Март 2014, 09:18
Сообщения: 2363
Регион: Урал, Вишера
|
Добавлено:
Сб 13 Май 2017, 03:34
|
  |
если клюёт - за неделю, нет - за 5
|
|
|
|
  |
 |
Pe4nik

Зарегистрирован: Пт 1 Октябрь 2010, 05:49
Сообщения: 540
Регион: Шарья
|
Добавлено:
Сб 13 Май 2017, 07:58
|
  |
Для помещения 7 на 6 водяное отопление не нужно.
Достаточно печи нормальной,с протопкой раз в сутки.
Чего мудрите?
|
_________________ Печные работы любой сложности от мангала до промышленных спец.печей в ЦФО.За консультации $ не берут,нажимаем на конвертик - спрашиваем.К сайту похожему на мой ник отношения не имею!
С уважением! 8 91О 951 О7 О7
печник-смирнов.рф
|
|
   |
 |
Анна Грейс

Зарегистрирован: Чт 11 Май 2017, 22:51
Сообщения: 10
Регион: Челябинская область
|
Добавлено:
Сб 13 Май 2017, 08:30
|
  |
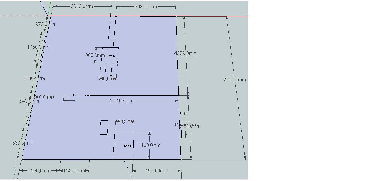
Ну, во-первых, прежние хозяева уже сделали водяное отопление.
А во-вторых, дом разделен на две половины. И печь стоит не по середине, как в нормальных домах, а разделяет кухню с прихожей. И вентиляции там тоже нет. Между комнатами там голландка. А ломать стену, делать выход на крышу в другом месте и менять крышу (там лежит старый шифер) не хочется, да и денег нет.
|
| Описание: |
|
| Размер файла: |
48.18 КБ |
| Просмотров: |
540 раз(а) |

|
|
|
  |
 |
Андрей_Алексеевич

Зарегистрирован: Пн 13 Декабрь 2010, 19:17
Сообщения: 5910
Регион: малая родина Павлова, Скобелева, Циолковского, Уткиных и др.
|
Добавлено:
Сб 13 Май 2017, 11:31
|
  |
В этих размерах фундамента, дом "вытянет" только котёл под уголь... с "чистой" духовкой, но не с ВП...
|
_________________ Печник - милостью и промыслом Божиим.
Печное отопление частного дома и т.п., авторское сопровождение проектов, наставничество в т.ч. дистанционное, партнёрство в кладке печей.
89106130763 МТС
andrejka61@mail.ru
andrej.kuzmischev@yandex.ru
|
|
   |
 |
Мангилев Сергей
Зарегистрирован: Сб 15 Октябрь 2011, 16:09
Сообщения: 978
Регион: Советск
|
Добавлено:
Сб 13 Май 2017, 12:47
|
  |
Живёшь себе с котлом под настилом и щитком , и вдруг узнаешь . что не правильно живёшь, и вся деревня по 100 квадратов с котлами у русских в подтопке не правильно живёт , вот же блин, сего делать то, где угля то накопать , и двухконтурный печей по настроить. Народ Вы че с дуба рухнули. У нас не газа не угля все с котлами живём а печах.
|
|
|
|
     |
 |
Анна Грейс

Зарегистрирован: Чт 11 Май 2017, 22:51
Сообщения: 10
Регион: Челябинская область
|
Добавлено:
Вс 4 Июнь 2017, 21:00
|
  |
Ну, всё! Печь разобрали, печника нашли!
|
|
|
|
  |
 |
Селиван Виктор
Проектировщик

Зарегистрирован: Сб 2 Январь 2010, 14:33
Сообщения: 6675
Регион: г.Челябинск
|
Добавлено:
Пн 5 Июнь 2017, 05:59
|
  |
| Анна Грейс писал(а): |
Ну, всё! Печь разобрали, печника нашли!  |
Из местных? У которых очередь? Да таким за два дня "сваять" трёхходовку и с кирпичами на ребро -как два пальца обо.....ть. Да и не хило за два дня ну в крайнем случае за три поднять 15тыс.руб.-они там зажиточные.
|
|
|
|
     |
 |
Анна Грейс

Зарегистрирован: Чт 11 Май 2017, 22:51
Сообщения: 10
Регион: Челябинская область
|
Добавлено:
Пн 5 Июнь 2017, 17:19
|
  |
Он нам будет складывать пятиоборотную, кирпич плашмя, за 10000, за 5 дней
|
|
|
|
  |
 |
Селиван Виктор
Проектировщик

Зарегистрирован: Сб 2 Январь 2010, 14:33
Сообщения: 6675
Регион: г.Челябинск
|
Добавлено:
Пн 5 Июнь 2017, 17:47
|
  |
| Анна Грейс писал(а): |
| Он нам будет складывать пятиоборотную, кирпич плашмя, за 10000, за 5 дней |
Пятиоборотная будет трещать,неравномерно прогреваться.Самая распространённая конструкция среди деревенских печников -и передаётся из поколение в поколение. Но зато ни в одной книге нет. Ни кто из инженеров конструкторов печей прошлого века не решился опубликовать такие конструкции.
|
|
|
|
     |
 |
Вогнистый Владимир

Зарегистрирован: Сб 7 Апрель 2012, 16:13
Сообщения: 811
Регион: Мариуполь, Украина
|
Добавлено:
Пн 5 Июнь 2017, 20:52
|
  |
| Селиван Виктор писал(а): |
| Анна Грейс писал(а): |
| Он нам будет складывать пятиоборотную, кирпич плашмя, за 10000, за 5 дней |
Пятиоборотная будет трещать,неравномерно прогреваться.Самая распространённая конструкция среди деревенских печников -и передаётся из поколение в поколение. Но зато ни в одной книге нет. Ни кто из инженеров конструкторов печей прошлого века не решился опубликовать такие конструкции. |
Может просто -не умеют делать. Есть фото - пятиканалка ,с одной задвижкой , Ребро .построенная с 1905г. Доси работает.
|
_________________ Печь - это душа дома!!!
|
|
    |
 |
Мангилев Сергей
Зарегистрирован: Сб 15 Октябрь 2011, 16:09
Сообщения: 978
Регион: Советск
|
Добавлено:
Вт 6 Июнь 2017, 05:35
|
  |
Боже упаси Вас. С настилом и котлом 3 х оборотов за глаза. Иначе ульется конденсатом.
|
|
|
|
     |
 |
Селиван Виктор
Проектировщик

Зарегистрирован: Сб 2 Январь 2010, 14:33
Сообщения: 6675
Регион: г.Челябинск
|
Добавлено:
Вт 6 Июнь 2017, 05:42
|
  |
| Мангилев Сергей писал(а): |
| Боже упаси Вас. С настилом и котлом 3 х оборотов за глаза. Иначе ульется конденсатом. |
Да верно -самая распространённая печь в деревнях и садовых домиках.
|
|
|
|
     |
 |
Мангилев Сергей
Зарегистрирован: Сб 15 Октябрь 2011, 16:09
Сообщения: 978
Регион: Советск
|
Добавлено:
Вт 6 Июнь 2017, 06:26
|
  |
Нету у нас уж ни каких садовых домиков, все дачи заброшены, и деревень почти нету. Извечный гимор малых городов двухэтажные бараки с бруса, с печами друг на друге. И нижние хочут, а верхние не могут и срать им на нижних, и нижним на верхних, хотя вверх тяжело.
|
|
|
|
     |
 |
Селиван Виктор
Проектировщик

Зарегистрирован: Сб 2 Январь 2010, 14:33
Сообщения: 6675
Регион: г.Челябинск
|
Добавлено:
Вт 6 Июнь 2017, 06:42
|
  |
| Мангилев Сергей писал(а): |
| Нету у нас уж ни каких садовых домиков, все дачи заброшены, и деревень почти нету. Извечный гимор малых городов двухэтажные бараки с бруса, с печами друг на друге. И нижние хочут, а верхние не могут и срать им на нижних, и нижним на верхних, хотя вверх тяжело. |
У нижних быстрее печи из строя выходят -потому что держат на себе вес верхних печей.Верхние должны ещё им(нижним) приплачивать при ремонтах за то что их печь стоит на нижней.Надо вести разъяснительную работу.
|
|
|
|
     |
 |
Мангилев Сергей
Зарегистрирован: Сб 15 Октябрь 2011, 16:09
Сообщения: 978
Регион: Советск
|
Добавлено:
Вт 6 Июнь 2017, 07:52
|
  |
И не ток за это, нижние топят Фискарс, верхние Газик и имеют тёплые полы. А так когда две тетки начинают разборки проще оставить их в покое, пока не прилетело В городе оснастка есть, вывешивать.
|
|
|
|
     |
 |
Анна Грейс

Зарегистрирован: Чт 11 Май 2017, 22:51
Сообщения: 10
Регион: Челябинская область
|
Добавлено:
Вс 2 Июль 2017, 22:04
|
  |
|
  |
 |
Шура

Зарегистрирован: Чт 8 Январь 2009, 20:09
Сообщения: 4171
Регион: Москва - Тамбов
|
Добавлено:
Вс 2 Июль 2017, 22:24
|
  |
|
   |
 |
Анна Грейс

Зарегистрирован: Чт 11 Май 2017, 22:51
Сообщения: 10
Регион: Челябинская область
|
Добавлено:
Пн 3 Июль 2017, 05:22
|
  |
|
  |
 |
Безумный Печник

Зарегистрирован: Чт 2 Февраль 2012, 21:43
Сообщения: 3221
Регион: спб
|
Добавлено:
Пн 3 Июль 2017, 06:53
|
  |
вы сами все поймете сказать особо нечего так то а если вас все устраивает тепло в доме значит все хорошо
|
_________________ Русская Печная АртелЪ -Возрождение старинных ремесел. Печные работы под ключ от зонтика до зольника . 89213537822
|
|
    |
 |
|
|