Некоммерческое партнерство Альянс Печных Дел Мастера
 RSS  • FAQ  •  Поиск  •  Пользователи  •  Группы   •  Регистрация   •  Избранные темы   •  Профиль  •  Войти и проверить личные сообщения  •  Чат  •  Вход





 Неудачный проект какую печь сложить Следующая тема
Предыдущая тема
Начать новую темуОтветить на тему
Автор Сообщение
DIMIDROL



Зарегистрирован: Чт 28 Август 2008, 07:02
Сообщения: 3

СообщениеДобавлено: Чт 28 Август 2008, 07:08 Ответить с цитатойВернуться к началу

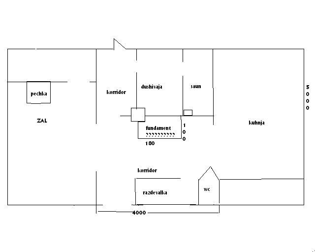
Доброе время суток. уважаемые печники помогите советом по поводу выбора печки. Достался дом с очень неудачным проектом с одной печкой в зале, все внутренние отделочные работы были сделаны , даже фундамент под печь (180*100) с трубой, но кроме печки в коридое.Дом сам из блоков керамзит- бетона утеплён 5 см пенопласта,потолок 2.4 метра,утеплён мин- ватой 15 см,Собираюсь жить постоянно посоветуйте какую печку выбрать,так что бы была не менее 500 кирпичей и так что бы без камина . И как можно было бы отопить кухню и душевую не строя третьей трубы на кухне? три трубы в доме это уже слишком много будет.
Заранее благодарю



untitled3.JPG
 Описание:
 Размер файла:  19.04 КБ
 Просмотров:  890 раз(а)

untitled3.JPG


Посмотреть профильОтправить личное сообщение
Валерий Петров



Зарегистрирован: Пт 9 Декабрь 2005, 14:33
Сообщения: 1085
Регион: Россия

СообщениеДобавлено: Чт 28 Август 2008, 12:27 Ответить с цитатойВернуться к началу

А сауна у Вас планируется электрическая?
Если поставить печку в коридоре, то в душевой будет тепло от ее задней стенки (перегородка убирается.), а если поставить печку на кухне на новом фундаменте, и поменять расположение душеой и сауны, то можно иметь теплую душевую и кухню от ождной печки. Если варочная функция печки на кухне не востребована, то в коридоре можно поставить кирпичный отопительный котел, развести батареи и отапливать все помещения от одного котла.

_________________
+7 911 090-08-96 (МТС СПб)
________________________________________
Чтобы получать правильные ответы, научись задавать правильные вопросы...
Посмотреть профильОтправить личное сообщениеОтправить e-mailПосетить сайт автораICQ Number
DIMIDROL



Зарегистрирован: Чт 28 Август 2008, 07:02
Сообщения: 3

СообщениеДобавлено: Чт 28 Август 2008, 14:37 Ответить с цитатойВернуться к началу

Валерий спасибо за ответ вам .Да на кухне варочная функция печки на кухне не востребована,там электро-плита уже есть, первый вариант мне понравился со сносом стенки в душевой,а если на этот фундамент (180*100) поставить печь ОИК 4 как вы думаете? да баня дровяная топится маленькой печкой.
Посмотреть профильОтправить личное сообщение
Валерий Петров



Зарегистрирован: Пт 9 Декабрь 2005, 14:33
Сообщения: 1085
Регион: Россия

СообщениеДобавлено: Пт 29 Август 2008, 10:56 Ответить с цитатойВернуться к началу

Да, можно поставить и ОИК4, но на кухне от этого будет не намного теплее, а в коридоре будет немного жарковато.

_________________
+7 911 090-08-96 (МТС СПб)
________________________________________
Чтобы получать правильные ответы, научись задавать правильные вопросы...
Посмотреть профильОтправить личное сообщениеОтправить e-mailПосетить сайт автораICQ Number
Чуриков Александр



Зарегистрирован: Чт 18 Май 2006, 07:25
Сообщения: 2293
Регион: Санкт-Петербург

СообщениеДобавлено: Пт 29 Август 2008, 19:55 Ответить с цитатойВернуться к началу

Я думаю, что проект дома не такой уж и плохой. При таком размере печи 180 на 100 и больших арках между залом и кухней в доме будет тепло. Предварительно конечно надо посчитать) Главное не закрывать комнаты дверьми, оставив большие арки. Обогрев душевой обеспечен (мыться всегда приятно при температуре выше, чем обычная комнатная) Туалет обогреется тёплым полом минимальной цены и мощности или теплоконвектором с термостатом. Стороны печи можно чуть закруглить. Печь в сауне подключить непосредственно к печи.

Заднюю стенку печи можно утеплить, дабы не перегревать помещение ванной комнаты. Хотя в ванной повышенная влажность. Часто там стирают и сушат бельё. Так что тепло не помешает. В боковых стенках можно обустроить ниши-утоньшения. Они будут нагреваться больше, чем другие части печи и прогревать помещения (зал и кухня) лучше. Так же ниши будут служить элементами дизайна в печи.

При сильном морозе (ну уж если вдруг будет холодновато) можно догреться эл. теплоконвекторами расположенными в зале и кухне.

Да, я совсем забыл про печь в зале. С ней то Вы уж точно не замёрзнете.

_________________
+7-921-742-16-92 Услуги печника. Кладка печей, мангалов, банных печей, чертежи
***********************************************************************
Посмотреть профильОтправить личное сообщениеОтправить e-mailПосетить сайт автораПозвонить автору
DIMIDROL



Зарегистрирован: Чт 28 Август 2008, 07:02
Сообщения: 3

СообщениеДобавлено: Пт 29 Август 2008, 20:32 Ответить с цитатойВернуться к началу

благодарю за совет
Посмотреть профильОтправить личное сообщение
Показать сообщения:      
Начать новую темуОтветить на тему


 Перейти:   



Следующая тема
Предыдущая тема
Вы не можете начинать темы
Вы не можете отвечать на сообщения
Вы не можете редактировать свои сообщения
Вы не можете удалять свои сообщения
Вы не можете голосовать в опросах
Вы не можете добавлять приложения в этом форуме
Вы можете скачивать файлы в этом форуме




Проект форум печников "Альянс. Печных Дел Мастера" © 2006-2025