 |
|
 |
| Автор |
Сообщение
|
Владимир UN

Зарегистрирован: Вс 1 Февраль 2009, 22:13
Сообщения: 21
Регион: планета Земля
|
Добавлено:
Вс 22 Февраль 2009, 19:25
|
  |
Доброго времени суток, уважаемые печники!
Близится строительный сезон, пора определиться с печью для русской бани, чтобы летом ее сложить. Баня строится в Московской области. (С печником тоже хочется определиться)
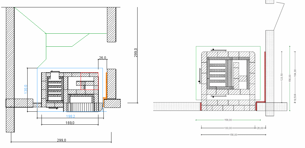
Выкладываю исходные данные помещений.
Размеры печи на чертеже пока условны, подправлю, когда остановлюсь на чем-то конкретном с вашей помощью.
По-моему, выбор не очень широк - БИК 2, либо БИК 3.
Или я заблуждаюсь?
З.Ы. Отапливать помещения, кроме парной, необходимости нет.
Спасибо за отзывы.
|
_________________ лучше жалеть о том что сделал, чем о том, что не сделал
|
|
    |
 |
Владимир UN

Зарегистрирован: Вс 1 Февраль 2009, 22:13
Сообщения: 21
Регион: планета Земля
|
Добавлено:
Ср 25 Февраль 2009, 19:39
|
  |
Да, просто завалили советами и предложениями!
Или я не в той теме выступил?
|
_________________ лучше жалеть о том что сделал, чем о том, что не сделал
|
|
    |
 |
Андрей Ищенко
Проектировщик
Зарегистрирован: Вт 7 Февраль 2006, 10:08
Сообщения: 2946
Регион: Пенза
|
Добавлено:
Ср 25 Февраль 2009, 21:34
|
  |
Не понятно что именно вы хотите?
|
|
|
|
     |
 |
Крафт

Зарегистрирован: Вт 13 Июнь 2006, 00:38
Сообщения: 613
Регион: г. Обнинск
|
Добавлено:
Ср 25 Февраль 2009, 23:05
|
  |
| Цитата: |
| По-моему, выбор не очень широк - БИК 2, либо БИК 3. |
Вы заблуждаетесь, конструкций банных печей превеликое множество и не ограничено БИКами. Ищите конкретного, компетентного печника и он предоставит Вам выбор, отталкиваясь от Ваших пожеланий и возможностей.
Успехов.
|
_________________ Всем удачи! Дымка в дверь, в окошко и в трубу немножко ! - 8-910-917-00-72 Шведок Юрий Анатольевич. http://www.redmediatv.ru/video.php?id=28939
|
|
      |
 |
Евгений Колчин

Зарегистрирован: Чт 3 Октябрь 2002, 06:26
Сообщения: 10151
Регион: Москва
|
Добавлено:
Ср 25 Февраль 2009, 23:23
|
  |
Владимир, скорее всего не корректно поставлен вопрос.
Нет описания того, что вы хотите получить от печи, для каких режимов парной, а так же вспомогательных и дополнительных функций, вам нужна печь.
Кроме вами указанных модификаций на сайте Кузнецова http://www.stove.ru/index.php?lng=0&rs=19 любая печь трансформируется под ваши нужды. См. каталог печей БИК, БИК БК, БИК ПК.
|
_________________ ************************************
|
|
      |
 |
Владимир UN

Зарегистрирован: Вс 1 Февраль 2009, 22:13
Сообщения: 21
Регион: планета Земля
|
Добавлено:
Сб 28 Февраль 2009, 20:46
|
  |
| Андрей Ищенко писал(а): |
| Не понятно что именно вы хотите? |
Я хочу определиться с печью для моей парной. Думаю, подскажут отличия различных печей друг от друга, исходя из площади парной посоветуют конкретный вариант, может быть.
Как-то так.
|
_________________ лучше жалеть о том что сделал, чем о том, что не сделал
|
|
    |
 |
Владимир UN

Зарегистрирован: Вс 1 Февраль 2009, 22:13
Сообщения: 21
Регион: планета Земля
|
Добавлено:
Сб 28 Февраль 2009, 20:52
|
  |
| Крафт писал(а): |
| Цитата: |
| По-моему, выбор не очень широк - БИК 2, либо БИК 3. |
Вы заблуждаетесь, конструкций банных печей превеликое множество и не ограничено БИКами. Ищите конкретного, компетентного печника и он предоставит Вам выбор, отталкиваясь от Ваших пожеланий и возможностей.
Успехов. |
Поскольку я сам некомпетентен в данном вопросе, как отличить "компетентного" печника от "некомпетентного"?
Каждый кулик свое болто хвалит.
|
_________________ лучше жалеть о том что сделал, чем о том, что не сделал
|
|
    |
 |
Владимир UN

Зарегистрирован: Вс 1 Февраль 2009, 22:13
Сообщения: 21
Регион: планета Земля
|
Добавлено:
Сб 28 Февраль 2009, 21:10
|
  |
Евгений, про режим парной я написал, мне нужна "русская баня". Странно было бы для сауны кирпичную печь класть.
Что добавить? Высота потолка 2500, печь хочу с прямым нагревом камней. Дополнительных и вспомогательных функция не нужно (тоже писал).Камины не нужны.
Хочется понять принципиальные отличия БИКов друг от друга (для меня как потребителя). В каталоге информации минимум.
|
_________________ лучше жалеть о том что сделал, чем о том, что не сделал
|
|
    |
 |
Андрей Ищенко
Проектировщик
Зарегистрирован: Вт 7 Февраль 2006, 10:08
Сообщения: 2946
Регион: Пенза
|
Добавлено:
Сб 28 Февраль 2009, 21:30
|
  |
Все равно не понятно, Вы хотите печку или рассказ о том как её строить?
|
|
|
|
     |
 |
Владимир UN

Зарегистрирован: Вс 1 Февраль 2009, 22:13
Сообщения: 21
Регион: планета Земля
|
Добавлено:
Вс 1 Март 2009, 01:45
|
  |
Андрей, я не умею строить печки, зачем мне рассказ как их строить.
Вы внимательно читали исходное сообщение? По-моему нет.
цитата:
"Близится строительный сезон, пора определиться с печью для русской бани, чтобы летом ее сложить. Баня строится в Московской области. (С печником тоже хочется определиться)"
Оставьте свои профессиональные секреты при себе, я на них не покушаюсь. Мне всего лишь, что бы выбрать печь и печника, хорошо бы понять, чем например БИК 1 отличается от БИК 2. Где-то мож каменка больше, какая-то инертнее, какя-то быстрее выходит на рабочий режим, одна на 10 кубов, другая на 110 и т.д.
Порядовки мне об этом не расскажут.
Я надеюсь,что кто-нибудь напишет :
"Парень, для парной твоих размеров подойдет такой-то и такой-то вариант, один отличается от другого тем-то и тем-то, выбирай! Могу сложить оба."
Понятней объяснить не могу.
|
_________________ лучше жалеть о том что сделал, чем о том, что не сделал
|
|
    |
 |
Андрей Ищенко
Проектировщик
Зарегистрирован: Вт 7 Февраль 2006, 10:08
Сообщения: 2946
Регион: Пенза
|
Добавлено:
Вс 1 Март 2009, 02:17
|
  |
Парень, не парся, сделаем тебе хорошую печку....
Так пойдет?
|
|
|
|
     |
 |
Крафт

Зарегистрирован: Вт 13 Июнь 2006, 00:38
Сообщения: 613
Регион: г. Обнинск
|
Добавлено:
Вс 1 Март 2009, 02:32
|
  |
| Цитата: |
Поскольку я сам некомпетентен в данном вопросе, как отличить "компетентного" печника от "некомпетентного"?
Каждый кулик свое болто хвалит. |
Только по рекомендациям! В любом вопросе, от ремонта автомобиля до покупки путёвки или найма няни для ребёнка - только по рекомендациям ! Конечно , в теме нужно быть , но только поверхностно , не надо забивать себе голову БиКами, КиКами, ОВиКами.
Вы обращаетесь к конкретному автослесарю или к врачу , полностью им доверяетесь , предварительно узнав их компетентность от других клиентов, не берётесь изучать справочник по ремонту авто или учебник молодого хирурга и не стремитесь быть компетентным по всем вопросам. Почему же , в вопросах печного отопления, Вы не можете довериться мастеру ?
Ваш выбор отопительного прибора может оказаться не верным. Мастер , на основании Ваших пожеланий и исходя из условий , сам выберет , а скорее всего спроектирует и сложит то , что потом будет радовать, Вас, долгие годы. Ищите тех, кому Вы доверяете.
|
_________________ Всем удачи! Дымка в дверь, в окошко и в трубу немножко ! - 8-910-917-00-72 Шведок Юрий Анатольевич. http://www.redmediatv.ru/video.php?id=28939
|
|
      |
 |
Евгений Колчин

Зарегистрирован: Чт 3 Октябрь 2002, 06:26
Сообщения: 10151
Регион: Москва
|
Добавлено:
Вс 1 Март 2009, 10:03
|
  |
Что значит получить рекомендацию по печнику? Зайти к соседу? Если есть возможность посмотреть в интернете (в основной массе объявления обезличены и только контактный телефон) или снять номер контакта со столба (та же ситуация - любую печь и обезличено)? Где гарантия того, что печь будет иметь грамотную конструкцию? Печник, работающий в своем районе всегда имеет репутацию, мол "вся деревня живет на его печах". А что представляет конструкция его печи? Нетрудно догадаться: та, что и клал его прадед, с незначительными вариациями во внешнем виде и "зеркальном отображение". Как понять, что именно эта печь отличная, и отличная от именно другой похожей конструкции?
Вопросов больше с каждым шагом.
Как потребителю разобраться во всем этом, не вникая, а полностью довериться печнику?
Попытка введения лицензий на данный вид деятельности не решает этого. Что дальше?
Дальше государство предлагает строителям "вариться" в своем собственном котле, т.е переход на саморегулирующие организации.
Хотя Закон о СРО еще и сырой, но все зависит уже от нас, как его применить. Так же и Закон о Техническом урегулирование уже ставит вопрос о сертификации изделий, так же в области пожарной.
Это отдельная тема и если будет иметь продолжение, то обсудим.
|
_________________ ************************************
|
|
      |
 |
Евгений Колчин

Зарегистрирован: Чт 3 Октябрь 2002, 06:26
Сообщения: 10151
Регион: Москва
|
Добавлено:
Вс 1 Март 2009, 10:34
|
  |
Касаемо конкретного предложения по печи в парную.
Первый вопрос, который ставиться потребителем - как долго будет греться кирпичная теплоемкая печь.
Не обольщайтесь на предложения час-полтора, за это время ни одна нормальная печь не протопиться, поскольку в любом случае имеет инерцию.
Поэтому, любая печь выводиться на режим натопом, т.е. постепенным протапливанием. Ждать с поверхности печи тепла через час, тем более с банной "двухслойной" печи не реально. А именно по принципу двухслойности и строиться нормальная каменка, с задачей нагрева камней парогенератора, как первостепенной, т.е. приближая ее к промышленной печи.
Все построения банной печи на основе отопительной, что в основе своей и делается, загодя обречены на плохой результат.
Под "русской парной" не каждый потребитель понимает именно тот температурно-влажностный режим, который необходим. У большинства представление геройства в общественных парных - чтоб 120 и ущи в трубочку.
В корне не правильно. На кирпичной печи с закрытой каменкой температурно-влажностный режим в парной стабилизируется на 60 гр.С и управление ведется теплоносителем (пар из каменки).
Во многом ошибка построения банных печей на открытом шамоте. Результат, гордость печника о прогреве его конструкции с максимально коротким сроком, при этом перегрев внешних стен печи, жесткое ИК излучение, пергрев парной, но гордость что "классно" и печь покрывает все ошибки строителей по утеплению парной.
А вот уже режим парной в этом случае загоняется в совершенно другие критерии, никакого отношения не имеющих к паровой бане, наиболее полезной для оздоровления.
Устанавливая печь в парной сразу надо быть готовым, что печь не дешевое изделие и подходить к реализации надо с подходом, чтоб не было мучительно больно за бестолково потраченные деньги. И не малые.
Поэтому, если позволяет общая конструкция бани, т.е ее объемно-планировочное решение, всегда пердлагается к каменке периодического действия пристроить открытый камин. В денежном отношение это не намного удорожает, но значительно расширит функции печи, поскольку печь уже после протопки во время принятия банных процедур уже не топят и вопрос уюта решает открытый камин. Да и не только уюта, но и можно побаловаться шашлычком или жареной боварской колбаской.
Если ставить печь только для получения температурно-влажностного режима в парной, то самое желательное расположение - вся печь в парной или с топкой через тоннель в топочную или комнату отдыха.
Такой вариант не решает теплового баланса всех помещений бани и потребует дополнительных затрат на отопление, но в для парной только плюс, при этом можно уменьшить массу печи.
Вариант с выносом стенок печи в смежные помещения поможет решить тепловой баланс банного комплекса, но вынужденный компромис приводит к увеличению печи.
Все это решается с потребителем, исходя из ТЗ.
И последнее, уясните, что баню надо приготовить, так же как и любое блюдо, и на это уходит определенное время, заложенное в конструктивной особенности.
В файле примеры привязки печей в парной. Любая конкретика уточняется.
|
_________________ ************************************
| Описание: |
|
| Размер файла: |
47.4 КБ |
| Просмотров: |
1936 раз(а) |

|
|
|
      |
 |
Владимир UN

Зарегистрирован: Вс 1 Февраль 2009, 22:13
Сообщения: 21
Регион: планета Земля
|
Добавлено:
Вс 1 Март 2009, 18:01
|
  |
| Андрей Ищенко писал(а): |
Парень, не парся, сделаем тебе хорошую печку....
Так пойдет?  |
Спасибо, нет.
|
_________________ лучше жалеть о том что сделал, чем о том, что не сделал
|
|
    |
 |
Владимир UN

Зарегистрирован: Вс 1 Февраль 2009, 22:13
Сообщения: 21
Регион: планета Земля
|
Добавлено:
Вс 1 Март 2009, 18:19
|
  |
Крафт, если бы у меня был "проверенный" печник, я бы не пришел сюдя, тянуть из вас жилы.
Именно такое складывается ощущение. Ни одного ответа на поставленный вопрос. Я всего лишь пытаюсь для себя вывести разницу в потребительских свойствах печей и ни кто не прольет света. А кто, лучше вас, печников, может в этом разбираться?
Нафиг вообще этот форум, ощущение, что для печников, это общественная нагрузка, навязанная кем-то сверху и отвечают все на "отвяжись".
Хоть-бы кто ответил конструктивно, глядишь и завязалось бы сотрудничество.
|
_________________ лучше жалеть о том что сделал, чем о том, что не сделал
|
|
    |
 |
Андрей Ищенко
Проектировщик
Зарегистрирован: Вт 7 Февраль 2006, 10:08
Сообщения: 2946
Регион: Пенза
|
Добавлено:
Вс 1 Март 2009, 18:48
|
  |
Владимир, банные печи рассчитываем исходя из необходимого объема камней на объем парной. Далее они делятся на прямой и косвенный нагрев камней. Все просто.
Что обсуждать? Хотите устроить конкурс? В нынешней напряженной ситуации, вызывает бурю эмоций даже то, что вы выбрали БИК!
Если, вы остановились на печах Кузнецова, обращайтесь сделаем под личным контролем Игоря Викторовича, если хотите нанять стороннего печника, то кроме как по порядовкам с сайта автора он ничего не предложит.
Обсуждение конструкций можете почитать на русбанях.
|
|
|
|
     |
 |
Владимир UN

Зарегистрирован: Вс 1 Февраль 2009, 22:13
Сообщения: 21
Регион: планета Земля
|
Добавлено:
Вс 1 Март 2009, 18:48
|
  |
Евгений, Ваше сообщение так хорошо начиналось :
"Касаемо конкретного предложения по печи в парную."
Но далее последовали прописные истины и никакой конкретики. Может продолжение следует?
Попробую внести пояснения в тз:
1. Я не требую вывести печь на режим через 1.5 часа
2. Я не хочу париться при 120, мне надо 60 плюс минус 10.
3. Меня не надо морально готовить к цене, я готов.
4. Мне не надо решать проблему отопления помещений, кроме парной. (мне не нужен камин)
|
_________________ лучше жалеть о том что сделал, чем о том, что не сделал
|
|
    |
 |
Евгений Колчин

Зарегистрирован: Чт 3 Октябрь 2002, 06:26
Сообщения: 10151
Регион: Москва
|
Добавлено:
Вс 1 Март 2009, 19:09
|
  |
Владимир, если вам все известно, так надо было и составить ТЗ исходя из ваших требований, т.е. озвучить их.
Я расписал так подробно, поскольку не могу читать мысли на расстояние, извините.
Посему ваш вариант печи без камина. Размер и привязка на чертеже (в вашем случае можете расположить в дальний угол от двери). Тоннель и портал по месту.
А уж какой это будет вариант - БИК 41 или 42, а может 53, не знаю
Разница будет только в конструктиве, в потребительских параметрах вы отличий не заметите.
Какую еще вы хотите конкретику?
|
_________________ ************************************
Последний раз редактировалось: Евгений Колчин (Вс 1 Март 2009, 19:11), всего редактировалось 1 раз |
|
      |
 |
Владимир UN

Зарегистрирован: Вс 1 Февраль 2009, 22:13
Сообщения: 21
Регион: планета Земля
|
Добавлено:
Вс 1 Март 2009, 19:09
|
  |
Андрей, у кого вызывает бурю эмоций, то что я выбрал БИК?
Я еще ничего не выбрал, просто БИК, это единственное, о чем есть хоть минимум информации. Готов рассматривать любые другие конструкции, где они?
Но выбирать я буду только после того, когда пойму, какие плюсы и минусы есть у каждого варианта. Логичное желание, не находите?
Печь хочу прямого нагрева.
Еще раз повторяю, порядовки меня не интересуют.
|
_________________ лучше жалеть о том что сделал, чем о том, что не сделал
|
|
    |
 |
|
|
|
Следующая тема
Предыдущая тема
Вы не можете начинать темы Вы не можете отвечать на сообщения Вы не можете редактировать свои сообщения Вы не можете удалять свои сообщения Вы не можете голосовать в опросах Вы не можете добавлять приложения в этом форуме Вы можете скачивать файлы в этом форуме
|
|