 |
|
 |
| Автор |
Сообщение
|
Nordic
Зарегистрирован: Вт 22 Январь 2013, 18:09
Сообщения: 41
Регион: МО, Чеховский р-н
|
Добавлено:
Вт 22 Январь 2013, 23:23
|
  |
Всем здравствуйте!
Вопрос, как я понимаю, банальный- какую лучше выбрать печь для дачного дома?
Как файл с чертежом сделать - пока не знаю, но попробую описать письменно:
дом 6x9 из строганого бруса 150 мм x 150 мм, мансарда торцы 150мм x 100 мм(бока-это крыша металлочерепица).
Фундамент- ленточный по периметру,+ по площади балки деревянные опираются по краям на ленточный фундамент, а по длине на бетонные заглубленные опоры.
Первый этаж уже жилой. Второй- еще нет. Первый этаж состоит из сеней(пристройка 2x3 м к основному дому 6x9) и 4 основных помещений- по сути их три одинаковых 2,75 x 6 м, но среднее разделено пополам (в который вход из сеней- пристройки), поэтому получается 4 помещения.
Вот.
Теперь по сути хотелки- хочется отапливать одной печкой(вопрос какой?) сразу 3 помещения из 4, т.е. поставить печь в месте стыка
одной комнаты 2,75 x 6 м, второй 2, 75 x 3 м и третьей 2, 75 x 3 м.
Чтобы топочная часть выходила в нежилую прихожую, а боками печь была в большой и маленькой комнате. Как-то так. Если поняли(попробую разобраться с рисунками и выложить, если получится)....
Теперь вопрос насчет самой конструкции- делать кирпичную(нужно , чтобы был обогрев + возможность готовить- варочная панель, как вариант запасной и по желанию, т.к. в основном летом используем электропечь) ИЛИ металлическую и как-то обложить кирпичом?- у соседа примерно такая конструкция, но у него там и баня на первом этаже еще и получается , что металлическая печь с каменкой в банной комнате, а топочная выходит на жилую комнату/кухню+ еще и второй этаж греется (труба-сэндвич)+ топочная часть обложена кирпичом вокруг самой печки - т.е. как аккумулятор тепла...Но, это его конструкция.
Он так и советует- металлическую печь взять и обложить кирпичом и поставит на месте, которое я описал выше. Чтобы не резать пол, не делать фундамент, т.е. считает, что пол выдержит столько кирпича...+ труба ес-но сэндвич металл. Я не уверен, что это лучший вариант. Может стоит заморочиться с полноценно кирпичной печкой и кирпичной трубой(или с частично кирпичной трубой , а выше сэндвич- например с середины высоты мансарды)....Дом используется в основном конец весны,летом, начало осени до ноября. Но, хочется и зимой приезжать(что возможно, если не зависить от электроообогрева!). Утеплять планирую брус снаружи блоками типа минваты Извоер(100 мм минимум)+доска под брус или облицовочным кирпичом полым (но, из-за ширины ленты тогда влезет только 50 мм утеплителя, а я не уверен что этого хватит...). В общем такой расклад. Подскажите, что лучше в таком варианте выбрать из печей? Поделитесь видением. Заранее спасибо.
P.S. также важно мнение по бюджету предлагаемого решения, срокам постройки- напишите в личку или прямо здесь, чтобы хотя бы уровень понимать, что будет стоить по деньгам. А, может, кто возьмется сделать, если сговоримся. Спасибо!
|
|
|
|
  |
 |
Андрей_Алексеевич

Зарегистрирован: Пн 13 Декабрь 2010, 19:17
Сообщения: 5990
Регион: малая родина Павлова, Скобелева, Циолковского, Уткиных и др.
|
Добавлено:
Ср 23 Январь 2013, 09:26
|
  |
а картинку с планом дачи сложно в ПОЙНТе чиркануть?
|
_________________ Печник - милостью и промыслом Божиим.
Печное отопление частного дома и т.п., авторское сопровождение проектов, наставничество в т.ч. дистанционное, партнёрство в кладке печей.
89106130763 МТС
andrejka61@mail.ru
andrej.kuzmischev@yandex.ru
|
|
   |
 |
Nordic
Зарегистрирован: Вт 22 Январь 2013, 18:09
Сообщения: 41
Регион: МО, Чеховский р-н
|
Добавлено:
Ср 23 Январь 2013, 12:24
|
  |
в ворде нарисовал...файл приложил к сообщению
|
| Описание: |
|
 Скачать |
| Название файла: |
Схема_дача.doc |
| Размер файла: |
49 КБ |
| Скачено: |
391 раз(а) |
|
|
  |
 |
Nordic
Зарегистрирован: Вт 22 Январь 2013, 18:09
Сообщения: 41
Регион: МО, Чеховский р-н
|
Добавлено:
Ср 23 Январь 2013, 12:32
|
  |
схема читаемая? - подтвердите. Спасибо.
|
|
|
|
  |
 |
Андрей_Алексеевич

Зарегистрирован: Пн 13 Декабрь 2010, 19:17
Сообщения: 5990
Регион: малая родина Павлова, Скобелева, Циолковского, Уткиных и др.
|
Добавлено:
Ср 23 Январь 2013, 12:55
|
  |
Схема открылась.
А кухню как греть думаете?
|
_________________ Печник - милостью и промыслом Божиим.
Печное отопление частного дома и т.п., авторское сопровождение проектов, наставничество в т.ч. дистанционное, партнёрство в кладке печей.
89106130763 МТС
andrejka61@mail.ru
andrej.kuzmischev@yandex.ru
|
|
   |
 |
Nordic
Зарегистрирован: Вт 22 Январь 2013, 18:09
Сообщения: 41
Регион: МО, Чеховский р-н
|
Добавлено:
Чт 24 Январь 2013, 17:26
|
  |
Дело в том,что дом используется для постоянного проживания с мая по сентябрь включительно. Т.е.подтапливается по сути две недели весной и две недели осенью. Режим проживания не изменится в ближайшие лет 10..Хотелось бы иметь возможность приезжать с ночевками и зимой, но при наличии резервного источника теплоснабжения(конечно, могу запустить генератор,но у него 2кВт)-а в холодное время он бы был основным источником отопления для двух комнат и прихожей.Кухню + с/у обогревать конвектором.Почему- т.к. в холодное время людей прожтвает меньше. Второй этаж- в основном для лета,когда приезжают гости и т.д. Но, 2 этажа еще нет пока- там только черновой пол и даже крыша не утеплена изнутри. Поэтому, по логике работ хочу сделать сначала печь, а потом перегородки,пол,утепление мансарды. Т.е. приехали на выходные к обеду- включили конвекторы- 2 часа и уже тепло на 1 этаже, в это время подтапливаем печь, через 2 часа отключаем конвекторы в большой комнате и средней,и в прихожке.Остаются конвектора на кухне и с/у (да, я поставил водонагреватель 50л в с/у-поэтому в доме есть гор.вода;там же смонтировал нас. станцию). Расходы на эл.энергию несоизмеримо меньше+если вообще отключают эл-во, то мы автономны- есть пара акб на освещение, нет только воды ,вернее есть но в пределах 30-50л (но там основной потребитель- унитаз, можно и пару ведер держать воды на этот случай, а можно изредка генератор запускать для накачки нас. станции..). А, второй этаж- ну если будет нужно еще одну комнату наверное можно будет подогреть конвектором, тем более если через нее пойдет труба сэндвич(?-можно ли от не греть?)...или кирпичная(удорожание проекта+300 кирпичей примерно- я так думаю+больший фундамент - я думаю)...Возможно стоит сделать жидкостной обогрев кухни , с/у и второго этажа(или его части, как альтернативы высокой кирпичной трубы), или по крайней мере заложить ИЗНАЧАЛЬНО в техрешении возможность такого контура отопления- например поставить бак (наверное на трубу- если сэндвич), для того, чтобы в будущем можно было смонтировать контур, поставить батаре отопления в помещениях...а может и сразу сделать на 1 эт., а вот 2 эт. оставить на возможность подключения. Вот так вижу модель отопления исходя из условий проживания. Поделитесь вашим мнением. Для меня важно услышать мнение специалистов. p.s. ну, и конечно нужно дом УТЕПЛИТЬ!, иначе греть бессмысленно; сейчас голый брус- хватает с мая по сентябрь включительно, даже по октябрь - на конвекторах,но соответствующий жор эл-ва...
|
|
|
|
  |
 |
Vova-U

Зарегистрирован: Пт 30 Июль 2010, 12:28
Сообщения: 979
Регион: Питер
|
Добавлено:
Чт 24 Январь 2013, 18:51
|
  |
Правильно вы печь разместили
ИМХО второй не хватает шведки с плитой на кухне
А эту сделать каминопечь с лицом в большую комнату
Каминопечь вроде неплохо превращается в двухэтажную, через летний ход топить второй этаж, а потом дотапливать первый
Но я не печник.
А так планировка --- в аккурат на две печи и слева в аккурат кухня для шведки
Маленькая комната для зимней ночёвки
--------------------------------
P.S. А можно шведкой санузел догревать, тогда к нижней стене на плане кухни её прислонить
|
| Описание: |
|
| Размер файла: |
15.49 КБ |
| Просмотров: |
818 раз(а) |

|
|
|
   |
 |
Nordic
Зарегистрирован: Вт 22 Январь 2013, 18:09
Сообщения: 41
Регион: МО, Чеховский р-н
|
Добавлено:
Чт 24 Январь 2013, 20:49
|
  |
Да, наверное печь двусторонняя - на малую и большую комнату с камином в большой для предпрогрева- это неплохой вариант, но идея была топку сделать со стороны прихожки- т.е. греть можно будет сразу 3 помещения, причем прихожка- в принципе холоднее, т.к. вход в нее из неотапливаемых сеней. Или, вариант с камином в большую комнаты не исключает одной стены на прихожку- тут не понял...Поясните.
Насчет второй печи- да было бы хорошо и вторую сделать- там вообще бы прелесть была по прогреву и кухни, и санузла. А, может быть в печи сделать(на трубе) котел и пустить контур жидкостного отопления- еще не пришел к пониманию, что лучше+ не понимаю пока теплотехники такого контура, его техрешения,- сколько сможет отопить площади(а то можно батарей влепить, а они будут чуть теплые)?, как выглядит конструкция?, какая скорость прогрева такой системы(понятно, что длительнее если бы просто вторая печь там была)? Но и плюсы вижу- можно довести тепло куда хочешь практически... + непонятно - это естественная циркуляция или принудительная теплоносителя?-какие есь решения, на сколько дорогие? Ведь, все время, на одной стороне "хотелка", а с другой стороны финансовые ограничения+необходимая рациональная функциональность...
|
|
|
|
  |
 |
Vova-U

Зарегистрирован: Пт 30 Июль 2010, 12:28
Сообщения: 979
Регион: Питер
|
Добавлено:
Пт 25 Январь 2013, 19:05
|
  |
Печку конечно можно углом в прихожую, топку можно в прихожую сделать, просто часто люди хотят "смотреть на огонь"... насколько это перевешивает требование носить дрова в комнату -- решать вам. Но моё сугубое ИМХО -- для двух этажей лучший конструктив -- камино-печь, она как будто специально для этого предназначена
Про котёл, насколько понял -- котёл греет пока его топят.... т.е. к котлу хорошо бы котельную и кочегара, а без неё -- хорошо бы запас нагретой воды в полторы-две тонны. Но люди и котлы пользуют. кроме того, котёл плохо совмещается с чем-либо, портит характеристики любой печи, либо (если не портит) плохо греет, короче котёл -- отдельное по сути своей устройство. Особое...
Хотя опять же у кого какие требования.
Т.е. решать вам, но при этом надо знать нюансы выбора, вот их я вам и назвал
--------------------------
P.S. Можно котлом от шведки -- греть ванную и воду для неё...
Хороший котёл Жирнов размещал в сети
Вот его картинка котла (20), не сильно портит параметры топки, но при этом смотрит в неё
|
| Описание: |
|
| Размер файла: |
213.24 КБ |
| Просмотров: |
784 раз(а) |

|
|
|
   |
 |
Куликов Андрей

Зарегистрирован: Вс 30 Январь 2011, 09:15
Сообщения: 1059
Регион: Мичуринск Тамбовская обл.
|
Добавлено:
Пт 25 Январь 2013, 20:26
|
  |
С таким интересом читаю сообщения на форуме которые пишут печники живущие в квартирах и не печники,которые любят рыбок,однако не стесняются высказать своё мнение о печах.
Когда будете жить всю жизнь в доме с печным отоплением и котлом в печи,тогда возмжно чтото интересное скажете.
Котёл,находясь, в топке или колпаке,даже после окончания топки получает тепло от массива печи.
P.S. С рождения живу в доме с печным отоплением и котлом в печи.
|
|
|
|
    |
 |
Nordic
Зарегистрирован: Вт 22 Январь 2013, 18:09
Сообщения: 41
Регион: МО, Чеховский р-н
|
Добавлено:
Пт 25 Январь 2013, 22:37
|
  |
Ок.Понял. Спасибо за информацию.
Учту.
| Vova-U писал(а): |
Печку конечно можно углом в прихожую, топку можно в прихожую сделать, просто часто люди хотят "смотреть на огонь"... насколько это перевешивает требование носить дрова в комнату -- решать вам. Но моё сугубое ИМХО -- для двух этажей лучший конструктив -- камино-печь, она как будто специально для этого предназначена
Про котёл, насколько понял -- котёл греет пока его топят.... т.е. к котлу хорошо бы котельную и кочегара, а без неё -- хорошо бы запас нагретой воды в полторы-две тонны. Но люди и котлы пользуют. кроме того, котёл плохо совмещается с чем-либо, портит характеристики любой печи, либо (если не портит) плохо греет, короче котёл -- отдельное по сути своей устройство. Особое...
Хотя опять же у кого какие требования.
Т.е. решать вам, но при этом надо знать нюансы выбора, вот их я вам и назвал
--------------------------
P.S. Можно котлом от шведки -- греть ванную и воду для неё...
Хороший котёл Жирнов размещал в сети
Вот его картинка котла (20), не сильно портит параметры топки, но при этом смотрит в неё |
|
|
|
|
  |
 |
Vova-U

Зарегистрирован: Пт 30 Июль 2010, 12:28
Сообщения: 979
Регион: Питер
|
Добавлено:
Сб 26 Январь 2013, 07:21
|
  |
| куликов андрей писал(а): |
С таким интересом читаю сообщения на форуме которые пишут печники живущие в квартирах и не печники,которые любят рыбок,однако не стесняются высказать своё мнение о печах.
|
Я предупредил, что не печник, и даю не своё мнение, а обзор инфы
А печники обычно не больно-то делятся информацией, а когда делятся -- то всегда себе на пользу.
А вы бы вместо того, чтоб "посраться в комментах" что-нибудь человеку рассказали...
Ато получается -- как обычно
-------------------------------------------
А рыбок я люблю, они прикольные
|
|
|
|
   |
 |
Куликов Андрей

Зарегистрирован: Вс 30 Январь 2011, 09:15
Сообщения: 1059
Регион: Мичуринск Тамбовская обл.
|
Добавлено:
Сб 26 Январь 2013, 08:58
|
  |
А с Максимом мы уже всё обсудили в л.с..Разводят болтовню на людях пусть квартирные спецы. Если люди судят о компетентности печника по его рассуждениям о разных коэффициэнтах и пропорциях то я им сочувствую.Если возникнет желание загнуть что то умное тож смогём чай не пальцем деланы, образование имеем,два.
Греть воду для ванной котлом в печи считаю неразумным,хотя вариант не исключается.При постоянной доливке воды в систему образуется накипь на внутренних стенках.Качество воды оставляет желать лутшего.А теперь подумайте что получите если ваш котёл внутри забит накипью ,а поверхность покрыта продуктами горения.
У меня печь с котлом стоят более 30 лет,вода в котле тоже.Доливаю литров 5 в два года.
Строил заказчику печь с заменой котла(дом увеличился в площади и меняли расположение печи).Когда срезал котёл то внутренняя поверхность как из магазина.Котёл работал без проблем ,в топке, около 30 лет,вода практически не добавлялась.
У меня воду греет накопительный Аристон.
Ну вот и потрепался, спасибо за внимание.
|
|
|
|
    |
 |
Куликов Андрей

Зарегистрирован: Вс 30 Январь 2011, 09:15
Сообщения: 1059
Регион: Мичуринск Тамбовская обл.
|
Добавлено:
Сб 26 Январь 2013, 09:41
|
  |
| Vova-U писал(а): |
Печку конечно можно углом в прихожую, топку можно в прихожую сделать, просто часто люди хотят "смотреть на огонь"... насколько это перевешивает требование носить дрова в комнату -- решать вам. Но моё сугубое ИМХО -- для двух этажей лучший конструктив -- камино-печь, она как будто специально для этого предназначена
Про котёл, насколько понял -- котёл греет пока его топят.... т.е. к котлу хорошо бы котельную и кочегара, а без неё -- хорошо бы запас нагретой воды в полторы-две тонны. Но люди и котлы пользуют. кроме того, котёл плохо совмещается с чем-либо, портит характеристики любой печи, либо (если не портит) плохо греет, короче котёл -- отдельное по сути своей устройство. Особое...
Хотя опять же у кого какие требования.
Т.е. решать вам, но при этом надо знать нюансы выбора, вот их я вам и назвал
--------------------------
P.S. Можно котлом от шведки -- греть ванную и воду для неё...
Хороший котёл Жирнов размещал в сети
Вот его картинка котла (20), не сильно портит параметры топки, но при этом смотрит в неё |
Больше походит на своё мнение ,а не обзор инфы(инфа у Igor UA).
А высказывать своё мнение о вещах которые сами никогда на делали это и есть "посрать в теме",извините за грубость.
Прдобных "мнений" достаточно на FH,я считаю здесь больше конкретики.
|
|
|
|
    |
 |
Евгений Колчин

Зарегистрирован: Чт 3 Октябрь 2002, 06:26
Сообщения: 10145
Регион: Москва
|
Добавлено:
Сб 26 Январь 2013, 10:09
|
  |
| куликов андрей писал(а): |
| А с Максимом мы уже всё обсудили в л.с.. |
и что вы ему предложили, как специалист и практик по жизни?
если конечно это не профессиональный секрет ... хотя вроде здесь форум и поделиться соображениями из своей практики было бы неплохо
|
_________________ ************************************
|
|
      |
 |
Куликов Андрей

Зарегистрирован: Вс 30 Январь 2011, 09:15
Сообщения: 1059
Регион: Мичуринск Тамбовская обл.
|
Добавлено:
Сб 26 Январь 2013, 10:48
|
  |
Как специалисту мне до Вас Евгений далеко,без иронии,а практики в использовании печей немного имею.
Максиму был предложен вариант ,Шведка в прхожей с лежанкой в одной спальне икамином в другой.На втором этаже щиток.Для отопления кухни и ванной монтаж радиаторов ,также во всех комнатах.
И сходя из предполагаемого бюджета Максим остановился на Шведке с котлом и монтажём радиаторов.
Я предложил ему два проекта со щитком на втором этаже,для информации как варианты.По месту всё равно возможны изменения .
|
| Описание: |
|
| Размер файла: |
25.96 КБ |
| Просмотров: |
832 раз(а) |

|
|
|
    |
 |
Куликов Андрей

Зарегистрирован: Вс 30 Январь 2011, 09:15
Сообщения: 1059
Регион: Мичуринск Тамбовская обл.
|
Добавлено:
Сб 26 Январь 2013, 10:49
|
  |
и вторая
|
| Описание: |
|
| Размер файла: |
25.74 КБ |
| Просмотров: |
821 раз(а) |

|
|
|
    |
 |
Андрей_Алексеевич

Зарегистрирован: Пн 13 Декабрь 2010, 19:17
Сообщения: 5990
Регион: малая родина Павлова, Скобелева, Циолковского, Уткиных и др.
|
Добавлено:
Сб 26 Январь 2013, 10:53
|
  |
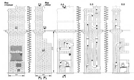
А с какой целью в "17_04.jpg" ряды № 11-21 предложены толщиной в 6 см?
В этой схеме, в целом не плохой(есть куда доработать...), к.м.к., Вы намеренно не делаете преимущественно нижний прогрев - сразу направляете ДГ после ВП вверх?
И ещё - не стоило ли:
- поставить ещё одну ЗВ-3 в 27-28-ом рядах, организовав действительно ЛХ;
- разделить колпак на втором этаже на 2-ва - снизив т.о. сопротивление дымовым газам?[/i]
|
_________________ Печник - милостью и промыслом Божиим.
Печное отопление частного дома и т.п., авторское сопровождение проектов, наставничество в т.ч. дистанционное, партнёрство в кладке печей.
89106130763 МТС
andrejka61@mail.ru
andrej.kuzmischev@yandex.ru
|
|
   |
 |
Евгений Колчин

Зарегистрирован: Чт 3 Октябрь 2002, 06:26
Сообщения: 10145
Регион: Москва
|
Добавлено:
Сб 26 Январь 2013, 11:06
|
  |
Андрей, спасибо за отклик. Вопрос по первой печи (красной) - не поведет задвижку на прямом канале, есть практика по установке в этом месте?
|
_________________ ************************************
|
|
      |
 |
Куликов Андрей

Зарегистрирован: Вс 30 Январь 2011, 09:15
Сообщения: 1059
Регион: Мичуринск Тамбовская обл.
|
Добавлено:
Сб 26 Январь 2013, 11:08
|
  |
Уважаемый Андрей Алексеевич предполагаю что автор проекта таким образом решил увеличить теплоотдачу от стенок(у нас в большенстве все печи на ребро,хотя я делаю на плашку).
Ещё раз повторюсь ,проекты отправлены автору темы для информации,т.к. по кол-ву кирпича укладываются в предполагаемый бюджет.При выполнении всё равно построил что нибудь без копирования,а указанные ряды выполнял бы на плашку.
|
|
|
|
    |
 |
|
|
|
Следующая тема
Предыдущая тема
Вы не можете начинать темы Вы не можете отвечать на сообщения Вы не можете редактировать свои сообщения Вы не можете удалять свои сообщения Вы не можете голосовать в опросах Вы не можете добавлять приложения в этом форуме Вы можете скачивать файлы в этом форуме
|
|