 |
|
 |
| Автор |
Сообщение
|
Сергей М.
Зарегистрирован: Ср 5 Сентябрь 2012, 15:57
Сообщения: 10
Регион: Москва, Талдомский р-н
|
Добавлено:
Вт 27 Август 2013, 22:26
|
  |
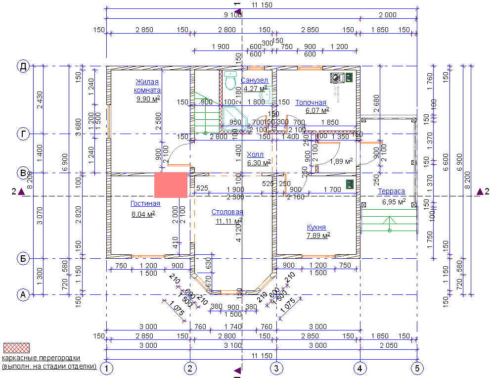
Хочу отопительную печь с ХК. Фундамент под печь есть.
Печь нужна, скорее всего, размером 4.5 х 3.5 кирпича.
Высота первого этажа от пола до потолка - 2.60, высота конька - 8.50
|
| Описание: |
|
| Размер файла: |
34.59 КБ |
| Просмотров: |
750 раз(а) |

|
|
|
   |
 |
Александр Замашка
Гость
|
Добавлено:
Ср 28 Август 2013, 09:58
|
  |
Из какого материала сделаны внутренние и наружные стены ?
|
|
|
|
|
 |
санко

Зарегистрирован: Пн 7 Апрель 2008, 21:51
Сообщения: 80
Регион: Тверская обл. г.Осташков
|
Добавлено:
Ср 28 Август 2013, 10:04
|
  |
Интересно,а почему не в кухню печь с хлебной камерой,а вот уж печь- камин в гостинную.
|
_________________ tel.89109300394
|
|
   |
 |
Гребенчюк Андрей

Зарегистрирован: Чт 9 Сентябрь 2010, 17:23
Сообщения: 1211
Регион: Ленинградская область
|
Добавлено:
Ср 28 Август 2013, 11:17
|
  |
Можно тогда камино-печь с ХБ
|
|
|
|
  |
 |
Александр Замашка
Гость
|
Добавлено:
Ср 28 Август 2013, 12:15
|
  |
Согласен..
Печь нужно ставить в простенок между гостиной и кухней.
Размер печи 5х4.5 по кирпичу, на обогрев 40м2 + там лестница на второй этаж.
Топка со строны гостиной духовка в кухню.
|
|
|
|
|
 |
санко

Зарегистрирован: Пн 7 Апрель 2008, 21:51
Сообщения: 80
Регион: Тверская обл. г.Осташков
|
Добавлено:
Ср 28 Август 2013, 20:25
|
  |
Как всегда , началось общение только между мастерами ,заказчик -присоединяйтесь
|
_________________ tel.89109300394
|
|
   |
 |
Михаил Рожков
Зарегистрирован: Пн 22 Апрель 2013, 21:02
Сообщения: 242
Регион: Талдом
|
Добавлено:
Ср 28 Август 2013, 20:47
|
  |
Здравствуйте Сергей. Читал в Ваших сообщениях, что местных печников нехотите (много косяков) , может не тех нашли или не там искали? Сам я из Талдома, если интересует могу встретиться в эти выходные.
|
|
|
|
   |
 |
Сергей М.
Зарегистрирован: Ср 5 Сентябрь 2012, 15:57
Сообщения: 10
Регион: Москва, Талдомский р-н
|
Добавлено:
Ср 28 Август 2013, 21:07
|
  |
| санко писал(а): |
Как всегда , началось общение только между мастерами ,заказчик -присоединяйтесь  |
Присоединяюсь.
Дом из бруса 150мм. Будет обшиваться. Зимой пока не используется. В основном до поздней осени и весной.
Печь решили ставить именно между комнатами. В кухне и так тепло. ХК нужна не для постоянной готовки, а как хобби, мое личное.
Две печи я вряд ли буду ставить в дом.
Вот на что бы я с удовольствием согласился - это развернуть дверцы топки и ХК на 45 градусов в сторону столовой.
|
|
|
|
   |
 |
санко

Зарегистрирован: Пн 7 Апрель 2008, 21:51
Сообщения: 80
Регион: Тверская обл. г.Осташков
|
Добавлено:
Ср 28 Август 2013, 21:12
|
  |
Поворот на 45 градусов хоть и потребует усилий ,но вполне реализуемое пожелание.
|
_________________ tel.89109300394
|
|
   |
 |
|
|
|
Следующая тема
Предыдущая тема
Вы не можете начинать темы Вы не можете отвечать на сообщения Вы не можете редактировать свои сообщения Вы не можете удалять свои сообщения Вы не можете голосовать в опросах Вы не можете добавлять приложения в этом форуме Вы можете скачивать файлы в этом форуме
|
|