 |
|
 |
| Автор |
Сообщение
|
верамихайловна
Зарегистрирован: Пн 26 Сентябрь 2011, 20:41
Сообщения: 80
Регион: гжель
|
Добавлено:
Пн 7 Ноябрь 2011, 20:36
|
  |
| Валентин Стрибук писал(а): |
1. Не делал. Спрямлённый канал можно включить в любой момент.
2.Частично можно вывесить на уголках. |
Тогда еще вопрос.Как вы думаете,щиток какой конструкции лучше выбрать в моем случае.Можно ли такой как на картинки.И какое сечение делать для дымооборотов.У Ангары дымоход-150мм.Можно ли в пол кирпича,или лучше в один.
|
| Описание: |
|
| Размер файла: |
20.2 КБ |
| Просмотров: |
1075 раз(а) |

|
|
|
  |
 |
Валентин Стрибук

Зарегистрирован: Чт 17 Июль 2008, 18:53
Сообщения: 636
Регион: Москва
|
Добавлено:
Пн 7 Ноябрь 2011, 20:47
|
  |
Я бы сделал щиток 3.5*2 кирпича в виде колпака, слева труба и в неё два выхода- внизу и вверху. Нижний всегда открыт, в верхнем поворотный переключатель: 2 положения -открыто, закрыто. Высота щитка меньше 2 метров.
Канал трубы130*260, из него сэндвич 150. И желательно перекрытие 1 этажа пройти этим сэндвичем внутри как бы кирпичной трубы.
На фото не сэндвич, а шидель. Канал сбоку к вашей ситуации не имеет отношения,
...нужное ..долго искать..
|
_________________ 9164865048@mail.ru ... Вернём русскую печь в Россию через барбекю
| Описание: |
|
| Размер файла: |
134.6 КБ |
| Просмотров: |
1043 раз(а) |

|
|
|
     |
 |
верамихайловна
Зарегистрирован: Пн 26 Сентябрь 2011, 20:41
Сообщения: 80
Регион: гжель
|
Добавлено:
Пн 7 Ноябрь 2011, 21:24
|
  |
| Валентин Стрибук писал(а): |
Я бы сделал щиток 3.5*2 кирпича в виде колпака, слева труба и в неё два выхода- внизу и вверху. Нижний всегда открыт, в верхнем поворотный переключатель: 2 положения -открыто, закрыто. Высота щитка меньше 2 метров.
Канал трубы130*260, из него сэндвич 150. И желательно перекрытие 1 этажа пройти этим сэндвичем внутри как бы кирпичной трубы.
На фото не сэндвич, а шидель. Канал сбоку к вашей ситуации не имеет отношения,
...нужное ..долго искать.. |
Щиток шириной в 2 кирпича не получается.Мешает балка.Только 1.5Может быть увеличить длину до 4.5,тогда восходящие каналы получатся в кирпич.
|
|
|
|
  |
 |
Валентин Стрибук

Зарегистрирован: Чт 17 Июль 2008, 18:53
Сообщения: 636
Регион: Москва
|
Добавлено:
Пн 7 Ноябрь 2011, 21:45
|
  |
.....Можно и в 1.5крпч.
Если увеличить длину щитка, то можно по нему сдвинуть трубу в другую сторону и обойти балку. Можно щиток сделать буквой "Г" и трубу поставить сбоку, чтобы уйти от балки. Главная проблема - противопожарная распушка. Если не получается 38см от дыма до дерева, то я и предлагал сэндвич плюс кирпич..
|
_________________ 9164865048@mail.ru ... Вернём русскую печь в Россию через барбекю
|
|
     |
 |
верамихайловна
Зарегистрирован: Пн 26 Сентябрь 2011, 20:41
Сообщения: 80
Регион: гжель
|
Добавлено:
Вт 8 Ноябрь 2011, 18:48
|
  |
| Валентин Стрибук писал(а): |
.....Можно и в 1.5крпч.
Если увеличить длину щитка, то можно по нему сдвинуть трубу в другую сторону и обойти балку. Можно щиток сделать буквой "Г" и трубу поставить сбоку, чтобы уйти от балки. Главная проблема - противопожарная распушка. Если не получается 38см от дыма до дерева, то я и предлагал сэндвич плюс кирпич.. |
Тогда щиток получится такой.Я вас правильно понял?Балки проходят как показано на рис.А можно ли сэндвич обложить кирпичом на ребро?
|
| Описание: |
|
| Размер файла: |
16.82 КБ |
| Просмотров: |
1075 раз(а) |

|
| Описание: |
|
| Размер файла: |
28.12 КБ |
| Просмотров: |
1080 раз(а) |

|
|
|
  |
 |
верамихайловна
Зарегистрирован: Пн 26 Сентябрь 2011, 20:41
Сообщения: 80
Регион: гжель
|
Добавлено:
Ср 16 Ноябрь 2011, 19:21
|
  |
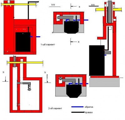
Суммируя все рекомендации,придумали такую систему.Подскажите пожалуйста возможен ли такой вариант.
|
| Описание: |
|
 Скачать |
| Название файла: |
Без названия1.rar |
| Размер файла: |
99.6 КБ |
| Скачено: |
592 раз(а) |
|
|
  |
 |
Валентин Стрибук

Зарегистрирован: Чт 17 Июль 2008, 18:53
Сообщения: 636
Регион: Москва
|
Добавлено:
Ср 16 Ноябрь 2011, 20:01
|
  |
Посмотрел только снаружи. У вас всё в 0 слое. Среди печников уже сложилось, что каждый ряд имеет свой слой. Тогда убираешь галочки в слоях и можешь просмотреть всю печь.
Итак, что я понял:
Выход из "железки" взад-влево горизонтально.
Задняя стенка не печь, а стенка.
Труба сечением в кирпич - это канал тёплого воздуха между 1 и 2 этажами.
Труба в два кирпича - это дымовая, а на ребро - потому, что там внутри будет сэндвич.
Аккумулирующего щитка практически нет.
Работать будет конечно.
Если "железяку" выдвинуть вперёд, то резко увеличивается аккумулятор и убирается несуразный горизонтальный патрубок.
А нет ли у Вас фото этого пересечения стен с фундаментом?
|
_________________ 9164865048@mail.ru ... Вернём русскую печь в Россию через барбекю
|
|
     |
 |
верамихайловна
Зарегистрирован: Пн 26 Сентябрь 2011, 20:41
Сообщения: 80
Регион: гжель
|
Добавлено:
Ср 16 Ноябрь 2011, 20:43
|
  |
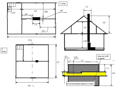
Спасибо за отклик.Если трубу вверх то получится так как на рисунке.Тогда большая чость трубы становится бесполезной?А если сделат отвод также и вниз трубы.Выкладываю чертежи дома.так может быть простой щиток в предыдущем ссбщении лучше.
|
| Описание: |
|
| Размер файла: |
41.48 КБ |
| Просмотров: |
1122 раз(а) |

|
| Описание: |
|
| Размер файла: |
43.05 КБ |
| Просмотров: |
830 раз(а) |

|
|
|
  |
 |
Валентин Стрибук

Зарегистрирован: Чт 17 Июль 2008, 18:53
Сообщения: 636
Регион: Москва
|
Добавлено:
Ср 16 Ноябрь 2011, 21:49
|
  |
Вот решение:
Труба напускается на полкирпича на уголке.
План, где каждый квадратик - кирпич.
Ангара ставится на полоску фундамента и плюс уголок из-под щитка.
Выхлоп из Ангары - два по 45 градусов и в щиток.
В щитке 2 прочистки - под трубой и справа.
В трубу - два входа, один - подвёртка внизу напротив чистки, всегда открыт.
Второй - для спрямления канала наверху, открывается "крючком" - переключателем моей конструкции.
Труба - шестерик, внутри сэндвич.
Проход для тёплых газов наверх сделаете вне кирпичной конструкции.
Щиток меньше 2 метров.
|
_________________ 9164865048@mail.ru ... Вернём русскую печь в Россию через барбекю
| Описание: |
|
| Размер файла: |
144.24 КБ |
| Просмотров: |
1041 раз(а) |

|
|
|
     |
 |
верамихайловна
Зарегистрирован: Пн 26 Сентябрь 2011, 20:41
Сообщения: 80
Регион: гжель
|
Добавлено:
Сб 19 Ноябрь 2011, 18:49
|
  |
| Валентин Стрибук писал(а): |
Вот решение:
Труба напускается на полкирпича на уголке.
План, где каждый квадратик - кирпич.
Ангара ставится на полоску фундамента и плюс уголок из-под щитка.
Выхлоп из Ангары - два по 45 градусов и в щиток.
В щитке 2 прочистки - под трубой и справа.
В трубу - два входа, один - подвёртка внизу напротив чистки, всегда открыт.
Второй - для спрямления канала наверху, открывается "крючком" - переключателем моей конструкции.
Труба - шестерик, внутри сэндвич.
Проход для тёплых газов наверх сделаете вне кирпичной конструкции.
Щиток меньше 2 метров. |
Спасибо за ответ.Не могли бы вы пояснить.если конечно это не секрет,как устроен ваш переключатель.И еще вопрос про трубу, вот так ее можно сделать?И не перекоситс ли ундамент из-за такого смещения.
|
| Описание: |
|
| Размер файла: |
16.87 КБ |
| Просмотров: |
1929 раз(а) |

|
|
|
  |
 |
верамихайловна
Зарегистрирован: Пн 26 Сентябрь 2011, 20:41
Сообщения: 80
Регион: гжель
|
Добавлено:
Сб 19 Ноябрь 2011, 18:51
|
  |
И еще возник вопрос.Почему нельзя трубу из Ангары вывести сзади.
|
|
|
|
  |
 |
Валентин Стрибук

Зарегистрирован: Чт 17 Июль 2008, 18:53
Сообщения: 636
Регион: Москва
|
Добавлено:
Сб 19 Ноябрь 2011, 20:52
|
  |
И трубу так можно с точки зрения конструкции, и если в Ангаре есть выход сзади - это ещё лучше.
А переключатель - когда подойдёте к верху щитка, могу подъехать, сварить на месте и поставить.
|
_________________ 9164865048@mail.ru ... Вернём русскую печь в Россию через барбекю
|
|
     |
 |
верамихайловна
Зарегистрирован: Пн 26 Сентябрь 2011, 20:41
Сообщения: 80
Регион: гжель
|
Добавлено:
Пн 21 Ноябрь 2011, 20:29
|
  |
| Валентин Стрибук писал(а): |
И трубу так можно с точки зрения конструкции, и если в Ангаре есть выход сзади - это ещё лучше.
А переключатель - когда подойдёте к верху щитка, могу подъехать, сварить на месте и поставить. |
Подскажите еще пожалуйста из своего опыта.
1 Можно ли боковое ограждение камина ставить на расстоянии 5 см от его стенок.
2 Можно ли противопожарную разделку щитка делать в пол кирпича.
3 Можно ли переход с камина в щиток и из щитка в сэндвич сварить отдельно.Муж сварщик.
4 В первое время водяное отопление делать не будем.Теплообменник с Ангары снимается.Думаем снять и верх обложить шамотным кирпичом.Стоит ли так сделать
И еще вопрос.Посоветовали сделать комбинацию ангары и печи отопительно варочной.Говорят так будет очень эффективно.Опыта кладки нет,за исключением барбекю.Стоит ли так сделать.Или для нашего дома будет достаточно предыдущей системы.И если стоит то какой вариант лучше выбрать.И можно ли вообще так делать.Спвсибо.
|
| Описание: |
|
| Размер файла: |
23.46 КБ |
| Просмотров: |
1045 раз(а) |

|
| Описание: |
|
| Размер файла: |
34.76 КБ |
| Просмотров: |
1034 раз(а) |

|
|
|
  |
 |
Валентин Стрибук

Зарегистрирован: Чт 17 Июль 2008, 18:53
Сообщения: 636
Регион: Москва
|
Добавлено:
Вт 22 Ноябрь 2011, 20:34
|
  |
| верамихайловна писал(а): |
1 Можно ли боковое ограждение камина ставить на расстоянии 5 см от его стенок.
2 Можно ли противопожарную разделку щитка делать в пол кирпича.
3 Можно ли переход с камина в щиток и из щитка в сэндвич сварить отдельно.Муж сварщик.
4 В первое время водяное отопление делать не будем.Теплообменник с Ангары снимается.Думаем снять и верх обложить шамотным кирпичом.Стоит ли так сделать
5. И еще вопрос.Посоветовали сделать комбинацию ангары и печи отопительно варочной. |
1. Из опыта: металлические вставки вставляю в печную конструкцию как раз с зазором 5см.
2. Правила требуют 38см до защищённой поверхности. Если не кирпич, то есть второй вариант - в правилах есть требуемая цифра теплового сопротивления.
http://forum.stovemaster.ru/viewtopic.php?p=27393#27393 здесь кое-что посмотрите.
3. Конечно можно. А то, что не из жаропрочной нержавейки, - как-то компенсируется большой толщиной металла. Жаропрочная нержавейка тоже прогорает.
4. Если сделаете щиток или печь - тогда зачем этот шамотный кирпич?
5. Такая комбинация, когда часть печи является аккумулятором тепла для "ангары", очень хороша. Только почему отопительно-варочная. Отопительная лучше сжигает дрова и компактнее.
|
_________________ 9164865048@mail.ru ... Вернём русскую печь в Россию через барбекю
|
|
     |
 |
верамихайловна
Зарегистрирован: Пн 26 Сентябрь 2011, 20:41
Сообщения: 80
Регион: гжель
|
Добавлено:
Ср 23 Ноябрь 2011, 19:21
|
  |
[quote="Валентин Стрибук"]
| верамихайловна писал(а): |
1 Можно ли боковое ограждение камина ставить на расстоянии 5 см от его стенок.
2 Можно ли противопожарную разделку щитка делать в пол кирпича.
3 Можно ли переход с камина в щиток и из щитка в сэндвич сварить отдельно.Муж сварщик.
4 В первое время водяное отопление делать не будем.Теплообменник с Ангары снимается.Думаем снять и верх обложить шамотным кирпичом.Стоит ли так сделать
5. И еще вопрос.Посоветовали сделать комбинацию ангары и печи отопительно варочной. |
1. Из опыта: металлические вставки вставляю в печную конструкцию как раз с зазором 5см.
2. Правила требуют 38см до защищённой поверхности. Если не кирпич, то есть второй вариант - в правилах есть требуемая цифра теплового сопротивления.
http://forum.stovemaster.ru/viewtopic.php?p=27393#27393 здесь кое-что посмотрите.
3. Конечно можно. А то, что не из жаропрочной нержавейки, - как-то компенсируется большой толщиной металла. Жаропрочная нержавейка тоже прогорает.
4. Если сделаете щиток или печь - тогда зачем этот шамотный кирпич?
5. Такая комбинация, когда часть печи является аккумулятором тепла для "ангары", очень хороша. Только почему отопительно-варочная. Отопительная лучше сжигает дрова и компактнее.[/quote
А как вы считаете хватит ли для отопления нашего дома комбинации ангары со считком и кожухом для подачи теплого воздуха на второй этаж.Просто без опыта кладки боимся с полноценной печью не справимся.Нужно отопить 30м кв внизу.и 22 на верху.домик пмж.Низ бревно 30 см+5см урса+имитация бруса снаружи и фальгоизол с вагонкой внутри.Верх 15 см роквул+5мм фальгоизол и вагонка.Пол 15см роквул.
|
|
|
|
  |
 |
Валентин Стрибук

Зарегистрирован: Чт 17 Июль 2008, 18:53
Сообщения: 636
Регион: Москва
|
Добавлено:
Чт 24 Ноябрь 2011, 08:47
|
  |
Для ПМЖ надо однозначно делать печь полноценную, а Ангара как камин для удовольствия и для тепловой добавки в большие холода. Ибо железные печи вредны для мест с постоянным пребыванием людей. ПМЖ- это не строительная бытовка.
|
_________________ 9164865048@mail.ru ... Вернём русскую печь в Россию через барбекю
|
|
     |
 |
верамихайловна
Зарегистрирован: Пн 26 Сентябрь 2011, 20:41
Сообщения: 80
Регион: гжель
|
Добавлено:
Пн 28 Ноябрь 2011, 20:11
|
  |
| Валентин Стрибук писал(а): |
| Для ПМЖ надо однозначно делать печь полноценную, а Ангара как камин для удовольствия и для тепловой добавки в большие холода. Ибо железные печи вредны для мест с постоянным пребыванием людей. ПМЖ- это не строительная бытовка. |
Вот нарисовали такую конструкцию.Если не трудно посмотрите пожалуйста правильно ли сложена труба.Как разделить на слои не догадались.Если надо сфотографируем порядовки.И еще несколько вопросов.
1 Правильно ли выбрано сечение каналов.
2 Нужно ли конвекционное окно в нижней части.
3 Из чего лучше сделать кожухи.Можно ли из гипсокартона.
4 Хотелось бы толщину щитка в 1.5 кирпича.Можно ли так или конструкция будет неустойчива и надо в два.
5 Можно ли на гипсокартон наклеивать плитку.
|
| Описание: |
|
| Размер файла: |
21.58 КБ |
| Просмотров: |
985 раз(а) |

|
| Описание: |
|
 Скачать |
| Название файла: |
Ангара плюс щиток.rar |
| Размер файла: |
271.41 КБ |
| Скачено: |
514 раз(а) |
|
|
  |
 |
Валентин Стрибук

Зарегистрирован: Чт 17 Июль 2008, 18:53
Сообщения: 636
Регион: Москва
|
Добавлено:
Вт 29 Ноябрь 2011, 08:38
|
  |
| верамихайловна писал(а): |
Вот нарисовали такую конструкцию.Если не трудно посмотрите пожалуйста правильно ли сложена труба.Как разделить на слои не догадались.Если надо сфотографируем порядовки.И еще несколько вопросов.
1 Правильно ли выбрано сечение каналов.
2 Нужно ли конвекционное окно в нижней части.
3 Из чего лучше сделать кожухи.Можно ли из гипсокартона.
4 Хотелось бы толщину щитка в 1.5 кирпича.Можно ли так или конструкция будет неустойчива и надо в два.
5 Можно ли на гипсокартон наклеивать плитку. |
Без слоёв не знаю, как заглянуть внутрь. Здесь на форуме много по скетчупу - делают всё в "0" слое, потом назначают слои с именами: "ряд-2" и т.д.
Нарушения правила 380см до дыма берите на себя, слово "правильно" ни за что не скажу, как правильно я показывал.
1. Сечения каналов приемлемы.
2. Думаю, не надо его городить в щитке, лучше уж сверху разделки такое же, как сделано снизу разделки.
3. Кожухи - это в смысле облицевать трубу? Над камином из гипсокартона делают, но мне кажется, лучше из гипсоволокна (ГВЛ).
4. Можно и полтора кирпича. Мощность щитка будет небольшая. Отопительные печи при двух топках в сутки выдают мощность 500вт с 1м2.
5. Везде клеят.
|
_________________ 9164865048@mail.ru ... Вернём русскую печь в Россию через барбекю
|
|
     |
 |
верамихайловна
Зарегистрирован: Пн 26 Сентябрь 2011, 20:41
Сообщения: 80
Регион: гжель
|
Добавлено:
Вт 29 Ноябрь 2011, 19:43
|
  |
| Валентин Стрибук писал(а): |
| верамихайловна писал(а): |
Вот нарисовали такую конструкцию.Если не трудно посмотрите пожалуйста правильно ли сложена труба.Как разделить на слои не догадались.Если надо сфотографируем порядовки.И еще несколько вопросов.
1 Правильно ли выбрано сечение каналов.
2 Нужно ли конвекционное окно в нижней части.
3 Из чего лучше сделать кожухи.Можно ли из гипсокартона.
4 Хотелось бы толщину щитка в 1.5 кирпича.Можно ли так или конструкция будет неустойчива и надо в два.
5 Можно ли на гипсокартон наклеивать плитку. |
Без слоёв не знаю, как заглянуть внутрь. Здесь на форуме много по скетчупу - делают всё в "0" слое, потом назначают слои с именами: "ряд-2" и т.д.
Нарушения правила 380см до дыма берите на себя, слово "правильно" ни за что не скажу, как правильно я показывал.
1. Сечения каналов приемлемы.
2. Думаю, не надо его городить в щитке, лучше уж сверху разделки такое же, как сделано снизу разделки.
3. Кожухи - это в смысле облицевать трубу? Над камином из гипсокартона делают, но мне кажется, лучше из гипсоволокна (ГВЛ).
4. Можно и полтора кирпича. Мощность щитка будет небольшая. Отопительные печи при двух топках в сутки выдают мощность 500вт с 1м2.
5. Везде клеят. |
Нарисовали порядовки трубы.Посмотрите пожалуйста.Вроде как вы и показывали.Мощность щитка получается (0.52+0.52+1.16+1.16)*1.85=6.216*0.5=3кв.Ангара стоит в кухне=13 м кв,щиток выходит в комнату=13 м кв.Наверное должно хватить для комнаты.И еще вопрос не дадите ссылку.Как сделать разделку между печью и перегородкой..Нигде не нашли.
|
| Описание: |
|
| Размер файла: |
23.7 КБ |
| Просмотров: |
1036 раз(а) |

|
|
|
  |
 |
Валентин Стрибук

Зарегистрирован: Чт 17 Июль 2008, 18:53
Сообщения: 636
Регион: Москва
|
Добавлено:
Вт 29 Ноябрь 2011, 22:44
|
  |
Примерно так, только у меня под трубой канал более широкий с самого низа, и стенки по толщине везде 12кирпича.
3 квт не будет, т.к. щиток прогревается меньше, чем полноценная печь, градусов до 40-45. Думаю, мощность будет 1.5-2 квт.
Разделка - встык кирпич на кирпич, иногда вбивая в печь гвоздик для связки.
Можно из печи вытаскивать наружу кусочек армирующей сетки для связки с будущей разделкой.
Раствор - глиняный с добавкой цемента. Со стороны бруса раскладки, немного "наезжающие" на кирпич, чтобы держать на всякий случай.. Внутри базальтовая вата (картон).
|
_________________ 9164865048@mail.ru ... Вернём русскую печь в Россию через барбекю
| Описание: |
|
| Размер файла: |
180.2 КБ |
| Просмотров: |
1107 раз(а) |

|
|
|
     |
 |
|
|
|
Следующая тема
Предыдущая тема
Вы не можете начинать темы Вы не можете отвечать на сообщения Вы не можете редактировать свои сообщения Вы не можете удалять свои сообщения Вы не можете голосовать в опросах Вы не можете добавлять приложения в этом форуме Вы можете скачивать файлы в этом форуме
|
|