| Автор |
Сообщение
|
Виктор_А

Зарегистрирован: Чт 6 Январь 2011, 17:01
Сообщения: 850
Регион: МО г.Серпухов
|
Добавлено:
Ср 19 Декабрь 2012, 17:53
|
  |
1 Нет необходимости.
2 Чем толще, тем дольше прослужит.
|
|
|
|
    |
 |
Alex157
Зарегистрирован: Пн 17 Декабрь 2012, 07:46
Сообщения: 26
Регион: Владимирская обл
|
Добавлено:
Ср 19 Декабрь 2012, 18:00
|
  |
Спасибо
Если наступит весна, сварю
|
|
|
|
  |
 |
Alex157
Зарегистрирован: Пн 17 Декабрь 2012, 07:46
Сообщения: 26
Регион: Владимирская обл
|
Добавлено:
Чт 20 Декабрь 2012, 15:16
|
  |
Первая сварка сложной конструкции. Подскажите, где не правильно
Прикинул так:
1. обварить печку 50-ым уголком, (косяк на рисунке удалил, уголок был нарисован неправильно)
2. снять с печки раму, обварить листом, получится корпус.
3. обварить уголком корпус по аналогии с печкой, снять получившуюся раму
4. сварить усеченную пирамиду
5. основание пирамиды сварить с рамой 3 (буртик на рисунке был лишний).
6. лежит на сварочном столе 5, надевается корпус и приваривается отсекатель.
Отсекатель из трех полос. Примерил в сборе с корпусом, прихватил. Снял корпус, обварил.
7. 1/2 для ВВ и угол 120 прихватить, в процессе сварки отрезать лишнее установив больший ток.
Может где не так?
Что-то большое получилось корыто.
Может уменьшить, сделав дно не 230х300, а к примеру 200х270? По принципу лучше меньше, да лучше. Задача, как ее понимаю раскалить камни, но не обязательно 120кг, достаточно 60 (для одного). Прав или ошибаюсь?
|
| Описание: |
|
| Размер файла: |
46.65 КБ |
| Просмотров: |
836 раз(а) |

|
|
|
  |
 |
Виктор_А

Зарегистрирован: Чт 6 Январь 2011, 17:01
Сообщения: 850
Регион: МО г.Серпухов
|
Добавлено:
Чт 20 Декабрь 2012, 18:36
|
  |
Зависит от объёма парной, а не от количества принимающих процедуру. Каналы для ДГ, как говорится, "то что доктор прописал".
|
|
|
|
    |
 |
Alex157
Зарегистрирован: Пн 17 Декабрь 2012, 07:46
Сообщения: 26
Регион: Владимирская обл
|
Добавлено:
Чт 20 Декабрь 2012, 19:02
|
  |
| Виктор_А писал(а): |
| Зависит от объёма парной, а не от количества принимающих процедуру. Каналы для ДГ, как говорится, "то что доктор прописал". |
Размер парной.
Прочитал, что самый минимум 2,5х2,5х2,3м. Такую и буду делать. Каменка будет целиком в парной.
|
|
|
|
  |
 |
Alex157
Зарегистрирован: Пн 17 Декабрь 2012, 07:46
Сообщения: 26
Регион: Владимирская обл
|
Добавлено:
Пт 21 Декабрь 2012, 12:03
|
  |
Нагрев до малинового на фото.
На его основании такой вариант.
1. нарастить печку в высоту шамотом ША-7 (230х124х75). усилить кладку штырями по аналогии с нагелями, применяемыми в кладке деревянного бруса
2. поставить чугунную плиту, оставив самую большую конфорку (185-165мм)
3. на конфорку поставить трубу d180 с толщиной стенки 8мм
4. переход на диаметр 100.
5. в барабане от стиральной машины (нерж.) удалить боковые стенки, заложить
чугун и камни.
Как считаете?
|
| Описание: |
|
| Размер файла: |
50.44 КБ |
| Просмотров: |
538 раз(а) |

|
| Описание: |
|
| Размер файла: |
28.15 КБ |
| Просмотров: |
829 раз(а) |

|
|
|
  |
 |
Виктор_А

Зарегистрирован: Чт 6 Январь 2011, 17:01
Сообщения: 850
Регион: МО г.Серпухов
|
Добавлено:
Пт 21 Декабрь 2012, 13:03
|
  |
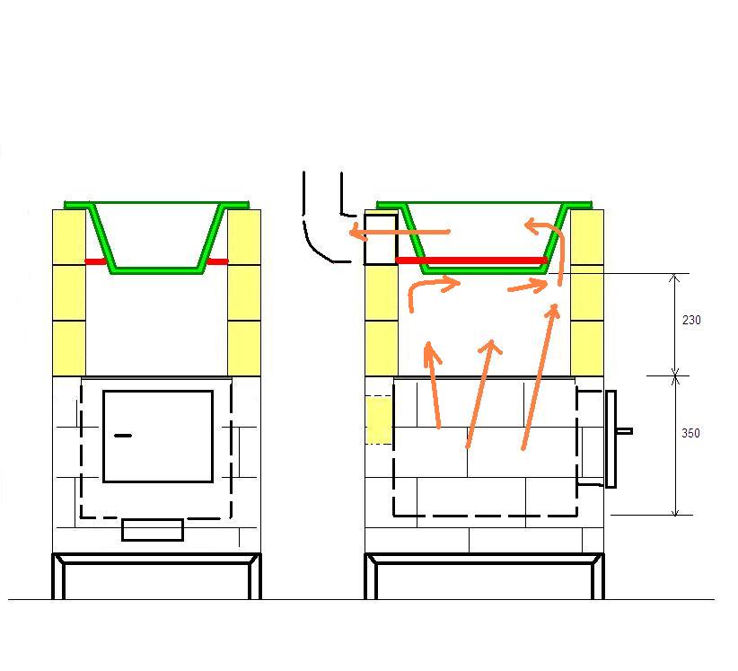
Для информации. В Вашем варианте всё в трубу. Вот схема печи с Вашего фото.
|
| Описание: |
|
| Размер файла: |
109.27 КБ |
| Просмотров: |
851 раз(а) |

|
|
|
    |
 |
Alex157
Зарегистрирован: Пн 17 Декабрь 2012, 07:46
Сообщения: 26
Регион: Владимирская обл
|
Добавлено:
Пт 21 Декабрь 2012, 13:56
|
  |
Понятно. Спасибо за просвещение
Тогда конечно назад.
А как Вам идея увеличить высоту таким образом, с нагелями? Всего три ряда.
Не надо будет обкладывать кирпичом. Железную часть сварить, как на первом варианте.
|
| Описание: |
|
| Размер файла: |
39.59 КБ |
| Просмотров: |
851 раз(а) |

|
|
|
  |
 |
Alex157
Зарегистрирован: Пн 17 Декабрь 2012, 07:46
Сообщения: 26
Регион: Владимирская обл
|
Добавлено:
Сб 22 Декабрь 2012, 14:25
|
  |
Видимо надо оставить попытки повторить покупной вариант. Получится заведомо хуже.
Там все компактно, для экономии места, малиновый металл - это конечно минус, но за компакт надо чем-то расплачиваться.
У меня же проблемы экономии места нет. Тем более, что буду собирать стены и ставить дверь после того, как установлю печку.
Разнесу каменку и обогрев парной по отдельности.
Первая часть - каменка. Вторая будет щиток обогрева, о нем потом.
Доработка моей печки будет заключаться только в удалении чугунной плиты. На ее место сварю колпак.
Что скажете о таком варианте?
|
| Описание: |
|
| Размер файла: |
43.22 КБ |
| Просмотров: |
596 раз(а) |

|
|
|
  |
 |
Alex157
Зарегистрирован: Пн 17 Декабрь 2012, 07:46
Сообщения: 26
Регион: Владимирская обл
|
Добавлено:
Пн 7 Январь 2013, 08:41
|
  |
Всех со светлым праздником ХР
Стал прикидывать материал.
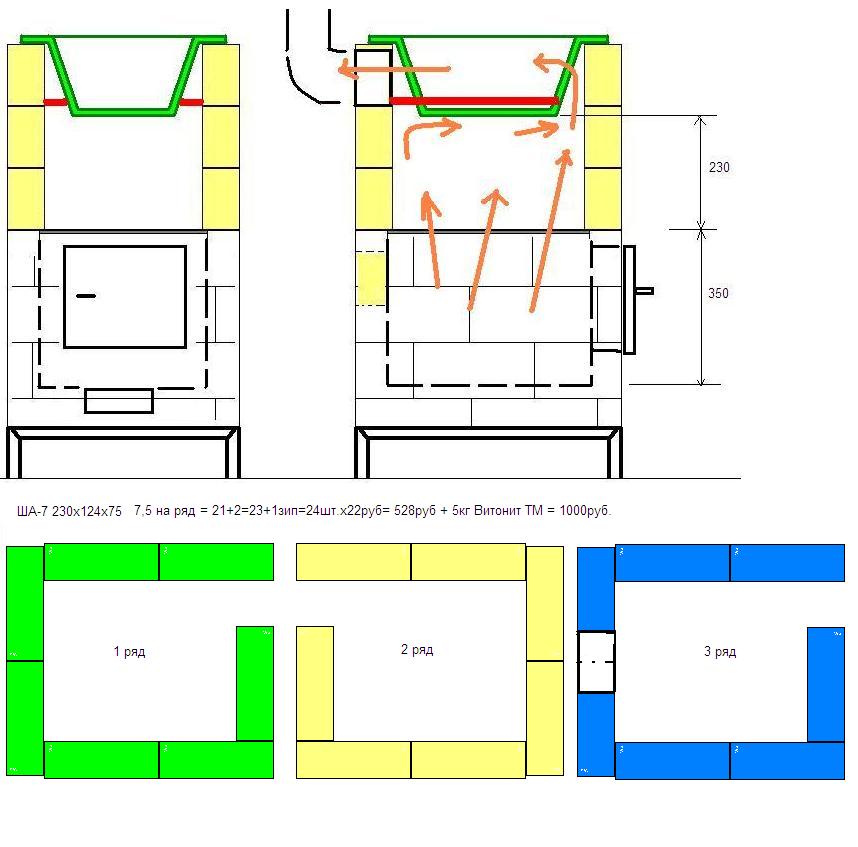
Что-то толстое железо негуманно стоит. Может такой вариант?
Шамот на ребро будет держать Ветонит ТМ?
|
| Описание: |
|
| Размер файла: |
46.79 КБ |
| Просмотров: |
812 раз(а) |

|
|
|
  |
 |
pe4ka
Зарегистрирован: Ср 23 Сентябрь 2009, 17:36
Сообщения: 1918
Регион: Туймазы
|
Добавлено:
Пн 7 Январь 2013, 18:38
|
  |
У шведов по черному топят и как в кафе вытяжной зонт ставят.Ты зонт с задвижкой сделай и когда чистое горение без дыма по русски по черному топи-получишь инфракрасную теплую камеру- по черному не гниет баня.Только механизм нагрева воды надо прикинуть....
|
_________________ окажу консультации по кладке печей каминов и их ремонту д51055 код8-34782 сот 8-9173752622 г.Туймазы башкирия
|
|
   |
 |
Alex157
Зарегистрирован: Пн 17 Декабрь 2012, 07:46
Сообщения: 26
Регион: Владимирская обл
|
Добавлено:
Пн 7 Январь 2013, 23:26
|
  |
|
  |
 |
Alex157
Зарегистрирован: Пн 17 Декабрь 2012, 07:46
Сообщения: 26
Регион: Владимирская обл
|
Добавлено:
Вт 8 Январь 2013, 02:01
|
  |
Не знаю, что ответить. Вроде человек ответил и неудобно как-то...однако мне не надо про то, что ответил.
Мой вопрос - Ветонит ТМ удержит три ряда шамота на ребро?
|
|
|
|
  |
 |
Евгений Колчин

Зарегистрирован: Чт 3 Октябрь 2002, 06:26
Сообщения: 10144
Регион: Москва
|
Добавлено:
Вт 8 Январь 2013, 11:33
|
  |
| Alex157 писал(а): |
| Ветонит ТМ удержит три ряда шамота на ребро? |
удержит ... если еще и перевязка стенок будет
|
_________________ ************************************
|
|
      |
 |
Alex157
Зарегистрирован: Пн 17 Декабрь 2012, 07:46
Сообщения: 26
Регион: Владимирская обл
|
Добавлено:
Вт 8 Январь 2013, 12:29
|
  |
| Евгений Колчин писал(а): |
| Alex157 писал(а): |
| Ветонит ТМ удержит три ряда шамота на ребро? |
удержит ... если еще и перевязка стенок будет |
Перевязка конечно будет.
Вот схемка с порядовкой.
Но т.к. ни разу не делал, прошу поправить, если что не так...
Смущает, что выход какой-то невдалый (в третьем ряду). Не принципиально, если сместить его чуть ниже? Тогда перевязка будет нормальная?
Или правильней во втором ряду положить по центру, а по краям напилить четвертинок?
|
| Описание: |
|
| Размер файла: |
71.31 КБ |
| Просмотров: |
848 раз(а) |

|
|
|
  |
 |
Alex157
Зарегистрирован: Пн 17 Декабрь 2012, 07:46
Сообщения: 26
Регион: Владимирская обл
|
Добавлено:
Вт 8 Январь 2013, 21:14
|
  |
Отвечу уважаемому pe4ka про каменку по черному. Я ее боюсь это раз, второе - если в холодное время придется заночевать на даче, а свет вырубили, то спасусь от холода переспав в парилке (отопление дачи электроконвекторами).
Третье, и пожалуй самое главное в баньке по-белому - топить можно мусором, коего дофига скапливается на дачном участке.
Песню Высоцкого знаю. "Протопи...ты мне баньку по-белому, я от белого света отвык..."
Написал, что положу на Витонит ТМ. Но не спросил, правильно ли именно его применять в кладке на ребро?
|
|
|
|
  |
 |
Alex157
Зарегистрирован: Пн 17 Декабрь 2012, 07:46
Сообщения: 26
Регион: Владимирская обл
|
Добавлено:
Сб 31 Август 2013, 00:31
|
  |
| Виктор_А писал(а): |
| Зависит от объёма парной, а не от количества принимающих процедуру. Каналы для ДГ, как говорится, "то что доктор прописал". |
Парная 2,4х2,4м. Потолок наклонный от 1,75 до 2,25м.
Хочу доработать печку до каменки.
Ширина и глубина 460, высота 400. Масса 80кг.
Щели ликвидирую витонитом.
Будет результат?
|
| Описание: |
|
| Размер файла: |
472.06 КБ |
| Просмотров: |
742 раз(а) |

|
| Описание: |
|
| Размер файла: |
76.97 КБ |
| Просмотров: |
729 раз(а) |

|
| Описание: |
|
| Размер файла: |
69.13 КБ |
| Просмотров: |
747 раз(а) |

|
| Описание: |
|
| Размер файла: |
87.68 КБ |
| Просмотров: |
765 раз(а) |

|
|
|
  |
 |
Александр-Ижевск

Зарегистрирован: Вт 23 Июль 2013, 12:04
Сообщения: 59
Регион: Ижевск
|
Добавлено:
Пн 7 Октябрь 2013, 16:14
|
  |
Здраствуйте такую печь буржуйку было бы хорошо облицевать керамическим кирпичем под расшивку для большей теплоемкости и пожаробезопасности, вот видео с ю туба этим летом делал что то похожее времени ушло часов 20 и кирпича на 3 тыс. руб. https://www.youtube.com/watch?v=KQxfi1FeYUQ
|
|
|
|
   |
 |
|
|