 |
|
 |
| Автор |
Сообщение
|
optina2008
Зарегистрирован: Вт 17 Январь 2017, 19:53
Сообщения: 9
Регион: москва
|
Добавлено:
Вт 17 Январь 2017, 20:16
|
  |
Имеем фундамент, 8.5х8.5. весной поднимаем стены, 2 этажа, в коньке 8800. Фундамент под печь залит. Необходима консультация и проект печи с последующей реализацией. Нужно простую надежную конструкцию. Можно чтобы было видно огонь. Но не обязательно.
Хотелось бы понять на каком этапе вообще начинать кладку печи.
|
| Описание: |
|
| Размер файла: |
183.98 КБ |
| Просмотров: |
531 раз(а) |

|
| Описание: |
|
| Размер файла: |
39.89 КБ |
| Просмотров: |
531 раз(а) |

|
| Описание: |
|
| Размер файла: |
62.82 КБ |
| Просмотров: |
556 раз(а) |

|
|
|
  |
 |
Андрей_Алексеевич

Зарегистрирован: Пн 13 Декабрь 2010, 19:17
Сообщения: 5990
Регион: малая родина Павлова, Скобелева, Циолковского, Уткиных и др.
|
Добавлено:
Вт 17 Январь 2017, 21:54
|
  |
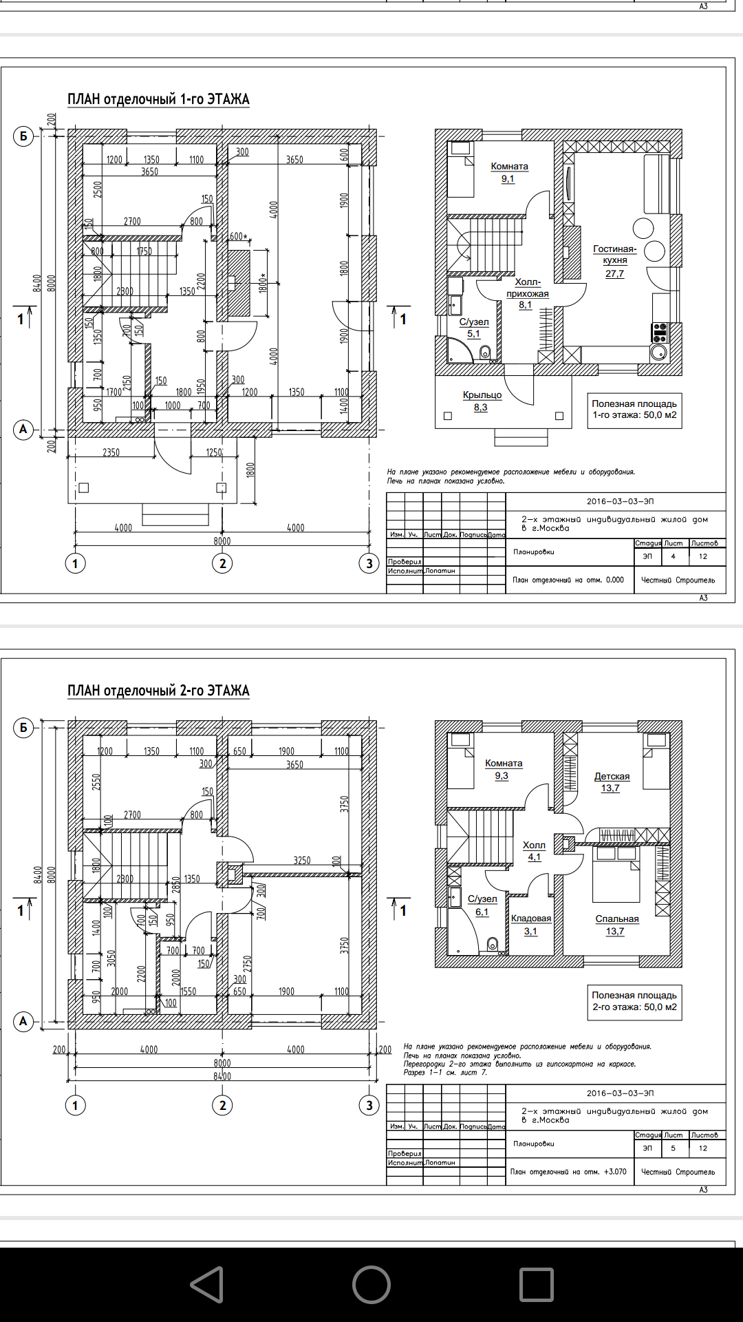
Для ответов надо бы выложить поэтажную планировку новостройки.
|
_________________ Печник - милостью и промыслом Божиим.
Печное отопление частного дома и т.п., авторское сопровождение проектов, наставничество в т.ч. дистанционное, партнёрство в кладке печей.
89106130763 МТС
andrejka61@mail.ru
andrej.kuzmischev@yandex.ru
|
|
   |
 |
optina2008
Зарегистрирован: Вт 17 Январь 2017, 19:53
Сообщения: 9
Регион: москва
|
Добавлено:
Ср 18 Январь 2017, 07:22
|
  |
| Андрей_Алексеевич писал(а): |
| Для ответов надо бы выложить поэтажную планировку новостройки. |
Хорошо
|
| Описание: |
|
| Размер файла: |
366.37 КБ |
| Просмотров: |
586 раз(а) |

|
|
|
  |
 |
optina2008
Зарегистрирован: Вт 17 Январь 2017, 19:53
Сообщения: 9
Регион: москва
|
Добавлено:
Ср 18 Январь 2017, 07:29
|
  |
| optina2008 писал(а): |
| Андрей_Алексеевич писал(а): |
| Для ответов надо бы выложить поэтажную планировку новостройки. |
Хорошо |
Хотелось бы подумать о том, чтобы в печи что-то нагревалось и грело батареи, этим вопросом не занимался поэтому с терминологией проблемы. Прошу проститт
|
|
|
|
  |
 |
Шура

Зарегистрирован: Чт 8 Январь 2009, 20:09
Сообщения: 4171
Регион: Москва - Тамбов
|
Добавлено:
Ср 18 Январь 2017, 09:14
|
  |
| optina2008 писал(а): |
Хотелось бы подумать о том, чтобы в печи что-то нагревалось и грело батареи, этим вопросом не занимался поэтому с терминологией проблемы. Прошу проститт |
При такой планировке, без этого и не обойтись...
|
|
|
|
   |
 |
optina2008
Зарегистрирован: Вт 17 Январь 2017, 19:53
Сообщения: 9
Регион: москва
|
Добавлено:
Ср 18 Январь 2017, 10:50
|
  |
| Шура писал(а): |
| optina2008 писал(а): |
Хотелось бы подумать о том, чтобы в печи что-то нагревалось и грело батареи, этим вопросом не занимался поэтому с терминологией проблемы. Прошу проститт |
При такой планировке, без этого и не обойтись... |
Посоветуйте с чего начать? И как реализовать подобный проект? Может кто-то уже готов сотрудничать начать
|
|
|
|
  |
 |
Шура

Зарегистрирован: Чт 8 Январь 2009, 20:09
Сообщения: 4171
Регион: Москва - Тамбов
|
Добавлено:
Ср 18 Январь 2017, 11:34
|
  |
| optina2008 писал(а): |
Посоветуйте с чего начать? |
С консультаций со специалистами(инженерами, строителями и т.п.). С выбора подходящего проекта.
| optina2008 писал(а): |
И как реализовать подобный проект? |
Существует несколько вариантов реализации:
1. самостоятельная реализация.
2. нанятым исполнителем.
|
|
|
|
   |
 |
Андрей_Алексеевич

Зарегистрирован: Пн 13 Декабрь 2010, 19:17
Сообщения: 5990
Регион: малая родина Павлова, Скобелева, Циолковского, Уткиных и др.
|
Добавлено:
Ср 18 Январь 2017, 11:57
|
  |
| optina2008 писал(а): |
| Андрей_Алексеевич писал(а): |
| Для ответов надо бы выложить поэтажную планировку новостройки. |
Хорошо |
В этих размерах - 180х(60+30)см., один этаж, камино-печью даже с интегрированным регистром Вы ДВА ЭТАЖА не нагреете, разве что обклеив потолок-пол-стены ПЕНОПЛЕКСом-100 в 2-ва слоя
|
_________________ Печник - милостью и промыслом Божиим.
Печное отопление частного дома и т.п., авторское сопровождение проектов, наставничество в т.ч. дистанционное, партнёрство в кладке печей.
89106130763 МТС
andrejka61@mail.ru
andrej.kuzmischev@yandex.ru
|
|
   |
 |
optina2008
Зарегистрирован: Вт 17 Январь 2017, 19:53
Сообщения: 9
Регион: москва
|
Добавлено:
Ср 18 Январь 2017, 15:34
|
  |
| Андрей_Алексеевич писал(а): |
| optina2008 писал(а): |
| Андрей_Алексеевич писал(а): |
| Для ответов надо бы выложить поэтажную планировку новостройки. |
Хорошо |
В этих размерах - 180х(60+30)см., один этаж, камино-печью даже с интегрированным регистром Вы ДВА ЭТАЖА не нагреете, разве что обклеив потолок-пол-стены ПЕНОПЛЕКСом-100 в 2-ва слоя  |
Так печь это как бы резервное отопление на случай отключения электричества. А так конечно будет скорей электрическое отопление. Понятно что такая печь не протопит такой дом
|
|
|
|
  |
 |
optina2008
Зарегистрирован: Вт 17 Январь 2017, 19:53
Сообщения: 9
Регион: москва
|
Добавлено:
Ср 18 Январь 2017, 15:36
|
  |
| Шура писал(а): |
| optina2008 писал(а): |
Посоветуйте с чего начать? |
С консультаций со специалистами(инженерами, строителями и т.п.). С выбора подходящего проекта.
| optina2008 писал(а): |
И как реализовать подобный проект? |
Существует несколько вариантов реализации:
1. самостоятельная реализация.
2. нанятым исполнителем. |
Цель найти инженера строителя, реализовать проект нанятыми специалистами
|
|
|
|
  |
 |
internet_pechnik
Зарегистрирован: Вт 9 Апрель 2013, 19:51
Сообщения: 1892
Регион: belarus
|
Добавлено:
Ср 18 Январь 2017, 17:50
|
  |
| optina2008 писал(а): |
| Андрей_Алексеевич писал(а): |
| optina2008 писал(а): |
| Андрей_Алексеевич писал(а): |
| Для ответов надо бы выложить поэтажную планировку новостройки. |
Хорошо |
В этих размерах - 180х(60+30)см., один этаж, камино-печью даже с интегрированным регистром Вы ДВА ЭТАЖА не нагреете, разве что обклеив потолок-пол-стены ПЕНОПЛЕКСом-100 в 2-ва слоя  |
Так печь это как бы резервное отопление на случай отключения электричества. А так конечно будет скорей электрическое отопление. Понятно что такая печь не протопит такой дом |
В таком случае постройте мощную каминопечь где и нарисовали. Весь дом не отопит но при форсможоре позволит оставаться в доме а не выселяться в разгар зимы по родственникам. Можно протапливать для экономии эл-ва, или как просто камин для эстетики или подогреть дом в холодное лето. Если ее вставить как на рисунке спиной в заднюю стену то и выступать она будет немного. те.ее простаивание не будет вас раздражать Каминопечь это печь по сути и устройству, но благодаря большой дверке с стеклом и всяким там выступам- полкам выглядит как камин. Печь можно строить как будет крыша неутепленная и окна с входной дверью.Очень желателен пол на низу, хотя бы черновой
|
|
|
|
  |
 |
stas

Зарегистрирован: Вт 29 Январь 2008, 22:53
Сообщения: 916
Регион: Москва
|
Добавлено:
Ср 18 Январь 2017, 21:02
|
  |
В данной планировке можно кирпичной теплоемкой печью полноценно отопить практически весь дом (кроме санузлов), при этом печь можно будет использовать в качестве основного/единственного источника отопления. В печи рекомендуется сделать застекленную дверцу топливника, хлебную камеру (кирпичную духовку) для приготовления различных блюд, низкую лежанку, а также можно сделать открытый камин.
|
|
|
|
    |
 |
optina2008
Зарегистрирован: Вт 17 Январь 2017, 19:53
Сообщения: 9
Регион: москва
|
Добавлено:
Ср 18 Январь 2017, 23:08
|
  |
| stas писал(а): |
| В данной планировке можно кирпичной теплоемкой печью полноценно отопить практически весь дом (кроме санузлов), при этом печь можно будет использовать в качестве основного/единственного источника отопления. В печи рекомендуется сделать застекленную дверцу топливника, хлебную камеру (кирпичную духовку) для приготовления различных блюд, низкую лежанку, а также можно сделать открытый камин. |
Если это все реализовать печь получиться дороже дома. На рисунке симпотично, сколько такая под ключ будет стоить, внутрь я так понимаю надо отдельную топку какуюто?
|
|
|
|
  |
 |
optina2008
Зарегистрирован: Вт 17 Январь 2017, 19:53
Сообщения: 9
Регион: москва
|
Добавлено:
Ср 18 Январь 2017, 23:11
|
  |
| internet_pechnik писал(а): |
| optina2008 писал(а): |
| Андрей_Алексеевич писал(а): |
| optina2008 писал(а): |
| Андрей_Алексеевич писал(а): |
| Для ответов надо бы выложить поэтажную планировку новостройки. |
Хорошо |
В этих размерах - 180х(60+30)см., один этаж, камино-печью даже с интегрированным регистром Вы ДВА ЭТАЖА не нагреете, разве что обклеив потолок-пол-стены ПЕНОПЛЕКСом-100 в 2-ва слоя  |
Так печь это как бы резервное отопление на случай отключения электричества. А так конечно будет скорей электрическое отопление. Понятно что такая печь не протопит такой дом |
В таком случае постройте мощную каминопечь где и нарисовали. Весь дом не отопит но при форсможоре позволит оставаться в доме а не выселяться в разгар зимы по родственникам. Можно протапливать для экономии эл-ва, или как просто камин для эстетики или подогреть дом в холодное лето. Если ее вставить как на рисунке спиной в заднюю стену то и выступать она будет немного. те.ее простаивание не будет вас раздражать Каминопечь это печь по сути и устройству, но благодаря большой дверке с стеклом и всяким там выступам- полкам выглядит как камин. Печь можно строить как будет крыша неутепленная и окна с входной дверью.Очень желателен пол на низу, хотя бы черновой |
Хочу такую.....
|
|
|
|
  |
 |
stas

Зарегистрирован: Вт 29 Январь 2008, 22:53
Сообщения: 916
Регион: Москва
|
Добавлено:
Чт 19 Январь 2017, 01:12
|
  |
| optina2008 писал(а): |
| stas писал(а): |
| В данной планировке можно кирпичной теплоемкой печью полноценно отопить практически весь дом (кроме санузлов), при этом печь можно будет использовать в качестве основного/единственного источника отопления. В печи рекомендуется сделать застекленную дверцу топливника, хлебную камеру (кирпичную духовку) для приготовления различных блюд, низкую лежанку, а также можно сделать открытый камин. |
Если это все реализовать печь получиться дороже дома. На рисунке симпотично, сколько такая под ключ будет стоить, внутрь я так понимаю надо отдельную топку какуюто? |
Нет, такая печь (как я предложил) не будет дороже, чем стоит весь дом; да и печное отопление продолжает оставаться самым дешевым по сравнению с другими видами отопления. Отапливать электричеством будет дороже чем стоит весь дом, и весьма скоро. Электрическое отопление относится к самым дорогим видам отопления.
Печь на картинке не вполне подходит в данную планировку, так как она отопит только холл-прихожую и гостиную-кухню, хотя сделать ее можно - если иметь в виду отопление только этих двух помещений. Безотносительно к данной теме - вставлять внутрь кирпичной теплоемкой печи отдельную чугунную каминную топку не надо, если Вы это имели в виду. Топливник (внутри) печи футеруется шамотным кирпичом.
Более конкретное обсуждение, в том числе и стоимости печи (работа+материал) лучше перенести в личные сообщения.
|
|
|
|
    |
 |
internet_pechnik
Зарегистрирован: Вт 9 Апрель 2013, 19:51
Сообщения: 1892
Регион: belarus
|
Добавлено:
Чт 19 Январь 2017, 05:58
|
  |
| stas писал(а): |
| В данной планировке можно кирпичной теплоемкой печью полноценно отопить практически весь дом (кроме санузлов), при этом печь можно будет использовать в качестве основного/единственного источника отопления. н. |
да вы волшебник.
|
|
|
|
  |
 |
Dreamdavids
Зарегистрирован: Сб 29 Октябрь 2011, 07:18
Сообщения: 1105
Регион: Пермь
|
Добавлено:
Чт 19 Январь 2017, 07:30
|
  |
| internet_pechnik писал(а): |
| stas писал(а): |
| В данной планировке можно кирпичной теплоемкой печью полноценно отопить практически весь дом (кроме санузлов), при этом печь можно будет использовать в качестве основного/единственного источника отопления. н. |
да вы волшебник.  |
Так там же с лежанкой А её можно расстянуть на полдома И никакой магии
|
_________________ +79222445758 Владимир
|
|
  |
 |
internet_pechnik
Зарегистрирован: Вт 9 Апрель 2013, 19:51
Сообщения: 1892
Регион: belarus
|
Добавлено:
Чт 19 Январь 2017, 09:18
|
  |
где там какая лежанка? отмотал назад-нигде автор о ней и не заикался.
|
|
|
|
  |
 |
stas

Зарегистрирован: Вт 29 Январь 2008, 22:53
Сообщения: 916
Регион: Москва
|
Добавлено:
Чт 19 Январь 2017, 13:43
|
  |
Это я рекомендовал лежанку в печь, а также другие агрегаты.
Вообще здесь заказчику, если он решится сделать многофункциональную теплоемкую печь, желательно договориться о приезде печника на объект до начала строительства стен, и все посмотреть и обговорить на месте. Заодно печник представит фото своих печей на разных этапах их строительства, другие доказательства своего мастерства. Обычно я не настаиваю на этом, наоборот - говорю, что все можно предварительно обговорить и посчитать дистанционно - по интернету. Но в данном случае лучше чтобы печник приехал на объект.
|
|
|
|
    |
 |
stas

Зарегистрирован: Вт 29 Январь 2008, 22:53
Сообщения: 916
Регион: Москва
|
Добавлено:
Чт 19 Январь 2017, 14:04
|
  |
| internet_pechnik писал(а): |
| stas писал(а): |
| В данной планировке можно кирпичной теплоемкой печью полноценно отопить практически весь дом (кроме санузлов), при этом печь можно будет использовать в качестве основного/единственного источника отопления. н. |
да вы волшебник.  |
Спасибо, если это комплимент.
Если же это ирония и попытка сказать, что предложенную мной печь сделать невозможно - это для Вас плохо, а не для меня: это Вас характеризует как человека, который не может сделать такую печь в предложенную планировку. Или хотя бы предложить другой вариант, а не только пихать везде, где только можно, сто раз перерисованную в разных программах и с разным дизайном одну и ту же ходовую конструкцию хлебной печи с каминной дверцей топки. Хотя сама по себе хлебная печь хорошая, - при ее соответствии планировке и теплопотребности помещений, правильном исполнении и эксплуатации. К тому же здесь на форуме можно скачать ее порядовку бесплатно, что хорошо, если денег не хватает, а печь нужна. Также могу подсказать, что размер этой печи можно несколько изменять в ширину и в глубину, тем самым адаптируя печь к конкретному дому.
|
|
|
|
    |
 |
|
|
|
Следующая тема
Предыдущая тема
Вы не можете начинать темы Вы не можете отвечать на сообщения Вы не можете редактировать свои сообщения Вы не можете удалять свои сообщения Вы не можете голосовать в опросах Вы не можете добавлять приложения в этом форуме Вы можете скачивать файлы в этом форуме
|
|