| Автор |
Сообщение
|
Дмитрий РБ
Зарегистрирован: Ср 30 Январь 2019, 13:33
Сообщения: 16
Регион: Беларусь. Витебск
|
Добавлено:
Ср 30 Январь 2019, 16:04
|
  |
День добрый .Нужно мнение профи на печь.Проект взял с этого сайта http://air-hot.ru/index.php/pechiikaminy/otopitelnovarochnyepechi.Проект переработанной РТИК5..Есть ли ухудшающие факторы данной переделки ..Печь нужна с лежанкой и именно сзади.Опыта не много и проект с сайта с описанием очень манит).Заранее спасибо
|
| Описание: |
|
| Размер файла: |
502.4 КБ |
| Просмотров: |
613 раз(а) |

|
| Описание: |
|
| Размер файла: |
503.42 КБ |
| Просмотров: |
633 раз(а) |

|
Последний раз редактировалось: Дмитрий РБ (Ср 30 Январь 2019, 16:08), всего редактировалось 1 раз |
|
  |
 |
Дмитрий РБ
Зарегистрирован: Ср 30 Январь 2019, 13:33
Сообщения: 16
Регион: Беларусь. Витебск
|
Добавлено:
Ср 30 Январь 2019, 16:07
|
  |
И сразу вопрос по данному узлу. Читал на форуме, что тут лучше класть шамот -между плитой и колосником под дверцей,что там очень большая тепловая нагрузка,но не соображу ,как связать шамот и красный кирпич и достаточно ли будет одного ряда..как на (фотона форуме нашёл)
|
| Описание: |
|
| Размер файла: |
87.51 КБ |
| Просмотров: |
607 раз(а) |

|
| Описание: |
|
| Размер файла: |
150.29 КБ |
| Просмотров: |
626 раз(а) |

|
|
|
  |
 |
Андрей_Алексеевич

Зарегистрирован: Пн 13 Декабрь 2010, 19:17
Сообщения: 5908
Регион: малая родина Павлова, Скобелева, Циолковского, Уткиных и др.
|
Добавлено:
Ср 30 Январь 2019, 16:23
|
  |
|
   |
 |
Дмитрий РБ
Зарегистрирован: Ср 30 Январь 2019, 13:33
Сообщения: 16
Регион: Беларусь. Витебск
|
Добавлено:
Ср 30 Январь 2019, 16:31
|
  |
Спасибо за тему!Красота конечно, но места нету столько)
|
|
|
|
  |
 |
Андрей_Алексеевич

Зарегистрирован: Пн 13 Декабрь 2010, 19:17
Сообщения: 5908
Регион: малая родина Павлова, Скобелева, Циолковского, Уткиных и др.
|
Добавлено:
Ср 30 Январь 2019, 16:34
|
  |
так и начните с Плана помещения (с размерами)
|
_________________ Печник - милостью и промыслом Божиим.
Печное отопление частного дома и т.п., авторское сопровождение проектов, наставничество в т.ч. дистанционное, партнёрство в кладке печей.
89106130763 МТС
andrejka61@mail.ru
andrej.kuzmischev@yandex.ru
|
|
   |
 |
Дмитрий РБ
Зарегистрирован: Ср 30 Январь 2019, 13:33
Сообщения: 16
Регион: Беларусь. Витебск
|
Добавлено:
Ср 30 Январь 2019, 16:49
|
  |
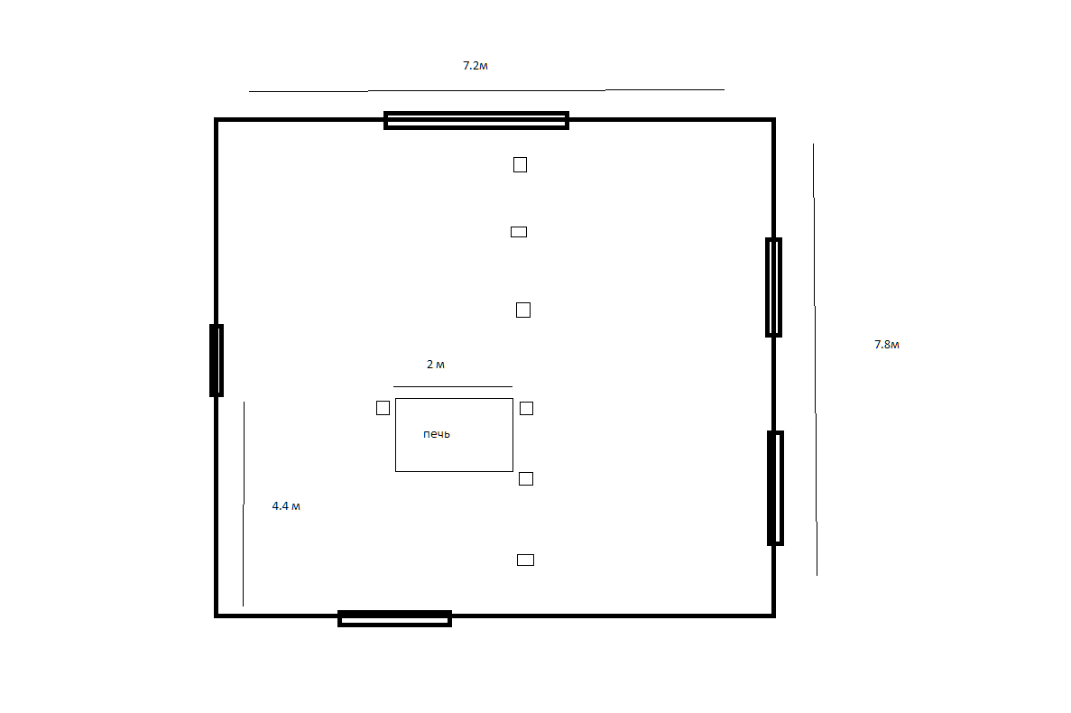
Дом сруб, высота 2.6 .Ширина 7.2 на 7.8..В доме стяжка. Фундамент под печь 1,9 на 1,9 остался от старой печи..балки потолка со временем провисли от опилок (почти 8 метров без опоры это слишком)поэтому посередине поставил опоры
|
| Описание: |
|
| Размер файла: |
22.96 КБ |
| Просмотров: |
604 раз(а) |

|
|
|
  |
 |
Андрей ..

Зарегистрирован: Ср 16 Ноябрь 2011, 07:49
Сообщения: 1161
Регион: Нижегородская обл.
|
Добавлено:
Ср 30 Январь 2019, 17:55
|
  |
Вот есть компактная теплушка...без номеров.
|
| Описание: |
|
| Размер файла: |
216.35 КБ |
| Просмотров: |
646 раз(а) |

|
|
|
    |
 |
Дмитрий РБ
Зарегистрирован: Ср 30 Январь 2019, 13:33
Сообщения: 16
Регион: Беларусь. Витебск
|
Добавлено:
Ср 30 Январь 2019, 18:28
|
  |
Спасибо за идею! Не подойдет из-за топки сбоку(стена не даст) и уже куплено литьё на проект из первого поста..одна дверка LK324 далась с боем) в Витебске тяжело с этим..блок ша 94 найти не могу..только из Минска тянуть..
..а есть описание какое на эту печь и рядовка?
|
|
|
|
  |
 |
Андрей ..

Зарегистрирован: Ср 16 Ноябрь 2011, 07:49
Сообщения: 1161
Регион: Нижегородская обл.
|
Добавлено:
Ср 30 Январь 2019, 18:47
|
  |
Эта дверка встанет в устье так же, не пропадёт. Всё остальное наверно тоже подойдёт. Эта теплушка тоже компактная, и сохраняет все функции : лежанка, горнило, плита...А крутить и зеркалить можно по- разному.
И порядовка, и в скетче есть. Описание ? Обычная теплушка, только скомпонована чуть по- другому. Я уже давно их кладу... сам придумал, сам и кладу...
|
| Описание: |
|
| Размер файла: |
445.81 КБ |
| Просмотров: |
623 раз(а) |

|
|
|
    |
 |
Безумный Печник

Зарегистрирован: Чт 2 Февраль 2012, 21:43
Сообщения: 3221
Регион: спб
|
Добавлено:
Сб 2 Февраль 2019, 18:18
|
  |
http://forum.stovemaster.ru/viewtopic.php?t=7103 тут почитайте о преблемных местах Ртиков
лучше просто Теплушку с нижним прогревом, плита, как отдельный подтопок рядом . Узел можно через балку разгрузить перейти с шамота на красный кирпич -проблема доконца не решается через колосник в грниле сажа не вся выгорает .
|
_________________ Русская Печная АртелЪ -Возрождение старинных ремесел. Печные работы под ключ от зонтика до зольника . 89213537822
| Описание: |
|
| Размер файла: |
389.58 КБ |
| Просмотров: |
572 раз(а) |

|
| Описание: |
|
| Размер файла: |
383.63 КБ |
| Просмотров: |
579 раз(а) |

|
|
|
    |
 |
internet_pechnik
Зарегистрирован: Вт 9 Апрель 2013, 19:51
Сообщения: 1892
Регион: belarus
|
Добавлено:
Сб 2 Февраль 2019, 20:25
|
  |
| Дмитрий РБ писал(а): |
| День добрый .Нужно мнение профи на печь.Проект взял с этого сайта http://air-hot.ru/index.php/pechiikaminy/otopitelnovarochnyepechi.Проект переработанной РТИК5..Есть ли ухудшающие факторы данной переделки ..Печь нужна с лежанкой и именно сзади.Опыта не много и проект с сайта с описанием очень манит).Заранее спасибо |
можно сделать просто печь с лежанкой, причем низкой, но не РП. Можно и Хлебную камеру сделать раз куплена дверка. чего именно за РП зацепился?
|
Последний раз редактировалось: internet_pechnik (Сб 2 Февраль 2019, 20:27), всего редактировалось 1 раз |
|
  |
 |
Андрей_Алексеевич

Зарегистрирован: Пн 13 Декабрь 2010, 19:17
Сообщения: 5908
Регион: малая родина Павлова, Скобелева, Циолковского, Уткиных и др.
|
Добавлено:
Сб 2 Февраль 2019, 20:25
|
  |
| Безумный Печник писал(а): |
| ... проблема до конца не решается через колосник в грниле сажа не вся выгорает . |
КР в поду горнила РП (Теплушки, Экономки...) предназначена для чистого сгорания дровяного топлива при прогреве свода горнила в "хлебном" режиме.
На время вытопа ВП в зимнем режиме, КР откидывается на штоке с рукояткой.
|
_________________ Печник - милостью и промыслом Божиим.
Печное отопление частного дома и т.п., авторское сопровождение проектов, наставничество в т.ч. дистанционное, партнёрство в кладке печей.
89106130763 МТС
andrejka61@mail.ru
andrej.kuzmischev@yandex.ru
|
|
   |
 |
Безумный Печник

Зарегистрирован: Чт 2 Февраль 2012, 21:43
Сообщения: 3221
Регион: спб
|
Добавлено:
Сб 2 Февраль 2019, 20:39
|
  |
Я вас понял Андрей хорошо что печной язык это как шифр по сему сам иногда АБРАКАТАБРУ не всегда иной раз понимаю . В режиме РП дров много кушает РТИК больше дачный формат задачии как у Комбаина убрать плиту будет все ок .
|
_________________ Русская Печная АртелЪ -Возрождение старинных ремесел. Печные работы под ключ от зонтика до зольника . 89213537822
|
|
    |
 |
Безумный Печник

Зарегистрирован: Чт 2 Февраль 2012, 21:43
Сообщения: 3221
Регион: спб
|
Добавлено:
Сб 2 Февраль 2019, 20:43
|
  |
| internet_pechnik писал(а): |
| Дмитрий РБ писал(а): |
| День добрый .Нужно мнение профи на печь.Проект взял с этого сайта http://air-hot.ru/index.php/pechiikaminy/otopitelnovarochnyepechi.Проект переработанной РТИК5..Есть ли ухудшающие факторы данной переделки ..Печь нужна с лежанкой и именно сзади.Опыта не много и проект с сайта с описанием очень манит).Заранее спасибо |
можно сделать просто печь с лежанкой, причем низкой, но не РП. Можно и Хлебную камеру сделать раз куплена дверка. чего именно за РП зацепился?  |
Я так понял человек не проект для печника ищет а сам хочет построить отсюда корень проблемы .
|
_________________ Русская Печная АртелЪ -Возрождение старинных ремесел. Печные работы под ключ от зонтика до зольника . 89213537822
|
|
    |
 |
Безумный Печник

Зарегистрирован: Чт 2 Февраль 2012, 21:43
Сообщения: 3221
Регион: спб
|
Добавлено:
Сб 2 Февраль 2019, 21:00
|
  |
| Дмитрий РБ писал(а): |
Спасибо за идею! Не подойдет из-за топки сбоку(стена не даст) и уже куплено литьё на проект из первого поста..одна дверка LK324 далась с боем) в Витебске тяжело с этим..блок ша 94 найти не могу..только из Минска тянуть..
..а есть описание какое на эту печь и рядовка? |
Если места мало Ртик с футеровкой тоже место требует я бы над подобным проектом типа печь Ракета если вам плита необходима+ лежанка+ХК
|
_________________ Русская Печная АртелЪ -Возрождение старинных ремесел. Печные работы под ключ от зонтика до зольника . 89213537822
| Описание: |
|
| Размер файла: |
40.85 КБ |
| Просмотров: |
559 раз(а) |

|
|
|
    |
 |
Андрей_Алексеевич

Зарегистрирован: Пн 13 Декабрь 2010, 19:17
Сообщения: 5908
Регион: малая родина Павлова, Скобелева, Циолковского, Уткиных и др.
|
Добавлено:
Сб 2 Февраль 2019, 21:28
|
  |
| Дмитрий РБ писал(а): |
| Дом сруб, высота 2.6 .Ширина 7.2 на 7.8..В доме стяжка. Фундамент под печь 1,9 на 1,9 остался от старой печи..балки потолка со временем провисли от опилок (почти 8 метров без опоры это слишком)поэтому посередине поставил опоры |
В заданных габаритах фундамента, РП встаёт 7,5х7,5 кирпичей.
С учётом напуска, и за вычетом перетрубья, лежанка "выходит" ок. 8х6 кирпичей, примерно 200х150 см.
В "зимнем" режиме мощность не превысит 8 кВт. (однократная протопка), это без учёта калориферного эффекта при открытии Дпр в перетрубье.
|
_________________ Печник - милостью и промыслом Божиим.
Печное отопление частного дома и т.п., авторское сопровождение проектов, наставничество в т.ч. дистанционное, партнёрство в кладке печей.
89106130763 МТС
andrejka61@mail.ru
andrej.kuzmischev@yandex.ru
|
|
   |
 |
Дмитрий РБ
Зарегистрирован: Ср 30 Январь 2019, 13:33
Сообщения: 16
Регион: Беларусь. Витебск
|
Добавлено:
Вс 3 Февраль 2019, 11:28
|
  |
Спасибо что не обошли вниманием.По проблемам РТИКа прошёлся вчера и ссылки что дали в ЛС прояснили многое,за что спасибо...Темы "прокурил" все,теперь даже картинка какая-то в голове стала прорисовываться что да как)))...
Да, строить буду сам. Теплушка в начале подкупила красотой и характеристиками.Дом в стадии строительства и пока это будет больше как дача(приезд раз .. два в неделю). Потом почитав форум ,посмотрев работы РП...конечно красиво,но проекта подробного нет,покупать пока тоже особо не за что..стройка съедает всё,да и сын в этом году выпускник..
Хотелось бы лежанку(сам я 190см) и возможность готовить как в РП. Всё это вроде сочиталось в РТИК5,да ещё и плита...теперь почитав ,вникнув понял ,что это больше косяк))При этом труба желательна,хотя и не принципиально слева(есть от старой печи выход) и загрузка дров либо спереди,либо слева-справа проход и там не получится..А дверку жалко))) с трудом досталась
В принципе с большего понял как в теплушку шамотное ядро поставить и убрать плиту..дымосборник при этом остаётся ,а вот ЗЛХ я так понял убирается..только в принципе это почти РП получится+хоту РТИК на 2 кирпича удлиннить..
Вопрос только,столбики поставлю из красного кирпича..по кругу в нижней камере шамотом на ложок и прекрою шамотом в два ряда без привязки к стенам...вопрос ,можно при этом столбики из красного или шамот тоже надо?
А что думаете по этому проекту? http://forum.stovemaster.ru/viewtopic.php?t=10174
|
|
|
|
  |
 |
Anton-1979x
Зарегистрирован: Пт 1 Июль 2011, 10:23
Сообщения: 2
Регион: Полтава
|
Добавлено:
Чт 28 Май 2020, 14:25
|
  |
| Безумный Печник писал(а): |
| Дмитрий РБ писал(а): |
Спасибо за идею! Не подойдет из-за топки сбоку(стена не даст) и уже куплено литьё на проект из первого поста..одна дверка LK324 далась с боем) в Витебске тяжело с этим..блок ша 94 найти не могу..только из Минска тянуть..
..а есть описание какое на эту печь и рядовка? |
Если места мало Ртик с футеровкой тоже место требует я бы над подобным проектом типа печь Ракета если вам плита необходима+ лежанка+ХК |
Надо же, мой нереализованный проект где всплыл Но сейчас бы такое и не строил. ХК точно бы не выгорела...
|
|
|
|
  |
 |
|
|