 |
|
 |
| Автор |
Сообщение
|
Strannik2023
Зарегистрирован: Ср 17 Май 2023, 21:11
Сообщения: 2
Регион: Москва
|
Добавлено:
Вт 23 Май 2023, 23:26
|
  |
Доброго дня, профессионалы,
необходимо спроектировать и выложить камин.
Кладку начинать 15-20 июня, уже будут готовы перекрытия и начнется кладка стен второго этажа, одновременно с этих хотел бы поднимать камин, чтобы к моменту монтажа кровли было готово.
Камин под отделку искусственным камнем, все как на фото.
отделка камнем - возможно будет позже - обсуждается.
все чертежи и фото образца во вложении.
вот дополнения к ТЗ
3. камин для вспомогательного отопления, основное – второй этаж водяное, радиаторное, первый этаж – теплые полырадиаторы
4. естественная вентиляция коридор – санузел – вентканал. В подвале приток воздуха.
4.1. В помещении под гостиной (где будет камин) есть желание, чтобы из этого помещения снизу забирался воздух , перекрывать заслонками когда это не нужно.
4.2. Также возможно организовать забор воздуха для камина с улицы – тоже перекрываемый заслонкой
4.3. Изначальная идея, что приток воздуха может быть в трех вариантах:
4.3.1. Стандарт из комнаты- гостиной, где камин
4.3.2. Снизу
4.3.3. С улицы
4.4. Возможно такая идея абсурдна, тогда нужно пояснение почему этого лучше не делать
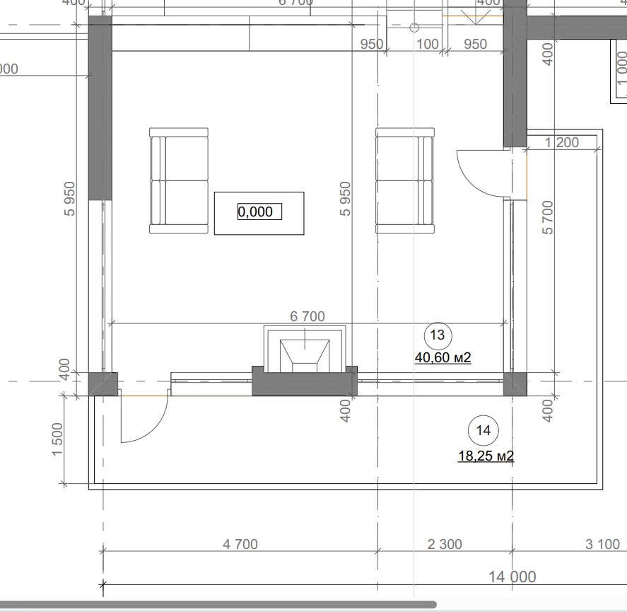
остальные чертежи по запросу - планы помещений, высоты, план фундамента камина. здесь лимит 5 картинок.
|
| Описание: |
|
| Размер файла: |
161.11 КБ |
| Просмотров: |
92 раз(а) |

|
| Описание: |
|
| Размер файла: |
317.62 КБ |
| Просмотров: |
95 раз(а) |

|
| Описание: |
|
| Размер файла: |
183.5 КБ |
| Просмотров: |
107 раз(а) |

|
| Описание: |
|
| Размер файла: |
217.16 КБ |
| Просмотров: |
104 раз(а) |

|
| Описание: |
|
| Размер файла: |
205.6 КБ |
| Просмотров: |
106 раз(а) |

|
|
|
  |
 |
Strannik2023
Зарегистрирован: Ср 17 Май 2023, 21:11
Сообщения: 2
Регион: Москва
|
Добавлено:
Вт 23 Май 2023, 23:31
|
  |
дополнительные чертежи
|
| Описание: |
|
| Размер файла: |
88.19 КБ |
| Просмотров: |
88 раз(а) |

|
| Описание: |
| разрез помещения с камином |
|
| Размер файла: |
81.1 КБ |
| Просмотров: |
83 раз(а) |

|
| Описание: |
|
| Размер файла: |
50.47 КБ |
| Просмотров: |
93 раз(а) |

|
| Описание: |
| перекрытие с местом под камин |
|
| Размер файла: |
85.5 КБ |
| Просмотров: |
93 раз(а) |

|
| Описание: |
|
| Размер файла: |
100.31 КБ |
| Просмотров: |
92 раз(а) |

|
|
|
  |
 |
|
|
|
Следующая тема
Предыдущая тема
Вы не можете начинать темы Вы не можете отвечать на сообщения Вы не можете редактировать свои сообщения Вы не можете удалять свои сообщения Вы не можете голосовать в опросах Вы не можете добавлять приложения в этом форуме Вы можете скачивать файлы в этом форуме
|
|